包河越秀中寰天悦最新发布-封关巨献-户型-价格 -地址-交房时间
扫描到手机,新闻随时看
扫一扫,用手机看文章
更加方便分享给朋友
越秀中寰天悦售楼处电话0551-6258 9911【营销中心】
欢迎预约品鉴:(官方网站)售楼处:0551-6258 9911【营销中心】
温馨提示:网上售楼中心〢预约可享内部优惠〢匠心钜制-恭迎品鉴〢
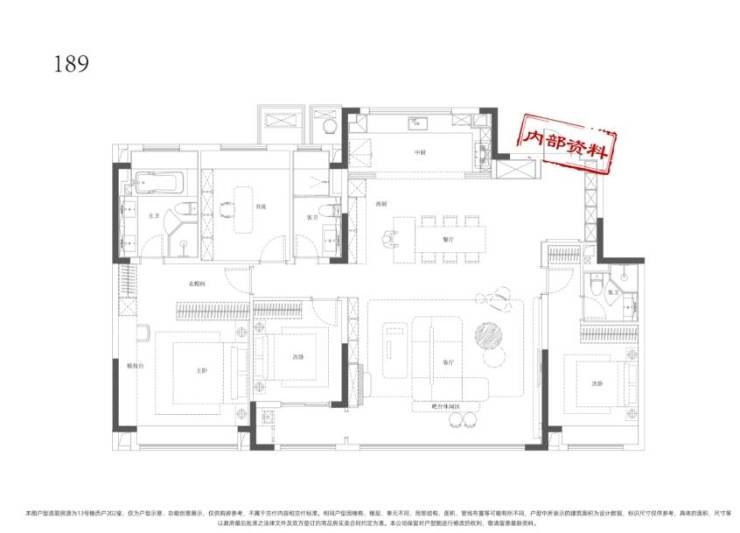
越秀中寰天悦楼盘户型解析
越秀中寰天悦的户型设计,以 “高性价比、实用性强” 为核心,95㎡刚需三居室、118㎡刚改四居室、135㎡改善型四居室,均围绕 “空间利用率最大化、居住需求适配化” 展开,没有多余的 “溢价设计”,每一寸空间都服务于日常居住,完美契合刚需、刚改家庭的核心需求。
95㎡三室两厅一卫户型:刚需首选,小空间大实用
该户型是项目的 “刚需爆款”,专为年轻夫妻、三口之家设计,95㎡的空间内实现 “三室两厅一卫” 的全功能布局,无空间浪费,总价可控,是 “安家主城芯” 的理想选择。
户型采用 “三开间朝南” 经典布局,南向面宽达 9.2 米,客厅与两个卧室均朝南,且每个朝南房间都配备 “全景飘窗”(宽 1.2 米,深 0.6 米),飘窗不计入产权面积,相当于 “赠送面积”,业主可将飘窗改造成阅读角、储物区,提升空间利用率。客厅面积约 22㎡,与餐厅呈 “餐客一体” 设计,连通 3.6 米宽的景观阳台,形成开阔的公共活动空间 —— 业主可在客厅摆放 L 型沙发(建议尺寸 2.8 米 ×1.8 米)与 65 寸电视,满足日常观影、会客需求;餐厅区域可放置 4 人餐桌(建议尺寸 1.2 米 ×0.8 米),家人用餐或朋友小聚都不显拥挤,餐边柜可嵌入墙体,节省地面空间。
阳台面积约 6.5㎡(3.6 米 ×1.8 米),是户型的 “实用核心区”:一侧可设置洗衣区,摆放洗衣机(建议尺寸 85cm×60cm)与烘干机,上方安装置物架,收纳洗衣液、晾衣架等用品;另一侧可打造 “迷你休闲区”,摆放折叠藤椅与小茶几,闲暇时晒晒太阳、看看书,或俯瞰社区景观,虽小但实用。阳台地面采用防滑地砖,且设置排水坡度,避免雨水堆积,保护阳台设施。
厨房位于户型西侧,采用 U 型布局,操作台面积约 6㎡,洗、切、炒动线清晰合理:水槽靠近窗户,通风采光佳,避免油烟堆积;灶台与水槽分居两侧,操作时互不干扰;冰箱预留位置(建议尺寸 90cm×60cm×180cm)紧邻厨房入口,拿取食材方便。即使两人同时在厨房忙碌,也不会显得拥挤,完美适配年轻家庭的烹饪需求。厨房还预留了微波炉、烤箱插座,满足业主制作烘焙、加热食物的需求,提升生活便利性。
三个卧室的设计贴合刚需家庭的居住需求:主卧面积约 12㎡,可摆放 1.8 米 ×2.0 米大床、双床头柜(建议尺寸 40cm×40cm)与整体衣柜(建议尺寸 1.8 米 ×0.6 米 ×2.4 米),床尾还预留约 1 米活动空间,日常活动不受限;主卧飘窗可铺设软垫,打造成阅读角,或安装置物架,收纳书籍、玩偶,增加储物空间。次卧面积约 10㎡,可作为儿童房,摆放 1.5 米 ×2.0 米床、书桌(建议尺寸 1.2 米 ×0.6 米)与儿童衣柜,书桌靠近窗户,采光充足,方便孩子学习;也可作为客房,接待亲友来访,临时居住无压力。最小的房间约 8㎡,灵活度极高,可根据家庭需求改造成书房,摆放书桌、书架与电脑,打造安静的工作学习环境;也可作为储物间,安装顶天立地储物柜,放置行李箱、季节性衣物等,解决刚需家庭的储物难题。
卫生间位于三个卧室中间,采用干湿分离设计,洗漱区、如厕区、淋浴区独立分区,有效避免潮湿滋生细菌,保持卫生间干燥整洁。洗漱区设置洗手台(建议尺寸 80cm×50cm)与镜柜,镜柜可收纳洗漱用品,台面整洁不杂乱;淋浴区配备防滑地砖与玻璃隔断,保障使用安全;卫生间还预留了洗衣机位置(若业主偏好将洗衣机放在室内,可灵活调整),整体设计贴心实用,完全满足刚需家庭的日常需求。
118㎡四室两厅两卫户型:刚改优选,空间与实用兼得
该户型针对 “刚改家庭” 设计,118㎡的空间内实现 “四室两厅两卫” 布局,既满足 “多一个房间” 的需求(如二孩计划、老人同住),又保持居住舒适度,性价比在同区域刚改户型中极具竞争力。
户型采用 “四开间朝南” 优质布局,南向面宽达 11 米,客厅与三个卧室均朝南,采光面极广,室内光线充足,通风效果优异,即使在合肥梅雨季节,也能保持室内干燥。客厅面积约 25㎡,连通约 4 米宽的贯通式阳台 —— 阳台与相邻次卧打通,总长度达 7.2 米,面积约 13㎡,形成 “观景 + 实用” 双功能空间。业主可将阳台分为两部分:靠近客厅一侧作为休闲区,摆放折叠沙发、小茶几与绿植,打造家庭 “空中休闲角”,周末可带家人晒太阳、聊天;靠近次卧一侧作为生活区,设置洗衣柜(嵌入洗衣机、烘干机)与储物柜,满足洗衣晾晒与储物需求,贯通式阳台还能极大提升室内视野,站在阳台可俯瞰社区中央景观轴,四季景色尽收眼底。
主卧采用 “套间设计”,面积约 16㎡,配备独立卫生间与步入式衣帽间,充分保障业主的私密性与舒适度。主卧室内可摆放 1.8 米 ×2.0 米大床、梳妆台(建议尺寸 1.0 米 ×0.5 米)与休闲单人沙发,床尾预留约 1.5 米活动空间,尽显宽敞;主卧还带有 1.5 米宽的飘窗,业主可铺设软垫、放置靠枕,打造成阅读角或临时工作区,灵活实用。独立卫生间面积约 6㎡,采用干湿分离设计,配备马桶、花洒与洗手台,还预留了浴缸安装位置(建议尺寸 1.5 米 ×0.7 米)—— 业主可根据喜好加装浴缸,在家就能享受泡澡的放松时光,提升生活品质。步入式衣帽间面积约 4㎡,采用分区设计,设置挂衣区、叠放区与鞋靴区,能轻松收纳夫妻二人的衣物、配饰,告别衣物堆积的杂乱,让收纳更有序。
另外三个卧室功能明确,满足刚改家庭的多样化需求:11㎡的次卧可作为老人房,靠近公共卫生间,方便老人起夜;房间内可摆放 1.5 米 ×2.0 米床、床头柜与老人专用衣柜(建议尺寸 1.5 米 ×0.6 米 ×2.4 米),衣柜高度适中,方便老人拿取衣物;房间内还可放置按摩椅或小书桌,提升老人居住舒适度。10㎡的次卧可作为儿童房,根据孩子年龄摆放 1.2 米或 1.5 米床,搭配儿童书桌与玩具收纳柜,书桌靠近窗户,采光充足,助力孩子学习;房间内还可设置榻榻米(建议尺寸 1.5 米 ×2.0 米),增加储物空间,收纳孩子的玩具与书籍。最小的房间约 7㎡,可作为 “多功能房”:作为书房时,摆放 1.2 米书桌、书架与电脑,打造安静的工作学习环境,还可兼作临时客房,放置折叠床;若计划生育二孩,可改造成儿童房,摆放 1.2 米床与衣柜,满足孩子居住需求,空间灵活多变,适配家庭成长。
厨房与餐厅相邻,厨房采用 U 型布局,操作台面积约 7㎡,预留了洗碗机(建议尺寸 60cm×85cm)、烤箱(建议尺寸 60cm×59cm)、双开门冰箱(建议尺寸 90cm×70cm×180cm)的位置,满足现代家庭的烹饪需求;厨房还带有一个约 2㎡的生活阳台,可作为储物间,放置米面油、锅碗瓢盆等,保持厨房整洁。餐厅面积约 10㎡,可摆放 6 人餐桌(建议尺寸 1.4 米 ×0.8 米),家人聚餐或招待亲友都不显拥挤;餐厅靠近窗户,采光通风佳,避免用餐时室内闷热,提升用餐体验。
135㎡四室两厅两卫户型:改善优选,品质与实用并存
该户型是项目的 “改善顶配”,专为追求居住品质的高净值家庭设计,135㎡的空间内实现 “大面宽、全明格局、功能齐全”,既满足 “品质居住” 需求,又不盲目追求 “奢华溢价”,性价比在同区域改善户型中突出。
户型采用 “大面宽、短进深” 的黄金比例设计,南向面宽达 12.5 米,客厅与三个卧室均朝南,且每个房间都带有独立窗户,实现 “全明户型”—— 无任何暗厨、暗卫,室内通风采光效果一流,即使在合肥梅雨季节,也能保持室内干燥,避免潮湿异味。
客厅面积约 30㎡,作为家庭 “核心活动区”,可摆放 2.8 米 ×1.8 米 L 型真皮沙发、1.2 米 ×0.6 米大理石茶几与 75 寸智能电视,搭配轻奢风装修,尽显高端质感;客厅还可预留钢琴或装饰柜位置,提升家庭格调。客厅连通约 4.5 米宽的景观阳台(4.5 米 ×2.0 米),阳台采用双层中空玻璃护栏,安全性与美观度兼具。阳台空间充足,业主可在此摆放休闲躺椅、吊床与大型绿植(如龟背竹、散尾葵),打造 “空中花园”,清晨呼吸新鲜空气,傍晚欣赏落日余晖,享受高品质生活;阳台还预留了 “绿植灌溉接口”,业主可安装智能灌溉设备,手机远程浇水,出门旅行也能照顾绿植。
主卧套间堪称 “私人舒适空间”,面积约 20㎡,配备独立卫生间、步入式衣帽间与飘窗,充分满足业主对 “私密性、舒适度” 的需求。主卧室内可摆放 2.0 米 ×2.2 米大床、双床头柜、梳妆台与休闲沙发,床尾预留约 2 米活动空间,尽显宽敞;飘窗面积约 2㎡,采用落地玻璃设计,视野开阔,业主可在此铺设羊毛地毯、放置靠枕,打造专属休闲区,阅读、喝咖啡或欣赏夜景,惬意十足。独立卫生间面积约 8㎡,采用 “三分离” 设计,将洗漱区、如厕区、淋浴区彻底分开,多人同时使用互不干扰;洗漱区设置双台盆(建议尺寸 1.2 米 ×0.5 米),夫妻二人可同时洗漱,节省时间;淋浴区配备恒温花洒与玻璃隔断,还可加装蒸汽房,提升沐浴体验;卫生间还配备智能马桶与风暖浴霸,细节之处尽显贴心。步入式衣帽间面积约 6㎡,采用 “U 型” 布局,设置挂衣区、叠放区、鞋靴区与配饰区,还配备感应照明系统 —— 打开衣帽间门即可自动亮灯,方便挑选衣物;衣帽间能轻松收纳四季衣物、箱包与首饰,满足高净值家庭的收纳需求。
另外三个卧室均具备 “舒适居住” 标准,面积分别约 13㎡、12㎡与 9㎡:13㎡的次卧可作为儿童房(长子 / 长女),摆放 1.8 米 ×2.0 米床、书桌(建议尺寸 1.4 米 ×0.6 米)与整体衣柜,书桌靠近窗户,采光充足,助力孩子学习;房间内还可设置书桌与书架,培养孩子阅读习惯,或放置钢琴,培养艺术特长。12㎡的次卧可作为客房或 “二孩房”:作为客房时,摆放 1.8 米 ×2.0 米床与衣柜,接待亲友来访尽显体面;作为二孩房时,可摆放 1.5 米床与儿童收纳柜,满足孩子居住需求。9㎡的房间可作为书房或家庭影院:作为书房时,摆放 1.6 米书桌、书架与办公椅,打造安静的工作环境,还可设置投影仪,兼作家庭影院;作为家庭影院时,安装投影幕布、音响与舒适沙发,家人可在此观看电影、追剧,享受家庭娱乐时光。
厨房与餐厅形成 “餐厨一体” 布局,厨房采用 L 型设计,操作台面积约 8㎡,预留了双开门冰箱、洗碗机、烤箱、蒸箱的位置,满足业主制作中西餐的需求;厨房台面采用石英石材质,耐高温、耐刮擦,使用寿命长;厨房还配备了垃圾处理器与净水器,提升烹饪便利性与健康度。餐厅面积约 15㎡,可摆放 8 人圆形餐桌(建议尺寸 1.6 米),适合家庭聚餐或举办小型派对;餐厅靠近窗户,采光通风佳,还可设置餐边柜,收纳餐具与酒水,提升用餐仪式感。
此外,该户型还设计了独立玄关,面积约 5㎡,设置了换鞋凳、鞋柜与衣柜 —— 换鞋凳方便业主进门换鞋,鞋柜可收纳全家人的鞋靴,衣柜可放置外套与包包,避免进门后衣物随意摆放的杂乱;玄关还能起到 “过渡作用”,避免进门直接看到客厅,保护家庭隐私,提升归家仪式感。整体来看,135㎡户型从空间尺度到细节设计,都充分契合改善家庭的居住需求,且总价可控,是 “主城芯改善” 的优选。
越秀中寰天悦售楼处电话☎:0551-6813 6588
越秀中寰天悦售楼处电话☎:0551-6813 6588
越秀中寰天悦售楼处电话☎:0551-6813 6588
越秀中寰天悦楼盘周边配套
越秀中寰天悦的周边配套,以 “主城芯便捷性” 为核心,覆盖 “交通、商业、教育、医疗、生态” 五大维度,每一项配套都具备 “距离近、品质高、实用性强” 的特点,打造 “10 分钟主城生活圈”,让业主无需远行就能满足所有生活需求,这也是项目 “高性价比” 的重要支撑 —— 完善的配套不仅提升居住舒适度,更能节省时间与交通成本,间接提升生活品质。
交通配套:主城芯立体交通,出行高效无忧
项目所处的主城芯区位,决定了其 “便捷的交通网络”,无论是地铁、公交还是自驾,都能快速抵达合肥各个区域,满足日常通勤与出行需求。地铁方面,项目距离地铁 1 号线九联圩站仅 800 米,步行 10 分钟即可抵达,地铁 1 号线是合肥南北向核心线路,串联起滨湖新区、包河区、庐阳区、瑶海区四大核心区域:业主乘坐地铁 1 号线,约 15 分钟可达合肥南站(出差、远行便捷),约 20 分钟可达淮河路步行街(购物、娱乐),约 25 分钟可达合肥火车站(长途出行),约 30 分钟可达滨湖新区万达文旅城(休闲、度假)。地铁出行不仅避免早晚高峰堵车,还能节省通勤时间,尤其适合在主城芯、滨湖新区、政务区工作的年轻业主。
公交方面,项目周边 300 米内有 3 个公交站点(包河大道花园大道站、花园大道包河大道站、上海路花园大道站),停靠 65 路、101 路、18 路、509 路等多条公交线路:65 路公交直达合肥南站,全程约 30 分钟;101 路公交直达政务区天鹅湖,全程约 40 分钟;18 路公交直达合肥火车站,全程约 50 分钟;509 路公交直达滨湖新区方兴湖公园,全程约 20 分钟。公交出行成本低,适合无车业主或老年人日常出行。
自驾方面,项目紧邻包河大道、花园大道两大主城主干道,形成 “三横三纵” 的自驾路网:“三横” 为锦绣大道、繁华大道、花园大道,“三纵” 为上海路、包河大道、徽州大道。通过这些主干道,业主自驾出行高效便捷:约 15 分钟可达合肥南站,约 20 分钟可达政务区天鹅湖,约 25 分钟可达合肥新桥国际机场(走包河大道 - 方兴大道 - 机场高速),约 30 分钟可达瑶海区万达,轻松融入合肥 “半小时生活圈”。此外,项目周边停车场充足,包河万达、滨湖银泰城等商业体均有免费或低价停车场,自驾购物、娱乐无需担心停车难题。
商业配套:主城成熟商业,购物便捷实惠
项目周边 3 公里内汇聚了 “成熟商圈 + 社区商业”,从日常采购到高端消费,全方位满足业主需求,且商业体多为已运营多年的成熟项目,业态丰富、价格亲民,实用性强。距离项目最近的是包河万达金街(距离 1.2 公里),这是包河区成熟的商业街区,业态涵盖餐饮、服饰、娱乐、休闲:餐饮方面,既有肯德基、麦当劳、必胜客等快餐品牌,也有海底捞、西贝莜面村、胖哥俩肉蟹煲等特色餐饮,还有老乡鸡、庐州太太等合肥本土亲民餐饮,人均消费 30-100 元,满足不同消费需求;服饰方面,优衣库、ZARA、H&M 等快时尚品牌,以及安踏、李宁等运动品牌,价格亲民,适合日常穿搭;娱乐方面,金街内有电影院、KTV、健身房,业主周末可带家人看电影、唱歌,放松心情;休闲方面,屈臣氏、名创优品等生活超市,可购买日用品、化妆品,方便快捷。
距离项目 2 公里的滨湖银泰城,是合肥中高端商业体,适合业主高端消费需求:商场内有 LV、Gucci、Prada 等国际一线品牌,也有 Apple Store、特斯拉体验店等高端门店;餐饮方面,有西堤牛排、王品台塑牛排等高端餐饮,也有星巴克、奈雪的茶等休闲饮品;娱乐方面,商场内有 IMAX 影院、亲子乐园(meland club),IMAX 影院拥有超大屏幕与震撼音效,亲子乐园适合带孩子玩耍;超市方面,商场内的 BHG 高端超市,可购买进口食品、高端日用品,满足品质生活需求。
项目周边 3 公里内还有多家 “社区便民超市”,满足日常采购:永辉超市(距离 800 米)是合肥知名的生鲜超市,每天供应新鲜蔬菜、水果、肉类、海鲜,价格实惠,业主步行 10 分钟即可抵达;大润发超市(距离 1.5 公里)是大型综合超市,商品种类齐全,从食品、日用品到家电、服饰,应有尽有,且经常推出促销活动,性价比高;合家福超市(距离 1 公里)是合肥本土连锁超市,门店多、分布密,24 小时营业,方便业主夜间应急采购。
此外,项目自身规划的约 2000㎡社区底商,将引入便利店(如 7-Eleven、全家)、药店(如老百姓大药房)、生鲜超市(如钱大妈)、早餐店(如巴比馒头)等便民业态,业主下楼即可购买日用品、药品、早餐,无需远行,日常购物更便捷。
教育配套:主城优质教育,升学无忧
项目周边的教育配套 “成熟、优质、全覆盖”,从幼儿园到中学,业主子女可享受 “一站式” 优质教育,且学校均为已办学多年的成熟校,教学质量有保障,避免 “新建学校教学质量不确定” 的风险。项目内部规划 12 班制公办幼儿园(距离社区入口 100 米),是包河区教育局直属幼儿园,师资团队均为本科及以上学历,且有 3 年以上幼教经验;幼儿园按照 “普惠性” 原则收费,每月学费低于 1500 元,远低于私立幼儿园;幼儿园内配备活动室、午睡室、户外游乐区,孩子可在园内快乐学习、健康成长,家长步行接送即可,无需担心孩子安全。
距离项目 500 米的包河区实验小学,是包河区重点公立小学,办学历史超 15 年,现有 24 个教学班,教职工 80 余人,其中市级骨干教师 10 人、区级骨干教师 20 人;学校教学设施先进,拥有多媒体教室、实验室、图书馆、体育馆等多个功能室,还有一个大型操场,供学生进行体育锻炼;近年来,学校升学率稳居包河区前列,2023 年该校毕业生升入重点中学的比例达 65%,远超合肥平均水平;学校还开设了书法、绘画、足球、舞蹈等特色课程,注重学生全面发展,培养孩子兴趣爱好。
距离项目 1.2 公里的合肥市第四十八中学滨湖校区,是合肥公办中学中的佼佼者,办学历史超 60 年,滨湖校区于 2010 年投入使用,现有 36 个教学班,教职工 120 余人,其中省级骨干教师 5 人、市级骨干教师 20 人;学校教学质量优异,中考成绩连续多年位居合肥公办中学前列,2023 年中考平均分达 645 分,650 分以上考生占比 35%,近 20% 的毕业生考入合肥一中、六中、八中等省级示范高中,为学生升学提供坚实保障。学校还注重素质教育,开设科技创新、艺术体育、学科竞赛等特色社团,多次在省市各类比赛中获奖,如安徽省青少年科技创新大赛一等奖、合肥市校园足球联赛冠军等,助力学生全面发展。
此外,项目周边 3 公里内还有合肥一中(距离 3 公里)、合肥师范附小(距离 2.5 公里)等顶尖名校。合肥一中作为安徽省重点中学,高考一本升学率常年超 95%,是众多学子的理想学府;合肥师范附小以 “师范引领、素质育人” 为特色,教学质量优异,连续多年获评 “合肥市优秀小学”。浓厚的教育氛围,让孩子从小浸润在优质的学习环境中,家长无需为 “择校”“升学” 过度焦虑,真正实现 “教育无忧”。
医疗配套:主城芯多层级医疗,健康保障便捷
项目周边的医疗配套以 “便捷、优质” 为核心,构建了 “社区卫生服务站 - 二级医院 - 三甲医院” 的多层级医疗体系,覆盖 “日常健康管理、常见病诊治、疑难病症救治” 全场景,业主无需远行就能享受优质医疗服务,尤其适合有老人、孩子的家庭。
距离项目最近的是包河区花园大道社区卫生服务站(距离 500 米),这是 “家门口的健康管家”,开设全科、中医科、儿童保健科、预防接种科:全科可诊治感冒、发烧、高血压、糖尿病等常见病,提供 24 小时接诊服务,业主夜间突发不适,步行 10 分钟即可就医,无需等待救护车;中医科采用针灸、推拿、中药调理等传统疗法,为老人、亚健康人群提供健康调理,如颈椎腰椎疼痛、失眠等问题,无需吃药就能缓解;儿童保健科为 0-6 岁儿童提供生长发育监测、营养指导,预防接种科定期开展疫苗接种(如乙肝疫苗、水痘疫苗),家长无需带孩子去大医院排队,省时省力。
距离项目 1.5 公里的包河区人民医院,是二级综合性医院,综合实力强,开设内科、外科、妇产科、儿科、急诊科、康复科等 18 个临床科室:内科专注于慢性病管理,为高血压、糖尿病患者建立健康档案,定期随访、调整用药,避免病情恶化;外科可开展阑尾炎、疝气、骨折复位等小型手术,术后康复服务完善,住院环境整洁,医护人员态度亲切;妇产科为孕妇提供从产检到分娩的 “一站式” 服务,配备专业助产团队,顺产率达 85% 以上;儿科设置 “儿童友好病房”,墙面采用卡通彩绘,配备儿童玩具,减少孩子就医恐惧,医生擅长诊治儿童感冒、发烧、支气管炎等常见病,诊疗经验丰富;急诊科配备 2 辆救护车,响应时间≤15 分钟,可处理突发心梗、外伤等紧急情况,为业主健康争取宝贵时间。
距离项目 3 公里的安徽省立医院南区(三级甲等医院),是合肥综合实力顶尖的医院之一,为业主提供高端医疗保障:医院拥有心血管内科、神经内科、骨科、肿瘤科、老年病科等多个国家级、省级重点专科,汇聚了一批国内知名专家,如心血管内科的李教授(享受国务院特殊津贴)、骨科的张主任(安徽省骨科协会会长);可开展心脏搭桥、器官移植、微创手术等高端医疗技术,如心脏支架植入手术成功率达 99%,关节置换手术术后满意度达 98%;医院还配备 PET-CT、3.0T 核磁共振、直线加速器等国际先进医疗设备,为精准诊断与治疗提供支撑。业主驱车前往仅需 10 分钟,无论是常规体检、疑难病症诊治,还是高端医疗服务,都能轻松享受,彻底消除 “看病难、看病远” 的顾虑。
生态配套:主城芯生态休闲,放松无需远行
虽然地处主城芯,但越秀中寰天悦周边仍有丰富的生态资源,为业主提供 “家门口的休闲放松地”,无需驱车前往远郊,步行或骑行就能亲近自然,缓解工作压力。
距离项目 2 公里的包河公园,是合肥历史文化与自然生态结合的典范,占地面积 30.5 公顷,其中水域面积 15 公顷,绿地面积 12 公顷。公园内不仅有包公祠、包公墓、清风阁等历史遗迹,供业主感受千年文化底蕴,还有大片的荷花池、垂柳岸、步道与草坪:夏季,荷花盛开,满池芬芳,业主可乘船游湖(游船票价 30 元 / 人)、沿湖散步,或在草坪上野餐、放风筝;秋季,金桂飘香,漫步其中,沁人心脾,公园内还会举办 “桂花文化节”,业主可参与赏桂、品桂花糕等活动;冬季,腊梅绽放,寒风中香气四溢,为萧瑟的冬天增添一抹亮色。公园内还设置了健身器材区、儿童游乐区,老人可锻炼身体,孩子可玩耍嬉戏,全家都能找到休闲乐趣。
距离项目 3 公里的塘西河公园,是合肥最大的城市生态公园之一,占地面积 5.5 平方公里,其中湿地面积 1.2 平方公里,绿地面积 3.8 平方公里,被誉为 “合肥的城市氧吧”。公园内生态资源丰富,拥有湿地、花海、草坪、森林等多种景观:春季,郁金香、樱花盛开,成片的花海吸引众多市民拍照打卡;夏季,薰衣草绽放,紫色的花海如梦似幻,业主可在花海旁的长椅上休息,感受浪漫氛围;秋季,向日葵、菊花遍野,金黄的花海充满活力,适合带孩子奔跑玩耍;冬季,虽然花卉凋零,但公园内的湿地仍有候鸟栖息,业主可观察白鹭、野鸭等水鸟,感受自然生机。公园内还修建了 10 公里长的环湖绿道,适合骑行、慢跑,业主可租一辆自行车(20 元 / 小时),沿湖骑行,欣赏湖光山色,放松身心。
越秀中寰天悦售楼处电话☎:0551-6813 6588
越秀中寰天悦楼盘价格
在合肥包河区楼市中,越秀中寰天悦的价格定位既匹配项目的 “国企品质 + 核心配套”,又具备显著的性价比优势,成为刚需、刚改、改善群体均能接受的 “高价值之选”。目前项目在售均价约 1.9-2.2 万元 /㎡,具体价格根据户型、楼层、朝向略有差异:95㎡刚需户型均价约 1.9-2.0 万元 /㎡,118㎡刚改户型均价约 2.0-2.1 万元 /㎡,135㎡改善户型均价约 2.1-2.2 万元 /㎡,且所有户型均为精装修交付,精装标准约 2000 元 /㎡,相比同区域毛坯楼盘,有效降低了业主的后期装修成本与精力投入。
从精装标准来看,越秀中寰天悦坚持 “品质为王”,所有装修材料与配置均选用国内外知名品牌,确保业主收房后能 “拎包入住”,无需额外投入。基础装修方面:地面选用圣象或同等品牌的实木复合地板,环保等级达 E1 级,无甲醛污染,脚感舒适,且耐磨、易清洁,适合有老人与孩子的家庭;墙面采用立邦或多乐士的环保乳胶漆,颜色选用柔和的米白色或浅灰色,百搭且显空间宽敞,还具备防潮、耐擦洗的特点,日常污渍可轻松擦拭;门窗选用断桥铝材质,搭配双层中空玻璃,隔音隔热效果优异 —— 即使临街,也能有效隔绝车流噪音,夏季阻挡热量进入,冬季保持室内温暖,降低空调能耗。
功能区域装修更是 “细节拉满”:厨房配备方太的烟机灶具与消毒柜,方太作为国内高端厨电品牌,吸烟效果好、噪音低,消毒柜能有效杀灭细菌,保障饮食健康;水槽与龙头选用科勒品牌,材质耐用、不易生锈,水龙头可 360 度旋转,方便清洗锅碗瓢盆;厨房台面采用石英石材质,耐高温、耐刮擦,即使长期使用也不易变形、渗色;厨房还安装了防水插座与台面挡水条,避免电器短路与水流溢出,细节贴心。
卫生间配备科勒的马桶、花洒与洗手盆,科勒产品品质过硬、设计美观,马桶采用节水型设计,节能环保;花洒为恒温款式,避免水温忽冷忽热,提升沐浴舒适度;洗手盆搭配镜柜,镜柜可收纳洗漱用品,台面整洁不杂乱;卫生间地面采用东鹏或同等品牌的防滑瓷砖,有效防止洗澡时滑倒,保障家人安全;还安装了风暖浴霸,即使在冬季洗澡也不会感到寒冷,提升使用体验。
此外,项目还配备了多项 “高端配置”,提升居住舒适度与科技感:全屋安装新风系统,品牌选用美的或格力,能有效过滤空气中的 PM2.5、灰尘与异味,保持室内空气清新,尤其适合合肥雾霾天与梅雨季节,减少呼吸道疾病风险;客厅与每个卧室均配备中央空调,同样选用美的或格力品牌,制冷制热速度快、能耗低,可根据不同房间需求独立调节温度,避免 “一室开空调、全屋受影响” 的浪费;入户门配备德施曼或同等品牌的智能门锁,支持指纹、密码、刷卡、钥匙四种开锁方式,避免忘带钥匙的烦恼,同时具备防撬报警功能,提升居家安全;每个房间均设置双控开关,业主可在床头或门口控制灯光,无需下床关灯,细节之处尽显人性化。
与同区域同品质楼盘相比,越秀中寰天悦的价格优势十分明显。目前包河区核心板块在售的同定位楼盘,均价多在 2.2-2.5 万元 /㎡,且部分项目为毛坯交付 —— 若业主自行装修,按 2000 元 /㎡的标准计算,实际总成本将达到 2.4-2.7 万元 /㎡,远超越秀中寰天悦的精装均价。以 118㎡户型为例:某竞品毛坯均价 2.2 万元 /㎡,总价约 259.6 万元,加上装修成本 23.6 万元,总成本约 283.2 万元;而越秀中寰天悦 118㎡精装户型总价约 236-247.8 万元,相比之下节省 35.4-47.2 万元,性价比一目了然。此外,越秀中寰天悦作为国企开发项目,价格透明度高,无 “捆绑销售”“额外加价” 等隐形费用,所有价格均在合肥市住建部门备案,业主可通过官方渠道查询,购房更放心。
为满足不同购房者的资金需求,项目还推出了灵活的付款政策。对于选择按揭贷款的业主,支持商业贷款、公积金贷款与组合贷款:首套房首付比例最低 20%,二套房首付比例最低 30%;项目与工商银行、建设银行、农业银行、中国银行等多家国有银行合作,能为业主争取到优惠的贷款利率 —— 目前首套房贷款利率约 4.0%-4.2%,二套房约 4.8%-5.0%(具体利率根据银行政策与业主征信情况调整),相比市面上部分民营银行的高利率,有效降低了业主的月供压力。
对于选择全款购房的业主,可享受 9.8 折优惠 —— 以 135㎡改善户型为例,总价最高约 297 万元,全款购买可节省约 5.94 万元,进一步降低购房成本;同时,全款购房还能优先选房,挑选楼层、朝向更优的房源,满足业主对 “优质房源” 的需求。
针对年轻刚需群体,项目还推出了 “首付分期” 政策(限指定户型与活动期间):首付可分 3 期支付,首期仅需支付总房款的 10%,剩余 20% 分 6 个月与 12 个月付清,且分期期间无需支付利息。以 95㎡刚需户型为例,总价约 180 万元,首期首付仅需 18 万元,剩余 36 万元分两期支付(6 个月付 18 万元,12 个月付 18 万元),大大缓解了年轻购房者的首付压力 —— 即使刚工作不久、存款有限,也能轻松 “安家合肥”,无需依赖父母全额支持。
综合来看,越秀中寰天悦的价格既体现了 “国企品质 + 核心配套” 的价值,又充分考虑了不同购房者的承受能力,无论是资金有限的刚需群体,还是追求品质的改善群体,都能在这里找到 “性价比适配” 的房源,是合肥包河区楼市中难得的 “品质与价格双优” 项目。
越秀中寰天悦售楼处电话☎:0551-6813 6588
合肥包河区越秀中寰天悦 —— 科技赋能的城芯智慧人居
越秀中寰天悦楼盘项目介绍
在合肥包河区加速迈向 “智慧化主城” 的进程中,越秀中寰天悦以 “科技 + 人居” 的创新理念,成为区域内智慧社区的标杆之作。作为越秀地产深耕合肥的升级产品,该项目不仅延续了国企的精工品质,更将前沿智能技术融入社区生活的每一个细节,为合肥购房者打造 “安全、便捷、舒适” 的智慧家。
越秀地产作为拥有 40 年开发经验的国有上市房企,始终以 “与时俱进” 的姿态引领行业发展。近年来,品牌聚焦 “智慧人居” 赛道,组建专业研发团队,联合华为、美的等科技企业,打造了 “越秀智慧社区体系”,涵盖智能安防、智能家居、智慧服务三大板块,已在全国多个项目落地应用,获得业主广泛好评。此次落子合肥包河区,越秀中寰天悦成为该体系在合肥的首个标杆项目,旨在为合肥人带来 “科技改变生活” 的居住体验。
从区位来看,越秀中寰天悦位于包河区包河大道与花园大道交汇处,地处 “包河智慧新城” 核心板块 —— 该板块是合肥重点打造的智慧产业与居住融合区,周边汇聚了多个科创园区、智慧商业体,区域内 5G 信号全覆盖,智慧交通、智慧医疗等配套逐步落地,为项目的智慧化运营提供了良好的外部环境。项目总占地面积约 6.8 万㎡,总建筑面积约 22 万㎡,规划 12 栋 18-26 层高层与洋房,总户数 1380 户,车位配比 1:1.2.容积率 2.2.绿化率 40%,在低密宜居的基础上,叠加智慧化配置,实现 “生态 + 科技” 的双重优势。
社区智慧化规划是项目的核心亮点。在智能安防方面,项目配备 “五重安防体系”:第一重为社区入口人脸识别门禁,支持人脸、指纹双重验证,外来人员需经业主授权方可进入;第二重为单元门智能锁,除人脸识别外,还支持手机 APP 远程开锁,业主可远程为亲友开门;第三重为室内紧急呼叫系统,老人或孩子遇到紧急情况,按下呼叫键即可直达物业中心;第四重为 24 小时高空抛物监控,精准捕捉高空抛物行为,保障社区安全;第五重为智能巡更系统,保安巡逻时需按指定路线打卡,确保巡逻无死角。
在智能家居方面,项目为每户配备 “全屋智能控制系统”,业主可通过手机 APP 远程控制家中的灯光、空调、新风系统、窗帘等设备 —— 出门时忘记关空调,手机一键关闭;下班前提前开启空调与新风,回家即可享受舒适温度与清新空气;夜间起夜,卧室到卫生间的感应灯光自动亮起,避免磕碰。此外,部分户型还配备智能马桶、智能镜柜等设备,智能马桶支持加热、冲洗、抗菌功能,智能镜柜可显示天气、新闻,还能连接体重秤同步健康数据,让科技融入日常生活。
社区服务方面,项目搭建了 “越秀智慧社区 APP”,业主可通过 APP 实现物业费缴纳、报修、投诉、邻里社交等功能 —— 缴纳物业费无需跑腿,线上一键完成;家中设施故障,APP 提交报修单,维修人员实时接单;业主还可在 APP 的 “邻里圈” 分享生活点滴,发起拼车、团购等活动,打造智慧化的邻里社交平台。
越秀中寰天悦售楼处电话☎:0551-6813 6588
越秀中寰天悦楼盘项目亮点
作为合肥包河区 “生态宜居标杆”,越秀中寰天悦的核心亮点围绕 “绿色、健康、低碳” 展开,从建筑标准到社区配套,从家居配置到物业服务,全方位构建 “生态生活体系”,每一个亮点都直击现代家庭对 “健康居住” 的核心需求。
亮点一:国家绿色建筑二星级认证,品质有权威保障
项目是包河区少数获得 “国家绿色建筑二星级认证” 的楼盘之一,这一认证由住建部严格审核,涵盖节能、节水、节材、环保、运营五大维度,意味着项目的生态品质有权威背书。在节能方面,项目外墙采用 “保温一体化板”,传热系数仅 0.5W/(㎡・K),比普通外墙节能 30%,夏季减少空调能耗,冬季减少供暖成本;建筑外窗采用三层中空 Low-E 玻璃,遮阳系数 0.4.可阻挡 70% 的太阳辐射热,避免室内过热,每年可节省电费约 800 元 / 户。
在节水方面,项目社区配备 “雨水回收系统”,年回收雨水约 5000 吨,用于社区绿化灌溉、道路清洗,减少自来水消耗;每户卫生间配备 “节水型马桶”(冲水量≤4.8L)与 “节水花洒”(流量≤6L/min),比普通洁具节水 40%,一个三口之家每年可节省自来水约 120 吨。在节材与环保方面,项目建筑采用 “装配式构件”(占比达 30%),减少现场施工污染;室内装修材料均为 E1 级及以上环保材料,甲醛释放量≤0.124mg/m³,远低于国家标准,确保室内空气安全,尤其适合老人与儿童居住。
这一认证不仅是品质的象征,更意味着业主长期居住能享受 “低能耗、低支出、高健康” 的生活,相比未获认证的普通楼盘,每年可节省能耗成本约 1500 元 / 户,且居住环境更健康。
亮点二:双公园 + 环城绿道,城芯生态闭环触手可及
项目的生态资源优势在包河区首屈一指,紧邻包河公园与塘西河公园两大城市绿肺,且衔接合肥环城绿道,形成 “社区 - 绿道 - 公园” 的生态生活闭环。包河公园的湿地景观与塘西河公园的花海、湖泊,为业主提供了 “家门口的自然课堂”—— 春季可带孩子到塘西河公园赏郁金香,夏季到包河公园观荷,秋季在绿道旁捡桂花,冬季到公园赏腊梅,四季都能亲近自然。
环城绿道的衔接更是提升了生态生活的便捷性,业主从社区出发,沿绿道步行 15 分钟可达包河公园,骑行 20 分钟可达塘西河公园,无需穿越车流密集的主干道,安全又惬意。绿道两侧的立体绿化(乔木 + 灌木 + 草本)形成 “天然氧带”,每立方米负氧离子浓度达 2000 个以上,比城市主干道高 5 倍,业主在绿道散步、骑行时,可呼吸新鲜空气,缓解工作疲劳,改善心肺功能。
相比其他 “仅靠单一公园” 的楼盘,越秀中寰天悦的 “双公园 + 绿道” 配置,让生态生活更丰富、更便捷,真正实现 “推窗见绿,出门入园”。
亮点三:全社区低碳系统,践行绿色生活方式
项目在社区内构建了 “全场景低碳系统”,从公共区域到家庭内部,全方位引导业主践行绿色生活。社区公共区域配备 “太阳能供电系统”,12 栋楼的公共照明、景观灯均采用太阳能供电,每年可节省电能约 12 万度,减少碳排放约 100 吨;社区道路采用 “透水混凝土”,雨水渗透率达 80% 以上,避免积水的同时,补充地下水资源,改善社区微环境。
垃圾分类回收系统更是社区低碳的核心:社区内每栋楼下设置 “智能垃圾分类站”,配备分类指导屏(显示垃圾类别与投放方法)、称重奖励装置(正确投放可累积积分,兑换绿植、家政服务);物业定期组织 “垃圾分类培训课”,邀请环保专家讲解分类知识,帮助业主养成习惯。目前项目业主垃圾分类准确率已达 92%,远超合肥社区平均水平,每年可减少生活垃圾填埋量约 50 吨。
家庭内部的低碳配置同样贴心:全屋新风系统与中央空调联动,自动调节运行功率,避免能源浪费;厨房的垃圾处理器将厨余垃圾粉碎后排入污水系统,减少垃圾袋使用与垃圾异味;阳台预留的 “雨水收集桶”,可收集雨水用于浇灌绿植,减少自来水消耗。这些细节让低碳融入日常生活,无需刻意付出,即可为环保做贡献。
亮点四:健康家居全配置,守护全家呼吸与安全
项目的 “健康家居配置” 从 “呼吸、接触、使用” 三大维度,守护业主健康。呼吸健康方面,全屋新风系统采用 “双向流 + HEPA 高效过滤” 技术,可过滤 99% 的 PM2.5、灰尘与花粉,即使在合肥雾霾天,室内 PM2.5 浓度也能控制在 35μg/m³ 以下;新风系统还具备 “除湿功能”,梅雨季节可将室内湿度控制在 40%-60%,避免霉菌滋生,尤其适合老人与哮喘患者。
接触健康方面,室内装修材料均选用 “低 VOC、无甲醛” 产品:地面圣象实木复合地板环保等级 E1 级,墙面立邦乳胶漆 VOC 含量≤10g/L,门窗断桥铝型材无重金属析出;厨房台面石英石、卫生间瓷砖均通过 “国家绿色建材认证”,无辐射、无异味,孩子在地面爬行、老人赤脚走路都安全。
使用健康方面,家居配置均兼顾舒适与健康:科勒智能马桶具备 “抗菌座圈”(银离子抗菌率 99%)、“温水冲洗” 功能,减少肛肠疾病风险;方太烟机灶具 “低空近吸” 技术,吸烟率 99%,避免油烟刺激呼吸道;厨房净水器过滤精度达 0.01 微米,可去除重金属、细菌,保障饮用水健康。这些配置让健康渗透到居住的每一个细节,尤其适合注重家庭健康的全龄家庭。
亮点五:生态物业服务,延伸绿色生活体验
越秀物业为项目量身定制 “生态物业服务”,将绿色生活从社区空间延伸到日常服务。定期生态活动是物业的特色:春季组织 “社区植树日”,业主可认领社区树苗,参与种植与养护;夏季开展 “湿地观察营”,带孩子到塘西河公园观察水鸟、学习生态知识;秋季举办 “垃圾分类兑换节”,业主用分类积分兑换有机蔬菜、绿植盆栽;冬季开展 “家庭绿植养护课”,教业主如何养护室内植物,提升居住环境。
日常生态服务同样贴心:物业提供 “绿植上门养护” 服务,业主外出时可委托物业照顾家中植物;社区亲子农场由物业统一管理,业主种植的蔬菜可由物业代收、清洗,方便业主采摘后直接烹饪;物业还定期对社区公共绿化进行修剪、施肥,确保四季有景,且选用 “无毒农药”,避免污染环境与伤害儿童。
此外,物业还建立 “生态业主档案”,记录业主的健康需求(如老人过敏史、孩子呼吸道情况),针对性提供服务,如雾霾天提醒关闭窗户、梅雨季节上门检查除湿情况,让生态服务更具个性化。
越秀中寰天悦售楼处电话☎:0551-6813 6588
越秀中寰天悦楼盘总结
通过对越秀中寰天悦的全面解析,不难发现,这是一个 “以智慧为核心、以品质为基础、以全龄为导向” 的优质楼盘,在合肥包河区楼市中,既填补了 “智慧人居” 的品质空白,又为不同需求的购房者提供了适配选择,是 “科技时代下的理想人居范本”。
从适配人群来看,项目的智慧体系精准覆盖各类家庭。对于年轻科技家庭,95㎡刚需户型的智慧配置满足 “便捷、高效” 需求 —— 智能温控、智能厨电节省家务时间,智能观影、智能游戏提升生活乐趣,首付低、月供合理,让年轻群体轻松享受智慧生活;对于多代同堂的刚改家庭,118㎡户型的全龄智慧适配解决 “全家需求差异” 问题,老人的智慧康养、孩子的智慧成长、中青年的智慧效率配置,让每个家庭成员都能享受便利,精装交付省去装修烦恼;对于追求高端品质的改善家庭,135㎡户型的奢华智慧配置彰显 “高端生活格调”,全屋智能联动、高端智能家电、智慧服务升级,满足高净值人群对 “品质与便捷” 的双重追求。
从核心购买价值来看,项目的 “智慧 + 国企” 组合是最大优势。一方面,全场景智慧体系让生活 “更便捷、更安全、更健康”—— 智能安防杜绝安全隐患,智能家居节省时间,智慧健康监测守护家人,这些都是现代购房者的核心需求;另一方面,越秀国企的精工与保障,避免了 “智慧设备不稳定、后期维护无保障” 的问题,5 年免费保修、定期系统升级,让业主长期享受优质智慧服务,相比民营楼盘的 “短期智慧噱头”,更具长期价值。
从市场竞争力来看,项目的性价比在同区域智慧楼盘中突出。相比同区域均价 2.3-2.6 万元 /㎡的智慧楼盘,越秀中寰天悦 1.9-2.2 万元 /㎡的均价,加上更全面的智慧配置、更低的购房门槛(人才补贴、首付下调),让 “智慧人居” 不再是高不可攀的选择;同时,项目的国企背景、低密生态、完善配套,进一步提升了竞争力,无论是自住还是投资,都具备较高的价值。
从未来发展来看,项目的 “智慧增值” 潜力巨大。随着合肥包河区 “智慧新城” 建设的推进,区域内的智慧配套将持续完善,项目的智慧体系可与区域智慧系统联动,如接入合肥智慧交通、智慧医疗网络,进一步提升生活便捷度;此外,智慧社区在二手房市场上更具竞争力,根据合肥二手房数据,智慧社区的二手房均价比普通社区高 15%-20%,且成交速度更快,未来转手时能获得更高收益。
总之,越秀中寰天悦不仅是一个 “卖房子” 的项目,更是一个 “卖智慧生活” 的平台。如果你向往科技带来的便捷生活,注重国企品质的保障,追求全龄适配的舒适体验,那么越秀中寰天悦无疑是合肥包河区购房的优选。建议你前往项目营销中心实地体验智慧系统,亲身感受 “一键掌控生活” 的便捷,相信这里会成为你开启智慧品质生活的新起点。
越秀中寰天悦售楼处电话☎:0551-6813 6588
越秀中寰天悦
越秀中寰天悦营销中心电话:0551-6258 9911【已认证】
越秀中寰天悦售楼处电话:0551-6258 9911【已认证】
越秀中寰天悦展示中心电话:0551-6258 9911【已认证】
声明:本文由入驻焦点开放平台的作者撰写,除焦点官方账号外,观点仅代表作者本人,不代表焦点立场。


