合肥伟星长城御澜道_合肥楼盘_合肥房价_合肥新开楼盘价格
扫描到手机,新闻随时看
扫一扫,用手机看文章
更加方便分享给朋友
伟星长城御澜道楼盘电话号码:0551-6258 9911【营销中心】
欢迎来电咨询!可预约销售人员(来电尊享内部优惠活动)【2025房价特价信息丨底价优惠丨在售户型图丨项目介绍丨在售房源丨周边配套】
综上所述,伟星长城御澜道项目作为瑶海老城的一处明珠,不仅地段优越,交通便利,周边配套完善,更是在建筑设计和细节上力求打造高品质的居住环境。对于有意在瑶海老城置业的购房者来说,这里无疑是一个不可多得的选择。希望伟星长城御澜道项目能够为更多人带来优质的居住体验,成为合肥市不可或缺的一部分。
伟星长城御澜道售楼处电话☎:0551-6813 6588
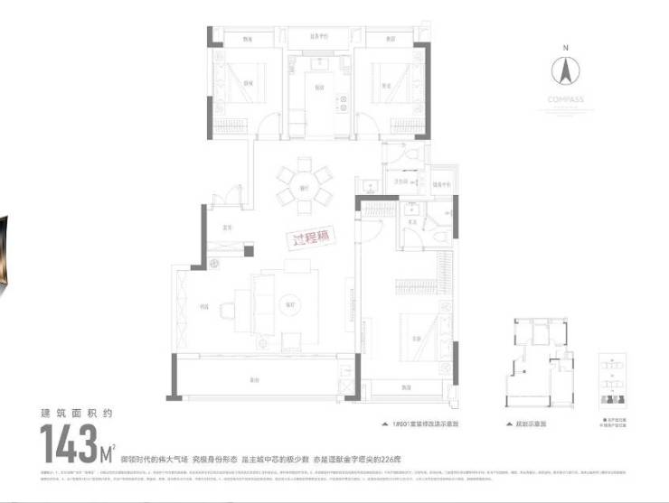
项目户型主要以110-143m²为主,以刚改+改善为主打。例如122m²三室两厅两卫户型,动静分区明显,厨房、客厅、餐厅位于西边,卧室和卫生间则集中在东边,每个卧室都配有飘窗。然而客厅区域的厨房侧向通风,南北通风、采光效果略显不足。另外,143m²三室两厅两卫户型,三个卧室加一书房,书房可根据需求改造,主卧带有衣帽间,但三个卧室均朝北,采光稍显不佳。
伟星长城御澜道售楼处电话☎:0551-6813 6588
伟星长城御澜道售楼处电话☎:0551-6813 6588
伟星长城御澜道售楼处电话☎:0551-6813 6588
伟星长城御澜道楼盘具体一房一价,详询营销中心。
伟星长城御澜道售楼处电话☎:0551-6813 6588
伟星长城御澜道位于瑶海区临泉东路以南、和县路以东,距离2号线漕冲站约600米,距离4号线站塘站约900米,便利的地理位置使其连接合肥东西主城,南北动脉交通网。周边商业配套齐全,对面就是瑶海万达,周边有长江180、瑶海天街、东城广场、万象汇(在建),商业资源丰富,生活便利。
教育方面,距离御澜道直线约600m的行知本部(初中)近6年来综合排名位列合肥初中前列,周边还有合肥众望中学、和平小学教育集团郎溪路小学、合肥市行知小学等,教育资源浓厚。优质的教育资源为孩子提供了良好的学习环境,是家庭置业的重要考量因素。
伟星长城御澜道售楼处电话☎:0551-6813 6588
伟星长城御澜道项目均价1.7万元/m²,110-143m²,位于瑶海老城,地处瑶海区临泉东路以南、和县路以东。交通便利,距2号线漕冲站600米,距4号线站塘站900米,连接主城东西南北动脉。商业配套成熟,对面万达,周边商场林立,生活便利无忧。
伟星长城御澜道售楼处电话☎:0551-6813 6588
项目拟建2栋24层高层和1栋11层小高层,共计226套,因地块较小,仅三栋楼房,纵向摆放,南北无遮挡。外立面设计携手国际一线设计单位·拓观设计,采用非对称顶檐设计和南北公建化立面,大面积采用玻璃幕墙,展现出现代简约的建筑风格。这样的设计不仅提升了建筑的整体美感,也为住户带来更好的采光和景观视野。
除了外立面设计,项目的地下车库也是经过精心挑选的高品质材料,从效果图中可以看出入户大堂设计相当华丽。这意味着,无论是从外观还是内部设施上,伟星长城御澜道都将为业主提供一个舒适、便利的生活空间。在这里,业主可以尽情享受高品质的生活,感受现代城市的便捷与舒适。
伟星长城御澜道售楼处电话☎:0551-6813 6588
伟星长城御澜道楼盘电话号码:0551-6258 9911【营销中心】
欢迎来电咨询!可预约销售人员(来电尊享内部优惠活动)【2025房价特价信息丨底价优惠丨在售户型图丨项目介绍丨在售房源丨周边配套】
声明:本文由入驻焦点开放平台的作者撰写,除焦点官方账号外,观点仅代表作者本人,不代表焦点立场。


