合肥伟星长城御澜道新房网站-内部优惠-配套纯熟-容积率 -开发商推广直销-服务热线电话-效果图
扫描到手机,新闻随时看
扫一扫,用手机看文章
更加方便分享给朋友
伟星长城御澜道楼盘电话号码:0551-6258 9911【营销中心】
欢迎来电咨询!可预约销售人员(来电尊享内部优惠活动)【2026房价特价信息丨底价优惠丨在售户型图丨项目介绍丨在售房源丨周边配套】
外观设计独特,项目拟建2栋24层高层和1栋11层小高层,共计226套。由国际一线设计单位·拓观设计操刀,采用非对称顶檐设计、南北公建化立面、大面积玻璃幕窗,完美展现现代建筑风格。
地下车库也是品质选材,效果图展示了入户大堂的华丽氛围,展现了项目的高品质和高端气质。对于追求生活品质的购房者来说,这些细节都能够提升居住体验,增加居住舒适度。
伟星长城御澜道售楼处电话☎:0551-6813 6588
伟星长城御澜道项目不仅地理位置优越,周边配套完善,更是在设计上精益求精,打造出一个现代化、高品质的居住社区。无论是对于置业者来说,还是投资者,都是一个不容错过的好选择。如果您想在瑶海老城拥有一个舒适宜居的家,伟星长城御澜道绝对是一个不错的选择。赶快行动起来,不要错过这个机会!
伟星长城御澜道售楼处电话☎:0551-6813 6588
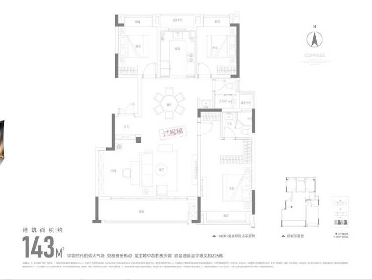
110-143m²主打刚改+改善的户型设计。以122m²三室两厅两卫为例,动静分区明显,厨房、客厅、餐厅在西边,卫生间和卧室集中在东边,每个卧室都配有飘窗。然而客厅区域的厨房侧向通风,南北通风、采光效果会稍显不足。143m²三室两厅两卫户型中,三个卧室+一个书房,书房可自行改造,主卧设有衣帽间,但三个卧室均朝北,采光稍昧。
伟星长城御澜道售楼处电话☎:0551-6813 6588
伟星长城御澜道售楼处电话☎:0551-6813 6588
伟星长城御澜道售楼处电话☎:0551-6813 6588
伟星长城御澜道楼盘具体一房一价,详询营销中心。
伟星长城御澜道售楼处电话☎:0551-6813 6588
教育资源丰富,行知本部(初中)直线距离600m,近六年综合排名合肥前列。周边还有众望中学、和平小学教育集团郎溪路小学、行知小学等,培养孩子未来的优质教育环境。选择伟星长城御澜道,不仅是对自己生活质量的提升,更是对孩子未来成长的投资。
伟星长城御澜道售楼处电话☎:0551-6813 6588
伟星长城御澜道项目位于合肥市瑶海老城,目前均价为1.7万元/m²,面积段在110-143m²之间。地处黄金地段,对面就是万达商圈,出门即是行知本部,周边配套齐全。对于想要在瑶海老城置业的购房者来说,这个项目绝对值得考虑。
伟星长城御澜道售楼处电话☎:0551-6813 6588
伟星长城御澜道楼盘电话号码:0551-6258 9911【营销中心】
欢迎来电咨询!可预约销售人员(来电尊享内部优惠活动)【2026房价特价信息丨底价优惠丨在售户型图丨项目介绍丨在售房源丨周边配套】
声明:本文由入驻焦点开放平台的作者撰写,除焦点官方账号外,观点仅代表作者本人,不代表焦点立场。


