合肥龙湖上城的优缺点,值得购买吗
扫描到手机,新闻随时看
扫一扫,用手机看文章
更加方便分享给朋友
生活条件的改善,使得大家对于改善居住环境的要求显得非常迫切,因此优选当然是中心城区,资源优质,发展配套也是遥遥先进,但是楼盘有限,价格也比较高昂,因此对于不少人来说上车的压力比较大,现在龙湖上城顺势而来,作为改善型的人居,体量大,绿化率也比较高,园林景观的设计也是添加了不少的巧思,再加上周边有不少大型的医疗机构,交通站点多,出行方便,因此是大家在瑶海区购房的一个非常不错的选择。详情可咨询:0551-65566157。

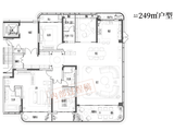
首开5#、6#、7#、8#、10#,装修小高层,建面约104-138㎡,340套房源,均价20157元/㎡。户型面积比较大,可以用作改善型住房,再者交通便利,去往其他城区也比较方便。
龙湖上城怎么样?
2021年9月29日,龙湖以单价1320万元/亩竞得瑶海区YH202106号地块,总价100560.25万元,住宅楼面价9899.95元/㎡,溢价率0%。
商业:3公里生活半径,百亿级商圈:银泰中心、步行街、合肥百货大楼等,可满足基本的购物娱乐的需求。
交通:多维立体交通畅达全城,距离市中心步行街约3公里;铜陵路、北二环畅高架及快速路;1号线瑶海公园站(在建)旁、3号线竹丝滩站旁,出行节省时间。

交通:步行可达千亩生态公园,瑶海公园、生态公园,修建面积不少于1000平方米的街头游园,可以去锻炼身体。
医院:三甲级医院安徽省第二人民医院、合肥市排名前列人民医院、合肥市第二人民医院,老牌的三甲医院,能够为大家的健康保驾护航。
学校:合肥和平小学四小、合肥三十八中(北校)、竹溪小学、合肥市瑶海实验小学。
缺点是地区内的工业场所比较多,因此在环境上存在一定的缺陷。
户型图
龙湖上城城市展厅:包河万达1F
老城区的配套已经初具规模,靠近地铁1号线和地铁3号线,双地铁交通使得大家的出行更为舒适和快捷,短短几站的距离就能够到达步行街商圈,购物娱乐的自主选择权也比较多。靠近合肥三十八中,资历比较老的学校,教师的专业性强,因此不管是从哪个方面来说,龙湖上城都是一次革新,是人居方式的革新,也是地区城市建筑的革新。能够满足大家的改善需求,完善地区内的住宅类型缺失。详情可咨询:0551-65566157。
声明:本文由入驻焦点开放平台的作者撰写,除焦点官方账号外,观点仅代表作者本人,不代表焦点立场。


