包河区滨投置地璟玺周边生活配套有哪些
扫描到手机,新闻随时看
扫一扫,用手机看文章
更加方便分享给朋友
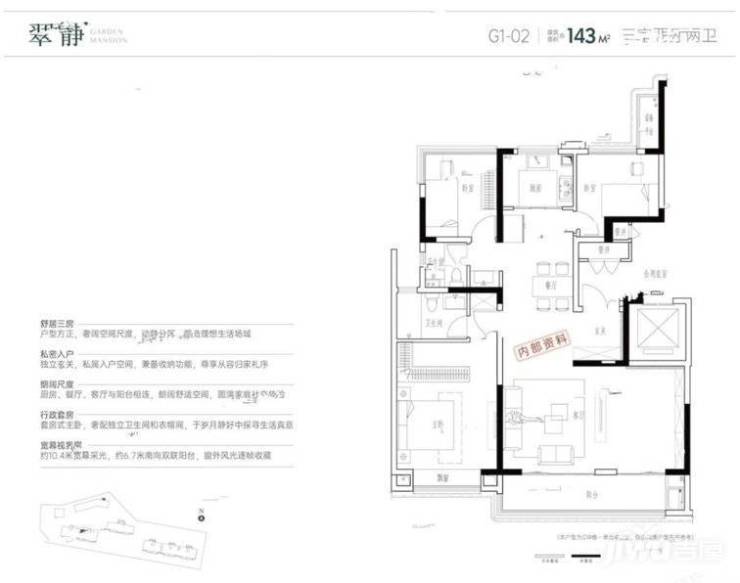
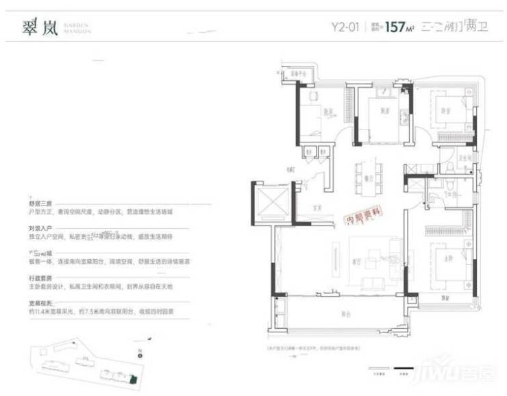
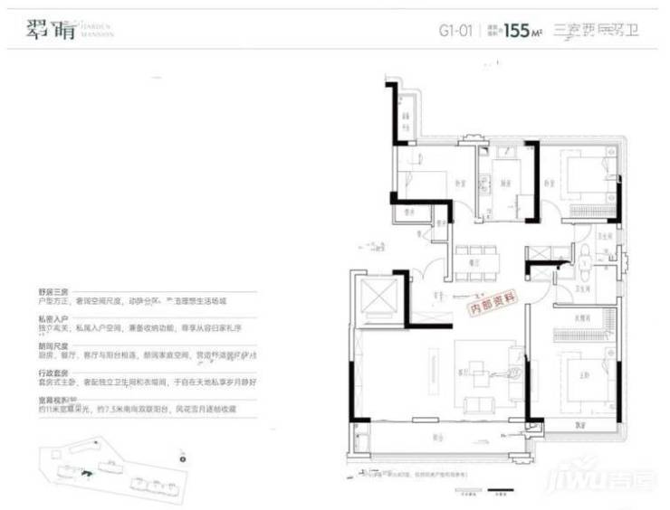
包河区滨投置地璟玺规划户型面积有142、155、157、173平,定位高端改善,户型布局合理,户型方正,奢阔空间尺度,留给生活更多活动与交流空间,餐客一体,连接南向宽景阳台,主卧套房设计,配套独立的卫生间与衣帽间,独立入户空间,保障生活的私密性。
营销咨询电话:0551-68111601
相比较新兴板块,老城区有着诸多优势,例如地理位置优越,生活配套齐全醇熟,居住舒适,生活方便,但老城区土地供应量有限,新盘资源少,很多城市客群,想在老城区买套改善住宅,可能不是手上没资金,而是没新房可选。
由滨投与置地联合打造的滨投置地璟玺项目,便给与很多不想更换区域的改善客群一个优质的选择。滨投置地璟玺是包河区城市更新项目之一,且是滨投城市更新的开篇之作,有着重要的战略意义,项目秉持着滨投与置地两大品牌房企卓越匠心,于包河主城区之上,为合肥打造一个全新的未来生活人居范本。
滨投置地璟玺项目具体位于徽州大道与望江路交口,规划拟建三栋楼,规划户型面积142-173平,纯粹的改善人居住宅,小区整体容积率1.8,绿化率40%,毛坯交付,是一个低密生态宜居,且性价比不错的住宅产品。
项目地处包河主城区,周边坐拥丰富的生活配套,临近罍街与罍街公园,附近小区林立,人居氛围浓厚,社区商铺众多,商业氛围浓厚,时刻感受满满的生活烟火气,附近还有百大购物中心、漫乐城购物中心等大型购物中心,体验一站式吃喝玩乐购,教育资源上,项目附近有卫岗小学、青年小学、阳光中学、合肥一中包河分校、合肥六十五中,教育资源丰富优质,孩子上学无忧。
医疗配套上,项目距离安徽省儿童医院不到1公里,三公里范围内还有安医大一附院、合肥市第三人民医院,医疗资源齐全,日常看病就医方便,全力守护家人健康。交通出行上,滨投置地璟玺项目附近有徽州大道、望江路、青年路等多条主干道,四通八达,交通便捷,轻松畅达全城。
营销咨询电话:0551-68111601
目前滨投置地璟玺营销展厅已经开放,并开启验资,即将入市,主城区改善客群可重点关注这个项目,更多详情欢迎致电咨询。
声明:本文由入驻焦点开放平台的作者撰写,除焦点官方账号外,观点仅代表作者本人,不代表焦点立场。


