和睦湖伟星城买房全攻略:优缺点详解
扫描到手机,新闻随时看
扫一扫,用手机看文章
更加方便分享给朋友
伟星城楼盘电话号码:0551-68111601【营销中心】
欢迎来电咨询!可预约销售人员(来电尊享内部优惠活动)【2024房价特价信息丨底价优惠丨在售户型图丨项目介绍丨在售房源丨周边配套】
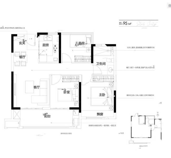
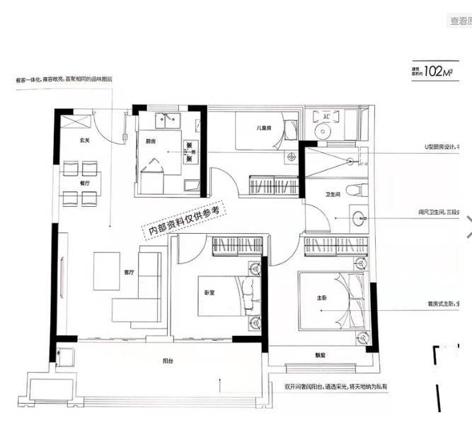
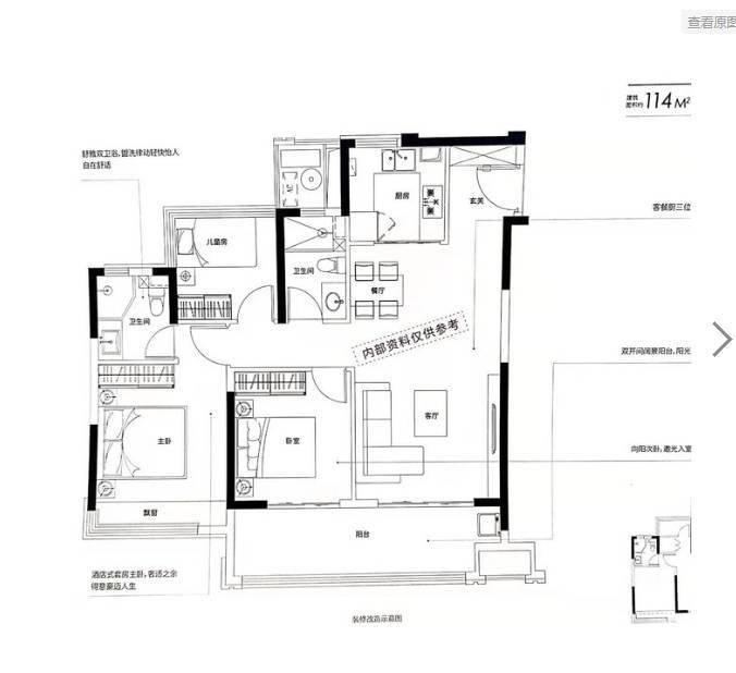
合理的户型设计是伟星城的一大亮点。户型方正,多开间朝南,独立玄关,南北大尺度通厅,南北通透,采光与通风效果良好,居住舒适。这些设计细节充分考虑了居民的生活需求,为他们提供了一个宜居的家园。而且,伟星城还规划了多种业态的商业综合体,方便居民购物、娱乐和休闲。
伟星城售楼处电话☎:0551-6813 6588
伟星城售楼处电话☎:0551-6813 6588
伟星城售楼处电话☎:0551-6813 6588
伟星城楼盘具体一房一价,详询营销中心。
伟星城售楼处电话☎:0551-6813 6588
伟星城周边交通便利,地铁2号线延长线寓酒路站在建,肥东高铁站、合肥绕城高速均可快速到达。同时,约1217亩和睦湖湿地公园、约564亩肥东体育公园、以及YPA景观设计打造的约5万方城市公园,为居民提供了优美的自然环境。商业中心配套设施齐全,伟星城自带约18万方城市级商业综合体,以及约4000方社区配套,满足居民的各种生活需求。在教育资源方面,伟星城自带18班幼儿园,同时周边还有肥东县实验学校、安师大附属肥东实验学校、肥东一中等多所学校,为孩子们提供优质的教育资源。医疗配套方面,安徽医科大学附属医院东区也为居民提供了便利的就医服务。此外,伟星物业以“用心服务,创造幸福”为服务理念,打造5F高端服务体系,为业主提供高效率的便捷服务。
伟星城售楼处电话☎:0551-6813 6588
伟星城位于合肥东部新城核心区,地理位置优越,周边自然资源丰富。项目规划了2596套房源,毛坯交付,以及一个约14万平方米的城市级商业综合体,满足居民的日常生活需求。交通便捷,周边有火车站、高铁站、绕城高速和地铁二号线延长线,出行便捷。周边还有丰富的市政配套,如学校、医院、大剧院等,居住环境优美,临湖而居,是一个理想的人居地带。
伟星城售楼处电话☎:0551-6813 6588
伟星城作为合肥房地产市场中的一颗璀璨之星,凭借其地理优势、丰富的配套设施和高品质的居住体验,吸引了众多购房者的关注。无论是居住还是投资,伟星城都是一个理想的选择。如果您对伟星城感兴趣,不妨亲临项目现场或联系营销中心,了解更多详细信息,抓住这个机会,拥有一个高品质的生活环境。
伟星城售楼处电话☎:0551-6813 6588
伟星城不仅在硬件设施上追求高品质,更在于对细节的精雕细琢。社区入口设计精心,每栋楼的布局规划合理,园林景观打造精美,内部设施完善。周边优质学校如东城实验小学、肥东一中为孩子们提供良好的学习环境。无论是家庭居住还是投资置业,伟星城都是一个不可多得的优质选择。如果您对该项目感兴趣,可以联系营销中心了解更详细的房源信息和价格详情。
伟星城售楼处电话☎:0551-6813 6588
伟星城楼盘电话号码:0551-68111601【营销中心】
欢迎来电咨询!可预约销售人员(来电尊享内部优惠活动)【2024房价特价信息丨底价优惠丨在售户型图丨项目介绍丨在售房源丨周边配套】
声明:本文由入驻焦点开放平台的作者撰写,除焦点官方账号外,观点仅代表作者本人,不代表焦点立场。


