合肥越秀中寰天悦_越秀中寰天悦户型图_地址_越秀中寰天悦房价
扫描到手机,新闻随时看
扫一扫,用手机看文章
更加方便分享给朋友
越秀中寰天悦地理位置,更多项目详情请拨打楼盘电话:0551-6258 9911【预约热线】欢迎来电咨询!
越秀中寰天悦是越秀打造的纯改善型住宅,均价约为24800元/㎡,188㎡明星产品价格在500万左右,二环内性价比很高。项目位于马鞍山路板块,周边教育资源丰富,适合关注改善型住宅的购房者。
越秀中寰天悦售楼处电话☎:0551-6813 6588
越秀中寰天悦项目位于包河区望江东路与至德路交叉口东北角,紧邻包河主城区,处于二环内,周边拥有淝河板块醇熟的配套设施,交通便捷。项目周边主要交通道路有东二环路、望江东路等,同时还有多条地铁线路经过,包括1号线(朱岗站)、4号线(尧渡河路站)、6号线(在建),出行非常方便。此外,项目周边教育资源丰富,包括距离两公里左右的包河区外国语第二小学和三公里左右的合肥第四十八中望湖校区。四十八中师资雄厚,教育水平优秀,学区房备受瞩目。在淝河板块内,医疗资源也十分充足,拥有市三院、市二院等多家三甲医院,项目三公里范围内还有安徽省立儿童医院本院。此外,项目毗邻骆岗公园,周边还有中央公园科创CBD资源,以及包公园、望湖公园等。
越秀中寰天悦售楼处电话☎:0551-6813 6588
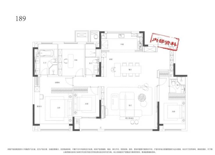
小高大平层的设计是越秀中寰天悦的特色之一,149㎡的户型虽然是最小户型,但也做了四室布局,空间利用度很高。主卧套房设计,可设衣帽间,满足购房者对私密性和舒适度的需求。而188㎡的户型更是项目的亮点,入户十字玄关设计,卧房布局在前面,主次卧都是套房设计,主卧衣帽间和卫生间空间很大,符合改善型住宅的基调。15米端厅,南边是落地窗,客厅活动区域设计合理,让居住者享受舒适的生活。
越秀中寰天悦售楼处电话☎:0551-6813 6588
越秀中寰天悦售楼处电话☎:0551-6813 6588
越秀中寰天悦售楼处电话☎:0551-6813 6588
越秀中寰天悦项目有优惠政策,想要具体了解的,可以电话咨询,或者到营销中心现场咨询。
越秀中寰天悦售楼处电话☎:0551-6813 6588
项目规划建设424户,建筑面积70195.02㎡,容积率2.20,绿化率40%,户型以四居室为主,售价约27390元/㎡,精装交付。小区负一层设有1300㎡独立下沉式会所,设施齐全,包括品茗区、宴客厅、棋牌室、小型KTV和超大健身区域,满足业主休闲娱乐需求。
会所外景观区域设有戏水池,夏日可供小朋友嬉水玩耍。各楼栋一楼大厅设有不同主题空间,满足家庭成员不同需求,包括儿童画画区域、女性插花、烹茶区域等。越秀中寰天悦为业主提供丰富的活动空间,打造舒适宜居的社区环境。
越秀中寰天悦售楼处电话☎:0551-6813 6588
越秀中寰天悦作为一处位于包河区的改善型住宅项目,不仅拥有优越的地理位置和高性价比的产品,还提供了丰富的周边配套和便利的生活环境。对于关注改善型住宅的购房者来说,越秀中寰天悦无疑是一个不错的选择,能够满足他们对于舒适生活的需求,值得一看。
越秀中寰天悦售楼处电话☎:0551-6813 6588
越秀中寰天悦地理位置,更多项目详情请拨打楼盘电话:0551-6258 9911【预约热线】欢迎来电咨询!
声明:本文由入驻焦点开放平台的作者撰写,除焦点官方账号外,观点仅代表作者本人,不代表焦点立场。


