越秀中寰天悦楼盘怎么样-优惠
扫描到手机,新闻随时看
扫一扫,用手机看文章
更加方便分享给朋友
越秀中寰天悦地理位置,更多项目详情请拨打楼盘电话:0551-6258 9911【预约热线】欢迎来电咨询!
越秀中寰天悦是越秀打造的纯改善型住宅,项目位于包河区望江东路与至德路交叉口东北角,紧邻包河主城区,二环内。小高大平层户型面积段在149-189㎡,均价约为24800元/㎡,精装交付,188㎡的明星产品大约在500万上下,性价比很高。149㎡的四居室产品空间利用度高,适合关注改善型住宅的购房者。
越秀中寰天悦售楼处电话☎:0551-6813 6588
项目位于包河区望江东路与至德路交叉口东北角,紧邻包河主城区,处于二环内,周边淝河板块配套醇熟。项目周边交通便利,有城市主干道东二环路、望江东路等,同时也靠近轨道交通1号线、4号线、6号线等线路,出行十分方便。项目周边有多所优质学校,如包河区外国语第二小学、合肥第四十八中望湖校区,以及多家三甲医院,生活便利且舒适。
除了优越的教育资源和医疗配套外,越秀中寰天悦周边还有丰富的商业配套。小区对面设有大型超市,便利居民日常购物。三公里内有知名的美食街和购物中心,如罍街、宁国路龙虾美食街、包河万象汇等,满足了居民的各种消费需求。在这里,居民可以尽情享受便捷的生活方式,感受城市的便利与舒适。
越秀中寰天悦售楼处电话☎:0551-6813 6588
尽管是越秀中寰天悦项目中最小的户型,149㎡的四室布局设计却十分合理。标准四室两厅两卫的设计,端厅布局使活动区域更加宽敞,主卧套房设计可设衣帽间,提高私密性和舒适度。即使是较小的户型,也能满足家庭的居住需求,为购房者带来更多选择。
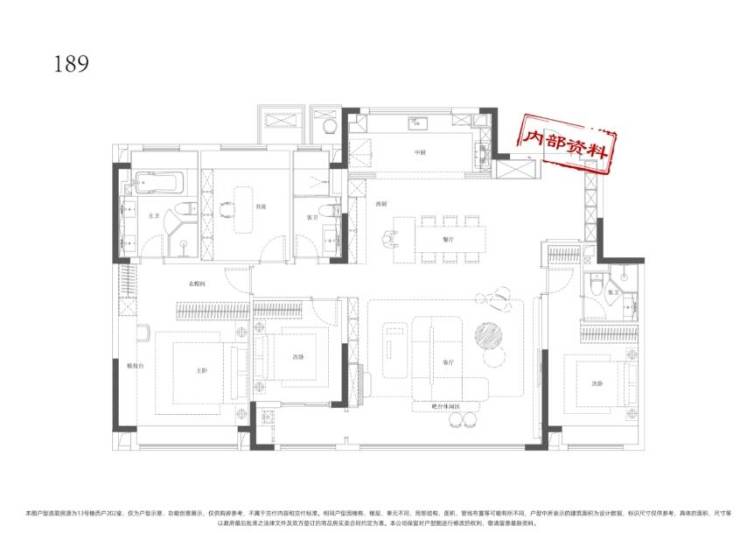
188㎡的户型是越秀中寰天悦项目的亮点之一。入户十字玄关设计,两侧可设置鞋帽柜,注重私密性。卧室布局在前,主卧和次卧均为套房设计,主卧的衣帽间和卫生间空间宽敞舒适。客厅活动区域宽敞明亮,15米端厅设计,南侧为落地窗,采光效果良好。整体设计符合改善型住宅的基调,为居住者带来舒适而宜居的生活环境。
越秀中寰天悦售楼处电话☎:0551-6813 6588
越秀中寰天悦售楼处电话☎:0551-6813 6588
越秀中寰天悦售楼处电话☎:0551-6813 6588
越秀中寰天悦楼盘具体一房一价,详询营销中心。
越秀中寰天悦售楼处电话☎:0551-6813 6588
项目规划建设424户,占地面积达31906.83㎡,建筑面积为70195.02㎡,容积率2.20,绿化率40%。户型面积段在149-189㎡以四居室为主,目前在售均价约为27390元/㎡,是纯粹的改善型小高大平层,精装交付。1300㎡的大会所是该项目的一大特色,提供丰富多样的活动区域,包括品茗的方桌、宴客的圆桌,棋牌室、小型KTV等娱乐场所,以及超大的健身区域,满足居民的休闲娱乐和健身需求。
会所外的景观区域提供了欣赏休闲的空间,还设有浅水池供小朋友玩耍。除了大会所,各楼栋的一楼大厅也打造成主题空间,覆盖儿童、女性、长者、运动、社交功能,满足家庭成员的不同需求。儿童主题区域有画画区域、积木区域和学堂,女性主题则包括插花、烹茶的区域以及聊天沙龙,为居民提供丰富多彩的活动空间。
越秀中寰天悦售楼处电话☎:0551-6813 6588
越秀中寰天悦作为越秀打造的纯改善型住宅,以小高大平层户型、优质的教育资源、便捷的交通和完善的商业配套,吸引了众多购房者的关注。其位于包河区二环内的黄金地段,价格相对周边略高,但仍是性价比很高的选择。对于关注改善型住宅的购房者来说,越秀中寰天悦不失为一个值得考虑的购房选项。
越秀中寰天悦售楼处电话☎:0551-6813 6588
越秀中寰天悦
越秀中寰天悦营销中心电话:0551-6258 9911【已认证】
越秀中寰天悦售楼处电话:0551-6258 9911【已认证】
越秀中寰天悦展示中心电话:0551-6258 9911【已认证】
声明:本文由入驻焦点开放平台的作者撰写,除焦点官方账号外,观点仅代表作者本人,不代表焦点立场。


