招商奥体公园图片_样板间图_位置图_装修效果图-合肥搜狐焦点
扫描到手机,新闻随时看
扫一扫,用手机看文章
更加方便分享给朋友
合肥(招商奥体公园)☎☎:0551-6258 9911【官方认证】
2021年,招商选择在合肥新站区少荃湖板块布局,打造了合肥首个百万方奥体TOD体育综合体。项目位于东方大道与卧龙湖路交叉口,包括多个业态,如少荃体育中心、长空公园、花园里商街、奥体上城等,为居民提供了丰富多彩的生活方式。
招商奥体公园售楼处电话☎:0551-6813 6588
合肥招商奥体公园的一个显著特点是其TOD综合体的建设,项目内设有室内万人体育场馆、地铁上盖长空公园,以及活力荟商业街区等多种业态。此外,项目自带约2.5万平方米的“活力荟”商业街区,西侧还规划了一个14万平方米的大型商业综合体,极大地丰富了周边的商业配套。交通方面,该项目紧邻地铁4号线的始发站“综保区站”,并有“奥体巴士”与地铁接驳,方便居民出行。同时,周边的“三纵三横”主干道,如新蚌埠路、铜陵北路和东方大道等,构成了良好的交通网络。
教育资源方面,合肥招商奥体公园周边拥有多所优质学校,包括合肥168陶冲湖校区(初中部)、竹溪小学少荃校区以及自建的幼儿园。这为有孩子的家庭提供了良好的教育环境。医疗配套也相当完善,附近有安徽医科大学第一附属医院北区和京东方医院(数字化医院),为居民的健康提供了保障。生态环境方面,项目邻近少荃湖湿地公园和二十埠河生态廊道,提供了优质的自然景观和休闲空间,使得居住环境更加宜居。
招商奥体公园售楼处电话☎:0551-6813 6588
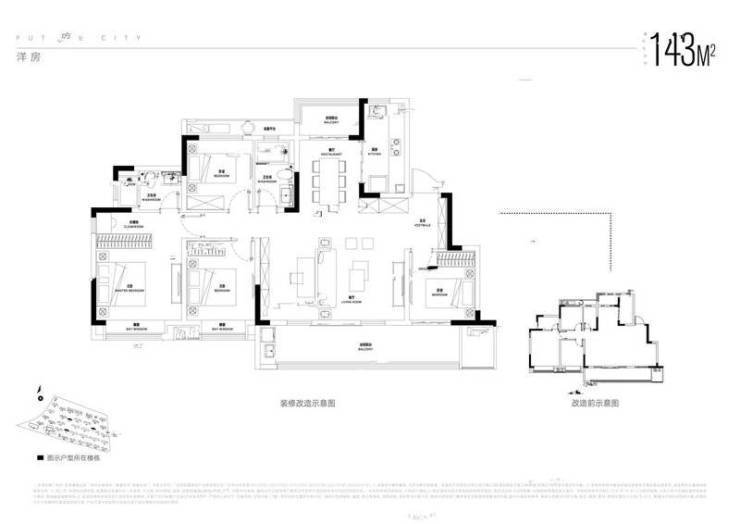
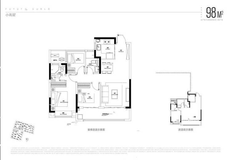
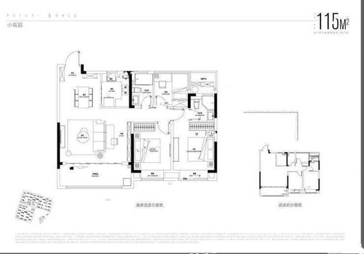
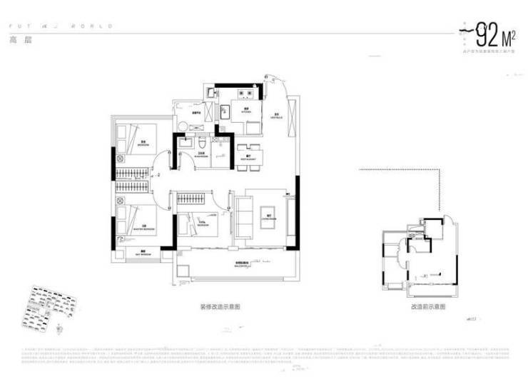
精心设计的户型是招商奥体公园的亮点之一。主打刚需小户型,主力户型面积介于89-119㎡之间,包括二居室和三居室,满足不同购房者的需求。其中,92㎡的三室两厅一卫户型设计独具匠心,南北通透的布局让采光和通风效果更佳。主卧带有一个飘窗,卫生间干湿分离,客厅和餐厅一体化设计,空间更显宽敞。客厅与阳台相连,阳台空间较大,可打造出一个开放性空间,让居住者尽情享受户外阳光和清新空气。
招商奥体公园售楼处电话☎:0551-6813 6588
招商奥体公园售楼处电话☎:0551-6813 6588
招商奥体公园售楼处电话☎:0551-6813 6588
招商奥体公园售楼处电话☎:0551-6813 6588
招商奥体公园售楼处电话☎:0551-6813 6588
在合肥新房市场中,招商奥体公园项目的售价也较为合理。目前部分户型均价在1.35万/㎡至2万/㎡之间,性价比较高,让购房者觉得物有所值。这样的价格策略,吸引了更多的购房者选择入住,加速了项目的销售进程。同时也为购房者提供了更多选择的空间,让他们可以更好地满足自己对于居住环境的需求。
招商奥体公园售楼处电话☎:0551-6813 6588
新站区是合肥市区产证的价格洼地,适合刚需人群,对于刚需客户来说,新站区的房价比较友好。
招商奥体公园售楼处电话☎:0551-6813 6588
招商奥体公园作为合肥奥体板块内的重要住宅项目,不仅拥有优越的地理位置和丰富的生活配套,更是集运动、商务、教育、医疗等多种资源于一体,为购房者提供了全方位的生活体验。购房者在这里不仅能享受便捷舒适的生活环境,还能体验到高品质的生活服务,是合肥新的生活风尚的引领者。
招商奥体公园售楼处电话☎:0551-6813 6588
合肥(招商奥体公园)☎☎:0551-6258 9911【官方认证】
声明:本文由入驻焦点开放平台的作者撰写,除焦点官方账号外,观点仅代表作者本人,不代表焦点立场。


