伟星长城御澜道-合肥新房价格-精选笔记
扫描到手机,新闻随时看
扫一扫,用手机看文章
更加方便分享给朋友
伟星长城御澜道楼盘电话号码:0551-6258 9911【营销中心】
欢迎来电咨询!可预约销售人员(来电尊享内部优惠活动)【2024房价特价信息丨底价优惠丨在售户型图丨项目介绍丨在售房源丨周边配套】
伟星长城御澜道位于瑶海区临泉东路以南、和县路以东,距离2号线漕冲站约600米,距离4号线站塘站约900米,便利的地理位置使其连接合肥东西主城,南北动脉交通网。周边商业配套齐全,对面就是瑶海万达,周边有长江180、瑶海天街、东城广场、万象汇(在建),商业资源丰富,生活便利。
教育方面,距离御澜道直线约600m的行知本部(初中)近6年来综合排名位列合肥初中前列,周边还有合肥众望中学、和平小学教育集团郎溪路小学、合肥市行知小学等,教育资源浓厚。优质的教育资源为孩子提供了良好的学习环境,是家庭置业的重要考量因素。
伟星长城御澜道售楼处电话☎:0551-6813 6588
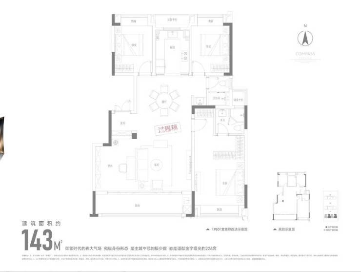
110-143m²主打刚改+改善户型,122m²三室两厅两卫,动静分区明显,卧室配有飘窗,但南北通风不佳;143m²三室两厅两卫,三个卧室+一个书房,主卧带衣帽间,但卧室采光较差。购房者可以根据自身需求选择合适的户型,考虑采光通风等因素。
伟星长城御澜道售楼处电话☎:0551-6813 6588
伟星长城御澜道售楼处电话☎:0551-6813 6588
伟星长城御澜道售楼处电话☎:0551-6813 6588
伟星长城御澜道项目拟建2栋24层高层和1栋11层小高层,总共仅有三栋楼,因为地块较小,楼栋纵向摆放,南北无遮挡。在建筑外立面设计上,项目与国际一线设计单位·拓观设计合作,采用了非对称顶檐设计、南北公建化立面和大面积玻璃幕墙,营造出现代时尚的建筑风格。这种设计不仅增加了建筑的美感,也为居民提供了更加宽敞明亮的居住空间。
除了建筑外观的设计精良,伟星长城御澜道项目的品质也体现在细节之处。地下车库选材精良,入户大堂设计华丽,让居民在回家的那一刻就能感受到尊贵和舒适。在配套设施方面,项目周边商业设施齐全,生活便利。而且,对面就是万达商场,购物、餐饮、娱乐等各种需求都可以得到满足。行知本部的设立更是为家庭提供了优质的教育资源,让孩子们能够在优越的环境中学习成长。
伟星长城御澜道售楼处电话☎:0551-6813 6588
伟星长城御澜道楼盘具体一房一价,详询营销中心。
伟星长城御澜道售楼处电话☎:0551-6813 6588
伟星长城御澜道项目不仅地理位置优越,周边配套完善,更是在设计上精益求精,打造出一个现代化、高品质的居住社区。无论是对于置业者来说,还是投资者,都是一个不容错过的好选择。如果您想在瑶海老城拥有一个舒适宜居的家,伟星长城御澜道绝对是一个不错的选择。赶快行动起来,不要错过这个机会!
伟星长城御澜道售楼处电话☎:0551-6813 6588
伟星长城御澜道项目位于合肥市瑶海老城,目前均价为1.7万元/m²,面积段在110-143m²之间。地处黄金地段,对面就是万达商圈,出门即是行知本部,周边配套齐全。对于想要在瑶海老城置业的购房者来说,这个项目绝对值得考虑。
伟星长城御澜道售楼处电话☎:0551-6813 6588
伟星长城御澜道楼盘电话号码:0551-6258 9911【营销中心】
欢迎来电咨询!可预约销售人员(来电尊享内部优惠活动)【2024房价特价信息丨底价优惠丨在售户型图丨项目介绍丨在售房源丨周边配套】
声明:本文由入驻焦点开放平台的作者撰写,除焦点官方账号外,观点仅代表作者本人,不代表焦点立场。


