包河越秀中寰天悦:“入口”是门面,是吸引,亦是风景,引人入胜!
扫描到手机,新闻随时看
扫一扫,用手机看文章
更加方便分享给朋友
合肥(越秀中寰天悦)☎☎:0551-6258 9911【官方认证】
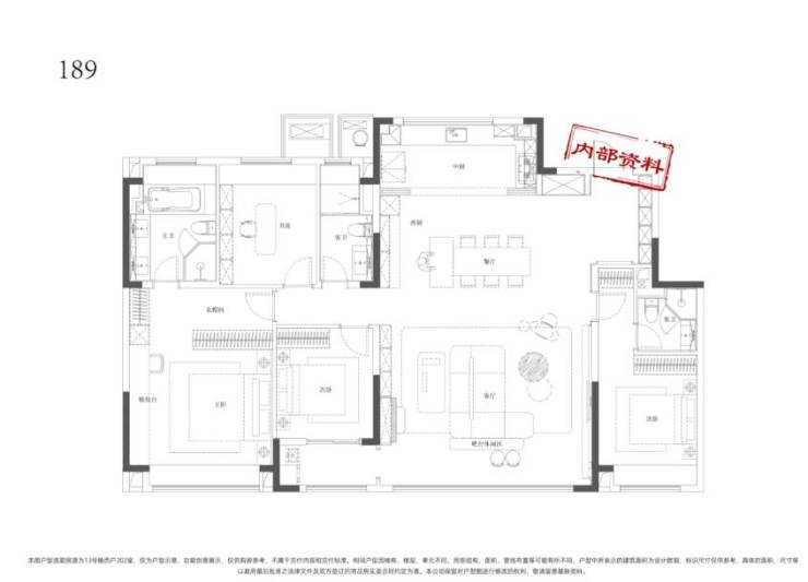
越秀中寰天悦楼盘户型解析
越秀中寰天悦的户型设计,以 “高性价比、实用性强” 为核心,95㎡刚需三居室、118㎡刚改四居室、135㎡改善型四居室,均围绕 “空间利用率最大化、居住需求适配化” 展开,没有多余的 “溢价设计”,每一寸空间都服务于日常居住,完美契合刚需、刚改家庭的核心需求。
95㎡三室两厅一卫户型:刚需首选,小空间大实用
该户型是项目的 “刚需爆款”,专为年轻夫妻、三口之家设计,95㎡的空间内实现 “三室两厅一卫” 的全功能布局,无空间浪费,总价可控,是 “安家主城芯” 的理想选择。
户型采用 “三开间朝南” 经典布局,南向面宽达 9.2 米,客厅与两个卧室均朝南,且每个朝南房间都配备 “全景飘窗”(宽 1.2 米,深 0.6 米),飘窗不计入产权面积,相当于 “赠送面积”,业主可将飘窗改造成阅读角、储物区,提升空间利用率。客厅面积约 22㎡,与餐厅呈 “餐客一体” 设计,连通 3.6 米宽的景观阳台,形成开阔的公共活动空间 —— 业主可在客厅摆放 L 型沙发(建议尺寸 2.8 米 ×1.8 米)与 65 寸电视,满足日常观影、会客需求;餐厅区域可放置 4 人餐桌(建议尺寸 1.2 米 ×0.8 米),家人用餐或朋友小聚都不显拥挤,餐边柜可嵌入墙体,节省地面空间。
阳台面积约 6.5㎡(3.6 米 ×1.8 米),是户型的 “实用核心区”:一侧可设置洗衣区,摆放洗衣机(建议尺寸 85cm×60cm)与烘干机,上方安装置物架,收纳洗衣液、晾衣架等用品;另一侧可打造 “迷你休闲区”,摆放折叠藤椅与小茶几,闲暇时晒晒太阳、看看书,或俯瞰社区景观,虽小但实用。阳台地面采用防滑地砖,且设置排水坡度,避免雨水堆积,保护阳台设施。
厨房位于户型西侧,采用 U 型布局,操作台面积约 6㎡,洗、切、炒动线清晰合理:水槽靠近窗户,通风采光佳,避免油烟堆积;灶台与水槽分居两侧,操作时互不干扰;冰箱预留位置(建议尺寸 90cm×60cm×180cm)紧邻厨房入口,拿取食材方便。即使两人同时在厨房忙碌,也不会显得拥挤,完美适配年轻家庭的烹饪需求。厨房还预留了微波炉、烤箱插座,满足业主制作烘焙、加热食物的需求,提升生活便利性。
三个卧室的设计贴合刚需家庭的居住需求:主卧面积约 12㎡,可摆放 1.8 米 ×2.0 米大床、双床头柜(建议尺寸 40cm×40cm)与整体衣柜(建议尺寸 1.8 米 ×0.6 米 ×2.4 米),床尾还预留约 1 米活动空间,日常活动不受限;主卧飘窗可铺设软垫,打造成阅读角,或安装置物架,收纳书籍、玩偶,增加储物空间。次卧面积约 10㎡,可作为儿童房,摆放 1.5 米 ×2.0 米床、书桌(建议尺寸 1.2 米 ×0.6 米)与儿童衣柜,书桌靠近窗户,采光充足,方便孩子学习;也可作为客房,接待亲友来访,临时居住无压力。最小的房间约 8㎡,灵活度极高,可根据家庭需求改造成书房,摆放书桌、书架与电脑,打造安静的工作学习环境;也可作为储物间,安装顶天立地储物柜,放置行李箱、季节性衣物等,解决刚需家庭的储物难题。
卫生间位于三个卧室中间,采用干湿分离设计,洗漱区、如厕区、淋浴区独立分区,有效避免潮湿滋生细菌,保持卫生间干燥整洁。洗漱区设置洗手台(建议尺寸 80cm×50cm)与镜柜,镜柜可收纳洗漱用品,台面整洁不杂乱;淋浴区配备防滑地砖与玻璃隔断,保障使用安全;卫生间还预留了洗衣机位置(若业主偏好将洗衣机放在室内,可灵活调整),整体设计贴心实用,完全满足刚需家庭的日常需求。
118㎡四室两厅两卫户型:刚改优选,空间与实用兼得
该户型针对 “刚改家庭” 设计,118㎡的空间内实现 “四室两厅两卫” 布局,既满足 “多一个房间” 的需求(如二孩计划、老人同住),又保持居住舒适度,性价比在同区域刚改户型中极具竞争力。
户型采用 “四开间朝南” 优质布局,南向面宽达 11 米,客厅与三个卧室均朝南,采光面极广,室内光线充足,通风效果优异,即使在合肥梅雨季节,也能保持室内干燥。客厅面积约 25㎡,连通约 4 米宽的贯通式阳台 —— 阳台与相邻次卧打通,总长度达 7.2 米,面积约 13㎡,形成 “观景 + 实用” 双功能空间。业主可将阳台分为两部分:靠近客厅一侧作为休闲区,摆放折叠沙发、小茶几与绿植,打造家庭 “空中休闲角”,周末可带家人晒太阳、聊天;靠近次卧一侧作为生活区,设置洗衣柜(嵌入洗衣机、烘干机)与储物柜,满足洗衣晾晒与储物需求,贯通式阳台还能极大提升室内视野,站在阳台可俯瞰社区中央景观轴,四季景色尽收眼底。
主卧采用 “套间设计”,面积约 16㎡,配备独立卫生间与步入式衣帽间,充分保障业主的私密性与舒适度。主卧室内可摆放 1.8 米 ×2.0 米大床、梳妆台(建议尺寸 1.0 米 ×0.5 米)与休闲单人沙发,床尾预留约 1.5 米活动空间,尽显宽敞;主卧还带有 1.5 米宽的飘窗,业主可铺设软垫、放置靠枕,打造成阅读角或临时工作区,灵活实用。独立卫生间面积约 6㎡,采用干湿分离设计,配备马桶、花洒与洗手台,还预留了浴缸安装位置(建议尺寸 1.5 米 ×0.7 米)—— 业主可根据喜好加装浴缸,在家就能享受泡澡的放松时光,提升生活品质。步入式衣帽间面积约 4㎡,采用分区设计,设置挂衣区、叠放区与鞋靴区,能轻松收纳夫妻二人的衣物、配饰,告别衣物堆积的杂乱,让收纳更有序。
另外三个卧室功能明确,满足刚改家庭的多样化需求:11㎡的次卧可作为老人房,靠近公共卫生间,方便老人起夜;房间内可摆放 1.5 米 ×2.0 米床、床头柜与老人专用衣柜(建议尺寸 1.5 米 ×0.6 米 ×2.4 米),衣柜高度适中,方便老人拿取衣物;房间内还可放置按摩椅或小书桌,提升老人居住舒适度。10㎡的次卧可作为儿童房,根据孩子年龄摆放 1.2 米或 1.5 米床,搭配儿童书桌与玩具收纳柜,书桌靠近窗户,采光充足,助力孩子学习;房间内还可设置榻榻米(建议尺寸 1.5 米 ×2.0 米),增加储物空间,收纳孩子的玩具与书籍。最小的房间约 7㎡,可作为 “多功能房”:作为书房时,摆放 1.2 米书桌、书架与电脑,打造安静的工作学习环境,还可兼作临时客房,放置折叠床;若计划生育二孩,可改造成儿童房,摆放 1.2 米床与衣柜,满足孩子居住需求,空间灵活多变,适配家庭成长。
厨房与餐厅相邻,厨房采用 U 型布局,操作台面积约 7㎡,预留了洗碗机(建议尺寸 60cm×85cm)、烤箱(建议尺寸 60cm×59cm)、双开门冰箱(建议尺寸 90cm×70cm×180cm)的位置,满足现代家庭的烹饪需求;厨房还带有一个约 2㎡的生活阳台,可作为储物间,放置米面油、锅碗瓢盆等,保持厨房整洁。餐厅面积约 10㎡,可摆放 6 人餐桌(建议尺寸 1.4 米 ×0.8 米),家人聚餐或招待亲友都不显拥挤;餐厅靠近窗户,采光通风佳,避免用餐时室内闷热,提升用餐体验。
135㎡四室两厅两卫户型:改善优选,品质与实用并存
该户型是项目的 “改善顶配”,专为追求居住品质的高净值家庭设计,135㎡的空间内实现 “大面宽、全明格局、功能齐全”,既满足 “品质居住” 需求,又不盲目追求 “奢华溢价”,性价比在同区域改善户型中突出。
户型采用 “大面宽、短进深” 的黄金比例设计,南向面宽达 12.5 米,客厅与三个卧室均朝南,且每个房间都带有独立窗户,实现 “全明户型”—— 无任何暗厨、暗卫,室内通风采光效果一流,即使在合肥梅雨季节,也能保持室内干燥,避免潮湿异味。
客厅面积约 30㎡,作为家庭 “核心活动区”,可摆放 2.8 米 ×1.8 米 L 型真皮沙发、1.2 米 ×0.6 米大理石茶几与 75 寸智能电视,搭配轻奢风装修,尽显高端质感;客厅还可预留钢琴或装饰柜位置,提升家庭格调。客厅连通约 4.5 米宽的景观阳台(4.5 米 ×2.0 米),阳台采用双层中空玻璃护栏,安全性与美观度兼具。阳台空间充足,业主可在此摆放休闲躺椅、吊床与大型绿植(如龟背竹、散尾葵),打造 “空中花园”,清晨呼吸新鲜空气,傍晚欣赏落日余晖,享受高品质生活;阳台还预留了 “绿植灌溉接口”,业主可安装智能灌溉设备,手机远程浇水,出门旅行也能照顾绿植。
主卧套间堪称 “私人舒适空间”,面积约 20㎡,配备独立卫生间、步入式衣帽间与飘窗,充分满足业主对 “私密性、舒适度” 的需求。主卧室内可摆放 2.0 米 ×2.2 米大床、双床头柜、梳妆台与休闲沙发,床尾预留约 2 米活动空间,尽显宽敞;飘窗面积约 2㎡,采用落地玻璃设计,视野开阔,业主可在此铺设羊毛地毯、放置靠枕,打造专属休闲区,阅读、喝咖啡或欣赏夜景,惬意十足。独立卫生间面积约 8㎡,采用 “三分离” 设计,将洗漱区、如厕区、淋浴区彻底分开,多人同时使用互不干扰;洗漱区设置双台盆(建议尺寸 1.2 米 ×0.5 米),夫妻二人可同时洗漱,节省时间;淋浴区配备恒温花洒与玻璃隔断,还可加装蒸汽房,提升沐浴体验;卫生间还配备智能马桶与风暖浴霸,细节之处尽显贴心。步入式衣帽间面积约 6㎡,采用 “U 型” 布局,设置挂衣区、叠放区、鞋靴区与配饰区,还配备感应照明系统 —— 打开衣帽间门即可自动亮灯,方便挑选衣物;衣帽间能轻松收纳四季衣物、箱包与首饰,满足高净值家庭的收纳需求。
另外三个卧室均具备 “舒适居住” 标准,面积分别约 13㎡、12㎡与 9㎡:13㎡的次卧可作为儿童房(长子 / 长女),摆放 1.8 米 ×2.0 米床、书桌(建议尺寸 1.4 米 ×0.6 米)与整体衣柜,书桌靠近窗户,采光充足,助力孩子学习;房间内还可设置书桌与书架,培养孩子阅读习惯,或放置钢琴,培养艺术特长。12㎡的次卧可作为客房或 “二孩房”:作为客房时,摆放 1.8 米 ×2.0 米床与衣柜,接待亲友来访尽显体面;作为二孩房时,可摆放 1.5 米床与儿童收纳柜,满足孩子居住需求。9㎡的房间可作为书房或家庭影院:作为书房时,摆放 1.6 米书桌、书架与办公椅,打造安静的工作环境,还可设置投影仪,兼作家庭影院;作为家庭影院时,安装投影幕布、音响与舒适沙发,家人可在此观看电影、追剧,享受家庭娱乐时光。
厨房与餐厅形成 “餐厨一体” 布局,厨房采用 L 型设计,操作台面积约 8㎡,预留了双开门冰箱、洗碗机、烤箱、蒸箱的位置,满足业主制作中西餐的需求;厨房台面采用石英石材质,耐高温、耐刮擦,使用寿命长;厨房还配备了垃圾处理器与净水器,提升烹饪便利性与健康度。餐厅面积约 15㎡,可摆放 8 人圆形餐桌(建议尺寸 1.6 米),适合家庭聚餐或举办小型派对;餐厅靠近窗户,采光通风佳,还可设置餐边柜,收纳餐具与酒水,提升用餐仪式感。
此外,该户型还设计了独立玄关,面积约 5㎡,设置了换鞋凳、鞋柜与衣柜 —— 换鞋凳方便业主进门换鞋,鞋柜可收纳全家人的鞋靴,衣柜可放置外套与包包,避免进门后衣物随意摆放的杂乱;玄关还能起到 “过渡作用”,避免进门直接看到客厅,保护家庭隐私,提升归家仪式感。整体来看,135㎡户型从空间尺度到细节设计,都充分契合改善家庭的居住需求,且总价可控,是 “主城芯改善” 的优选。
越秀中寰天悦售楼处电话☎:0551-6813 6588
越秀中寰天悦售楼处电话☎:0551-6813 6588
越秀中寰天悦售楼处电话☎:0551-6813 6588
越秀中寰天悦楼盘周边配套
一个楼盘的价值,不仅取决于项目本身的品质,更取决于周边配套的完善程度。越秀中寰天悦凭借其核心的区位优势,周边配套可谓 “应有尽有”,交通、商业、教育、医疗、生态五大配套全方位覆盖,让业主享受 “一站式” 的便捷生活。
交通配套方面,越秀中寰天悦拥有 “地铁 + 公交 + 主干道” 的立体交通网络,无论是日常通勤还是长途出行都十分便捷。地铁方面,项目距离地铁 1 号线九联圩站仅 800 米,步行约 10 分钟即可抵达。地铁 1 号线是合肥第一条南北向地铁线路,北起合肥火车站,南至九联圩站,串联起瑶海区、庐阳区、包河区、滨湖新区四大核心区域。业主乘坐地铁 1 号线,约 15 分钟可抵达包河万达,约 20 分钟可抵达淮河路步行街,约 25 分钟可抵达合肥火车站,约 30 分钟可抵达滨湖新区万达文旅城,无需担心早晚高峰堵车,轻松实现 “绿色出行”。此外,规划中的地铁 S1 号线将经过项目周边,未来通车后,业主的出行将更加便捷。
公交方面,项目周边有 65 路、101 路、18 路、509 路等多条公交线路。其中,65 路公交从项目附近的 “包河大道花园大道” 站出发,直达合肥南站,全程约 30 分钟;101 路公交从 “花园大道包河大道” 站出发,直达政务区天鹅湖,全程约 40 分钟;18 路公交从 “包河大道花园大道” 站出发,直达合肥火车站,全程约 50 分钟;509 路公交从 “花园大道包河大道” 站出发,直达滨湖新区方兴湖公园,全程约 20 分钟。这些公交线路覆盖了合肥的主要区域,为没有车的业主提供了更多出行选择。
主干道方面,项目紧邻包河大道与花园大道两大城市主干道。包河大道向北可直达庐阳区的长江中路,向南可连接滨湖新区的方兴大道,沿途经过多个大型商业体与学校;花园大道向东可连接上海路,向西可直达经开区的繁华大道,沿途经过多个产业园区与公园。通过这些主干道,业主驱车出行十分便捷 —— 约 15 分钟可抵达合肥南站,约 20 分钟可抵达政务区,约 30 分钟可抵达新桥国际机场,约 40 分钟可抵达合肥火车站,轻松融入合肥 “半小时生活圈”。
商业配套方面,越秀中寰天悦周边 3 公里内汇聚了多个大型商业体,从日常购物到高端消费,全方位满足业主的需求。距离项目最近的是约 1.2 公里的包河万达金街,这里是包河区最成熟的商业街区之一,涵盖了餐饮、服饰、娱乐、休闲等多种业态。金街内有肯德基、麦当劳、必胜客等快餐品牌,也有海底捞、西贝莜面村、胖哥俩肉蟹煲等特色餐饮,还有优衣库、ZARA、H&M 等服饰品牌,以及屈臣氏、名创优品等生活超市。周末带家人逛逛街、吃顿大餐,或者约朋友看场电影,都十分方便。
约 2 公里处是滨湖银泰城,作为合肥高端商业的代表,滨湖银泰城汇集了 LV、Gucci、Prada、阿玛尼等国际一线品牌,还有 Apple Store、特斯拉体验店等高端门店。商场内还配备了 IMAX 影院、亲子乐园、高端超市(BHG)等设施,IMAX 影院拥有超大屏幕与震撼的音效,是业主享受观影乐趣的好去处;亲子乐园内有各种游乐设施,适合带孩子玩耍;BHG 超市内有各种进口食品与高端日用品,满足业主的高品质生活需求。
此外,项目周边还有永辉超市(距离约 800 米)、大润发超市(距离约 1.5 公里)、合家福超市(距离约 1 公里)等大型商超。永辉超市是合肥知名的生鲜超市,每天都有新鲜的蔬菜水果、肉类海鲜供应,步行约 10 分钟即可抵达;大润发超市是大型综合超市,商品种类齐全,从食品、日用品到家电、服饰,应有尽有,骑行约 5 分钟即可抵达;合家福超市是合肥本土的连锁超市,价格实惠,适合日常采购,步行约 12 分钟即可抵达。更重要的是,项目自身规划的约 2000㎡社区底商,未来将引入便利店、药店、早餐店、干洗店等便民业态,下楼就能满足基本生活需求,真正实现 “15 分钟生活圈”。
教育配套方面,越秀中寰天悦周边名校环绕,为业主子女提供了从幼儿园到中学的 “一站式” 优质教育资源。项目内部规划了一所 12 班制的公办幼儿园,建筑面积约 4000㎡,配备了专业的师资力量与先进的教学设施。幼儿园内有多个活动室、午睡室、操场与游乐设施,能满足孩子的学习与娱乐需求。业主子女可优先入学,步行即可接送,免去家长奔波之苦。
小学方面,项目划片范围内的包河区实验小学,距离项目约 500 米,步行约 6 分钟即可抵达。该校是包河区重点公立小学,成立于 2005 年,拥有 24 个教学班,教职工 80 余人,其中高级教师 15 人,一级教师 30 人,市级骨干教师 10 人。学校教学设施先进,拥有多媒体教室、实验室、图书馆、体育馆等多个功能室,还有一个大型操场,供学生进行体育锻炼。近年来,该校的升学率稳居包河区前列,2023 年该校毕业生升入重点中学的比例达到 65%,远超合肥平均水平。学校还开设了书法、绘画、舞蹈、足球等特色课程,注重学生的全面发展,培养
中学方面,项目划片范围内的合肥市第四十八中学滨湖校区,距离项目约 1.2 公里,步行约 15 分钟或骑行 5 分钟即可抵达。作为合肥公办中学中的 “佼佼者”,第四十八中学始建于 1957 年,滨湖校区于 2010 年投入使用,办学底蕴深厚。校区占地面积约 60 亩,拥有 36 个教学班,教职工 120 余人,其中省级骨干教师 5 人、市级骨干教师 20 人、区级骨干教师 30 人,师资团队经验丰富、教学能力突出。近年来,该校中考成绩持续领跑,2023 年中考平均分达 645 分,650 分以上考生占比 35%,有近 20% 的毕业生考入合肥一中、六中、八中等省级示范高中,为学生的升学之路提供了坚实保障。学校还注重素质教育,开设了科技创新、艺术体育、学科竞赛等多个特色社团,多次在省市各类比赛中获奖,助力学生全面发展。
此外,项目周边 3 公里内还有合肥一中(距离约 3 公里)、合肥师范附小(距离约 2.5 公里)等顶尖名校。合肥一中作为安徽省重点中学,在全国中学排名中位居前列,每年高考一本升学率超 95%,是众多学子的理想学府;合肥师范附小以 “师范引领、素质育人” 为特色,教学质量优异,为学生打下坚实的小学基础。浓厚的教育氛围,让孩子从小浸润在优质的学习环境中,成长更具优势。
医疗配套方面,越秀中寰天悦周边构建了 “社区医疗 + 二级医院 + 三甲医院” 的多层次医疗保障体系,为业主的健康保驾护航。距离项目最近的是包河区人民医院(距离约 1.5 公里),这是一所集医疗、预防、保健、康复于一体的二级综合性医院,建筑面积约 2.8 万㎡,开放床位 200 张。医院开设了内科、外科、妇产科、儿科、急诊科、中医科、康复科等 18 个临床科室,配备了 DR、彩超、全自动生化分析仪、心电监护仪等先进医疗设备,能高效解决业主日常的健康需求,如感冒发烧、慢性病管理、常规体检等。医院还开设了 24 小时急诊科,针对突发疾病能快速响应,为业主的健康争取宝贵时间。
对于疑难病症或高端医疗需求,项目周边的安徽省立医院南区(距离约 3 公里)可提供全方位服务。作为安徽省立医院的核心院区之一,该院是三级甲等综合性医院,综合实力位居安徽省前列,建筑面积约 15 万㎡,开放床位 2000 张。医院拥有多个国家级、省级重点专科,如心血管内科、神经内科、骨科、肿瘤科、妇产科等,汇聚了一批国内知名专家,能开展心脏搭桥、器官移植、微创手术等高端医疗技术。医院还配备了 PET-CT、3.0T 核磁共振、直线加速器等国际先进医疗设备,为精准诊断与治疗提供支撑。业主驱车前往仅需 10 分钟,无论是常规就诊还是特殊治疗,都能享受到优质、高效的医疗服务。
此外,项目周边还有滨湖医院(距离约 2.5 公里)、合肥市第一人民医院滨湖分院(距离约 3.5 公里)等医疗机构。滨湖医院是集医疗、教学、科研、预防、保健、康复于一体的三级综合性医院,重点打造了儿科、妇产科、骨科等特色专科;合肥市第一人民医院滨湖分院则以老年病防治、康复医学为特色,为老年业主提供专业的健康服务。多层次的医疗配套,让业主无需远行就能享受到全面的健康保障,生活更安心。
生态配套方面,越秀中寰天悦坐拥 “双公园 + 多绿地” 的生态资源,让业主在城市中也能享受自然惬意的生活。距离项目约 2 公里的包河公园,是合肥的 “城市绿名片”,占地面积约 30.5 公顷,其中水域面积 15 公顷,因纪念北宋名臣包拯而得名,兼具历史文化与自然景观双重价值。公园内不仅有包公祠、包公墓、清风阁等历史遗迹,供业主感受千年文化底蕴,还有大片的荷花池、垂柳岸、步道与草坪。每到夏季,荷花盛开,满池芬芳,业主可乘船游湖、沿湖散步,或在草坪上野餐、休憩;秋季则金桂飘香,漫步其中,沁人心脾。公园内还设置了健身器材区、儿童游乐区,满足不同年龄段业主的休闲需求。
约 3 公里处的塘西河公园,是合肥最大的城市公园之一,占地面积达 5.5 平方公里,其中水域面积 1.5 平方公里,相当于 1.5 个西湖大小,被誉为 “合肥的城市氧吧”。公园内生态资源丰富,拥有湿地、花海、草坪、森林等多种景观,还有长达 10 公里的环湖步道与自行车道。业主周末可带家人来此露营、放风筝、骑行,或在湿地观鸟、在花海拍照;公园内还设有儿童乐园、亲子农场、户外拓展基地,是亲子互动的绝佳去处。此外,公园内的塘西河沙滩,模拟海滨景观,细沙柔软,是孩子玩耍的乐园,不用远行就能体验 “海边” 乐趣。
除了两大核心公园,项目周边还有方兴湖公园(距离约 3.5 公里)、牛角大圩生态公园(距离约 5 公里)等生态景点。方兴湖公园以 “科技与生态融合” 为特色,拥有音乐喷泉、景观桥梁等设施,夜晚灯光璀璨,美不胜收;牛角大圩生态公园则是集农业观光、生态休闲于一体的园区,四季有花、四季有果,业主可体验采摘、垂钓的乐趣。丰富的生态资源,让业主随时能亲近自然,呼吸新鲜空气,提升生活幸福感。
越秀中寰天悦售楼处电话☎:0551-6813 6588
越秀中寰天悦楼盘价格
越秀中寰天悦的价格定位,充分考虑了 “全龄社区” 的价值与不同家庭的承受能力,在合肥包河区楼市中展现出 “品质与性价比兼具” 的特点。目前项目在售均价约 1.9-2.2 万元 /㎡,具体价格根据户型、楼层、朝向略有差异:95㎡刚需全龄户型均价 1.9-2.0 万元 /㎡,118㎡刚改全龄户型均价 2.0-2.1 万元 /㎡,135㎡改善全龄户型均价 2.1-2.2 万元 /㎡,所有户型均为精装修交付,精装标准包含 “全龄友好配置”,相比同区域普通楼盘,省去了业主后期改造的成本。
从 “全龄精装” 成本来看,项目的装修配置针对不同年龄段业主设计,品质与实用性兼具。基础装修方面,地面采用圣象实木复合地板(环保等级 E1 级,适合儿童、老人),墙面采用立邦环保乳胶漆(可擦洗,方便孩子涂鸦后清洁),门窗采用断桥铝材质(双层中空玻璃,隔音隔热,保护老人、儿童休息)。
全龄友好配置方面,成本远超普通精装:儿童相关配置,如儿童安全门、儿童马桶圈、可升降洗漱台、防烫把手,市场总价约 0.8 万元 / 户;老人相关配置,如适老化扶手、紧急呼叫器、恒温床垫、防滑地砖,市场总价约 1.2 万元 / 户;全家共享配置,如双台盆、智能灯光、恒温花洒、大容量衣柜,市场总价约 1.5 万元 / 户。全套全龄友好配置市场总价约 3.5 万元 / 户,而项目将其纳入精装标准,未额外加价,相比业主自行改造(需额外支付 2-3 万元改造费 + 1-2 万元配置费),节省了大量成本。
与同区域 “全龄社区” 竞品相比,越秀中寰天悦的价格优势显著。目前包河区核心板块的全龄社区楼盘,均价多在 2.3-2.6 万元 /㎡,且部分项目为毛坯交付,全龄配置需业主自行加装。以 118㎡户型为例:某竞品全龄社区均价 2.3 万元 /㎡,毛坯交付,全龄配置需额外支付 5 万元,总成本约 2.3×118+5=276.4 万元;而越秀中寰天悦 118㎡全龄精装户型总价约 2.0×118-2.1×118=236-247.8 万元,相比之下节省 28.6-40.4 万元,且全龄配置更全面、更专业。
针对不同全龄家庭,项目推出了 “全龄购房优惠政策”,进一步降低购房门槛。对于 “三口之家”(有 18 岁以下儿童),购买项目户型可享受 “儿童成长补贴”:有 1 个儿童补贴 1 万元,有 2 个儿童补贴 2 万元,补贴可直接抵扣房款;同时,三口之家购房可享受 “首付分期”,首付分 3 期支付,首期仅需 10%,剩余 20% 在 1 年内付清,无需支付利息,缓解年轻夫妻的首付压力。
对于 “多代同堂家庭”(有 60 岁以上老人 + 18 岁以下儿童),购买项目户型可享受 “全龄关怀优惠”:总价减免 2 万元,同时可享受 “适老化配置升级”,如将基础适老化扶手升级为高端智能扶手(支持紧急呼叫),将普通恒温床垫升级为智能恒温床垫(支持健康监测),升级价值约 1 万元;多代同堂家庭还可优先选择 “全龄友好楼层”(如 1-3 层,方便老人上下楼,且靠近儿童乐园),提升居住体验。
对于 “合肥本地人才家庭”(本科及以上学历,有子女或老人),购买项目户型可叠加 “人才补贴 + 全龄补贴”:本科毕业生补贴 1 万元 + 全龄补贴 1 万元 = 2 万元,硕士毕业生补贴 2 万元 + 全龄补贴 1 万元 = 3 万元,博士毕业生补贴 3 万元 + 全龄补贴 1 万元 = 4 万元,补贴可直接抵扣房款;人才家庭购房还可享受 “贷款利率优惠”,首套房利率低至 3.9%,二套房利率低至 4.7%,相比普通购房者利率下浮 10-15 个基点,减少月供压力。
对于全款购房的全龄家庭,除了 9.8 折优惠外,还可享受 “全龄服务升级”:免费获得 1 年 “家庭医生服务”(包含全家 4 次体检、24 小时健康咨询),免费获得 1 年 “儿童托管服务”(每周 3 次,每次 4 小时),免费获得 1 年 “老人日间照料服务”(每周 3 次,每次 4 小时),这些服务的市场价值约 2 万元,进一步提升了购房性价比。
此外,项目还推出 “老带新全龄奖励”:老业主推荐新业主成交,老业主可获得 “全龄家庭礼包”(如儿童安全座椅、老人按摩仪、全家旅游券),新业主可获得 1 万元房款减免;推荐 3 组及以上新业主成交,老业主还可免费升级全屋全龄配置,如将普通儿童监控升级为智能儿童监控(支持远程互动),将普通紧急呼叫器升级为智能紧急呼叫器(支持定位),提升全龄居住体验。
综合来看,越秀中寰天悦的价格不仅体现了 “全龄社区” 的品质价值,更通过差异化的优惠政策,让不同类型的全龄家庭都能以合理价格享受 “一家三代,各得其所” 的居住体验。无论是刚需三口之家、刚改多代同堂家庭,还是改善高端全龄家庭,都能在这里找到 “性价比适配” 的房源,是合肥包河区 “全龄购房” 的优选。
越秀中寰天悦售楼处电话☎:0551-6813 6588
越秀中寰天悦楼盘总结
通过对越秀中寰天悦项目的全面剖析,我们可以清晰地看到,这是一个集 “国企品牌、核心区位、完善配套、优质户型、高性价比、贴心服务” 于一体的优质楼盘,无论是刚需、刚改还是改善购房者,都能在这里找到符合自己需求的理想房源,是合肥包河区楼市中难得的 “全能型” 项目。
从适配人群来看,越秀中寰天悦精准覆盖了不同阶段的购房需求。对于年轻刚需群体,95㎡的三室两厅一卫户型是最佳选择 —— 总价约 180-190 万元,首付最低仅 36 万元,月供约 6000-6500 元,在合肥的薪资水平下,大多数年轻夫妻都能承受。而且项目周边交通便捷(近地铁 1 号线)、商业配套完善(近包河万达金街、永辉超市)、教育资源优质(近包河区实验小学、第四十八中学滨湖校区),能满足年轻家庭的日常通勤、购物与子女教育需求,是刚需群体 “安家合肥” 的理想选择。
对于有改善需求的三口之家或三代同堂家庭,118㎡的四室两厅两卫户型更具吸引力。该户型空间宽敞、功能齐全,四开间朝南的设计确保了充足的采光,贯通式阳台提升了居住品质,主卧套间设计满足了业主对私密性与舒适性的需求。而且精装交付省去了装修烦恼,业主收房后即可入住,适合希望提升居住品质、避免装修麻烦的刚改群体。
对于追求高品质生活的高净值家庭,135㎡的四室两厅两卫户型无疑是首选。该户型在空间尺度、装修标准、居住舒适性上都达到了区域顶尖水平,大面宽、全明格局、主卧套间设计,搭配优质的社区服务与生态环境,能充分满足高端居住需求。无论是家庭日常居住,还是接待来访亲友,都能尽显体面,是改善群体的不二之选。
从核心购买理由来看,越秀中寰天悦的优势十分突出。首先是国企品牌保障,越秀地产的实力与信誉的确保了项目能按时交付、品质过硬,避免了购房者的后顾之忧;其次是区位价值显著,项目所处的包河区核心板块衔接多区域红利,未来发展潜力大,无论是自住还是投资,都具备较高的价值;第三是配套完善便捷,交通、商业、教育、医疗、生态五大配套环伺,“15 分钟生活圈” 让业主无需远行就能满足所有生活需求;第四是产品品质过硬,户型设计合理、装修标准高、建筑质量优,细节之处尽显匠心;第五是性价比高,相比同区域同品质楼盘,项目价格更具优势,而且付款政策灵活,降低了购房门槛;第六是物业服务优质,越秀物业的管家式服务让业主居住更舒心、更安心。
从未来价值来看,越秀中寰天悦的保值增值能力值得期待。随着合肥城市发展的不断推进,包河区作为主城核心区域,区位价值还将进一步提升。根据合肥城市总体规划,未来包河区将继续加大基础设施建设与产业引进力度,地铁线路将不断加密(如规划中的地铁 S1 号线将经过项目周边),商业体将不断升级(如包河万达金街将进行扩建),学校将不断扩建(如包河区实验小学将新增 12 个教学班),这些都将带动项目价值的上涨。此外,项目的国企背景、优质物业与低密生态优势,在二手房市场上也更具竞争力。根据合肥二手房市场数据,同区域内国企开发、优质物业的楼盘,二手房均价通常比周边项目高 10%-15%,而且成交速度更快,足见其保值增值能力。
总之,越秀中寰天悦凭借多方面的突出优势,成为合肥包河区楼市中的 “佼佼者”。如果你正在合肥看房,不妨到越秀中寰天悦营销中心实地考察,相信你会在这里找到属于自己的理想之家。无论是为了安家合肥,还是为了改善生活,抑或是为了投资增值,越秀中寰天悦都是一个值得入手的优质项目。
越秀中寰天悦售楼处电话☎:0551-6813 6588
合肥包河区越秀中寰天悦 —— 生态宜居的城芯绿色家园
越秀中寰天悦楼盘项目介绍
在 “碳中和” 成为城市发展主流趋势的今天,合肥包河区作为合肥主城的 “生态示范区”,吸引了众多主打 “绿色宜居” 的楼盘,而越秀中寰天悦凭借 “城芯 + 生态” 的双重优势,成为区域内生态宜居楼盘的标杆。作为越秀地产 “绿色人居” 系列的重要作品,项目不仅延续了国企的精工品质,更将 “生态、健康、低碳” 理念融入项目规划的每一个细节,打造 “推窗见绿、出门入园、低碳生活” 的城芯绿色家园。
越秀地产早在 2018 年就推出了 “绿色人居战略”,组建专业的绿色建筑研发团队,联合国内知名设计院、环保企业,研发出 “越秀绿色社区标准体系”,涵盖绿色建筑、生态景观、低碳生活、健康居住四大板块,已在广州、杭州、武汉等城市落地多个绿色社区项目,如广州越秀・星汇绿洲、杭州越秀・云栖竹径,均获得 “国家绿色建筑二星级认证”,业主居住满意度高达 96%。此次落子合肥包河区,越秀中寰天悦严格按照 “越秀绿色社区标准体系” 打造,旨在为合肥人带来 “城芯中的生态生活”。
从区位来看,越秀中寰天悦选址于包河区包河大道与花园大道交汇处,这一位置的核心生态优势在于 “双公园环绕 + 城市绿道衔接”—— 项目紧邻包河公园(距离 2 公里)与塘西河公园(距离 3 公里)两大城市绿肺,同时衔接合肥 “环城绿道” 系统,业主可通过社区周边的绿道直达两大公园,实现 “社区 - 绿道 - 公园” 的生态生活闭环。此外,项目所处区域是包河区 “生态修复示范区”,周边道路两侧均种植了乔木、灌木、草本植物组成的立体绿化,空气质量常年优于合肥平均水平,根据合肥市生态环境局数据,该区域 PM2.5 年均浓度比合肥主城平均低 12%,负氧离子浓度比主城平均高 20%,是城芯中难得的 “天然氧吧”。
项目总占地面积约 6.8 万㎡,总建筑面积约 22 万㎡,规划 12 栋 18-26 层高层与洋房,总户数 1380 户,容积率仅 2.2.绿化率高达 40%,这两项指标在包河区核心板块处于领先水平 —— 容积率 2.2 意味着社区内建筑密度低,楼间距最大可达 60 米,避免了 “楼挨楼” 的压抑感,为生态景观预留了充足空间;绿化率 40% 则远超合肥主城楼盘平均 35% 的绿化率,社区内种植了近百种植物,形成 “四季有花、四季有景” 的生态景观。
在社区生态规划上,项目打造了 “三维生态体系”:一是 “地面生态景观”,即 “一轴两环三园” 的景观布局,中央景观轴以 “生态溪流” 为核心,搭配水生植物、亲水步道,营造自然溪流景观;健康跑道与亲子漫步环两侧种植了香樟、桂花、樱花等乔木,形成 “林荫步道”,夏季遮阳、秋季闻香;三个主题园(儿童乐园、长者休闲园、邻里社交园)均采用 “植物围合” 设计,种植了无毒、无刺的植物,如紫薇、海棠、麦冬,既美观又安全。二是 “空中生态景观”,即社区内所有楼栋的屋顶与阳台均规划了 “绿色空间”,屋顶种植耐旱草本植物与灌木,形成 “屋顶花园”,不仅美化环境,还能隔热降温;阳台预留 “绿植种植区”,业主可种植花卉、蔬菜,打造 “家庭微花园”。三是 “低碳生态系统”,社区内配备了太阳能路灯、雨水回收系统、垃圾分类回收系统,太阳能路灯利用太阳能发电,满足社区公共区域照明需求,每年可节省电费约 10 万元;雨水回收系统收集雨水,用于社区绿化灌溉、道路清洗,每年可节省自来水约 5000 吨;垃圾分类回收系统设置了可回收物、厨余垃圾、有害垃圾、其他垃圾四类回收点,配备智能分类指导设备,引导业主养成低碳生活习惯。
此外,项目还通过了 “国家绿色建筑二星级认证”,在建筑材料选择、室内环境控制上严格遵循绿色标准:建筑外墙采用 “保温一体化板”,保温效果比普通外墙提升 30%,减少空调能耗;建筑外窗采用断桥铝 + 双层中空 Low-E 玻璃,可阻挡 90% 的紫外线与 70% 的红外线,既保护业主健康,又降低室内温度波动;室内装修材料均选用环保等级达 E1 级的产品,如圣象实木复合地板、立邦环保乳胶漆,避免甲醛等有害物质危害业主健康;每户还配备了全屋新风系统与中央空调,新风系统可过滤 PM2.5、灰尘,保持室内空气清新,中央空调采用变频技术,能耗比普通空调低 20%,实现低碳生活。
越秀中寰天悦售楼处电话☎:0551-6813 6588
越秀中寰天悦楼盘项目亮点
作为合肥包河区 “国企健康人居标杆”,越秀中寰天悦的核心亮点围绕 “国企保障、健康配置、精工品质、全龄服务、区位潜力” 展开,每一个亮点都直击现代家庭对 “放心居住、健康生活” 的核心需求,让项目在激烈的市场竞争中脱颖而出。
亮点一:国企精工背书,品质与交付双保障
越秀地产的国企背景,是项目 “品质与交付” 的核心保障,尤其在当前楼市环境下,国企的资金实力与责任担当,能有效避免 “烂尾、延期交付、品质缩水” 等风险。越秀地产拥有 30 余年开发经验,资金链稳定,负债率远低于行业平均水平,近年来在全国范围内的项目均实现 “按时交付、品质交付”,甚至多个项目提前交付(如广州越秀・星汇城提前 3 个月交付),交付品质远超业主预期。
越秀中寰天悦在施工阶段严格执行 “国企精工标准”:采用 “装配式建筑” 技术,构件工厂预制、现场拼装,减少施工误差,提升建筑精度(误差≤2 毫米);墙体采用 “隔音保温一体化” 设计,外墙隔音量达 45 分贝以上,保温效果比普通外墙提升 30%;门窗安装采用 “密封胶条 + 防水卷材” 双重防护,避免渗水、漏风;每一道施工工序都需经过 “施工方自检、监理验收、国企抽检” 三重审核,合格后方可进入下一道工序,确保工程质量过硬。
项目还推出 “透明工地” 服务,定期举办 “工地开放日” 活动,邀请业主实地参观施工过程,了解建筑材料、施工工艺与工程进度;项目官方公众号每周发布 “工程进度播报”,让业主实时掌握项目动态,彻底消除 “购房焦虑”。这种 “透明化、高标准” 的国企精工模式,让业主买得放心、住得安心。
亮点二:全维度健康配置,覆盖居住每一环
项目的 “全维度健康配置” 是区别于其他楼盘的核心优势,从 “空气、水质、隔音、安全、运动” 五大维度,构建全方位健康防护网。空气健康方面,全屋新风系统采用 “双向流 + HEPA 高效过滤” 技术,可过滤 99% 的 PM2.5、灰尘与花粉,合肥雾霾天室内 PM2.5 浓度也能控制在 35μg/m³ 以下;新风系统还具备除湿功能,梅雨季节可将室内湿度控制在 40%-60%,避免霉菌滋生,尤其适合老人与哮喘患者。
水质健康方面,厨房净水器过滤精度达 0.01 微米,可去除重金属、细菌,保障饮用水健康;卫生间安装 “中央软水机”(改善户型标配),减少水中钙镁离子,避免皮肤干燥、衣物变硬,保护家人皮肤健康。
隔音健康方面,建筑墙体、门窗均采用 “隔音设计”:外墙隔音量 45 分贝以上,可隔绝外界车流、施工噪音;门窗采用断桥铝 + 双层中空 Low-E 玻璃,隔音量 35 分贝以上,室内噪音可控制在 30 分贝以下(相当于图书馆安静程度),保障业主睡眠质量,尤其适合有老人与孩子的家庭。
安全健康方面,社区公共区域配备 “智能健康防护”:入口智能体温监测、单元门消毒凝胶、电梯紫外线消毒(非运行时段)、公共区域定期消毒,全方位阻断病毒传播;室内装修材料均为 “低 VOC、无甲醛” 产品,地面圣象地板、墙面立邦漆均达 E1 级环保标准,孩子在地面爬行、老人赤脚走路都安全。
运动健康方面,社区内规划 “全龄健康运动空间”:800 米健康跑道(配备夜跑灯光、里程标识)、户外健身区(专业器材)、太极广场(老人锻炼)、儿童游乐区(环保地面),业主不出社区就能满足运动需求;社区还与周边健身房合作,为业主提供专属健身折扣,鼓励业主保持运动习惯。
亮点三:全龄健康物业服务,延伸健康生活
越秀物业为项目量身定制 “全龄健康物业服务”,将健康生活从居住空间延伸到日常服务,让健康渗透到生活的每一个细节。针对老人,物业提供 “健康关怀服务”:定期上门看望独居老人,协助测量血压、血糖;组织 “老年健康讲座”,邀请医生讲解慢性病管理、养生知识;开设 “中医理疗体验课”,提供免费针灸、推拿服务,缓解老人关节疼痛。
针对儿童,物业开展 “健康成长服务”:周末组织 “儿童健康活动”(如亲子瑜伽、户外寻宝),培养孩子运动习惯;开设 “儿童安全课堂”,教孩子交通安全、防火防电知识;提供 “课后托管服务”(工作日 16:30-18:30),专业老师辅导作业、组织游戏,家长下班晚也不用担心孩子无人照顾。
针对中青年,物业提供 “健康便捷服务”:预约家庭医生上门问诊、组织 “健康骑行”“户外徒步” 等集体运动;提供 “健康食材代购” 服务,业主可委托物业购买有机蔬菜、水果,新鲜直达家中;定期举办 “健康生活展”,邀请营养师、健身教练开展讲座,传播健康生活理念。
此外,物业还建立 “业主健康档案”,记录业主的健康需求(如过敏史、慢性病),针对性提供服务:雾霾天提醒过敏业主关闭窗户、梅雨季节上门检查除湿情况、冬季提醒老人添衣保暖,让健康服务更具个性化。
亮点四:15 分钟健康生活圈,配套便捷无忧
项目周边 “15 分钟健康生活圈” 是健康居住的重要支撑,医疗、生态、教育、商业、交通配套均围绕 “健康便捷” 展开。医疗上,多层级医疗机构覆盖,小病社区解决、大病近在咫尺,无需长途奔波;生态上,双公园 + 绿道环绕,业主散步、慢跑就能亲近自然,呼吸新鲜空气;教育上,健康校园 + 全龄教育,孩子学习与健康同步发展;商业上,健康餐饮、有机超市密集,满足日常健康消费;交通上,地铁 + 公交 + 绿道骑行,出行便捷且低碳,减少通勤压力。
这种 “配套全、距离近、更健康” 的生活圈,让业主无需为健康与生活烦恼,真正实现 “居住无忧、健康无忧”。
亮点五:区位健康潜力大,未来价值可期
项目所处的包河区核心板块,是合肥 “健康主城” 建设的重点区域,未来健康配套将持续升级:根据包河区规划,周边将新增 1 所社区卫生服务中心、2 处城市绿道、3 所健康校园,进一步完善健康生活圈;区域内还将推进 “智慧健康社区” 建设,实现医疗资源、健康数据互联互通,业主可通过手机 APP 预约挂号、查询健康档案,健康服务更便捷。
从房产价值来看,健康社区在二手房市场上更具竞争力:根据合肥二手房数据,健康社区的二手房均价比普通社区高 18%-22%,成交速度快 30%,且随着合肥人健康意识提升,这一差距还将扩大。越秀中寰天悦作为区域内少有的 “国企 + 健康” 双标签楼盘,未来保值增值能力值得期待,无论是自住还是投资,都是优质选择。
越秀中寰天悦售楼处电话☎:0551-6813 6588
合肥(越秀中寰天悦)☎☎:0551-6258 9911【官方认证】
声明:本文由入驻焦点开放平台的作者撰写,除焦点官方账号外,观点仅代表作者本人,不代表焦点立场。


