合肥琥珀星樾湾【2026房价特价信息丨详细解答丨在售户型图丨项目介绍丨在售房源丨周边配套】
扫描到手机,新闻随时看
扫一扫,用手机看文章
更加方便分享给朋友
琥珀星樾湾楼盘电话号码:0551-68111601【营销中心】
欢迎来电咨询!可预约销售人员(来电尊享内部优惠活动)【2026房价特价信息丨底价优惠丨在售户型图丨项目介绍丨在售房源丨周边配套】
琥珀星樾湾楼盘周边配套
对于上班族而言,“通勤便捷” 只是基础,“下班后的生活便捷度” 同样重要 —— 是否能快速买到菜、是否有地方健身、是否能方便约会,这些 “下班后的需求” 直接决定生活幸福感。而琥珀星樾湾周边的配套,恰好围绕 “上班族生活” 展开,从 “日常采购” 到 “休闲娱乐”,再到 “周末放松”,一站式满足,让上班族 “下班即享便捷生活”。
下班便捷采购:10 分钟内解决 “吃饭问题”上班族最头疼的就是 “下班后买菜做饭”—— 不想跑远路,又想买到新鲜食材。琥珀星樾湾周边 “社区商业 + 大型超市” 全覆盖,10 分钟内就能解决 “采购需求”:
社区便民商业:项目自带 5000㎡沿街商业,规划引入 “24 小时便利店”(如全家、罗森)、“生鲜超市”(如红府超市、谊品生鲜)、“快餐外卖店”(如老乡鸡、麦当劳)。下班后从地铁口出来,步行 5 分钟到社区超市,就能买到新鲜的蔬菜、水果、肉类,回家就能做饭;若不想做饭,可在便利店买速食,或在快餐店内堂食 / 外卖,10 分钟内解决 “吃饭问题”。
大型超市:距离项目 1.5 公里的 “悦方 ID MALL 负一楼永辉超市”,是合肥南部知名的 “平价大型超市”,涵盖生鲜、零食、日用品、家电等全品类,适合周末 “大宗采购”—— 周六下午乘坐地铁 1 号线(1 站到紫庐站),或自驾 5 分钟,就能一次性买齐一周的食材和日用品,避免工作日频繁采购。
农贸市场:距离项目 1 公里的 “望湖城农贸市场”,每天早上 6 点至晚上 7 点营业,蔬菜、水果、肉类均为 “农户直供”,新鲜且价格便宜,适合喜欢 “吃新鲜菜” 的上班族 —— 早上提前 10 分钟出门,在农贸市场买完菜再去地铁站,不耽误通勤;或下班后顺路购买,市场门口有免费停车位,停车方便。
下班后休闲:30 分钟内享受 “放松时光”上班族下班后需要 “放松解压”—— 健身、看电影、约会,这些需求在琥珀星樾湾周边 30 分钟内都能满足:
健身需求:项目自带 “社区健身区”(规划中,2025 年投入使用),配备跑步机、动感单车、哑铃等基础健身器材,下班后无需去健身房,下楼就能运动;若想享受专业健身服务,2 公里内的 “悦方 ID MALL 四楼金吉鸟健身” 和 “百大心悦城三楼英派斯健身”,均为连锁健身品牌,配备泳池、操房、私教区,可通过 “下班 + 健身 + 回家” 的路线,兼顾运动与休息。
观影需求:2 公里内的 “悦方 ID MALL 五楼万达影城” 和 “百大心悦城四楼大地影院”,均为合肥知名影院,上映影片与全国同步,配备 IMAX 厅、杜比全景声厅,适合下班后约朋友看电影;影院周边有星巴克、奈雪的茶等饮品店,看完电影可喝杯奶茶,放松心情。
约会需求:3 公里内的 “加侨国际广场美食街” 和 “悦方 ID MALL 餐饮区”,聚集了海底捞、西贝莜面村、烤肉、日料等各类餐饮品牌,适合与伴侣约会;广场内还有 KTV、密室逃脱、剧本杀等娱乐场所,周末可与朋友一起玩,缓解工作压力。
周末放松:1 小时内享受 “短途休闲”上班族周末需要 “彻底放松”—— 逛公园、购物、亲子游(若有孩子),琥珀星樾湾周边 1 小时内有多个 “休闲目的地”:
逛公园:距离项目 1.5 公里的 “骆岗中央公园”,是亚洲最大的城市中央公园,周末可带家人散步、野餐、赏花;距离项目 3 公里的 “十五里河生态公园”,沿河岸打造了骑行步道,适合骑行或晨跑,呼吸新鲜空气。
购物逛街:2 公里内的 “悦方 ID MALL”“百大心悦城”,涵盖优衣库、ZARA、H&M 等快时尚品牌,以及西西弗书店、无印良品等生活品牌,周末可逛商场买衣服、看书,享受 “慢生活”。
亲子游(有孩子的上班族):2.5 公里内的 “百大心悦城孩子王”“悦方 ID MALL 卡通尼乐园”,是合肥知名的亲子场所,可带孩子玩游乐设施、买玩具;距离项目 5 公里的 “合肥海洋世界”,适合周末带孩子参观,增进亲子感情。
此外,项目周边 1 公里内还有 “药店”(百姓缘大药房、国胜大药房)、“干洗店”(福奈特)、“理发店”(永琪、卡顿)等便民配套,上班族的 “日常琐事” 都能在周边解决,无需跨区奔波。

琥珀星樾湾售楼处电话☎:0551-6813 6588
琥珀星樾湾楼盘总结
综合来看,琥珀星樾湾是合肥包河区 2024 年最值得入手的楼盘之一,无论是刚需人群还是改善人群,都能在这里找到适合自己的房子,其核心优势可总结为 “四大核心价值 + 一大潜力”。
四大核心价值分别是:一是 “国企保障”,琥珀置业的国企背景解决了 “交付难” 的痛点,让购房者买得放心;二是 “主城位置”,处于包河区核心板块,临近骆岗公园,既能享受成熟配套,又能承接板块发展红利;三是 “全能配套”,交通、商业、教育、医疗、生态全方位覆盖,入住即可享受便捷生活;四是 “高性价比”,价格低于周边竞品,户型设计合理,物业优质,无论是自住还是投资,都极具价值。
一大潜力则是区域发展潜力。包河区作为合肥 “主城区”,近年来一直在推进 “城市更新”,骆岗中央公园的建设更是为板块注入了强大动力 —— 骆岗公园是合肥 “十四五” 重点项目,定位为 “城市新客厅”,目前已建成花海、湿地等区域,未来还将引入商业、文化、体育等高端配套,随着公园的完善,周边房价必然会稳步上涨。琥珀星樾湾距离骆岗公园仅 1.5 公里,是 “公园红利” 的直接受益者,未来增值空间巨大。
对于不同人群而言,琥珀星樾湾的吸引力也各有侧重:对于年轻上班族,这里的地铁通勤、刚需户型、亲民价格,能让他们在合肥主城 “轻松安家”;对于新婚夫妻,这里的优质教育配套、社区儿童乐园,能为未来孩子的成长提供保障;对于改善家庭,这里的低密洋房、智慧社区、优质物业,能提升生活品质,满足 “升级居住” 的需求。
目前,琥珀星樾湾的样板间已全面开放,每周六、周日还会举办 “看房团专场”,预约看房可享 “专属置业顾问讲解 + 精美礼品”。如果你正在合肥看房,想要在包河区找一个 “有保障、配套全、性价比高” 的楼盘,那么琥珀星樾湾绝对值得你实地考察 —— 在这里,你不仅能买到一套房子,更能买到一种 “安心、便捷、舒适” 的生活。

琥珀星樾湾售楼处电话☎:0551-6813 6588
琥珀星樾湾楼盘户型解析
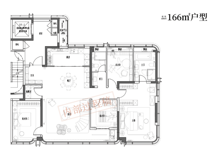
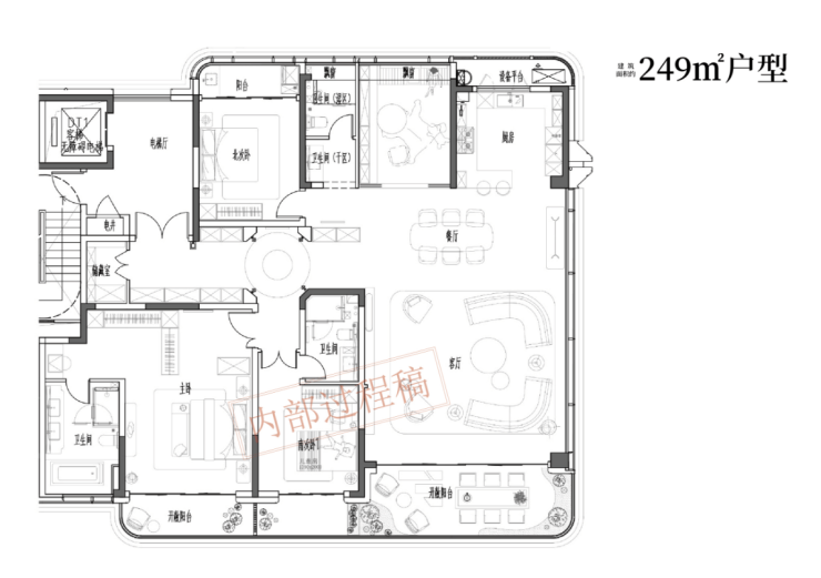
户型是居住体验的 “核心载体”,琥珀星樾湾针对不同人群的需求,设计了 95㎡、110㎡、125㎡、140㎡四种主力户型,每种户型都做到了 “空间利用率高、采光通风好、布局合理”,尤其契合刚需与改善家庭的居住需求。
95㎡三室两厅一卫(刚需首选) 是项目最受欢迎的户型,专为年轻上班族、新婚夫妻设计。该户型采用 “三开间朝南” 布局,客厅、主卧、次卧均朝南,南向面宽达 9.8 米,每天上午 9 点至下午 4 点都有充足阳光,即使在冬季也能保持室内温暖;客厅连接 3.6 米宽的观景阳台,阳台进深 1.8 米,既可作为晾晒区,也可摆放休闲桌椅,打造 “空中花园”;主卧面积约 12㎡,带 270° 飘窗,不仅增加了使用空间,还能俯瞰社区景观;厨房采用 U 型设计,操作台面长达 2.8 米,洗菜、切菜、炒菜动线合理,两人同时操作也不拥挤;卫生间做到 “干湿分离”,洗漱区与淋浴区分开,避免地面潮湿打滑,适合有老人或孩子的家庭。整体来看,95㎡户型没有浪费面积,每个空间都能充分利用,首付仅需 48-54 万,月供约 6000 元,完全在刚需人群的预算范围内,实现 “一步到位” 的三房梦想。
125㎡四室两厅两卫(改善主力) 则针对三口之家、二胎家庭设计,空间更宽敞,功能更齐全。该户型采用 “四开间朝南 + 南北通透” 布局,南向面宽达 12.2 米,客厅与餐厅形成 “竖厅” 设计,南北对流,夏季无需开空调也能保持凉爽;客厅连接 4.2 米宽的阳台,阳台与次卧打通,形成 “贯通式阳台”,长度约 7.8 米,可分为 “晾晒区” 与 “休闲区”,一边晾晒衣物,一边摆放跑步机或茶桌,互不干扰;主卧为 “套房设计”,面积约 18㎡,带独立卫生间与步入式衣帽间,独立卫生间配备浴缸,下班后可泡澡放松,衣帽间可容纳夫妻双方的衣物,提升居住私密性与舒适度;书房面积约 8㎡,既可作为办公区,也可改造成儿童房或老人房,灵活满足家庭不同阶段的需求;厨房为 L 型设计,连接生活阳台,可放置洗衣机与杂物,保持厨房整洁。125㎡户型做到了 “动静分区”,卧室、书房位于内侧,客厅、餐厅、厨房位于外侧,家人休息时不会被客厅噪音打扰,完美契合改善家庭 “既要空间大,又要私密性” 的需求。
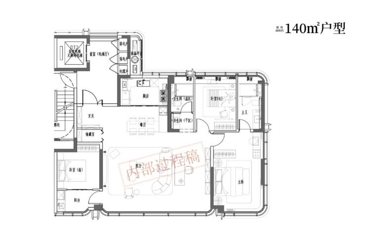
此外,110㎡三室两厅两卫户型适合 “刚需升级” 人群,比 95㎡多一个卫生间,主卧带独立卫浴,提升居住舒适度;140㎡四室两厅两卫洋房户型则是 “终极改善” 之选,洋房总高 11 层,一梯两户,得房率高达 85%(高层得房率约 78%),客厅采用 “横厅设计”,面宽达 5.8 米,搭配大落地窗,视野开阔,适合追求品质生活的高净值家庭。无论选择哪种户型,琥珀星樾湾都做到了 “明厨明卫、南北通透、无暗间”,让每个业主都能享受舒适的居住体验。

琥珀星樾湾售楼处电话☎:0551-6813 6588

琥珀星樾湾售楼处电话☎:0551-6813 6588

琥珀星樾湾售楼处电话☎:0551-6813 6588

琥珀星樾湾售楼处电话☎:0551-6813 6588
合肥包河区琥珀星樾湾 —— 智慧社区新标杆!科技 + 国企,主城生活更便捷
琥珀星樾湾楼盘项目介绍
在 “智慧家居”“智慧城市” 成为趋势的今天,购房者对 “社区智能化” 的需求越来越高 —— 他们希望通过科技,提升居住的 “便捷度、安全性、舒适度”。而合肥包河区的琥珀星樾湾,恰好顺应了这一趋势,以 “国企开发 + 全场景智慧社区” 为核心,打造了合肥 2024 年 “智慧社区新标杆”,成为追求 “科技生活” 的购房者的首选。
项目由合肥城建旗下琥珀置业开发,作为合肥本土国企,琥珀置业在 “智慧社区” 开发方面有着前瞻性的布局,此前已在多个项目中引入智能化配置,积累了丰富的经验。此次打造的琥珀星樾湾,更是将 “智慧社区” 理念升级,从 “单一智能设备” 升级为 “全场景智慧生态”,涵盖 “智慧安防、智慧出行、智慧家居、智慧服务” 四大板块,让科技真正融入业主的日常生活,而非流于表面的 “噱头”。
项目总占地面积约 68 亩,总建筑面积约 12.5 万㎡,容积率 2.2.绿化率 40%,规划 10 栋住宅(6 栋 18-22 层高层、4 栋 11 层洋房),总户数约 890 户。在规划初期,项目就将 “智能化” 作为核心卖点之一,邀请国内知名的智慧社区设计公司(如科大讯飞智慧建筑团队)参与方案设计,确保每一项智能配置都 “实用、便捷、人性化”,避免 “为智能而智能” 的浪费。
从智慧社区的硬件配置来看,琥珀星樾湾的投入堪称 “诚意十足”:智慧安防系统覆盖社区全角落 —— 入口处采用 “双目人脸识别系统”,识别准确率达 99.8%,无需带门禁卡,刷脸即可快速进入,同时支持 “远程授权” 功能,亲友来访时,业主通过手机 APP 就能授权开门,无需下楼迎接;社区内部安装了 “高空抛物监控系统”,24 小时高清拍摄,可精准定位抛物楼层与住户,从根源上杜绝高空抛物隐患;此外,社区还配备了 “智能巡逻机器人”,每天定时沿社区主干道巡逻,实时监测异常情况(如陌生人徘徊、火情隐患),并同步将画面传输至物业中控室,配合 24 小时人工巡逻,形成 “科技 + 人力” 的双重安防保障。
智慧出行与生活配套同样便捷 —— 地下车库配备 “智能寻车 + 反向寻车系统”,业主停车后,系统会自动记录车位位置,返程时通过车库内的查询终端或手机 APP,就能获取 “从电梯口到车位” 的导航路线,彻底解决 “找车难” 问题;车库内 30% 的车位预留了 “充电桩接口”,支持快充与慢充,满足新能源车主的充电需求,且充电桩接入社区智慧系统,可通过 APP 预约充电、查询费用,操作便捷;社区公共区域还覆盖了 “全场景 WiFi”,无论是在儿童乐园陪娃,还是在健身步道跑步,都能免费连接高速 WiFi,刷视频、听音乐无压力。
智慧家居与服务则深入室内 —— 项目为所有户型预装了 “全屋智能控制系统”,业主可通过手机 APP 或语音助手(支持天猫精灵、小爱同学联动),控制家中的灯光、空调、窗帘、热水器等设备。比如,下班前 30 分钟,可远程开启空调与热水器,回家就能享受适宜的温度与热水;睡前无需起身,语音即可关闭全屋灯光与窗帘;出门时一键触发 “离家模式”,自动关闭所有家电、锁好门窗,省心又安全。此外,项目还开发了专属 “琥珀星樾湾社区 APP”,集成了 “物业报修、在线缴费、邻里社交、生活服务” 等功能 —— 家中水管漏水,在 APP 上提交报修申请,物业 15 分钟内响应;物业费、水电费可直接在线缴纳,无需跑腿;APP 内的 “邻里圈” 还能发布闲置物品转让、社区活动邀约等信息,拉近邻里距离。
更值得一提的是,作为国企开发项目,琥珀星樾湾的智慧系统有着 “长期保障”—— 不同于部分民营楼盘 “交房后就停用智能系统” 的情况,琥珀置业专门成立了 “智慧社区运维团队”,定期对社区的智能设备进行检修、升级,确保系统长期稳定运行;同时,运维团队会根据业主反馈,持续优化 APP 功能与智能场景,让智慧服务 “越用越贴心”。这种 “国企兜底” 的保障,正是琥珀星樾湾区别于其他智慧社区的核心优势。

琥珀星樾湾售楼处电话☎:0551-6813 6588
琥珀星樾湾楼盘价格
4.1 区域价格对比:绿色健康盘里的 “价格洼地”

琥珀星樾湾售楼处电话☎:0551-6813 6588
琥珀星樾湾楼盘项目亮点
除了 “位置好、配套全、户型优、价格低” 这些基础优势外,琥珀星樾湾还有四大核心亮点,让其在包河区众多楼盘中脱颖而出,成为购房者的 “首选”。
亮点一:国企开发,交付有保障。在当前房地产市场环境下,“交付” 是购房者最关心的问题,而琥珀星樾湾的国企背景就是最大的 “定心丸”。开发商琥珀置业是合肥城建(国有控股上市公司)的全资子公司,成立 20 余年,累计开发项目 30 余个,如琥珀山庄、琥珀五环城等,均以 “工程质量高、交付准时” 闻名合肥。项目从拿地到施工,全程受国企监管,资金链稳定,不会出现 “停工烂尾” 的风险;同时,项目采用 “透明化施工”,每月公布工程进度,购房者可通过售楼处公众号或实地考察了解施工情况,买得更放心。此外,国企开发的项目在产权办理、物业服务等后续环节也更规范,避免出现 “产权纠纷”“物业不作为” 等问题。
亮点二:低密高绿,宜居性强。琥珀星樾湾容积率仅 2.2.绿化率 40%,这个指标在包河区主城板块十分罕见 —— 周边多数楼盘容积率超过 2.5.绿化率仅 35% 左右,相比之下,琥珀星樾湾的居住舒适度更高。低容积率意味着 “楼间距宽”,项目最大楼间距达 55 米,即使是低楼层也能保证充足采光,避免 “楼挨楼” 的压抑感;高绿化率则意味着 “社区环境好”,项目内部规划了约 2.8 万㎡景观绿地,相当于 4 个足球场大小,涵盖中央草坪、樱花巷道、儿童乐园、老年活动区等,业主茶余饭后可在社区内散步、健身、带娃,无需出门就能享受 “公园般的生活”。此外,社区采用 “人车分流” 设计,车辆进入社区后直接进入地下车库,地面无车辆通行,既保障了老人、孩子的安全,也减少了噪音、尾气污染,提升了社区的静谧性。
亮点三:智慧社区,生活更便捷。琥珀星樾湾紧跟 “智慧家居” 趋势,打造全场景智慧社区,让业主享受 “科技带来的便利”。社区入口采用 “人脸识别 + 智能门禁”,无需带卡,刷脸即可进入,既安全又便捷;地下车库配备 “智能寻车系统”,通过手机 APP 即可查询车辆停放位置,避免 “找车难” 的问题;社区内部安装了 “智能安防系统”,包括高空抛物监控、24 小时巡逻摄像头、电子围栏等,全方位保障业主安全;此外,社区还配备了 “充电桩车位”(占比 30%)、“社区 APP” 等,充电桩满足新能源车主的充电需求,社区 APP 可实现 “线上报修、物业缴费、邻里互动” 等功能,让生活更高效。
亮点四:优质物业,服务有温度。物业是 “居住体验的下半场”,琥珀星樾湾采用开发商自有物业 —— 琥珀物业,该物业成立 15 年,具有国家一级物业服务资质,服务项目覆盖合肥、南京、杭州等城市,业主满意度高达 95%。琥珀物业提供 “24 小时管家服务”,业主有任何需求,如维修、咨询等,拨打物业电话后 15 分钟内响应,2 小时内上门处理;日常服务方面,物业定期开展 “社区活动”,如春节写春联、端午包粽子、中秋晚会等,增进邻里感情;此外,物业还负责社区的日常维护,如绿化修剪、垃圾清理、公共设施检修等,确保社区环境始终整洁、有序。相比外包物业,自有物业更了解项目情况,服务更贴心,也更有责任心。

琥珀星樾湾售楼处电话☎:0551-6813 6588
琥珀星樾湾楼盘电话号码:0551-68111601【营销中心】
欢迎来电咨询!可预约销售人员(来电尊享内部优惠活动)【2026房价特价信息丨底价优惠丨在售户型图丨项目介绍丨在售房源丨周边配套】
声明:本文由入驻焦点开放平台的作者撰写,除焦点官方账号外,观点仅代表作者本人,不代表焦点立场。


