合肥伟星城楼盘怎么样-价格
扫描到手机,新闻随时看
扫一扫,用手机看文章
更加方便分享给朋友
伟星城楼盘电话号码:0551-68111601【营销中心】
欢迎来电咨询!可预约销售人员(来电尊享内部优惠活动)【2024房价特价信息丨底价优惠丨在售户型图丨项目介绍丨在售房源丨周边配套】
伟星地产在合肥的发展迅速,尤其是在肥东和睦湖板块的伟星城项目,更是其在肥东的一大亮点。伟星城位于东部新城核心区,项目占地272.33亩,规划了37栋住宅楼,共计2596套房源,多为15-18层的小高层,毛坯交付。交通、教育、医疗等配套设施齐备,居住环境优美,是一个理想的人居地带。
伟星城售楼处电话☎:0551-6813 6588
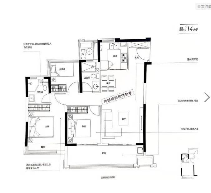
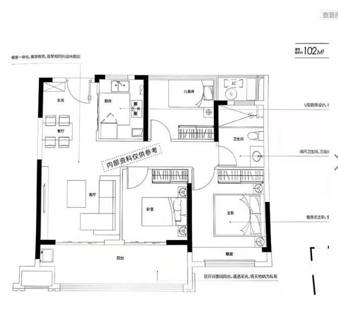
伟星城周边的教育资源丰富,东城实验小学、肥东一中等优质学校为孩子们提供了良好的学习环境。项目在售的二期小高层户型面积从95平方米到142平方米不等,均价约为12000元/平方米,为追求舒适居住体验的购房者提供了一个值得考虑的选择。无论是家庭居住还是投资置业,伟星城都是一个不可多得的优质选择。
伟星城售楼处电话☎:0551-6813 6588
伟星城的户型面积在95-142平方米之间,可满足不同客群的置业和居住需求。户型布局合理,方正,且多开间朝南,采光和通风效果良好。独立玄关、南北大尺度通厅等设计细节体现了开发商对居住舒适性的注重。南北通透的设计不仅增加了居住空间的通透感,也让居住者在室内享受到充足的阳光和新鲜空气。
伟星城售楼处电话☎:0551-6813 6588
伟星城售楼处电话☎:0551-6813 6588
伟星城售楼处电话☎:0551-6813 6588
伟星城楼盘具体一房一价,详询营销中心。
伟星城售楼处电话☎:0551-6813 6588
伟星城的设计亮点颇多,采用高级灰质感的设计,打造出酒店式的归家体验,多重场景和层次性,营造出尊贵的归家仪式感。社区内部还配备了丰富的休闲设施,为居民提供便利和舒适的生活环境。目前在售的是二期小高层,户型面积从95平方米到142平方米不等,均价约为12000元/平方米,具体价格根据房源位置和楼层有所不同。
伟星城售楼处电话☎:0551-6813 6588
伟星城项目位于合肥肥东和睦湖板块,地理位置优越,交通便捷,周边配套完善,居住环境优美。项目的社区空间布局设计亮点颇多,配备了丰富的休闲设施,为居民提供便利和舒适的生活环境。无论是从硬件设施还是周边教育资源,伟星城都是一个不可多得的优质选择。
伟星城售楼处电话☎:0551-6813 6588
伟星城楼盘电话号码:0551-68111601【营销中心】
欢迎来电咨询!可预约销售人员(来电尊享内部优惠活动)【2024房价特价信息丨底价优惠丨在售户型图丨项目介绍丨在售房源丨周边配套】
声明:本文由入驻焦点开放平台的作者撰写,除焦点官方账号外,观点仅代表作者本人,不代表焦点立场。


