包河越秀中寰天悦| 从品质交付到长效服务的温暖跨越
扫描到手机,新闻随时看
扫一扫,用手机看文章
更加方便分享给朋友
合肥(越秀中寰天悦)☎☎:0551-6258 9911【官方认证】
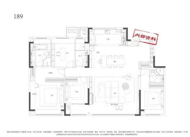
越秀中寰天悦楼盘户型解析
户型是居住体验的核心载体,越秀中寰天悦深入调研合肥购房者的生活习惯与需求,精心打磨了 95㎡刚需三居室、118㎡刚改四居室、135㎡改善型四居室三大主力户型,每个户型均以 “空间利用率最大化、居住舒适度最优化” 为原则,兼顾功能性与实用性,满足不同家庭的居住需求。
首先看 95㎡三室两厅一卫户型,作为项目的 “刚需爆款”,该户型专为年轻夫妻、三口之家设计,以 “小而精” 的特点赢得众多购房者青睐。户型整体采用经典的 “三开间朝南” 布局,客厅与两个主卧均朝南,南向总面宽达 9.2 米,搭配大面积观景窗户,每天清晨阳光能轻松洒满房间,即使在合肥阴雨连绵的冬季,也能保持室内明亮温暖,彻底告别 “暗房” 困扰。
客厅作为家庭活动核心区,面积约 22㎡,与餐厅呈 “餐客一体” 设计,连通约 3.6 米宽、1.8 米深的景观阳台,形成开阔的公共活动空间。业主可在客厅摆放 L 型沙发与 65 寸电视,满足日常观影、会客需求;餐厅区域可放置 4 人餐桌,家人用餐或朋友小聚都不显拥挤。阳台空间利用率极高,一侧可设置洗衣区,摆放洗衣机与烘干机,另一侧可打造休闲角,放置藤椅、小茶几与绿植,闲暇时晒晒太阳、看看书,或俯瞰社区景观,惬意十足。
厨房位于户型西侧,采用 U 型布局,操作台面积约 6㎡,洗、切、炒动线清晰合理 —— 水槽靠近窗户,通风采光佳,避免油烟堆积;灶台与水槽分居两侧,操作时互不干扰;冰箱预留位置紧邻厨房入口,拿取食材方便。即使两人同时在厨房忙碌,也不会显得拥挤,完美适配年轻家庭的烹饪需求。厨房还预留了微波炉、烤箱插座,满足业主制作烘焙、加热食物的需求,提升生活便利性。
三个卧室分布在户型东侧,形成独立的休息区,与公共活动区动静分离,保证居住私密性。主卧面积约 12㎡,可摆放 1.8 米 ×2.0 米大床、双床头柜与整体衣柜,床尾还预留约 1 米活动空间,日常活动不受限;主卧还带有一个 1.2 米宽的飘窗,业主可铺设软垫、放置靠枕,打造成阅读角或储物区,增加空间实用性。次卧面积约 10㎡,可作为儿童房,摆放 1.5 米 ×2.0 米床、书桌与儿童衣柜,书桌靠近窗户,采光充足,方便孩子学习;也可作为客房,接待亲友来访。最小的房间约 8㎡,灵活度极高,可根据家庭需求改造成书房,摆放书桌、书架与电脑,打造安静的工作学习环境;也可作为储物间,放置行李箱、季节性衣物等,解决家庭储物难题。
卫生间位于三个卧室中间,采用干湿分离设计,洗漱区、如厕区、淋浴区独立分区,有效避免潮湿滋生细菌,保持卫生间干燥整洁。洗漱区设置洗手台与镜柜,镜柜可收纳洗漱用品,台面整洁不杂乱;淋浴区配备防滑地砖与玻璃隔断,保障使用安全;卫生间还预留了洗衣机位置(若业主偏好将洗衣机放在室内,可灵活调整),整体设计贴心实用,完全满足刚需家庭的日常需求。
再看 118㎡四室两厅两卫户型,该户型针对 “刚改家庭” 设计,兼顾 “空间扩容” 与 “居住品质”,适合三口之家、三代同堂或有二孩计划的家庭,既能满足家庭成员的居住需求,又能提升生活舒适度。
户型采用 “四开间朝南” 的优质布局,客厅与三个卧室均朝南,南向总面宽达 11 米,采光面极广,室内光线充足,通风效果优异。客厅面积约 25㎡,连通约 4 米宽、1.8 米深的贯通式阳台 —— 阳台与相邻次卧打通,总长度达 7.2 米,形成 “观景 + 实用” 双功能空间。业主可将阳台分为两部分:靠近客厅一侧作为休闲区,摆放折叠沙发、小茶几与吊椅,打造家庭 “空中花园”;靠近次卧一侧作为生活区,设置洗衣柜、晾衣架与储物柜,满足洗衣晾晒与储物需求。贯通式阳台还能极大提升室内视野,站在阳台可俯瞰社区中央景观轴,四季景色尽收眼底。
主卧采用奢华套间设计,面积约 16㎡,配备独立卫生间与步入式衣帽间,充分保障业主的私密性与舒适度。主卧室内可摆放 1.8 米 ×2.0 米大床、梳妆台与休闲沙发,床尾预留约 1.5 米活动空间,尽显宽敞;主卧还带有 1.5 米宽的飘窗,业主可在此放置软垫与小桌,夜晚赏月、聊天,或作为临时工作区,灵活实用。独立卫生间面积约 6㎡,采用干湿分离设计,配备马桶、花洒与洗手台,还预留了浴缸安装位置 —— 业主可根据喜好加装浴缸,在家就能享受泡澡的放松时光,提升生活品质。步入式衣帽间面积约 4㎡,采用分区设计,设置挂衣区、叠放区与鞋靴区,能轻松收纳夫妻二人的衣物、配饰,告别衣物堆积的杂乱,让收纳更有序。
另外三个卧室功能明确,满足家庭多样化需求。其中两个次卧面积分别约 11㎡与 10㎡:11㎡的次卧可作为老人房,靠近公共卫生间,方便老人起夜;房间内可摆放 1.5 米 ×2.0 米床、床头柜与老人专用衣柜,还可放置按摩椅或小书桌,提升老人居住舒适度。10㎡的次卧可作为儿童房,根据孩子年龄摆放 1.2 米或 1.5 米床,搭配儿童书桌与玩具收纳柜,书桌靠近窗户,采光充足,助力孩子学习;房间内还可设置榻榻米,增加储物空间,收纳孩子的玩具与书籍。最小的房间约 7㎡,可作为书房或 “二孩预备房”:作为书房时,摆放 1.2 米书桌、书架与电脑,打造安静的工作学习环境,还可兼作临时客房,放置折叠床;若计划生育二孩,可改造成儿童房,摆放 1.2 米床与衣柜,满足孩子居住需求,空间灵活多变。
厨房与餐厅相邻,厨房采用 U 型布局,操作台面积约 7㎡,预留了洗碗机、烤箱、双开门冰箱的位置,满足现代家庭的烹饪需求;厨房还带有一个约 2㎡的生活阳台,可作为储物间,放置米面油、锅碗瓢盆等,保持厨房整洁。餐厅面积约 10㎡,可摆放 6 人餐桌,家人聚餐或招待亲友都不显拥挤;餐厅靠近窗户,采光通风佳,避免用餐时室内闷热,提升用餐体验。
最后是 135㎡四室两厅两卫户型,作为项目的 “改善顶配” 户型,专为追求高品质生活的高净值家庭设计,在空间尺度、功能布局与细节设计上均达到区域顶尖水平,尽显奢华与舒适。
户型采用 “大面宽、短进深” 的黄金比例设计,南向总面宽达 12.5 米,客厅与三个卧室均朝南,且每个房间都带有独立窗户,实现 “全明户型”—— 无任何暗厨、暗卫,室内通风采光效果一流,即使在合肥梅雨季节,也能保持室内干燥,避免潮湿异味。
客厅作为家庭 “门面”,面积约 30㎡,空间开阔大气,可摆放 2.8 米 L 型真皮沙发、1.2 米茶几与 75 寸智能电视,搭配轻奢风装修,尽显高端质感;客厅还可预留钢琴或装饰柜位置,提升家庭格调。客厅连通约 4.5 米宽、2 米深的景观阳台,阳台采用双层中空玻璃护栏,安全性与美观度兼具。阳台空间充足,业主可在此摆放休闲躺椅、吊床与大型绿植,打造 “空中庭院”,清晨呼吸新鲜空气,傍晚欣赏落日余晖,享受高品质生活。
主卧套间堪称 “私人奢华空间”,面积约 20㎡,配备独立卫生间、步入式衣帽间与全景飘窗,满足业主对 “私密性、舒适度、仪式感” 的多重需求。主卧室内可摆放 2.0 米 ×2.2 米大床、双床头柜、梳妆台与休闲单人沙发,床尾预留约 2 米活动空间,尽显宽敞;全景飘窗面积约 2㎡,采用落地玻璃设计,视野开阔,业主可在此铺设羊毛地毯、放置靠枕,打造专属休闲区,阅读、喝咖啡或欣赏夜景,惬意十足。独立卫生间面积约 8㎡,采用 “三分离” 设计,将洗漱区、如厕区、淋浴区彻底分开,多人同时使用互不干扰;洗漱区设置双台盆,夫妻二人可同时洗漱,节省时间;淋浴区配备恒温花洒与玻璃隔断,还可加装蒸汽房,提升沐浴体验;卫生间还配备智能马桶与风暖浴霸,细节之处尽显贴心。步入式衣帽间面积约 6㎡,采用 “U 型” 布局,设置挂衣区、叠放区、鞋靴区与配饰区,还配备感应照明系统 —— 打开衣帽间门即可自动亮灯,方便挑选衣物;衣帽间能轻松收纳四季衣物、箱包与首饰,满足高净值家庭的收纳需求。
另外三个卧室均具备 “舒适居住” 标准,面积分别约 13㎡、12㎡与 9㎡。13㎡的次卧可作为儿童房(长子 / 长女),摆放 1.8 米 ×2.0 米床、书桌与整体衣柜,书桌靠近窗户,采光充足,助力孩子学习;房间内还可设置书桌与书架,培养孩子阅读习惯,或放置钢琴,培养艺术特长。12㎡的次卧可作为客房或 “二孩房”:作为客房时,摆放 1.8 米 ×2.0 米床与衣柜,接待亲友来访尽显体面;作为二孩房时,可摆放 1.5 米床与儿童收纳柜,满足孩子居住需求。9㎡的房间可作为书房或家庭影院:作为书房时,摆放 1.6 米书桌、书架与办公椅,打造安静的工作环境,还可设置投影仪,兼作家庭影院;作为家庭影院时,安装投影幕布、音响与舒适沙发,家人可在此观看电影、追剧,享受家庭娱乐时光。
厨房与餐厅形成 “餐厨一体” 布局,厨房采用 L 型设计,操作台面积约 8㎡,预留了双开门冰箱、洗碗机、烤箱、蒸箱的位置,满足业主制作中西餐的需求;厨房台面采用石英石材质,耐高温、耐刮擦,使用寿命长;厨房还配备了垃圾处理器与净水器,提升烹饪便利性与健康度。餐厅面积约 15㎡,可摆放 8 人圆形餐桌,适合家庭聚餐或举办小型派对;餐厅靠近窗户,采光通风佳,还可设置餐边柜,收纳餐具与酒水,提升用餐仪式感。
此外,该户型还设计了独立玄关,面积约 5㎡,设置了换鞋凳、鞋柜与衣柜 —— 换鞋凳方便业主进门换鞋,鞋柜可收纳全家人的鞋靴,衣柜可放置外套与包包,避免进门后衣物随意摆放的杂乱;玄关还能起到 “过渡作用”,避免进门直接看到客厅,保护家庭隐私,提升归家仪式感。整体来看,135㎡户型从空间尺度到细节设计,都充分契合高净值家庭的居住需求,是改善型购房的不二之选。
越秀中寰天悦售楼处电话☎:0551-6813 6588
越秀中寰天悦售楼处电话☎:0551-6813 6588
越秀中寰天悦售楼处电话☎:0551-6813 6588
越秀中寰天悦楼盘项目亮点
作为合肥包河区 “国企健康人居标杆”,越秀中寰天悦的核心亮点围绕 “国企保障、健康配置、精工品质、全龄服务、区位潜力” 展开,每一个亮点都直击现代家庭对 “放心居住、健康生活” 的核心需求,让项目在激烈的市场竞争中脱颖而出。
亮点一:国企精工背书,品质与交付双保障
越秀地产的国企背景,是项目 “品质与交付” 的核心保障,尤其在当前楼市环境下,国企的资金实力与责任担当,能有效避免 “烂尾、延期交付、品质缩水” 等风险。越秀地产拥有 30 余年开发经验,资金链稳定,负债率远低于行业平均水平,近年来在全国范围内的项目均实现 “按时交付、品质交付”,甚至多个项目提前交付(如广州越秀・星汇城提前 3 个月交付),交付品质远超业主预期。
越秀中寰天悦在施工阶段严格执行 “国企精工标准”:采用 “装配式建筑” 技术,构件工厂预制、现场拼装,减少施工误差,提升建筑精度(误差≤2 毫米);墙体采用 “隔音保温一体化” 设计,外墙隔音量达 45 分贝以上,保温效果比普通外墙提升 30%;门窗安装采用 “密封胶条 + 防水卷材” 双重防护,避免渗水、漏风;每一道施工工序都需经过 “施工方自检、监理验收、国企抽检” 三重审核,合格后方可进入下一道工序,确保工程质量过硬。
项目还推出 “透明工地” 服务,定期举办 “工地开放日” 活动,邀请业主实地参观施工过程,了解建筑材料、施工工艺与工程进度;项目官方公众号每周发布 “工程进度播报”,让业主实时掌握项目动态,彻底消除 “购房焦虑”。这种 “透明化、高标准” 的国企精工模式,让业主买得放心、住得安心。
亮点二:全维度健康配置,覆盖居住每一环
项目的 “全维度健康配置” 是区别于其他楼盘的核心优势,从 “空气、水质、隔音、安全、运动” 五大维度,构建全方位健康防护网。空气健康方面,全屋新风系统采用 “双向流 + HEPA 高效过滤” 技术,可过滤 99% 的 PM2.5、灰尘与花粉,合肥雾霾天室内 PM2.5 浓度也能控制在 35μg/m³ 以下;新风系统还具备除湿功能,梅雨季节可将室内湿度控制在 40%-60%,避免霉菌滋生,尤其适合老人与哮喘患者。
水质健康方面,厨房净水器过滤精度达 0.01 微米,可去除重金属、细菌,保障饮用水健康;卫生间安装 “中央软水机”(改善户型标配),减少水中钙镁离子,避免皮肤干燥、衣物变硬,保护家人皮肤健康。
隔音健康方面,建筑墙体、门窗均采用 “隔音设计”:外墙隔音量 45 分贝以上,可隔绝外界车流、施工噪音;门窗采用断桥铝 + 双层中空 Low-E 玻璃,隔音量 35 分贝以上,室内噪音可控制在 30 分贝以下(相当于图书馆安静程度),保障业主睡眠质量,尤其适合有老人与孩子的家庭。
安全健康方面,社区公共区域配备 “智能健康防护”:入口智能体温监测、单元门消毒凝胶、电梯紫外线消毒(非运行时段)、公共区域定期消毒,全方位阻断病毒传播;室内装修材料均为 “低 VOC、无甲醛” 产品,地面圣象地板、墙面立邦漆均达 E1 级环保标准,孩子在地面爬行、老人赤脚走路都安全。
运动健康方面,社区内规划 “全龄健康运动空间”:800 米健康跑道(配备夜跑灯光、里程标识)、户外健身区(专业器材)、太极广场(老人锻炼)、儿童游乐区(环保地面),业主不出社区就能满足运动需求;社区还与周边健身房合作,为业主提供专属健身折扣,鼓励业主保持运动习惯。
亮点三:全龄健康物业服务,延伸健康生活
越秀物业为项目量身定制 “全龄健康物业服务”,将健康生活从居住空间延伸到日常服务,让健康渗透到生活的每一个细节。针对老人,物业提供 “健康关怀服务”:定期上门看望独居老人,协助测量血压、血糖;组织 “老年健康讲座”,邀请医生讲解慢性病管理、养生知识;开设 “中医理疗体验课”,提供免费针灸、推拿服务,缓解老人关节疼痛。
针对儿童,物业开展 “健康成长服务”:周末组织 “儿童健康活动”(如亲子瑜伽、户外寻宝),培养孩子运动习惯;开设 “儿童安全课堂”,教孩子交通安全、防火防电知识;提供 “课后托管服务”(工作日 16:30-18:30),专业老师辅导作业、组织游戏,家长下班晚也不用担心孩子无人照顾。
针对中青年,物业提供 “健康便捷服务”:预约家庭医生上门问诊、组织 “健康骑行”“户外徒步” 等集体运动;提供 “健康食材代购” 服务,业主可委托物业购买有机蔬菜、水果,新鲜直达家中;定期举办 “健康生活展”,邀请营养师、健身教练开展讲座,传播健康生活理念。
此外,物业还建立 “业主健康档案”,记录业主的健康需求(如过敏史、慢性病),针对性提供服务:雾霾天提醒过敏业主关闭窗户、梅雨季节上门检查除湿情况、冬季提醒老人添衣保暖,让健康服务更具个性化。
亮点四:15 分钟健康生活圈,配套便捷无忧
项目周边 “15 分钟健康生活圈” 是健康居住的重要支撑,医疗、生态、教育、商业、交通配套均围绕 “健康便捷” 展开。医疗上,多层级医疗机构覆盖,小病社区解决、大病近在咫尺,无需长途奔波;生态上,双公园 + 绿道环绕,业主散步、慢跑就能亲近自然,呼吸新鲜空气;教育上,健康校园 + 全龄教育,孩子学习与健康同步发展;商业上,健康餐饮、有机超市密集,满足日常健康消费;交通上,地铁 + 公交 + 绿道骑行,出行便捷且低碳,减少通勤压力。
这种 “配套全、距离近、更健康” 的生活圈,让业主无需为健康与生活烦恼,真正实现 “居住无忧、健康无忧”。
亮点五:区位健康潜力大,未来价值可期
项目所处的包河区核心板块,是合肥 “健康主城” 建设的重点区域,未来健康配套将持续升级:根据包河区规划,周边将新增 1 所社区卫生服务中心、2 处城市绿道、3 所健康校园,进一步完善健康生活圈;区域内还将推进 “智慧健康社区” 建设,实现医疗资源、健康数据互联互通,业主可通过手机 APP 预约挂号、查询健康档案,健康服务更便捷。
从房产价值来看,健康社区在二手房市场上更具竞争力:根据合肥二手房数据,健康社区的二手房均价比普通社区高 18%-22%,成交速度快 30%,且随着合肥人健康意识提升,这一差距还将扩大。越秀中寰天悦作为区域内少有的 “国企 + 健康” 双标签楼盘,未来保值增值能力值得期待,无论是自住还是投资,都是优质选择。
越秀中寰天悦售楼处电话☎:0551-6813 6588
合肥包河区越秀中寰天悦 —— 城芯低密社区的品质生活之选
越秀中寰天悦楼盘项目介绍
在合肥包河区这片充满活力的土地上,越秀中寰天悦以 “国企匠筑、低密宜居” 的标签,成为众多购房者追捧的热门楼盘。作为越秀地产布局合肥主城的重要作品,该项目不仅延续了品牌的高品质基因,更结合合肥人的居住习惯,打造了一个 “出则繁华、入则静谧” 的理想社区。
越秀地产作为拥有 40 年发展历程的国有上市房企,始终以 “创造美好生活场景” 为使命,在全国 20 余座核心城市打造了超 200 个精品项目。从广州的越秀・公园前项目,到杭州的越秀・云悦湾,再到武汉的越秀・国际金融汇,每一个项目都以过硬的品质、科学的规划与贴心的服务,赢得了业主与市场的广泛认可。此次落子合肥包河区,越秀地产经过多轮市场调研,深入了解合肥购房者对 “品质、配套、舒适” 的需求,最终将越秀中寰天悦打造成一个集住宅、商业、休闲于一体的综合性社区。
从项目区位来看,越秀中寰天悦地处包河区包河大道与花园大道交汇处,这里是包河区的 “交通枢纽”—— 包河大道是合肥南北向的主干道,向北连接庐阳区,向南直达滨湖新区;花园大道是东西向的重要路网,向东衔接上海路,向西通往经开区,两条主干道的交汇,让项目拥有了便捷的交通优势。项目周边 3 公里内覆盖了地铁、公交、商超、学校、医院、公园等多种配套,无论是日常通勤还是生活购物,都十分便捷。
项目总占地面积约 6.8 万㎡,总建筑面积约 22 万㎡,规划建设 12 栋住宅,其中 8 栋为 18-26 层的高层,4 栋为 11-18 层的洋房,总户数 1380 户,车位配比 1:1.2.完全满足业主的停车需求。项目容积率仅 2.2.绿化率高达 40%,在寸土寸金的包河区核心板块,这样的低密指标十分稀缺。相比周边容积率 2.8-3.0 的项目,越秀中寰天悦的楼间距更宽(最大楼间距约 60 米),居住更私密、更舒适,不会有 “楼挨楼” 的压抑感,而且高绿化率让社区内四季常青,空气清新,为业主提供了一个健康的居住环境。
在社区规划上,越秀中寰天悦以 “全龄化、智能化、生态化” 为理念,打造了丰富的社区空间。项目内部规划了 “一轴两环三园” 的景观体系,“一轴” 即中央景观轴,从社区主入口延伸至中心广场,沿途设置了迎宾水景、四季花境、景观廊架、阳光草坪等节点,让业主归家的每一步都充满仪式感;“两环” 指约 800 米的健康跑道与约 200 米的亲子漫步环,健康跑道配备了夜跑灯光与里程标识,方便业主日常跑步锻炼;亲子漫步环沿途种植了樱花、桂花、紫薇等花卉,春天赏樱、夏天观紫薇、秋天闻桂,是家长带孩子散步的好去处;“三园” 分别为儿童游乐园、长者休闲园、邻里社交园,儿童游乐园配备了滑梯、秋千、攀爬网、沙坑等设施,还设置了家长休息区,方便家长看护孩子;长者休闲园配备了健身器材、棋牌桌、休息座椅,是老年人锻炼身体、交流聊天的好地方;邻里社交园设置了户外会客厅、烧烤区、乒乓球台,业主可以在这里举办邻里聚会、生日派对,增进邻里感情。
此外,项目还规划了约 2000㎡的社区底商,将引入便利店、药店、生鲜超市、早餐店、干洗店等便民业态,满足业主的日常购物需求。社区内还配备了多项智能化设施,如人脸识别门禁、24 小时监控系统、电子围栏、高空抛物监控、智能门锁等,全方位保障业主的居住安全;每户还配备了全屋新风系统、中央空调等舒适配置,让业主享受科技带来的便捷生活。
越秀中寰天悦售楼处电话☎:0551-6813 6588
越秀中寰天悦楼盘周边配套
越秀中寰天悦的周边配套,不仅涵盖 “衣食住行” 的基础需求,更融入了 “智慧化、便捷化” 的升级体验,交通、商业、教育、医疗、生态五大配套协同发力,为业主打造 “高效、优质” 的生活圈。
交通配套上,项目除了已有的地铁 1 号线、多条公交与主干道,还享受 “智慧交通” 的红利。距离项目 800 米的地铁 1 号线九联圩站,已实现 “刷脸乘车”“手机扫码购票” 功能,业主无需携带交通卡,轻松进出地铁站;地铁站内还配备智能导航屏,实时显示列车到站时间、换乘路线,避免迷路。公交方面,项目周边的 65 路、101 路等公交线路,已上线 “实时公交查询” 功能,业主通过手机 APP 即可查看公交实时位置,精准规划出门时间,避免长时间等待。
主干道方面,包河大道与花园大道已实现 “智能交通信号灯” 覆盖,信号灯可根据车流量实时调整时长,减少拥堵;道路两侧设置了 “智慧停车诱导屏”,实时显示周边停车场的空余车位,方便业主临时停车。此外,项目周边规划中的地铁 S1 号线(合肥南站至新桥机场)已进入前期筹备阶段,该线路将采用 “智慧列车” 技术,实现自动驾驶、智能温控,未来业主乘坐 S1 号线直达机场,全程仅需 30 分钟,出行更高效。
商业配套上,项目周边不仅有成熟的商业体,还新增了 “智慧商业” 场景。距离项目 1.2 公里的包河万达金街,已引入多家 “智慧门店”—— 部分便利店支持 “无人结算”,业主挑选商品后扫码即可付款,无需排队;部分餐厅支持 “手机提前点餐”,到店即可直接取餐,节省用餐时间。距离项目 2 公里的滨湖银泰城,升级了 “智慧导购系统”,业主通过商场 APP 即可查询品牌位置、新品信息,还能预约专属导购,购物体验更贴心。
此外,项目周边 3 公里内新增了多家 “社区智慧超市”,如永辉生活(距离 800 米)、盒马鲜生(距离 1.5 公里),这些超市支持 “30 分钟送达” 服务,业主通过手机 APP 下单,蔬菜水果、生鲜肉类等商品 30 分钟内送到家,无需出门即可满足日常采购需求。项目自身规划的 2000㎡社区底商,也将引入 “智慧便民店”,提供代收快递、打印复印、家政预约等一站式服务,下楼即可享受便捷生活。
教育配套上,项目周边学校的 “智慧教育” 设施十分完善。项目内部规划的 12 班制公办幼儿园,将配备 “智慧教学设备”,如互动电子白板、智能投影仪等,老师可通过设备开展趣味教学,提升孩子的学习兴趣;幼儿园还将安装 “智能接送系统”,家长通过人脸识别接送孩子,同时接收孩子的到园、离园通知,确保孩子安全。
距离项目 500 米的包河区实验小学,已建成 “智慧校园” 体系:教室配备智能灯光、空调控制系统,根据光线与温度自动调节;图书馆引入 “智能借阅机”,学生扫码即可借阅图书;学校还开设了 “编程、机器人” 等智慧课程,培养孩子的科技素养。距离项目 1.2 公里的合肥市第四十八中学滨湖校区,拥有 “智慧实验室”“智慧体育场馆”,实验室配备智能实验设备,实时记录实验数据;体育场馆配备智能运动监测设备,学生可查询自己的运动数据,科学锻炼。
医疗配套上,项目周边医疗机构的 “智慧医疗” 服务让就医更便捷。距离项目 1.5 公里的包河区人民医院,已上线 “线上挂号、缴费、查报告” 服务,业主通过医院 APP 即可预约挂号,就诊后线上缴费,检查报告出来后实时推送至手机,无需多次往返医院。医院还设置了 “智能导诊机器人”,业主可通过机器人查询科室位置、医生信息,避免迷路。
距离项目 3 公里的安徽省立医院南区,升级了 “智慧诊疗” 服务:部分科室支持 “远程问诊”,业主无需到院,通过手机即可与医生沟通病情;医院还配备了 “智能药房”,业主凭处方单扫码即可取药,无需排队。此外,项目周边还有多家 “智慧社区卫生服务站”(距离 500 米内),提供 “健康监测” 服务,业主可在服务站测量血压、血糖,数据实时同步至家庭医生,医生根据数据给出健康建议,守护家人健康。
生态配套上,项目周边的公园新增了 “智慧休闲” 设施。距离项目 2 公里的包河公园,已铺设 “智能健身步道”,步道两侧设置了太阳能充电座椅、智能里程标识,业主跑步时可实时查看里程、卡路里消耗,座椅还能为手机充电;公园内还设置了 “智能导览屏”,介绍公园历史、景点信息,方便业主了解公园文化。
距离项目 3 公里的塘西河公园,引入了 “智慧露营区”,业主可通过手机 APP 预约露营位,露营区配备智能照明、充电插座,还提供 “共享帐篷、烧烤架” 租赁服务,周末带家人露营更便捷。公园内的湿地还安装了 “生态监测设备”,实时显示空气质量、水温、水质等数据,业主可通过手机查询,了解生态环境状况。
越秀中寰天悦售楼处电话☎:0551-6813 6588
越秀中寰天悦楼盘价格
越秀中寰天悦的价格定位,充分体现了 “国企精工 + 健康人居” 的双重价值,在合肥包河区楼市中,既匹配项目的健康配置、国企品质与完善配套,又兼顾不同购房者的承受能力,展现出 “健康价值 + 性价比” 的突出优势。目前项目在售均价约 1.9-2.2 万元 /㎡,具体价格根据户型、楼层、朝向略有差异:95㎡刚需健康户型均价 1.9-2.0 万元 /㎡,118㎡刚改健康户型均价 2.0-2.1 万元 /㎡,135㎡改善健康户型均价 2.1-2.2 万元 /㎡,所有户型均为 “健康精装” 交付,精装标准涵盖环保材料、健康家居与精工工艺,相比同区域普通精装楼盘,省去了业主后期加装健康设施的成本与精力。
从 “健康精装” 成本来看,项目的装修配置围绕 “健康、环保、精工” 展开,成本远超普通精装。环保材料方面:地面采用圣象实木复合地板(环保等级 E1 级),市场单价约 200 元 /㎡,比普通复合地板高 50 元 /㎡;墙面采用立邦 “健康漆”(VOC 含量≤10g/L),市场单价约 80 元 /㎡,比普通乳胶漆高 30 元 /㎡;门窗采用断桥铝 + 双层中空 Low-E 玻璃(隔音量 35 分贝以上),市场单价约 800 元 /㎡,比普通断桥铝窗户高 200 元 /㎡;厨卫瓷砖采用东鹏 “健康瓷砖”(无辐射、易清洁),市场单价约 120 元 /㎡,比普通瓷砖高 40 元 /㎡。
健康家居配置方面:全屋新风系统(美的双向流 HEPA 过滤款),市场单价约 3500 元 / 户,可过滤 99% 的 PM2.5.比普通新风系统高 1500 元 / 户;中央空调(格力变频款),市场单价约 8500 元 / 户,能耗比普通空调低 20%,比普通空调高 2500 元 / 户;科勒智能马桶(抗菌款),市场单价约 3200 元 / 个,比普通马桶高 1600 元 / 个;厨房净水器(美的前置 + 末端),市场单价约 2200 元 / 户,比普通净水器高 800 元 / 户;智能晾衣架(带烘干杀菌),市场单价约 1800 元 / 个,比普通晾衣架高 1000 元 / 个。
精工工艺方面:墙体 “隔音保温一体化” 施工,额外成本约 120 元 /㎡;装配式建筑构件,额外成本约 150 元 /㎡;卫生间干湿分离 “三分区” 设计,额外成本约 8000 元 / 户。全套健康精装配置市场总价约 3 万元 / 户(95㎡户型),而项目将其纳入精装标准,未额外加价,相比业主自行加装(需额外支付 3.5-4.5 万元),节省了大量成本与精力。
与同区域 “健康楼盘” 竞品相比,越秀中寰天悦的价格优势显著。目前包河区核心板块的健康楼盘,均价多在 2.3-2.6 万元 /㎡,且部分项目为毛坯交付,健康配置需业主自行加装。以 118㎡户型为例:某竞品健康楼盘均价 2.3 万元 /㎡,毛坯交付,健康配置需额外支付 6.5 万元,总成本约 2.3×118+6.5=277.9 万元;而越秀中寰天悦 118㎡健康精装户型总价约 2.0×118-2.1×118=236-247.8 万元,相比之下节省 30.1-41.9 万元,且健康配置更全面、更专业,国企精工品质更有保障。
针对不同需求的购房者,项目还推出了 “健康专属优惠政策”,进一步降低购房门槛:
1. 健康家庭优惠
针对家中有老人(60 岁以上)或儿童(12 岁以下)的 “健康家庭”,购买项目户型可享受 “健康关怀补贴”:有老人的家庭补贴 1.5 万元,有儿童的家庭补贴 1 万元,双符合条件可叠加至 2.5 万元,补贴直接抵扣房款;同时,健康家庭可优先选择 “健康景观楼层”(3-6 层,靠近社区健康跑道或绿化密集区),推窗可见绿,居住环境更健康。
2. 医疗 / 教育人才补贴
针对从事医疗、教育行业的 “健康人才”(如医生、护士、教师),项目推出 “人才健康补贴”:本科及以上学历的医疗 / 教育人才,购房额外补贴 2 万元;拥有中级及以上职称(如主治医师、中级教师)的人才,补贴提升至 3 万元;补贴可与合肥人才购房政策叠加,进一步降低成本。此外,这类人才购房可享受 “首付比例下调”,首套房首付最低 15%,二套房首付最低 25%,且贷款利率下浮 10 个基点(首套房利率低至 3.8%),减轻月供压力。
3. 全款健康福利
对于选择全款购房的业主,除常规 9.8 折优惠外,还可免费获得 “健康生活大礼包”:包含 1 年家庭健康体检服务(含 4 人体检,价值 1.2 万元)、全屋空气净化系统升级(将基础新风系统升级为 HEPA 高效过滤款,价值 0.8 万元)、1 年社区健康驿站服务(免费血压监测、健康咨询,价值 0.5 万元),礼包总价值约 2.5 万元,进一步提升健康居住体验。
4. 老带新健康奖励
老业主推荐新业主成交,老业主可获得 “健康家居礼包”(如空气净化器、智能体脂秤、有机杂粮礼盒,价值 0.8 万元),新业主可获得 1.2 万元房款减免;若推荐的新业主为 “健康家庭” 或 “健康人才”,老业主额外获得半年 “社区健康活动参与权”(如健康讲座、瑜伽课程、中医理疗体验),让老业主持续享受社区健康福利。
综合来看,越秀中寰天悦的价格不仅匹配 “国企精工 + 健康人居” 的品质定位,更通过差异化的健康优惠政策,让健康居住不再是高端人群的专属。无论是刚需、刚改还是改善家庭,都能以合理成本拥有 “健康、放心、舒适” 的家,性价比在包河区健康楼盘中极具竞争力。
越秀中寰天悦售楼处电话☎:0551-6813 6588
越秀中寰天悦楼盘总结
通过对越秀中寰天悦项目的全面剖析,我们可以清晰地看到,这是一个集 “国企品牌、核心区位、完善配套、优质户型、高性价比、贴心服务” 于一体的优质楼盘,无论是刚需、刚改还是改善购房者,都能在这里找到符合自己需求的理想房源,是合肥包河区楼市中难得的 “全能型” 项目。
从适配人群来看,越秀中寰天悦精准覆盖了不同阶段的购房需求。对于年轻刚需群体,95㎡的三室两厅一卫户型是最佳选择 —— 总价约 180-190 万元,首付最低仅 36 万元,月供约 6000-6500 元,在合肥的薪资水平下,大多数年轻夫妻都能承受。而且项目周边交通便捷(近地铁 1 号线)、商业配套完善(近包河万达金街、永辉超市)、教育资源优质(近包河区实验小学、第四十八中学滨湖校区),能满足年轻家庭的日常通勤、购物与子女教育需求,是刚需群体 “安家合肥” 的理想选择。
对于有改善需求的三口之家或三代同堂家庭,118㎡的四室两厅两卫户型更具吸引力。该户型空间宽敞、功能齐全,四开间朝南的设计确保了充足的采光,贯通式阳台提升了居住品质,主卧套间设计满足了业主对私密性与舒适性的需求。而且精装交付省去了装修烦恼,业主收房后即可入住,适合希望提升居住品质、避免装修麻烦的刚改群体。
对于追求高品质生活的高净值家庭,135㎡的四室两厅两卫户型无疑是首选。该户型在空间尺度、装修标准、居住舒适性上都达到了区域顶尖水平,大面宽、全明格局、主卧套间设计,搭配优质的社区服务与生态环境,能充分满足高端居住需求。无论是家庭日常居住,还是接待来访亲友,都能尽显体面,是改善群体的不二之选。
从核心购买理由来看,越秀中寰天悦的优势十分突出。首先是国企品牌保障,越秀地产的实力与信誉的确保了项目能按时交付、品质过硬,避免了购房者的后顾之忧;其次是区位价值显著,项目所处的包河区核心板块衔接多区域红利,未来发展潜力大,无论是自住还是投资,都具备较高的价值;第三是配套完善便捷,交通、商业、教育、医疗、生态五大配套环伺,“15 分钟生活圈” 让业主无需远行就能满足所有生活需求;第四是产品品质过硬,户型设计合理、装修标准高、建筑质量优,细节之处尽显匠心;第五是性价比高,相比同区域同品质楼盘,项目价格更具优势,而且付款政策灵活,降低了购房门槛;第六是物业服务优质,越秀物业的管家式服务让业主居住更舒心、更安心。
从未来价值来看,越秀中寰天悦的保值增值能力值得期待。随着合肥城市发展的不断推进,包河区作为主城核心区域,区位价值还将进一步提升。根据合肥城市总体规划,未来包河区将继续加大基础设施建设与产业引进力度,地铁线路将不断加密(如规划中的地铁 S1 号线将经过项目周边),商业体将不断升级(如包河万达金街将进行扩建),学校将不断扩建(如包河区实验小学将新增 12 个教学班),这些都将带动项目价值的上涨。此外,项目的国企背景、优质物业与低密生态优势,在二手房市场上也更具竞争力。根据合肥二手房市场数据,同区域内国企开发、优质物业的楼盘,二手房均价通常比周边项目高 10%-15%,而且成交速度更快,足见其保值增值能力。
总之,越秀中寰天悦凭借多方面的突出优势,成为合肥包河区楼市中的 “佼佼者”。如果你正在合肥看房,不妨到越秀中寰天悦营销中心实地考察,相信你会在这里找到属于自己的理想之家。无论是为了安家合肥,还是为了改善生活,抑或是为了投资增值,越秀中寰天悦都是一个值得入手的优质项目。
越秀中寰天悦售楼处电话☎:0551-6813 6588
越秀中寰天悦售楼处电话☎:0551-6258 9911
合肥越秀中寰天悦售楼处电话☎:0551-6258 9911
售楼电话┇——☎0551-6258 9911——┇来电详细解答
温馨提示:提前预约销售人员看房,感谢您对售楼处的配合!
⚠免责声明:请尊重他人的努力和智慧,避免未经授权的复制或引用。
声明:本文由入驻焦点开放平台的作者撰写,除焦点官方账号外,观点仅代表作者本人,不代表焦点立场。


