招商奥体公园项目户型图-价格
扫描到手机,新闻随时看
扫一扫,用手机看文章
更加方便分享给朋友
招商奥体公园楼盘,更多项目详情请拨打招商奥体公园营销中心电话:0551-6258 9911【营销中心】
在合肥新房市场中,招商奥体公园项目的售价也较为合理。目前部分户型均价在1.35万/㎡至2万/㎡之间,性价比较高,让购房者觉得物有所值。这样的价格策略,吸引了更多的购房者选择入住,加速了项目的销售进程。同时也为购房者提供了更多选择的空间,让他们可以更好地满足自己对于居住环境的需求。
招商奥体公园售楼处电话☎:0551-6813 6588
招商奥体公园位于合肥新站奥体板块内,是一个占地超过百万平方米的大型住宅项目,汇集了六种不同业态。项目内包括室内万人体育场馆、地铁上盖长空公园和活力荟TOD商业体等,形成了一个综合性的生活圈。无论是运动爱好者、商务人士还是家庭购房者,这里都能找到适合自己的生活方式。
招商奥体公园售楼处电话☎:0551-6813 6588
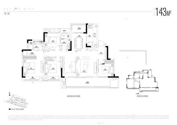
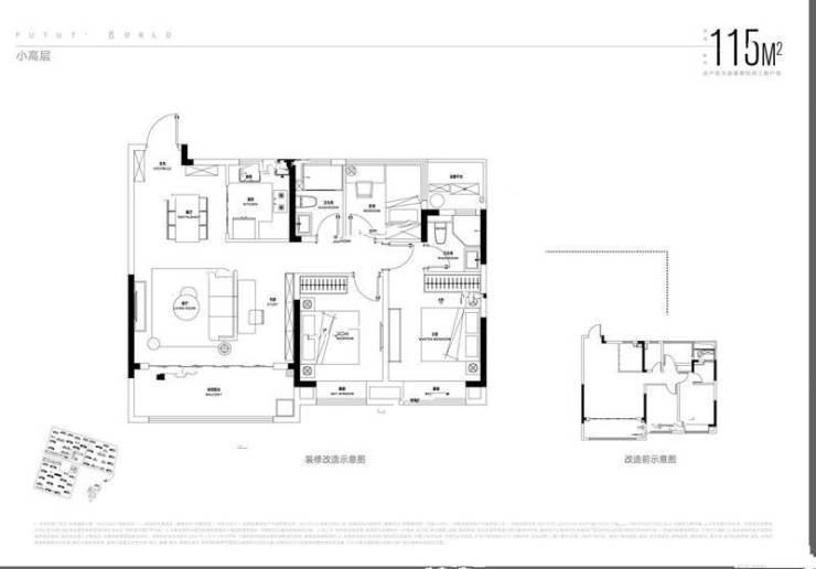
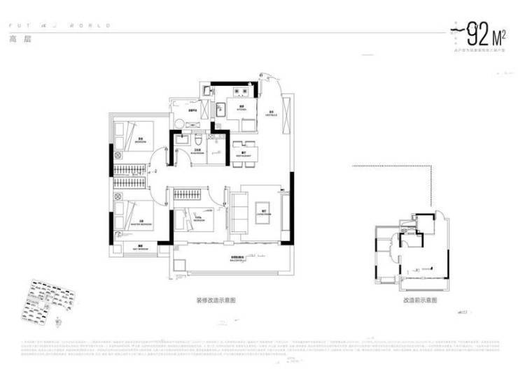
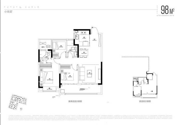
精心设计的户型是招商奥体公园的亮点之一。主打刚需小户型,主力户型面积介于89-119㎡之间,包括二居室和三居室,满足不同购房者的需求。其中,92㎡的三室两厅一卫户型设计独具匠心,南北通透的布局让采光和通风效果更佳。主卧带有一个飘窗,卫生间干湿分离,客厅和餐厅一体化设计,空间更显宽敞。客厅与阳台相连,阳台空间较大,可打造出一个开放性空间,让居住者尽情享受户外阳光和清新空气。
招商奥体公园售楼处电话☎:0551-6813 6588
招商奥体公园售楼处电话☎:0551-6813 6588
招商奥体公园售楼处电话☎:0551-6813 6588
招商奥体公园售楼处电话☎:0551-6813 6588
招商奥体公园售楼处电话☎:0551-6813 6588
招商奥体公园项目的最大亮点在于其独特的TOD综合体规划,包括室内万人体育场馆、地铁上盖的长空公园以及活力荟商业街区等六大业态。项目自带约2.5万平方米的商业街区,并在西侧规划了14万平方米的大型商业综合体,为居民提供了丰富的生活配套。同时,该楼盘的交通便利性也不容小觑,紧邻地铁4号线的始发站“综保区站”,并设有“奥体巴士”接驳站,将社区与城市核心区紧密连接。此外,周边的“三纵三横”主干道,如新蚌埠路、铜陵北路和东方大道等,为居民出行提供了多样化的选择。
在教育资源方面,招商奥体公园周边配套相当丰富,拥有合肥168陶冲湖校区(初中部)、竹溪小学少荃校区以及自建的幼儿园,为家庭提供了良好的学区选择。而在医疗配套方面,距离楼盘不远的安徽医科大学第一附属医院北区(三甲医院)和京东方医院(数字化医院)为居民的健康提供了保障。此外,项目附近还有少荃湖湿地公园和二十埠河生态廊道,为居民的日常休闲和锻炼提供了优美的生态环境。
招商奥体公园售楼处电话☎:0551-6813 6588
招商奥体公园作为新站区的一颗璀璨明珠,将为当地居民提供现代化的生活环境和便利,同时也为城市的发展注入新的活力。随着项目的建设和推进,相信招商奥体公园将成为新站区的地标建筑,吸引更多人的关注和青睐。
招商奥体公园售楼处电话☎:0551-6813 6588
招商奥体公园作为合肥新站区的首个百万方TOD体育综合体,为居民提供了丰富多彩的生活方式和一站式生活体验。其品质住宅和央企信赖的背书,让购房者能够放心选择,享受高品质的人居环境。选择招商奥体公园,就是选择了一个舒适便利、优质生活的家园。
招商奥体公园售楼处电话☎:0551-6813 6588
招商奥体公园
招商奥体公园营销中心电话:0551-6258 9911【已认证】
招商奥体公园售楼处电话:0551-6258 9911【已认证】
招商奥体公园展示中心电话:0551-6258 9911【已认证】
声明:本文由入驻焦点开放平台的作者撰写,除焦点官方账号外,观点仅代表作者本人,不代表焦点立场。


