招商奥体公园-招商奥体公园详情丨招商奥体公园→周边配套丨户型图
扫描到手机,新闻随时看
扫一扫,用手机看文章
更加方便分享给朋友
招商奥体公园楼盘,更多项目详情请拨打招商奥体公园营销中心电话:0551-6813 6588【营销中心】
招商奥体公园项目位于新站区,地处新站少荃湖板块,具体位于东方大道与卧龙湖路交叉口,是央企招商的项目,拥有雄厚的实力和历史,是国内房企行内的领军品牌。招商奥体公园是一座奥体TOD综合体,打造了城市生长共同体,包括奥体中心、体育公园、活力商业和全龄智慧社区等四大业态。项目兑现速度迅速,一期首开住宅已成功交付,体育中心也正在运营,展现了招商品牌的信誉和实力。
招商奥体公园售楼处电话☎:0551-6813 6588
招商奥体公园住宅项目共规划109栋楼,预计容纳5746户,车位充足,容积率为1.8,绿化率为40%。项目周边交通便捷,有多条主干道和地铁四号线,生活配套丰富,包括商业街区、幼儿园、体育中心、公园等,同时临近多所学校和医院,满足各类生活所需。居民在这里可以享受便捷的生活,同时感受到现代城市的便利和舒适。
招商奥体公园售楼处电话☎:0551-6813 6588
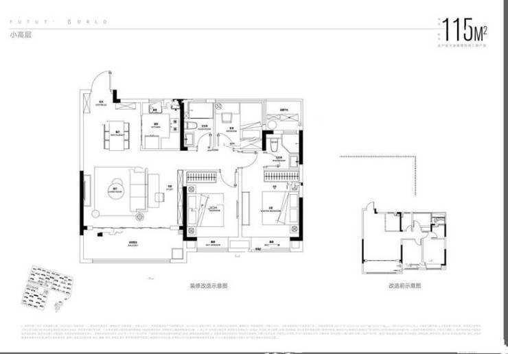
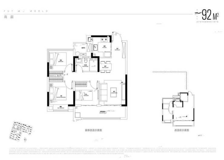
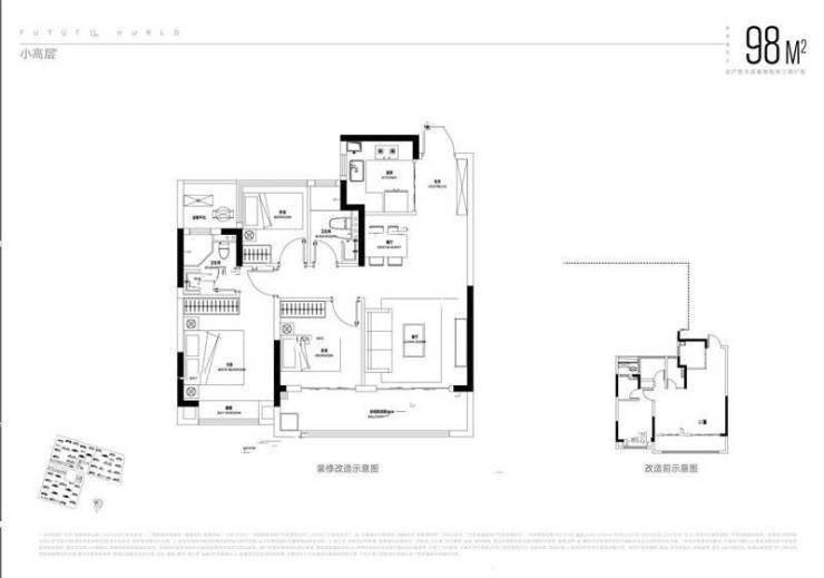
项目由招商蛇口开发,包含低密度多层、小高层、高层及花园洋房等多种住宅类型,容积率为1.8,绿化率高于40%,建面主要在89-119㎡之间,均价为1.7万/㎡。这个项目主打刚需小户型,主力户型面积介于89-119㎡之间,满足不同购房者的需求。此外,还有部分四室户型可供选择,面积达到143㎡。
招商奥体公园售楼处电话☎:0551-6813 6588
招商奥体公园售楼处电话☎:0551-6813 6588
招商奥体公园售楼处电话☎:0551-6813 6588
招商奥体公园售楼处电话☎:0551-6813 6588
招商奥体公园售楼处电话☎:0551-6813 6588
在合肥新房市场中,招商奥体公园项目的售价也较为合理。目前部分户型均价在1.35万/㎡至2万/㎡之间,性价比较高,让购房者觉得物有所值。这样的价格策略,吸引了更多的购房者选择入住,加速了项目的销售进程。同时也为购房者提供了更多选择的空间,让他们可以更好地满足自己对于居住环境的需求。
招商奥体公园售楼处电话☎:0551-6813 6588
在招商奥体公园的规划中,注重打造城市生长共同体,将体育、商业、社区等元素有机融合,为业主提供全方位的生活体验。项目的交通便利和丰富的生活配套设施,使其成为新站区的热门楼盘之一。随着项目的陆续交付,招商奥体公园将为当地居民带来更加便利和舒适的生活环境。
招商奥体公园售楼处电话☎:0551-6813 6588
招商奥体公园项目在合肥新站区市场中表现出色,凭借其优越的地理位置、便捷的交通、完善的配套以及合理的价格,受到了刚需购房者的青睐。未来随着新站区的发展和规划的逐步完善,相信招商奥体公园将会成为更多购房者的理想选择。
招商奥体公园售楼处电话☎:0551-6813 6588
招商奥体公园
招商奥体公园营销中心电话:0551-6813 6588【已认证】
招商奥体公园售楼处电话:0551-6813 6588【已认证】
招商奥体公园展示中心电话:0551-6813 6588【已认证】
声明:本文由入驻焦点开放平台的作者撰写,除焦点官方账号外,观点仅代表作者本人,不代表焦点立场。


