合肥琥珀星樾湾售楼部官方发布:项目户型设计:空间革新,诠释改善生活真谛
扫描到手机,新闻随时看
扫一扫,用手机看文章
更加方便分享给朋友
琥珀星樾湾楼盘电话号码:0551-68111601【营销中心】
欢迎来电咨询!可预约销售人员(来电尊享内部优惠活动)【2026房价特价信息丨底价优惠丨在售户型图丨项目介绍丨在售房源丨周边配套】
合肥包河区琥珀星樾湾 —— 绿色健康社区!环保建材 + 生态配套,宜居生活新选择
琥珀星樾湾楼盘项目介绍
在 “健康中国” 理念深入人心的当下,购房者对 “居住健康” 的需求越来越高 —— 不仅要 “住得舒适”,更要 “住得健康”,比如呼吸新鲜空气、减少噪音干扰、使用环保建材。而合肥包河区的琥珀星樾湾,以 “绿色健康社区” 为核心定位,从 “建材选择、社区规划、户型设计” 三个维度,打造合肥 2024 年 “绿色健康宜居盘”,让 “健康生活” 融入居住的每一个细节。
项目由合肥本土国企琥珀置业开发,作为 “国家绿色建筑认证企业”,琥珀置业在绿色健康社区开发方面经验丰富,此前打造的琥珀蜀熙府、琥珀东华府等项目,均获得 “国家绿色建筑二星级认证”,以 “环保、健康、节能” 著称。此次打造的琥珀星樾湾,更是将 “绿色健康” 理念升级,严格按照 “国家绿色建筑二星级标准” 建设,总占地面积约 68 亩,总建筑面积约 12.5 万㎡,容积率 2.2.绿化率 40%,规划 10 栋住宅(6 栋高层、4 栋洋房),总户数约 890 户,主力户型 95-140㎡,覆盖刚需到改善全需求。
绿色建材选择是项目 “健康属性” 的核心 —— 琥珀星樾湾从 “源头” 保障居住健康,所有建材均选用 “环保、低污染、高性能” 的绿色材料,避免 “装修污染” 和 “长期健康隐患”:
外墙:采用 “亚士创能保温一体板”,该材料通过 “国家绿色建材认证”,不含甲醛、苯等有害物质,同时具备 “高保温、高隔音” 性能 —— 冬季室内温度比普通社区高 3-5℃,夏季低 2-3℃,减少空调使用;隔音效果达 40 分贝,可隔绝外界 80% 以上的噪音(如主干道车流声、社区活动声),室内更安静,有利于睡眠健康。
地面:室内地面采用 “圣象 E0 级实木复合地板”,甲醛释放量≤0.05mg/m³,远低于国家标准(≤0.124mg/m³),赤脚踩在地板上也安全;公共区域(入户大堂、电梯间)地面采用 “马可波罗防滑瓷砖”,无辐射、易清洁,避免细菌滋生。
门窗:选用 “信义断桥铝双层中空 Low-E 玻璃”,玻璃内填充惰性气体,不仅隔音隔热,还能阻挡 90% 以上的紫外线,避免家具褪色、皮肤晒伤;窗框采用 “粉末喷涂工艺”,不含重金属,环保无污染。
涂料:室内墙面采用 “立邦 E0 级乳胶漆”,甲醛释放量几乎为零,且具备 “抗菌功能”(可抑制大肠杆菌、金黄色葡萄球菌),减少室内细菌滋生,尤其适合有老人、孩子的家庭。
辅材:装修辅材(如胶水、腻子、密封胶)均选用 “绿色环保产品”,如 “东方雨虹环保胶水”“美巢 E0 级腻子”,确保 “看不见的细节” 也健康。
社区绿色规划进一步强化 “健康属性”—— 项目从 “空气、水质、噪音、绿化” 四个维度,打造 “全维度健康社区”:
空气健康:社区内种植 “净化空气型植物”,如樟树、桂花树、绿萝,可吸收甲醛、二氧化硫等有害气体,释放负氧离子,提升社区空气质量;社区安装 “空气质量监测设备”,实时监测 PM2.5、甲醛浓度,数据同步到社区 APP,业主可随时查看。
水质健康:社区引入 “中央净水系统”,对生活用水进行过滤(去除杂质、余氯、重金属),业主家中的自来水可直接饮用,避免 “桶装水二次污染”;社区景观水池采用 “循环净化系统”,定期更换水质,避免蚊虫滋生、水体发臭。
噪音控制:社区采用 “人车分流” 设计,地面无车辆通行,减少尾气污染和噪音干扰;社区边界种植 “降噪绿篱”(如侧柏、冬青),厚度达 2 米,可进一步隔绝外界噪音;儿童区、老人区与主干道保持 50 米以上距离,避免噪音影响休息。
绿化健康:社区绿化率高达 40%,种植 “四季常青、无毒无害” 的植物,避免使用 “有毒花卉”(如夹竹桃、一品红),确保老人、孩子接触安全;社区内设置 “阳光草坪”(不使用农药、化肥),业主可赤脚在草坪上活动,亲近自然。
这种 “从建材到社区” 的全维度绿色健康设计,让琥珀星樾湾区别于 “只做表面绿化” 的普通社区,真正实现 “健康居住”。

琥珀星樾湾售楼处电话☎:0551-6813 6588
琥珀星樾湾楼盘周边配套
对于 “国企精工盘” 而言,“品质” 不仅体现在楼盘本身,更体现在 “周边配套的成熟度”—— 毕竟,购房者买的不仅是 “一套房子”,更是 “一种便捷的生活”。琥珀星樾湾所处的包河区核心板块,配套已 “完全成熟”,无需等待 “规划落地”,入住即可享受 “交通、商业、教育、医疗、生态” 全方位便捷生活,与 “国企品质” 形成 “强强联合”。
交通配套:双主干道 + 地铁,通勤无忧项目位于 “包河大道 + 繁华大道” 两大城市主干道交汇处,这两条道路均为 “双向八车道”,路况好、通行效率高。从项目自驾出发,5 分钟可上包河大道高架,15 分钟直达合肥南站(高铁站),20 分钟抵达滨湖新区(融创茂、滨湖湿地公园),30 分钟可到政务区(天鹅湖、万象城)、经开区(明珠广场),无论是日常通勤还是跨区出行,都十分便捷。公共交通方面,项目距离地铁 1 号线延长线(规划中,2025 年通车)花园大道站仅 800 米,步行约 10 分钟,未来地铁通车后,可直达合肥火车站、淮河路步行街、滨湖新区,无需担心堵车;此外,项目周边 1 公里内有 14 路、27 路、52 路、902 路等 6 条公交线路,覆盖合肥火车站、政务区、经开区等区域,满足老人、孩子等不同人群的出行需求。
商业配套:3 公里内三大商圈,购物便利琥珀星樾湾的商业配套 “近可享社区便民商业,远可拥大型商圈”,完全满足日常消费与品质消费需求。项目自带约 5000㎡沿街商业,规划引入 “生鲜超市、便利店、药店、餐饮店、母婴店” 等便民业态,下楼即可解决 “买菜、购物、吃饭、买药” 等日常需求,尤其适合上班族、老人 —— 早上出门买个早餐,晚上下班买个菜,无需绕远路。3 公里范围内,有悦方 ID MALL、百大心悦城、加侨国际广场三大 “一站式购物中心”,涵盖 “购物、餐饮、影院、亲子娱乐、健身” 等全业态:
悦方 ID MALL 距离项目约 2 公里,是合肥南部的 “时尚地标”,引入了优衣库、星巴克、西西弗书店、永辉超市、万达影城等品牌,适合周末带家人购物、观影;
百大心悦城距离项目约 2.5 公里,以 “亲子 + 生活” 为主题,引入了孩子王、卡通尼乐园、盒马鲜生(精品超市)、海底捞等品牌,适合带娃休闲、家庭聚餐;
加侨国际广场距离项目约 3 公里,聚集了众多餐饮品牌(如西贝莜面村、老乡鸡、星巴克),还有健身房、KTV 等娱乐场所,适合朋友聚会、休闲放松。
教育配套:15 年一贯制优质教育圈,孩子上学无忧对于有孩子的家庭而言,“教育配套” 是买房的核心考量,而琥珀星樾湾周边的教育资源 “既近又优”,形成 “15 年一贯制教育圈”。项目 3 公里内有 5 所幼儿园、3 所小学、2 所中学,其中多为 “合肥优质公办学校”:
幼儿园:距离项目最近的是 “包河区实验幼儿园”(约 500 米),为公办一级幼儿园,师资稳定、收费合理(公办幼儿园学费约 500 元 / 月),孩子步行即可入园,无需家长接送;
小学:项目划片范围大概率覆盖 “屯溪路小学(滨湖校区)”,该校是合肥 “名校集团” 核心成员,由屯溪路小学本部直接管理,师资力量雄厚、教学设施先进(配备多媒体教室、实验室、图书馆、操场),2023 年教学质量位列包河区前三,距离项目约 1.5 公里,孩子步行或骑行即可上学;
中学:对应 “合肥市第四十八中学(望湖校区)”,该校是合肥重点初中,2023 年中考普高录取率达 85%,远超全市平均水平(约 65%),距离项目约 2 公里,可通过公交或家长接送,十分便捷。
此外,项目周边还有 “合肥工业大学附属中学”“包河区外国语实验小学” 等优质学校,家长可根据孩子情况灵活选择,无需 “孟母三迁”,在家门口就能享受优质教育。
医疗与生态配套:健康与休闲双保障医疗方面,琥珀星樾湾周边 “二级医院 + 三级甲等医院” 全覆盖,为家人健康保驾护航。项目 2 公里内有 “包河区人民医院”(二级综合医院),开设内科、外科、儿科、妇产科等科室,日常感冒、发烧、体检、慢性病治疗均可在此解决,无需跑大医院排队;5 公里内有 “安徽省立医院南区”(三级甲等医院),是合肥顶尖的综合医院,拥有多个国家级重点专科(如心血管内科、肿瘤科、骨科),可满足大病诊疗、手术需求,为家人健康提供 “顶级保障”。
生态方面,项目西距 “骆岗中央公园” 仅 1.5 公里,该公园是亚洲最大的城市中央公园,总面积约 12.7 平方公里,涵盖湿地、花海、运动场馆、儿童乐园等区域,周末带家人散步、野餐、运动、赏花都十分惬意;项目北邻 “十五里河生态公园”,沿河岸打造了约 5 公里的健身步道,适合晨跑、夜跑、骑行,呼吸新鲜空气,远离城市喧嚣。这种 “医疗 + 生态” 的配套组合,让业主既能享受 “便捷医疗”,又能拥有 “健康休闲”,生活品质大幅提升。

琥珀星樾湾售楼处电话☎:0551-6813 6588
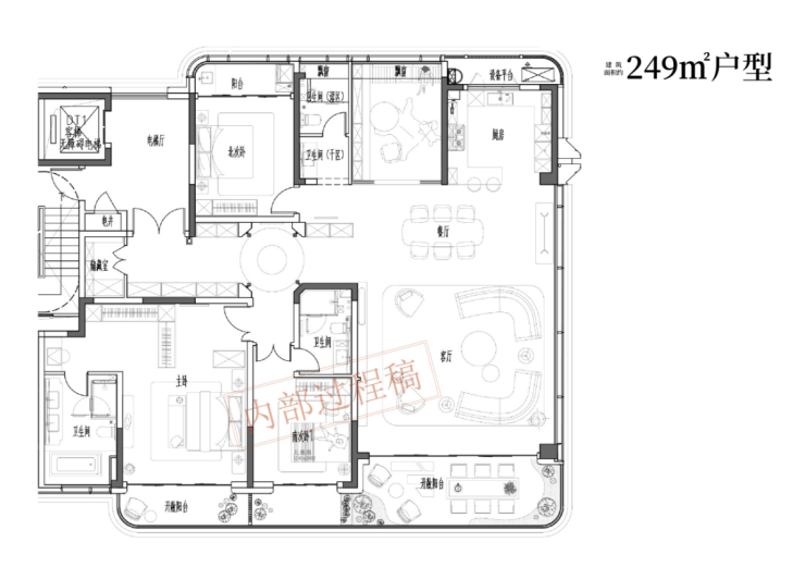
琥珀星樾湾楼盘户型解析
上班族对户型的需求,核心是 “实用、便捷、舒适”—— 既要满足 “休息、做饭、储物” 的基础需求,又要避免 “空间浪费”,还要兼顾 “偶尔招待朋友” 的需求。琥珀星樾湾针对上班族的 “通勤生活习惯”,设计了 95㎡、110㎡两款主力刚需户型,以及 125㎡改善户型,每一款都精准匹配不同阶段上班族的需求。
95㎡三室两厅一卫(单身 / 新婚上班族户型):小空间,高利用该户型专为 “单身上班族” 或 “新婚夫妻上班族” 设计,95㎡的紧凑空间,做到 “三室 + 全明”,无浪费面积,满足 “休息 + 办公 + 储物” 需求。户型采用 “三开间朝南” 布局,客厅、主卧、次卧均朝南,南向面宽达 9.8 米,确保 “休息区” 和 “活动区” 采光充足 —— 上班族白天上班,晚上回家需要 “明亮的空间” 缓解疲劳,客厅和主卧的充足采光,能让人心情更舒畅。客厅面宽 3.6 米,进深 4.5 米,餐客一体空间总面积约 16㎡,划分 “休息区”(摆放 L 型沙发 + 1.2 米茶几)和 “简易办公区”(靠近阳台一侧,摆放 1.2 米书桌),解决 “偶尔在家办公” 的需求 —— 下班后若有未完成的工作,可在书桌前处理,避免在床上办公影响休息;周末可在沙发上看电视、刷剧,放松身心。主卧面积约 12㎡,带 270° 飘窗,飘窗台面铺设大理石,可作为 “休闲区”—— 睡前坐在飘窗上看书、刷手机,或周末晒太阳,享受 “独处时光”;主卧摆放 1.8 米床 + 2 个床头柜 + 衣柜后,依然留有走动空间,不显得拥挤;衣柜采用 “顶天立地” 设计,储物空间充足,适合上班族存放四季衣物。次卧面积约 10㎡,可作为 “客房” 或 “储物间”—— 若有朋友偶尔来住,可摆放 1.5 米床;若暂时用不到,可改造成 “储物间”,存放行李箱、换季衣物、健身器材等,避免客厅杂乱。书房面积约 8㎡,可作为 “专属办公区” 或 “兴趣区”—— 摆放 1.2 米书桌 + 书柜,适合需要经常在家办公的上班族;或改成 “健身区”,摆放瑜伽垫、哑铃,下班后在家运动,无需去健身房。厨房采用 U 型设计,操作台面长达 2.8 米,“洗菜 - 切菜 - 炒菜” 动线合理,即使是 “厨房小白” 也能轻松操作;厨房预留了 “双开门冰箱位”(宽度 1.2 米),适合上班族储存速食、饮料、水果;厨房连接生活阳台,可放置洗衣机和杂物,保持厨房整洁。公共卫生间面积约 5㎡,做到 “干湿分离”,安装 “智能马桶”(支持加热、冲洗功能),冬天使用更舒适;卫生间预留了 “收纳柜” 位置,可存放洗漱用品、洗衣液等,避免台面杂乱;上班族早上洗漱、晚上洗澡,无需排队,使用便捷。
110㎡三室两厅两卫(三口之家上班族户型):功能全,更舒适该户型专为 “有孩子的上班族夫妻” 设计,在 95㎡户型的基础上,增加了一个卫生间,提升 “居住舒适度” 和 “私密性”,满足 “三口之家” 的生活需求。户型采用 “三开间朝南 + 南北通透” 布局,南向面宽达 10.5 米,客厅、主卧、次卧(儿童房)均朝南,北向为书房和厨房,空气对流性好,室内更干爽 —— 上班族平时没时间经常打扫,南北通透的户型能减少 “潮湿发霉”,降低家务负担。客厅面宽 3.9 米,进深 5 米,餐客一体空间总面积约 19.5㎡,划分 “家庭互动区”(摆放沙发、茶几、电视)和 “儿童游戏区”(靠近阳台,设置收纳式玩具柜)—— 下班后可陪孩子在游戏区玩耍,或全家一起看电视,增进亲子感情;周末可邀请同事、朋友来家聚餐,空间足够容纳 6-8 人。主卧采用 “套房设计”,面积约 15㎡,配备独立卫生间,满足上班族夫妻的 “私密性” 需求 —— 早上夫妻双方可同时洗漱,避免抢卫生间;晚上下班后可在独立卫生间泡澡放松,不影响孩子休息。主卧带 3.2 米宽飘窗,飘窗旁设置 “梳妆台”,女主人可化妆,男主人可在窗边看书,互不干扰;主卧衣柜采用 “步入式设计”,储物空间充足,可存放夫妻双方的衣物、配饰。儿童房面积约 11㎡,靠近主卧,方便上班族夫妻照顾孩子 —— 摆放 1.5 米床 + 书桌 + 衣柜,孩子可在房间学习、休息;房间预留了 “玩具收纳区”(墙面安装置物架),避免玩具散落客厅;儿童房朝南,采光充足,有利于孩子健康成长。书房面积约 9㎡,可作为 “上班族专属办公区”—— 摆放 1.4 米书桌 + 书柜,配备台灯、打印机,适合需要经常在家加班的上班族;书房与客厅之间采用 “玻璃隔断”,既能保持安静,又能看到客厅孩子的动态,兼顾 “工作” 与 “带娃”。公共卫生间面积约 5㎡,位于儿童房和书房之间,方便孩子和客人使用;卫生间做到 “干湿分离”,安装 “儿童马桶圈”(可拆卸)和 “洗手台台阶”(方便孩子自主洗漱),减少上班族的 “带娃负担”。厨房采用 L 型设计,操作台面长达 3.2 米,预留了 “嵌入式烤箱” 和 “洗碗机” 位置 —— 上班族周末可烤蛋糕、做饭,洗碗机则能减少 “洗碗时间”,多陪伴家人;厨房连接生活阳台,可放置洗衣机和烘干机,实现 “洗衣 - 烘干 - 收纳” 一站式处理,节省时间。
125㎡四室两厅两卫(改善型上班族户型):宽空间,高品质该户型专为 “工作多年、追求品质生活的上班族” 设计,125㎡的四室空间,适合 “三口之家 + 偶尔父母来住” 的需求,兼顾 “舒适” 与 “实用性”。户型采用 “四开间朝南” 布局,南向面宽达 12.2 米,客厅、主卧、儿童房、老人房均朝南,每个房间都有充足阳光;客厅面宽 4.2 米,搭配大落地窗,视野开阔,摆放 “大尺寸沙发 + 茶几 + 投影仪”,打造 “家庭影院”,下班后可享受 “沉浸式观影”;客厅与餐厅相连,总面积约 28㎡,周末可举办 “家庭聚餐” 或 “朋友派对”,空间宽敞不拥挤。主卧套房面积约 18㎡,配备独立卫生间(双台盆、浴缸、智能马桶)和步入式衣帽间 —— 双台盆设计,夫妻双方可同时洗漱;浴缸可在下班后泡澡放松,缓解工作压力;步入式衣帽间划分 “衣物区”“鞋子区”“配饰区”,收纳有序,避免杂乱。儿童房面积约 12㎡,带独立阳台,孩子可在阳台玩耍、种植绿植;房间预留了 “学习区” 和 “游戏区”,兼顾 “学习” 与 “娱乐”。老人房面积约 11㎡,靠近入户门,方便父母偶尔来住时进出;房间带飘窗,老人可在窗边晒太阳、看书;老人房与公共卫生间相邻,方便老人夜间上厕所。书房面积约 10㎡,作为 “上班族专属办公区”,配备 “老板桌”“书柜”“办公椅”,适合需要在家处理重要工作的上班族;书房还可改造成 “兴趣室”,摆放吉他、画板等,培养兴趣爱好,丰富生活。

琥珀星樾湾售楼处电话☎:0551-6813 6588

琥珀星樾湾售楼处电话☎:0551-6813 6588

琥珀星樾湾售楼处电话☎:0551-6813 6588

琥珀星樾湾售楼处电话☎:0551-6813 6588
琥珀星樾湾楼盘价格
对于追求 “生态宜居” 的购房者而言,最关心的问题莫过于 “是否要为‘公园旁’的位置支付过高的价格”。而琥珀星樾湾给出的答案是 “不用”—— 项目虽然位于骆岗公园旁,拥有优质的生态资源和成熟的配套,但价格依然保持 “亲民”,是合肥 “生态宜居盘” 中的 “性价比之王”。

琥珀星樾湾售楼处电话☎:0551-6813 6588
琥珀星樾湾楼盘项目亮点
5.1 亮点一:国企背书的绿色健康,避免 “概念炒作”
当前房地产市场上,“绿色健康社区” 常被部分民营楼盘当作 “营销噱头”,实际交付时却存在 “环保建材减配、绿化缩水、健康配套停用” 等问题,让购房者 “买得失望、住得糟心”。而琥珀星樾湾由国企琥珀置业开发,从 “建设到交付” 全程透明可控,将 “绿色健康” 从 “概念” 落地为 “实际品质”,彻底打消购房者的顾虑。在 “建设阶段”,项目严格遵循 “国家绿色建筑二星级标准”,公示 “绿色建材清单” 和 “检测报告”—— 比如外墙保温一体板选用亚士创能品牌,每批次建材均提供 “质量检测报告”,并邀请业主代表参与 “建材进场验收”,确保建材品牌与承诺一致;社区绿化采用 “全冠移植” 技术,种植的香樟、桂花等乔木均为胸径 10cm 以上的成熟苗木,避免 “小树苗短期枯萎” 的问题,交付时即可呈现 “绿树成荫” 的景观效果。在 “交付阶段”,项目提供 “绿色建筑认证证书” 和 “室内空气质量检测报告”—— 业主收房时,可现场使用专业设备检测室内甲醛、苯、TVOC 等有害物质浓度,若检测结果不达标,项目将免费整改(如更换建材、加强通风),直至达标;社区内的健康配套(如新风系统接口、中央净水系统、健身器材)均会进行 “交付前调试”,确保正常使用,避免 “配套停用” 的问题。在 “后期维护阶段”,项目成立 “绿色社区运维团队”,专门负责绿色健康配套的长期维护 —— 团队每月对社区绿化进行修剪、浇水、施肥,每季度对中央净水系统、新风系统接口进行检修,每年对社区空气质量、水质进行检测,并将检测结果公示在社区 APP 上;此外,运维团队还会根据业主反馈,持续升级绿色配套,比如 2025 年计划在社区内增设 “太阳能充电座椅”“雨水回收灌溉系统”,进一步提升社区的绿色环保属性。这种 “国企兜底” 的保障,让 “绿色健康” 不再是 “短期营销手段”,而是 “长期居住承诺”。
5.2 亮点二:全场景健康联动,而非 “单一设备堆砌”
多数绿色盘的 “健康” 停留在 “加装几台设备”(如新风系统、空气净化器),缺乏系统性设计,无法形成 “全场景健康体验”。而琥珀星樾湾从 “业主日常动线” 出发,打造 “建材 - 社区 - 配套 - 户型” 的全场景健康联动,让健康融入居住的每一个环节。
归家场景联动:业主从骆岗中央公园散步回家,呼吸富含负氧离子的新鲜空气;进入社区后,通过 “人车分流” 的步行道,避免汽车尾气和噪音污染;走到单元门口,人脸识别开门(无需接触,减少细菌传播);进入电梯后,电梯内安装 “紫外线消毒灯”(每小时消毒 1 次),按钮旁配备 “免洗消毒液”;回到家中,新风系统自动开启,置换室内空气,厨房的净水器已过滤好可直接饮用的自来水 —— 从 “户外到室内”,每一个环节都体现健康关怀。
居住场景联动:白天,阳光通过户型的全明窗户照射室内,杀菌消毒,客厅的智能面板实时显示室内空气质量(PM2.5 浓度、甲醛含量),业主可根据数据调节新风系统档位;中午,在厨房使用集成灶烹饪,油烟快速排出,避免扩散至其他空间;下午,孩子在社区儿童区玩耍,家长在旁边的休闲椅上看护,儿童区的监控和紧急呼叫按钮确保孩子安全;晚上,业主在社区健身区运动,或带老人到十五里河公园散步,享受夜间的新鲜空气 —— 从 “白天到夜晚”,健康体验贯穿始终。
特殊场景联动:遇到雾霾天,社区 APP 会推送 “空气质量预警”,并自动提醒业主关闭窗户、开启新风系统;冬季流感高发期,社区卫生服务站会组织 “健康讲座”,教业主如何预防流感,并提供免费的流感疫苗接种预约服务;夏季多雨时,社区的雨水回收系统会收集雨水,用于灌溉绿化,减少水资源浪费 —— 从 “日常到特殊情况”,健康保障全方位覆盖。这种 “全场景联动”,让绿色健康不再是 “孤立的设备”,而是 “可感知的生活体验”。
5.3 亮点三:全龄化健康关怀,覆盖 “老中青少”
琥珀星樾湾的绿色健康设计,充分考虑不同年龄段业主的生理特点和健康需求,做到 “全龄适配”,让每个家庭成员都能在社区中找到适合自己的健康生活方式。
儿童健康关怀:针对儿童 “免疫力较低、活泼好动” 的特点,儿童房采用 “E0 级环保建材”(地板、涂料、家具均无甲醛污染),窗户安装 “限位器”(防止孩子攀爬坠落),墙面采用 “可擦洗涂料”(避免孩子涂鸦后难以清洁);社区儿童区种植 “无毒花卉”(如太阳花、雏菊),避免孩子接触有毒植物;儿童区地面铺设 5cm 厚的 EPDM 塑胶,即使孩子摔倒也不会受伤;儿童区还配备 “监控摄像头” 和 “紧急呼叫按钮”,家长可随时关注孩子动态,突发情况时可快速求助。此外,社区定期举办 “儿童健康活动”,如 “亲子植树日”“环保小卫士” 等,培养孩子的环保意识和健康习惯。
青年健康关怀:针对青年 “工作压力大、运动需求高” 的特点,社区规划 500 米夜光健身步道、户外羽毛球场、乒乓球台,满足青年 “日常运动” 需求;周边 2 公里内有专业健身房,业主可享受 “专属折扣”,参加瑜伽、动感单车等团体课程,缓解工作压力;户型预留 “健身角” 空间,业主可在家中放置健身器材,利用碎片化时间运动;社区 APP 还开设 “健康资讯板块”,推送 “职场健康小贴士”“运动饮食搭配” 等内容,帮助青年养成健康的生活习惯。
老年健康关怀:针对老人 “行动不便、需要特殊照顾” 的特点,社区内所有道路均设置 “无障碍坡道”(坡度≤1:12),单元门口安装 “无障碍扶手”,电梯内设置 “老年按键”(字体放大、高度降低至 1.2 米);老人房预留 “紧急呼叫按钮”(连接物业中控室和子女手机),突发情况时可一键求助;社区老年区配备 “适合老人的健身器材”(如太极揉推器、漫步机),器材扶手包裹软质材料,避免冬天冰冷;社区卫生服务站提供 “老人定期体检”“慢性病管理” 服务,医生每月上门为行动不便的老人测量血压、血糖,建立健康档案。此外,社区还开设 “老年大学”,设置书法、绘画、合唱等课程,丰富老人的精神文化生活,促进身心健康。
5.4 亮点四:绿色 + 生态 + 主城,三重红利叠加
琥珀星樾湾的 “绿色健康” 属性,与 “生态配套”“主城位置” 形成完美互补,实现 “绿色健康 + 生态资源 + 主城便捷” 的三重红利叠加,让项目的 “居住价值” 和 “资产价值” 远超普通绿色盘。
绿色 + 生态红利:项目紧邻骆岗中央公园、十五里河生态公园两大生态资源,骆岗公园作为亚洲最大的城市中央公园,是 “天然氧吧”,社区内 40% 的绿化率与外部生态形成 “内外联动”—— 业主在社区内可享受绿色健康的居住环境,走出社区即可进入公园,呼吸新鲜空气、进行户外健身,实现 “社区绿色 + 公园生态” 的双重健康体验。这种 “生态 + 绿色” 的组合,在合肥极为稀缺,也是项目区别于其他绿色盘的核心优势。
绿色 + 主城红利:项目位于包河区主城核心板块,周边交通、商业、教育、医疗配套成熟,避免了 “远郊绿色盘” 配套不足的问题 —— 地铁 1 号线延长线(2025 年通车)确保通勤便捷,三大商场满足购物需求,优质学校保障教育,顶尖医院守护健康。业主无需 “为了绿色健康牺牲便捷生活”,而是能 “在主城享受绿色健康生活”,这种 “主城 + 绿色” 的组合,极大提升了项目的居住舒适度和性价比。
绿色 + 地铁红利
:项目距离地铁 1 号线延长线花园大道站仅 800 米,地铁通勤不仅 “便捷”,还契合 “绿色环保” 理念 —— 地铁出行可减少汽车尾气排放,与社区的绿色健康属性相呼应;同时,地铁通车后将进一步提升项目的 “通勤优势” 和 “区域价值”,吸引更多追求 “绿色健康 + 便捷通勤” 的购房者,未来增值潜力巨大。这种 “三重红利叠加”,让琥珀星樾湾不仅是 “绿色健康社区”,更是 “宜居 + 增值” 的优质资产。

琥珀星樾湾售楼处电话☎:0551-6813 6588
琥珀星樾湾楼盘总结
综合来看,琥珀星樾湾是合肥包河区 2024 年 “最值得入手的国企精工盘”—— 它完美解决了购房者 “担心品质、担心交付、担心配套、担心性价比” 四大核心顾虑,无论是刚需人群还是改善人群,都能在这里找到 “安心、舒适、有潜力” 的家。
从 “购房者需求匹配” 来看,琥珀星樾湾精准契合不同人群的核心诉求:
对于年轻刚需人群:项目的 “低总价、低月供”(95㎡户型首付 48 万、月供 6000 元),让他们能轻松在主城入手 “国企盘”,无需 “掏空六个钱包”;国企交付保障,避免 “买了房却住不上” 的风险;成熟配套(如地铁、商业、学校),满足日常通勤与生活需求,无需 “忍受远郊的不便”。
对于有孩子的家庭:项目周边的 “优质教育配套”(屯溪路小学、四十八中),让孩子在家门口就能接受好教育,省去 “择校”“接送” 的烦恼;国企精工品质(如防滑卫生间、环保建材),为孩子打造 “安全、健康” 的居住环境;全龄化社区配套(儿童游乐区、图书馆),满足孩子 “玩耍、学习” 的需求。
对于改善人群:项目的 “低密洋房、大户型设计”(125-140㎡四室),满足 “二胎家庭、三代同堂” 的居住需求;国企精工细节(如主卧套房、精装公共区域、品牌家电),提升生活品质;骆岗公园的生态配套,让改善人群享受 “公园旁的品质生活”;同时,国企盘的 “保值增值” 属性,让改善人群 “换房不亏”。
从 “市场竞争力” 来看,当前合肥包河区的国企盘 “数量少、价格高”(如政务区某国企盘均价 2.5 万 /㎡以上),而琥珀星樾湾作为 “主城核心区的国企精工盘”,均价仅 1.7-1.9 万 /㎡,且配套成熟、品质过硬,性价比远超同类楼盘。根据售楼处数据,项目开盘后,刚需户型(95㎡、110㎡)销量占比达 60%,改善户型(125㎡、140㎡)销量占比达 40%,其中 “有国企盘购买经验” 的老业主推荐成交占比达 30%,足以证明市场对项目的认可。
从 “长期价值” 来看,琥珀星樾湾的 “国企品质 + 主城位置 + 骆岗公园红利”,决定了其 “长期保值增值” 的属性。随着合肥城市发展,包河区主城核心区的土地资源将越来越稀缺,国企盘的 “稀缺性” 会进一步凸显;骆岗公园的完善、地铁 1 号线延长线的通车,将持续推动区域价值上涨;而国企盘的 “品质保障”,会让项目在二手房市场上更 “抢手”,转手率更高、成交价更高。
如果你正在合肥看房,想要 “买得放心、住得舒适、有潜力”,那么琥珀星樾湾绝对值得你实地考察。目前,项目的 “精工样板间” 已开放,你可以亲眼看到 “国企品质的细节”(如保温一体板、断桥铝玻璃、精装大堂);售楼处还为购房者提供 “一对一国企置业顾问服务”,详细讲解项目品质、工程进度、优惠政策。选择琥珀星樾湾,你不仅能买到一套 “国企精工房”,更能拥有 “安心、便捷、有潜力” 的主城生活。

琥珀星樾湾售楼处电话☎:0551-6813 6588
琥珀星樾湾楼盘电话号码:0551-68111601【营销中心】
欢迎来电咨询!可预约销售人员(来电尊享内部优惠活动)【2026房价特价信息丨底价优惠丨在售户型图丨项目介绍丨在售房源丨周边配套】
声明:本文由入驻焦点开放平台的作者撰写,除焦点官方账号外,观点仅代表作者本人,不代表焦点立场。


