合肥肥东伟星城周边交通怎么样?
扫描到手机,新闻随时看
扫一扫,用手机看文章
更加方便分享给朋友
肥东伟星城周边交通便捷,项目具体位于山水路与闻水路交口,地处肥东和睦湖板块。
2021年3月的合肥土拍中,伟星成功竞得肥东FD202010号地块,单价653万元/亩,总价139875.155万元,居住楼面价4897.48元/㎡,溢价率30.08%,竞自持面积25400㎡,地块具体位于山水路与闻水路交口,地处和睦湖板块,临近肥东站,地铁二号线,交通便捷,项目案名为伟星城,是伟星在和睦湖板块匠心打造的高品质人居作品。
营销咨询号码:0551-68136588
伟星城是一个大体量的综合项目,有规划的住宅与商业综合体,住宅共规划拟建37栋楼,户型产品丰富,可满足刚需、刚改、改善不同客群置业居住需求,商业上打造约18万方城市级商业综合体,自带约4000方社区配套,商业资源丰富,业态丰富,购物轻松无忧,另外项目周边还有多所学校,满足不同年龄段孩子上学需求,还有肥东县人民医院、和睦湖公园、地铁二号线、肥东大剧院、肥东科技馆等,以及多个住宅小区,齐全的配套资源,浓厚的人居氛围,丰富的自然资源,外部居住环境不错。
伟星城项目开发商实力也不错,为百强房企伟星房企,二十多年来,专注打造高端作品,开发经验丰富,口碑卓越,是一家值得信赖的品牌房企。
伟星城作为和睦湖板块的人居范本,品质卓越,邀请了大师级设计团队,倾力设计,提升建筑、社区园林等品质,社区内部还设计有高定泳池,提升居住的舒适度,两梯两户,保障生活的私密性,装修入户,智能归家,品质物业,打造舒适品质湖居公园大宅。
营销咨询号码:0551-68136588
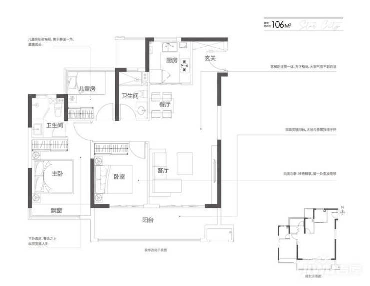
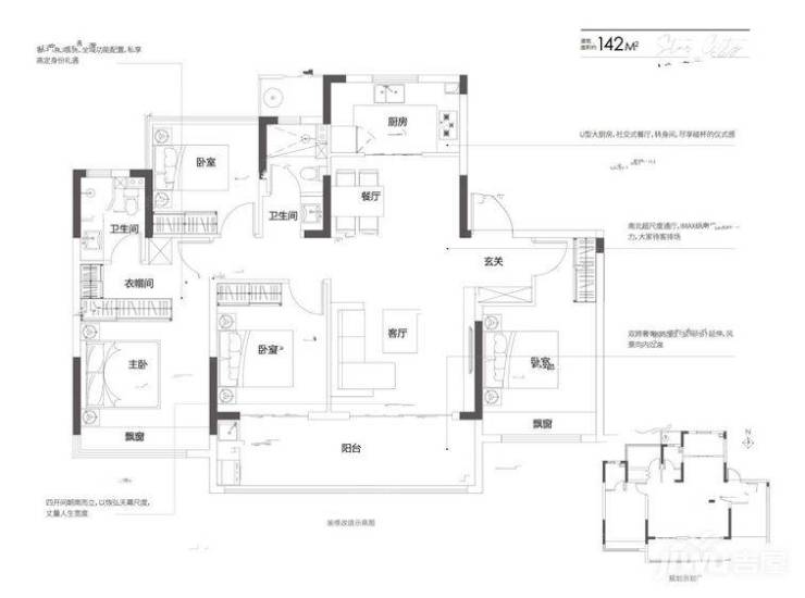
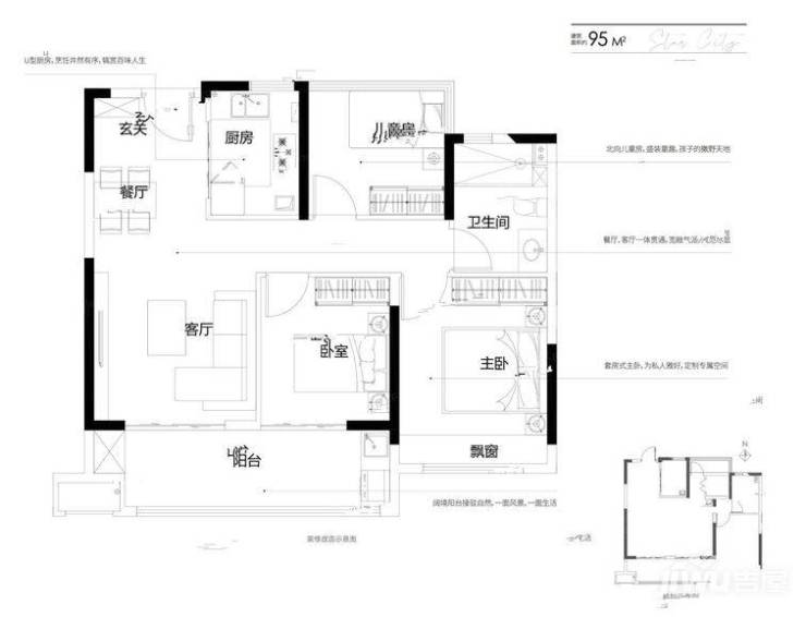
伟星城项目住宅持续在售中,户型面积段95-142平,均价1.3万左右每平,具体一房一价,目前商业伟星星悦广场商铺也在售,建面约45-300平,均价2万-4万左右每平,更多项目详情欢迎致电营销中心。
声明:本文由入驻焦点开放平台的作者撰写,除焦点官方账号外,观点仅代表作者本人,不代表焦点立场。


