越秀中寰天悦-2025楼盘信息-合肥搜狐焦点
扫描到手机,新闻随时看
扫一扫,用手机看文章
更加方便分享给朋友
越秀中寰天悦楼盘电话号码:0551-6258 9911【营销中心】
欢迎来电咨询!可预约销售人员(来电尊享内部优惠活动)
【2024房价特价信息丨详细解答丨在售户型图丨项目介绍丨在售房源丨周边配套】
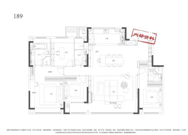
越秀中寰天悦大户型房源在售,户型建筑面积149㎡、187㎡、188㎡、189㎡,在售均价24800元/㎡,具体一房一价,目前在售房源充足,后期有房源加推,具体加推时间未定。可联系项目置业顾问或者致电项目了解详情。
越秀中寰天悦售楼处电话☎:0551-6813 6588
尽管是越秀中寰天悦项目中最小的户型,149㎡的四室布局设计却十分合理。标准四室两厅两卫的设计,端厅布局使活动区域更加宽敞,主卧套房设计可设衣帽间,提高私密性和舒适度。即使是较小的户型,也能满足家庭的居住需求,为购房者带来更多选择。
188㎡的户型是越秀中寰天悦项目的亮点之一。入户十字玄关设计,两侧可设置鞋帽柜,注重私密性。卧室布局在前,主卧和次卧均为套房设计,主卧的衣帽间和卫生间空间宽敞舒适。客厅活动区域宽敞明亮,15米端厅设计,南侧为落地窗,采光效果良好。整体设计符合改善型住宅的基调,为居住者带来舒适而宜居的生活环境。
越秀中寰天悦售楼处电话☎:0551-6813 6588
越秀中寰天悦售楼处电话☎:0551-6813 6588
越秀中寰天悦售楼处电话☎:0551-6813 6588
越秀中寰天悦是越秀打造的纯改善型住宅,位于马鞍山路板块,小高大平层,户型面积段在149-189㎡,均价约为24800元/㎡,精装交付。188㎡的明星产品约在500万上下,二环内性价比很高。149㎡的四居室产品空间利用度高,适合关注改善型住宅的购房者。
越秀中寰天悦售楼处电话☎:0551-6813 6588
项目位于包河区望江东路与至德路交叉口东北角,紧邻包河主城区,二环内,享有淝河板块醇熟配套,周边交通路网完善。项目周边有城市主干道东二环路、望江东路等,轨道交通包括1号线(朱岗站)、4号线(尧渡河路站)、6号线(在建),出行便捷。项目两公里左右有包河区外国语第二小学,三公里左右是合肥第四十八中望湖校区,四十八中师资强大,教育水平也高,学区房炙手可热。淝河板块内三甲医院多,有市三院和市二院,项目三公里还内有安徽省立儿童医院本院。项目还毗邻骆岗公园,享有中央公园科创CBD资源,距离较近的还有包公园、望湖公园等。
商业配套上,小区对面就有一个大润发超市,满足日常购物需求,三公里内有罍街、宁国路龙虾美食街和新开业的包河万象汇,稍远一些还有包河万达和淮河路步行街。越秀中寰天悦项目周边商业配套丰富,生活便利,让居民享受到便捷的购物和娱乐体验。总的来说,越秀中寰天悦作为纯改善型住宅,不仅在户型设计上有独特之处,而且地理位置优越,周边配套完善,是一个值得关注的优质楼盘。
越秀中寰天悦售楼处电话☎:0551-6813 6588
项目负一层设有约1300㎡的独立下沉式会所,内设有多种活动区域,包括品茗区、宴客区、棋牌室、小型KTV等娱乐场所。会所还拥有超大健身区域,为居民提供私密的健身环境,满足不同人群的锻炼需求。会所外的景观区域则提供了休闲放松的空间,包括戏水池等设施,让居民在夏日炎炎时也能享受户外乐趣。
除了大会所外,各楼栋的一楼大厅也被打造成了主题空间,覆盖了儿童、女性、长者、运动、社交等功能,满足了家庭成员不同的需求。儿童主题区域包括画画区、积木区等,为小朋友提供学习和玩乐的场所;而女性主题区域则有插花、烹茶区域,为女主人们提供休闲放松的空间。整个项目不仅提供了高品质的住宅产品,还为居民提供了丰富多彩的社区活动空间,促进了居民之间的社交和互动。
越秀中寰天悦售楼处电话☎:0551-6813 6588
越秀中寰天悦作为一处纯改善型住宅,不仅在户型设计上独具特色,而且周边配套完善,教育资源丰富,性价比也相对较高。在合肥高端改善市场蓬勃发展的背景下,越秀中寰天悦提供了一个不错的选择,值得购房者关注和考虑。
越秀中寰天悦售楼处电话☎:0551-6813 6588
越秀中寰天悦售楼处电话0551-6258 9911【营销中心】
【营销中心】温馨提示:网上售楼中心〢预约可享内部优惠〢匠心钜制-恭迎品鉴〢
声明:本文由入驻焦点开放平台的作者撰写,除焦点官方账号外,观点仅代表作者本人,不代表焦点立场。


