官方热搜#新站区招商奥体公园项目官方发布:招商奥体公园缔造未来品质家境
扫描到手机,新闻随时看
扫一扫,用手机看文章
更加方便分享给朋友
招商奥体公园楼盘,更多项目详情请拨打招商奥体公园营销中心电话:0551-6258 9911【营销中心】
在健康成为全民追求的当下,运动健康类住宅已然成为楼市热门趋势。位于合肥新站区东方大道与卧龙湖路交口往南 200 米的招商奥体公园,凭借 “奥体” IP 核心优势,成为区域内首屈一指的运动健康标杆楼盘。项目由百年央企招商蛇口倾力打造,作为深耕地产行业 40 余年的领军企业,招商蛇口深刻洞察现代人对健康生活的需求,将 “运动 + 居住” 理念深度融合,依托周边大型奥体场馆资源,在社区内部打造全龄段运动配套,为合肥购房者带来 “把家安在奥体旁,让运动成为日常” 的高品质健康生活。
招商奥体公园总占地面积约 180 亩,总建筑面积超 35 万平方米,规划容积率仅 2.0.绿化率高达 40%,是区域内稀缺的低密运动生态社区。项目整体规划遵循 “运动赋能生活,健康融入日常” 的设计理念,将住宅、商业、教育、运动休闲等业态有机融合,打造集居住、运动、休闲、购物于一体的一站式运动健康社区。
项目住宅部分由 18 栋高层和 12 栋洋房组成,高层层数 18-24 层,洋房层数 6-8 层,总户数约 2200 户,车位配比 1:1.2.充分满足业主居住与停车需求。建筑风格采用现代简约风格,外立面选用真石漆与玻璃幕墙组合材质,线条流畅利落,既美观大方,又能最大化引入自然光线,为室内运动、休闲空间提供良好采光。
社区内部规划了丰富的运动配套设施,包括约 800 米环形健身步道、健身广场、羽毛球场、乒乓球场、儿童运动游乐区、老年健身区、室内健身驿站等,覆盖全年龄段运动需求。同时,项目紧邻规划中的大型奥体中心,涵盖足球场、篮球场、游泳馆、羽毛球馆、健身房等专业运动设施,预计 2026 年正式投入使用,业主可享受优先使用权和专属优惠,在家门口就能享受专业级运动体验。
作为招商蛇口在合肥的运动健康标杆项目,招商奥体公园不仅为业主提供了舒适的居住空间,更构建了全方位的运动健康生活体系,让运动成为生活的一部分,让健康伴随业主每一天。
招商奥体公园售楼处电话☎:0551-6813 6588
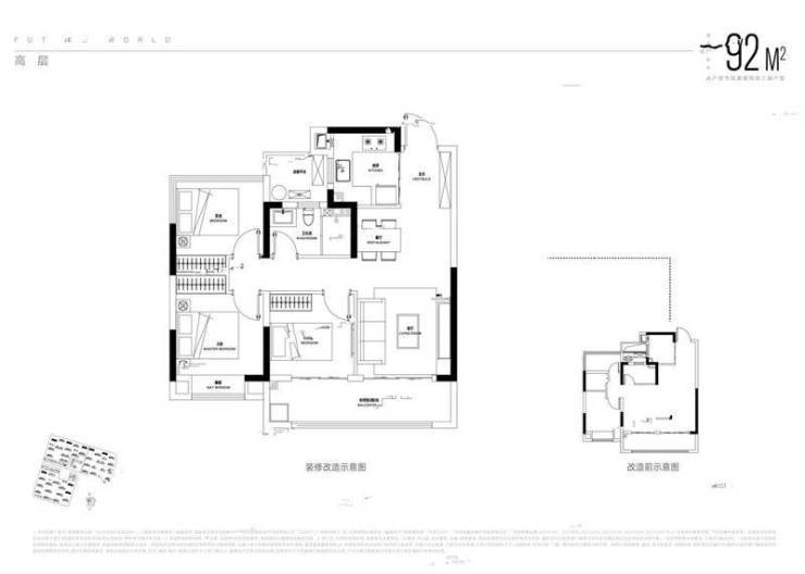
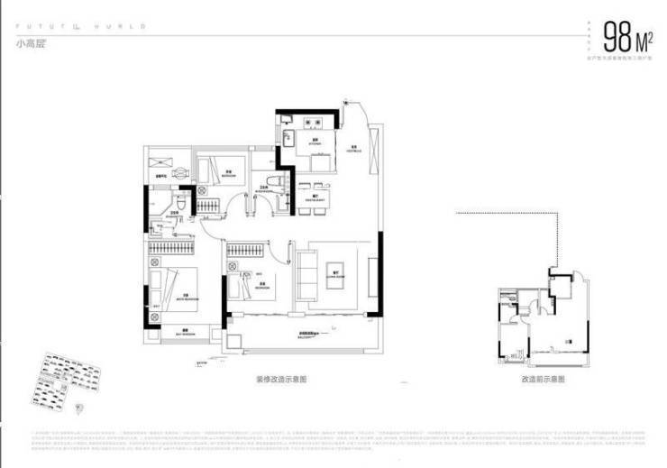
三、招商奥体公园楼盘户型解析
户型是生态宜居生活的核心载体,招商奥体公园深入洞察业主对自然、舒适居住的需求,结合项目低密生态的规划优势,打造了多款兼具实用性、舒适性和生态性的户型产品,让每一户都能最大限度地享受阳光、空气和自然美景。
89㎡三室两厅一卫:刚需生态居,阳光满溢
89㎡三室两厅一卫户型是刚需人群的生态宜居首选,整体布局方正,南北通透,空间利用率高达 85%,同时最大化引入自然光线和新鲜空气,让小户型也能享受生态宜居生活。
入户处设置独立玄关,宽度 1.2 米,深度 1.5 米,既保障了室内隐私,又能作为收纳空间,放置鞋柜、衣帽架等。玄关右侧设有换鞋凳和挂钩,细节设计贴心,方便业主日常使用。
客厅位于户型中央,面宽 3.6 米,进深 4.2 米,空间宽敞明亮。客厅与南向阳台相连,阳台面宽 3.6 米,进深 1.8 米,采用全景落地窗设计,最大化引入自然光线,让客厅更加明亮通透。阳台外是社区中央景观花园,业主坐在客厅就能欣赏到四季美景,感受自然气息。阳台可根据需求打造为休闲区,摆放休闲沙发、茶几,闲暇时品茶、看书,享受惬意时光。
餐厅紧邻客厅和厨房,面积约 6㎡,可容纳 4-6 人同时用餐。餐厅与厨房之间设有滑动门,既保证了用餐环境的整洁,又能方便上菜。厨房位于户型西侧,采用 U 型设计,操作台面长 3.5 米,洗切炒动线合理,预留双开门冰箱位置。厨房窗户朝向社区景观,烹饪时也能欣赏到自然美景,让烹饪成为一种享受。
三个卧室分布在户型东侧和北侧,动静分离,避免了活动区对休息区的干扰。主卧位于户型东侧,面宽 3.2 米,进深 3.8 米,带有南向飘窗,采光充足,空间宽敞。飘窗设计不仅增加了采光,还能作为休闲区,业主可在飘窗上摆放绿植、书籍,享受阳光与自然。两个次卧分别位于户型北侧和东侧,面宽均为 2.7 米,空间充足,可作为儿童房或书房,其中北侧次卧窗户朝向社区景观,让孩子在学习、休息时也能亲近自然。
卫生间位于户型北侧,面积约 4.5㎡,采用干湿分离设计,提高使用效率,避免潮湿问题。卫生间窗户通风效果良好,保持室内干燥清爽。
105㎡三室两厅两卫:改善生态居,舒适升级
105㎡三室两厅两卫户型是改善型刚需的生态宜居优选,在 89㎡户型基础上升级,空间更加宽敞,舒适度更高,同时进一步强化了生态宜居属性,让业主享受更惬意的自然生活。
入户玄关更加开阔,宽度 1.5 米,深度 1.8 米,可设置多功能收纳柜,满足家庭更多收纳需求。玄关处采用大理石地面,与室内木地板形成对比,彰显品质感。玄关顶部设有吊顶和筒灯,营造出温馨舒适的氛围。
客厅面宽提升至 3.8 米,进深 4.5 米,空间更加宽敞明亮。客厅与南向阳台相连,阳台面宽 3.8 米,进深 2.0 米,采用全景落地窗设计,视野更加开阔,采光通风效果更佳。阳台外是社区景观水系和中央花园,业主站在阳台就能欣赏到水景与绿植相映成趣的美景,感受自然的灵动。阳台可打造为休闲区和绿植区,摆放休闲沙发、茶几和各类绿植,打造专属的 “空中花园”。
餐厅面积约 7㎡,可容纳 6-8 人同时用餐,与客厅形成通透的一体化空间,增强了空间的开阔感。餐厅窗户朝向社区景观,用餐时也能欣赏到自然美景,提升用餐体验。
厨房位于户型西侧,采用 U 型设计,操作台面长 3.8 米,空间更加宽敞,预留双开门冰箱位置。厨房与餐厅之间采用开放式设计(可设置滑动门),增强了空间的互动性,同时厨房窗户通风效果良好,避免油烟异味残留。
三个卧室分布合理,动静分离。主卧采用套房设计,面宽 3.3 米,进深 4.8 米,带有南向飘窗,采光充足,空间宽敞。主卧配备独立卫生间和衣帽间,保障了主人的隐私和舒适度。独立卫生间采用干湿分离设计,窗户通风效果良好,保持干燥清爽。两个次卧面宽均为 2.8 米,空间充足,采光良好,其中一个次卧带有南向飘窗,可作为儿童房,让孩子在阳光和自然中成长;另一个次卧可作为老人房或书房,满足多样化需求。
128㎡四室两厅两卫:改善生态居,阔绰舒适
128㎡四室两厅两卫户型是改善型人群的生态宜居理想选择,户型方正通透,南北双阳台设计,空间阔绰,舒适度高,同时最大化利用自然资源,让业主享受全方位的生态宜居体验。
入户玄关宽敞明亮,宽度 1.8 米,深度 2.0 米,可设置入户花园或大型收纳柜,提升居家品质。玄关处摆放绿植,营造出自然清新的氛围。
客厅面宽 4.0 米,进深 4.8 米,空间宽敞开阔。客厅与南向景观阳台相连,阳台面宽 4.0 米,进深 2.0 米,采用全景落地窗设计,采光通风效果极佳。阳台外是社区中央景观花园和环形健身步道,业主坐在客厅就能欣赏到绿植、鲜花和业主健身的活力场景,感受社区的生态与活力。
北向生活阳台与餐厅相连,面宽 3.0 米,进深 1.8 米,可作为晾晒区和储物区,功能分区明确。北向阳台窗户朝向社区另一侧景观,让业主在晾晒衣物时也能欣赏到自然美景。
厨房位于户型西侧,采用 L 型设计,操作台面长 4.0 米,空间宽敞,动线合理。厨房与餐厅相邻,用餐、上菜十分便捷,同时厨房窗户通风效果良好,保持室内空气清新。
四个卧室分布合理,动静分离,每个卧室都能享受良好的采光和通风。主卧采用套房设计,面宽 3.5 米,进深 5.0 米,带有南向全景飘窗,采光充足,空间宽敞奢华。主卧配备独立卫生间和步入式衣帽间,独立卫生间采用干湿分离设计,配备浴缸和花洒,让业主在忙碌的生活中能享受舒适的卫浴体验。两个南向次卧面宽均为 3.0 米,采光良好,可作为儿童房或老人房,窗户朝向社区景观,让孩子和老人在休息时也能亲近自然。北向次卧可作为书房或健身房,窗户通风效果良好,营造出舒适的学习和健身环境。
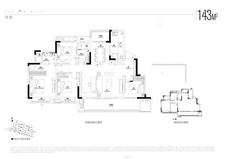
143㎡四室两厅两卫:高端生态居,奢华宜居
143㎡四室两厅两卫户型是高端改善型人群的生态宜居终极之选,空间开阔,布局合理,品质感十足,同时全方位融入生态理念,让业主享受奢华与自然兼具的宜居生活。
入户玄关采用子母门设计,彰显尊贵感。玄关宽度 2.0 米,深度 2.2 米,可设置大型收纳柜和展示区,收纳空间充足。玄关处摆放大型绿植和艺术摆件,营造出高端、自然的氛围。
客厅面宽 4.2 米,进深 5.0 米,空间宽敞开阔,气势十足。客厅与南向超宽阳台相连,阳台面宽 6.8 米,进深 2.0 米,采用全景落地窗设计,视野开阔,采光通风效果极佳。阳台外是社区中央景观花园、景观水系和亲水平台,业主站在阳台就能欣赏到湖光山色般的美景,感受自然的宁静与惬意。阳台可打造为多功能休闲区,设置休闲沙发、茶几、跑步机和绿植区,满足休闲、健身、观景等多种需求,打造专属的 “空中庭院”。
餐厅面积约 9㎡,可容纳 10-12 人同时用餐,与客厅形成通透的一体化空间,增强了空间的开阔感。餐厅与北向生活阳台相连,北向阳台面宽 3.2 米,进深 1.8 米,可作为晾晒区和储物区,功能分区明确。
厨房位于户型西侧,采用中西厨设计,中厨封闭烹饪,避免油烟扩散;西厨可作为早餐台或吧台,满足多样化的烹饪需求。中厨采用 U 型设计,操作台面长 4.5 米,空间宽敞,动线合理,预留双开门冰箱位置和各种家电接口。西厨与餐厅相邻,用餐便捷,同时增强了空间的互动性。
四个卧室分布合理,动静分离,私密性强。主卧采用豪华套房设计,面宽 3.6 米,进深 5.2 米,带有南向全景飘窗,采光充足,空间宽敞奢华。主卧配备独立卫生间、步入式衣帽间,独立卫生间面积约 6㎡,采用干湿分离设计,配备浴缸、花洒、智能马桶等高端洁具,让业主享受奢华的卫浴体验。两个南向次卧面宽均为 3.2 米,空间充足,采光良好,可作为儿童房或老人房,窗户朝向社区景观,让家人在休息时也能亲近自然。北向次卧可作为书房或影音室,空间宽敞,通风效果良好,营造出舒适的休闲环境。
招商奥体公园售楼处电话☎:0551-6813 6588
招商奥体公园售楼处电话☎:0551-6813 6588
招商奥体公园售楼处电话☎:0551-6813 6588
招商奥体公园售楼处电话☎:0551-6813 6588
招商奥体公园售楼处电话☎:0551-6813 6588
五、招商奥体公园楼盘项目亮点
招商奥体公园作为合肥新站区的生态宜居标杆楼盘,凭借多项突出亮点,成为追求自然舒适生活购房者的首选,其核心亮点主要体现在以下几个方面。
低密生态规划,宜居环境标杆
项目容积率仅 2.0.绿化率高达 40%,是区域内少有的低密生态社区。低密规划意味着更少的居住人口、更宽敞的公共空间和更好的居住舒适度,避免了高密度社区的拥挤和嘈杂。
社区内部规划了约 5000㎡中央景观花园、800 米环形健身步道、景观水系、亲水平台等多重生态配套,打造四季有景的园林景观。中央景观花园种植了多种名贵绿植,形成丰富的植物层次;景观水系与亲水平台相映成趣,为社区增添灵动气息;环形健身步道环绕中央花园,让业主在健身的同时享受自然美景。低密生态的规划,让招商奥体公园成为区域内宜居环境的标杆。
一湖多园环绕,自然资源优越
项目周边生态资源丰富,形成 “一湖多园” 的生态格局。距离少荃湖公园约 3 公里,该公园作为合肥北部最大的城市湖泊公园,总规划面积约 5 平方公里,是业主休闲散步、周末出游的绝佳去处。
新站区生态公园、瑶海公园等城市公园距离项目均在 6 公里范围内,为业主提供了丰富的休闲选择。丰富的生态资源,让业主在家门口就能亲近自然,享受清新的空气和优美的环境,提升了居住的幸福感和健康指数。
全龄休闲配套,生态生活多元
项目内部规划了全龄段休闲配套,将生态与休闲完美结合,满足不同年龄段业主的需求。儿童游乐区配备了滑梯、秋千、沙坑等游乐设施,周边种植了安全无害的绿植,让孩子在自然中快乐成长;老年活动中心设置了健身器材、棋牌桌等,周边环境清幽,适合老年人休闲锻炼;健身广场、羽毛球场、乒乓球场等运动配套,让年轻人在自然中挥洒汗水,享受健康活力的生活。
此外,社区内还设置了休闲步道、观景平台、户外烧烤区等,让业主在自然中享受多样化的休闲生活,丰富了居住体验。
通透户型设计,采光通风俱佳
项目打造的四款主力户型,均采用方正通透的布局,南北通透,空间利用率高,同时最大化引入自然光线和新鲜空气。客厅与南向阳台相连,阳台采用全景落地窗设计,采光通风效果极佳;卧室大多带有飘窗或阳台,让业主在休息时也能享受阳光和自然美景。
通透的户型设计,不仅提升了居住的舒适度,还能保持室内空气流通,减少细菌滋生,有利于业主的身体健康,与生态宜居理念高度契合。
醇熟生活配套,生态生活便捷
项目周边配套完善,交通、教育、商业、医疗等一应俱全,让业主在享受生态宜居生活的同时,无需为生活便利担忧。立体交通网络让业主轻松通达全城;全龄段优质教育资源让孩子在家门口就能享受优质教育;完善的商业配套满足业主日常购物、休闲娱乐需求;优质的医疗资源为业主的健康保驾护航。
醇熟的生活配套与优越的生态资源相结合,让业主既能享受自然舒适的居住环境,又能享受便捷的城市生活,实现 “生态与便捷兼得” 的理想居住状态。
央企品质保障,生态居住安心
招商蛇口作为百年央企,拥有丰富的开发经验和雄厚的实力,始终坚持 “品质为王” 的理念。项目采用品牌建材,如断桥铝门窗、双层中空玻璃、品牌电梯等,保证了建筑的品质和居住的安全性;专业的施工团队和监理团队,全程把控施工质量,确保每一套房子都能达到高品质标准。
此外,招商积余物业服务团队,为业主提供全方位、高品质的物业服务,让业主的生态居住生活更加安心、舒适。央企品质保障,让购房者买得放心、住得安心。
招商奥体公园售楼处电话☎:0551-6813 6588
二、招商奥体公园楼盘周边配套
央企开发的楼盘,往往能凭借强大的资源整合能力,为项目带来更完善的配套设施。招商奥体公园依托招商蛇口的央企实力,不仅自身品质过硬,周边交通、教育、商业、医疗、生态等配套也十分完善,让业主在享受央企品质居住的同时,能拥有便捷舒适的生活。
交通配套:央企赋能,交通网络升级
项目紧邻东方大道与卧龙湖路两大城市主干道,形成 “一横一纵” 的交通骨架。东方大道作为新站区横向交通大动脉,已在招商蛇口的推动下完成全线拓宽改造,双向 6 车道通行顺畅,向西连接阜阳北路高架,20 分钟直达合肥火车站、淮河路步行街等主城核心;向东衔接包公大道高架,15 分钟可达肥东县城及瑶海万达商圈。
卧龙湖路纵向贯穿新站区,北接北外环高速,30 分钟可达合肥新桥国际机场;南连新站政务核心区,10 分钟直达新站区管委会、京东方医院等关键节点。公共交通方面,项目周边 500 米内设有 3 个公交站点,301 路、302 路、686 路等多条公交线路无缝衔接地铁 3 号线幼儿师范站、文浍苑站,15 分钟内即可换乘地铁 1、2 号线,畅达全城。
更值得关注的是,规划中的地铁 9 号线将在项目周边设置站点,招商蛇口凭借央企资源优势,积极推动地铁规划落地,目前已进入前期筹备阶段,预计 2025 年开工建设,2029 年建成通车。地铁的规划落地将极大提升区域交通能级,而招商奥体公园作为近地铁楼盘,未来出行将更加便捷。
教育配套:央企加持,教育资源优质
教育资源是央企楼盘保值增值的核心要素之一,招商奥体公园依托央企实力,整合周边优质教育资源,形成了从幼儿园到中学的全龄段教育体系。项目内部规划的 12 班制公办幼儿园,由招商蛇口按照省级示范幼儿园标准建设,预计 2025 年正式招生,配备专业师资,让业主子女足不出社区即可享受优质启蒙教育。
项目周边 1 公里范围内,合肥新站寿春实验中学、合肥市庆平希望学校、合肥市第 168 中学东校区等多所名校环绕。其中,合肥市第 168 中学东校区作为省级示范高中,与招商蛇口达成战略合作,为业主子女提供优先入学咨询、校园开放日专属名额等福利;合肥新站寿春实验中学中考成绩连续多年位列新站区前列,业主子女可享受专属升学指导服务。
此外,周边还有 2 所规划中小学已启动招标建设,招商蛇口参与了学校的规划设计建议,确保学校的建设品质和教育配套完善,未来区域教育资源将更加丰富,“学区房” 属性将进一步强化。
商业配套:央企实力,商业兑现无忧
商业配套的成熟度直接影响居住舒适度,招商奥体公园凭借央企的资源整合能力和兑现实力,让业主无需担心商业配套兑现问题。项目自带约 2 万方社区商业,目前已与永辉超市、老乡鸡、良品铺子等多家知名品牌达成正式合作,预计 2026 年随住宅交付同步开业,将满足业主日常购物、餐饮等基本需求。
距离项目 3 公里的武里山天街商圈已成熟运营,招商蛇口参与了商圈的升级改造规划,引入了更多运动、亲子类业态,提升了商圈的消费体验;5 公里范围内覆盖拓基广场、家天下生活广场等大型商业综合体,满足业主多样化消费需求。更重要的是,项目周边规划的少荃湖科创 CBD 已启动建设,招商蛇口作为重要参与方,将引入更多高端商业、办公业态,总建筑面积超百万方,预计 2028 年全面建成,届时区域商业能级将实现质的飞跃。
医疗配套:央企保障,健康资源优质
医疗资源的完善程度是提升居住幸福感的重要因素,招商奥体公园依托央企实力,为业主整合了优质的医疗资源。项目距离安徽省第二人民医院(北区)仅 4 公里,该院作为三级甲等综合性医院,与招商蛇口达成合作,为业主提供优先挂号、健康体检专属套餐、就医绿色通道等福利,让业主就医更加便捷。
合肥京东方医院距离项目 3.5 公里,作为三级综合医院,重点打造心血管科、骨科、妇产科等特色科室,与招商蛇口合作设立了业主健康服务中心,提供日常健康咨询、慢病管理、运动损伤康复指导等服务。此外,周边 3 公里内还有 2 家社区卫生服务中心,与项目物业服务团队建立了联动机制,业主可享受上门问诊、疫苗接种预约等便捷服务,为健康保驾护航。
生态配套:央企匠心,生态环境优越
央企开发的楼盘,往往更加注重生态环境的打造,招商奥体公园也不例外。项目距离少荃湖公园约 3 公里,该公园作为合肥北部最大城市湖泊公园,总规划面积约 5 平方公里,招商蛇口参与了公园的景观升级规划,新增了环湖健身步道、亲水平台等设施,让业主休闲散步、跑步健身更加便捷。
新站区生态公园距离项目约 4 公里,招商蛇口出资对公园的健身设施、休闲座椅等进行了升级改造,提升了公园的使用体验。此外,项目周边还有瑶海公园、李鸿章享堂等多个景点,距离项目均在 10 公里范围内,周末闲暇时光,业主可以带着家人朋友前往游玩,感受大自然的美景。
招商奥体公园售楼处电话☎:0551-6813 6588
四、招商奥体公园楼盘价格
在合肥楼市中,生态宜居楼盘往往因稀缺性而价格偏高,而招商奥体公园作为区域内少有的低密生态标杆楼盘,不仅拥有优越的生态环境和完善的生活配套,价格还极具竞争力,为购房者提供了高性价比的生态宜居选择。
主力户型价格区间
目前,招商奥体公园的销售均价为 13500 元 /㎡-15000 元 /㎡,根据户型、楼层、朝向的不同,价格有所差异,具体主力户型价格区间如下:
89㎡三室两厅一卫:总价约 120 万元 - 130 万元,单价约 13500 元 /㎡-14600 元 /㎡。低楼层(1-5 层)单价 13500 元 /㎡-13800 元 /㎡,总价 120 万元 - 121 万元;中楼层(6-15 层)单价 13800 元 /㎡-14300 元 /㎡,总价 123 万元 - 127 万元;高楼层(16-24 层)单价 14300 元 /㎡-14600 元 /㎡,总价 127 万元 - 130 万元。
105㎡三室两厅两卫:总价约 140 万元 - 155 万元,单价约 13300 元 /㎡-14800 元 /㎡。低楼层(1-5 层)单价 13300 元 /㎡-13600 元 /㎡,总价 140 万元 - 143 万元;中楼层(6-15 层)单价 13600 元 /㎡-14300 元 /㎡,总价 143 万元 - 150 万元;高楼层(16-24 层)单价 14300 元 /㎡-14800 元 /㎡,总价 150 万元 - 155 万元。
128㎡四室两厅两卫:总价约 170 万元 - 190 万元,单价约 13200 元 /㎡-14800 元 /㎡。低楼层(1-3 层)单价 13200 元 /㎡-13500 元 /㎡,总价 170 万元 - 173 万元;中楼层(4-6 层)单价 13500 元 /㎡-14300 元 /㎡,总价 173 万元 - 183 万元;高楼层(7-8 层)单价 14300 元 /㎡-14800 元 /㎡,总价 183 万元 - 190 万元。
143㎡四室两厅两卫:总价约 190 万元 - 215 万元,单价约 13300 元 /㎡-15000 元 /㎡。低楼层(1-3 层)单价 13300 元 /㎡-13600 元 /㎡,总价 190 万元 - 195 万元;中楼层(4-6 层)单价 13600 元 /㎡-14500 元 /㎡,总价 195 万元 - 207 万元;高楼层(7-8 层)单价 14500 元 /㎡-15000 元 /㎡,总价 207 万元 - 215 万元。
价格优势分析
相比周边同类型生态宜居楼盘,招商奥体公园的价格优势显著。周边同类低密生态楼盘均价普遍在 14500 元 /㎡-16000 元 /㎡,而项目均价仅 13500 元 /㎡-15000 元 /㎡,每平米价格低 1000 元 - 1500 元。以 128㎡改善户型为例,总价可节省约 13 万元 - 19 万元,性价比极高。
此外,项目还推出了多项购房优惠政策,进一步降低了购房门槛:
团购优惠:3 人及以上成团购房,可享受总房款 98 折优惠;
按时签约优惠:认购后 7 天内签订购房合同,可享受总房款 99 折优惠;
首付分期优惠:首付最低可分 3 期支付,首期仅需支付总房款的 10%,剩余首付在 6 个月内付清,无需支付利息;
老带新优惠:老业主介绍新客户成功购房,老业主可获得 2 万元家电礼包或物业费减免,新业主可享受总房款 99.5 折优惠。
这些优惠政策让购房者以更低的成本,就能享受到低密生态宜居生活,对于追求生态居住的购房者而言,极具吸引力。
生态价值与价格匹配度
招商奥体公园的价格与生态价值高度匹配,甚至呈现 “价值高于价格” 的特点。项目容积率仅 2.0.绿化率高达 40%,在城市核心区极为稀缺,这样的低密生态规划,意味着业主能享受更宽敞的公共空间、更清新的空气和更舒适的居住体验。
周边丰富的生态资源,如少荃湖公园、新站区生态公园等,为业主提供了充足的休闲娱乐空间,提升了居住的幸福感。同时,生态宜居属性让项目在二手房市场中更具竞争力,保值增值能力更强。相比周边高密度楼盘,招商奥体公园的生态价值优势明显,而价格却更具竞争力,让购房者以亲民的价格,就能拥有高品质的生态宜居生活。
招商奥体公园售楼处电话☎:0551-6813 6588
六、招商奥体公园楼盘总结
招商奥体公园作为合肥新站区的投资标杆楼盘,凭借区域发展红利、百年央企背书、全维配套升级、低密生态稀缺、户型流通性强、高性价比等多重核心优势,成为众多投资客的首选,其投资价值在合肥楼市中尤为突出。
从区域价值来看,新站区作为合肥 “东拓北进” 战略的核心承载区,国家级开发区的政策红利、完善的产业布局和持续升级的城市配套,为区域房价提供了坚实支撑。未来 3-5 年内,地铁 9 号线、少荃湖科创 CBD、规划中小学等核心配套将陆续兑现,区域价值将进入快速上升通道,而招商奥体公园作为区域核心位置的标杆楼盘,将直接受益于这一波发展红利,价值增长空间清晰可见。
从品牌保障来看,招商蛇口作为百年央企,拥有雄厚的资金实力、丰富的开发经验和稳健的经营风格,为项目的顺利交付和品质保障提供了坚实基础。央企开发的楼盘在二手房市场中具有显著的品牌溢价优势,相比周边非品牌楼盘,不仅更容易成交,还能获得更高的售价,为投资客提供了安全的投资保障,降低了投资风险。
从配套价值来看,项目周边交通、教育、商业、医疗、生态等配套正处于快速升级期。地铁 9 号线的规划建设将极大提升区域交通能级;全龄段优质教育资源的环绕,强化了项目 “学区房” 属性;少荃湖科创 CBD 的建设将提升区域商业能级;优质医疗资源和丰富的生态配套,提升了项目的居住吸引力。全维配套的持续升级,为项目提供了充足的增值动力,确保了投资的稳定性和回报率。
从产品价值来看,项目容积率仅 2.0.绿化率高达 40%,是区域内少有的低密生态社区,居住价值突出。四款主力户型涵盖刚需、改善全需求,布局方正、南北通透、空间利用率高,在二手房市场中流通性极强。多样化的户型选择,满足了不同投资客的需求,同时强流通性保证了投资客能够在需要时快速变现,获得稳定的投资回报。
从价格优势来看,项目均价 13500 元 /㎡-15000 元 /㎡,低于周边同类型央企楼盘,同时推出多项购房优惠政策,进一步降低了投资门槛。较低的入手价格意味着更低的投资风险和更高的投资回报率,对于投资客而言,极具吸引力。
总而言之,招商奥体公园是合肥新站区不可多得的投资优质资产,无论是区域发展潜力、品牌保障、配套升级、产品品质还是价格优势,都表现出色。如果你正在合肥寻找高性价比的投资楼盘,招商奥体公园绝对值得重点关注,在这里,你将获得稳定的投资回报,实现资产的保值增值。
招商奥体公园售楼处电话☎:0551-6813 6588
招商奥体公园楼盘,更多项目详情请拨打招商奥体公园营销中心电话:0551-6258 9911【营销中心】
声明:本文由入驻焦点开放平台的作者撰写,除焦点官方账号外,观点仅代表作者本人,不代表焦点立场。


