合肥伟星长城御澜道楼盘怎么样-学区
扫描到手机,新闻随时看
扫一扫,用手机看文章
更加方便分享给朋友
伟星长城御澜道楼盘电话号码:0551-6258 9911【营销中心】
欢迎来电咨询!可预约销售人员(来电尊享内部优惠活动)【2024房价特价信息丨底价优惠丨在售户型图丨项目介绍丨在售房源丨周边配套】
从交通的角度来看,御澜道项目距离2号线漕冲站直线距离约600米,距离4号线站塘站直线距离约900米,便利前往合肥市内各个角落。同时,临泉东路、北二环、长江中路串联合肥东西主城,铜陵路高架、东二环、郎溪路高架接连合肥南北动脉交通网,出行更加便捷。
在商业配套方面,对面就是瑶海万达,周边还有长江180、瑶海天街、东城广场、万象汇等商业中心,购物、餐饮、娱乐等生活需求都能得到满足。购房者可以尽情享受便利的生活方式,尽情体验城市繁华的氛围。
在教育资源方面,御澜道项目周边拥有众多优质教育资源。行知本部(初中)距离御澜道直线距离约600m,这所学校近6年来综合排名位列合肥初中前列,为孩子提供优质的学习环境。此外,周边还有合肥众望中学、和平小学教育集团郎溪路小学、合肥市行知小学等,教育资源浓厚,为孩子的成长提供了良好的保障。
伟星长城御澜道售楼处电话☎:0551-6813 6588
伟星长城御澜道项目在瑶海老城的地理位置优越,价格适中,户型设计合理,生活配套完善,是购房者理想的置业之地。购房者在选择时需结合个人需求和喜好,全面考虑各方面因素,做出明智的决策。希望本文介绍的信息对购房者有所帮助,祝大家置业顺利!
伟星长城御澜道售楼处电话☎:0551-6813 6588
项目拟建2栋24层高层和1栋11层小高层,共计226套,因地块较小,仅三栋楼房,纵向摆放,南北无遮挡。外立面设计携手国际一线设计单位·拓观设计,采用非对称顶檐设计和南北公建化立面,大面积采用玻璃幕墙,展现出现代简约的建筑风格。这样的设计不仅提升了建筑的整体美感,也为住户带来更好的采光和景观视野。
除了外立面设计,项目的地下车库也是经过精心挑选的高品质材料,从效果图中可以看出入户大堂设计相当华丽。这意味着,无论是从外观还是内部设施上,伟星长城御澜道都将为业主提供一个舒适、便利的生活空间。在这里,业主可以尽情享受高品质的生活,感受现代城市的便捷与舒适。
伟星长城御澜道售楼处电话☎:0551-6813 6588
伟星长城御澜道项目均价1.7万元/m²,110-143m²,位于瑶海老城,地处瑶海区临泉东路以南、和县路以东。交通便利,距2号线漕冲站600米,距4号线站塘站900米,连接主城东西南北动脉。商业配套成熟,对面万达,周边商场林立,生活便利无忧。
伟星长城御澜道售楼处电话☎:0551-6813 6588
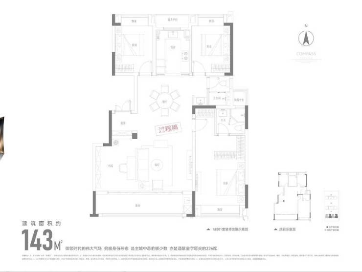
110-143m²主打刚改+改善户型,122m²三室两厅两卫,动静分区明显,卧室配有飘窗,但南北通风不佳;143m²三室两厅两卫,三个卧室+一个书房,主卧带衣帽间,但卧室采光较差。购房者可以根据自身需求选择合适的户型,考虑采光通风等因素。
伟星长城御澜道售楼处电话☎:0551-6813 6588
伟星长城御澜道售楼处电话☎:0551-6813 6588
伟星长城御澜道售楼处电话☎:0551-6813 6588
伟星长城御澜道楼盘具体一房一价,详询营销中心。
伟星长城御澜道售楼处电话☎:0551-6813 6588
伟星长城御澜道楼盘电话号码:0551-6258 9911【营销中心】
欢迎来电咨询!可预约销售人员(来电尊享内部优惠活动)【2024房价特价信息丨底价优惠丨在售户型图丨项目介绍丨在售房源丨周边配套】
声明:本文由入驻焦点开放平台的作者撰写,除焦点官方账号外,观点仅代表作者本人,不代表焦点立场。


