招商奥体公园楼盘怎么样-优惠
扫描到手机,新闻随时看
扫一扫,用手机看文章
更加方便分享给朋友
合肥(招商奥体公园)☎☎:0551-6258 9911【官方认证】
招商奥体公园项目位于新站区,地处新站少荃湖板块,具体位于东方大道与卧龙湖路交叉口,是央企招商的项目,拥有雄厚的实力和历史,是国内房企行内的领军品牌。招商奥体公园是一座奥体TOD综合体,打造了城市生长共同体,包括奥体中心、体育公园、活力商业和全龄智慧社区等四大业态。项目兑现速度迅速,一期首开住宅已成功交付,体育中心也正在运营,展现了招商品牌的信誉和实力。
招商奥体公园售楼处电话☎:0551-6813 6588
招商奥体公园项目位于新站少荃湖板块,具体地址为卧龙湖路与东方大道交叉路口西南侧。项目周边有多条城市主干道穿行而过,如东方大道、文忠路、淮海大道、包公大道等,构建了立体TOD交通网络。项目紧邻地铁4号线始发站东方大道站,地铁3号线和规划中的9号线也穿行于项目周边区域,出行便捷。项目内规划有约3万方活力荟商业街区,满足居民日常购物、餐饮、娱乐等多元化需求。此外,附近还有多所学校和医院,以及多个公园供居民休闲娱乐。
招商奥体公园售楼处电话☎:0551-6813 6588
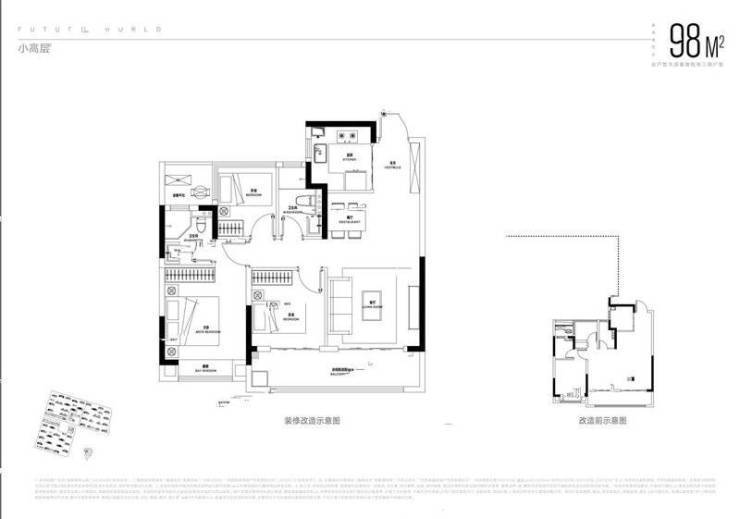
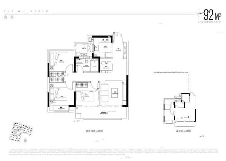
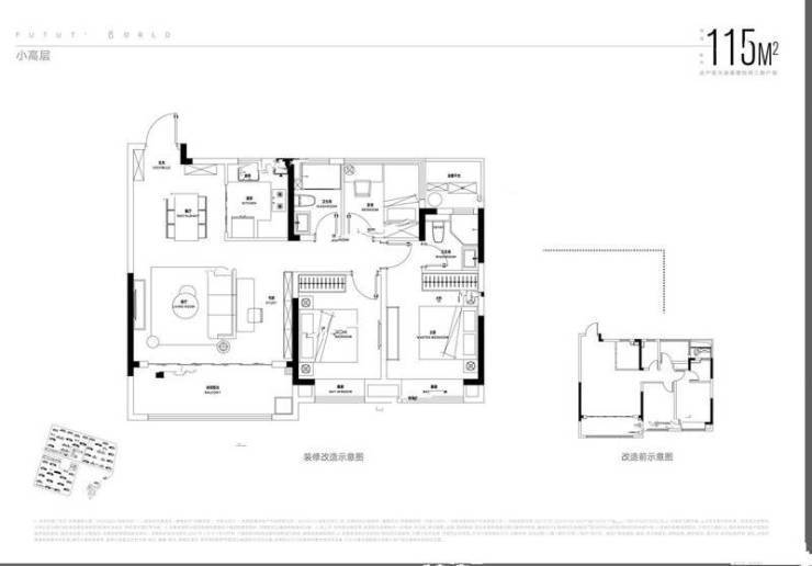
精心设计的户型是招商奥体公园的亮点之一。主打刚需小户型,主力户型面积介于89-119㎡之间,包括二居室和三居室,满足不同购房者的需求。其中,92㎡的三室两厅一卫户型设计独具匠心,南北通透的布局让采光和通风效果更佳。主卧带有一个飘窗,卫生间干湿分离,客厅和餐厅一体化设计,空间更显宽敞。客厅与阳台相连,阳台空间较大,可打造出一个开放性空间,让居住者尽情享受户外阳光和清新空气。
招商奥体公园售楼处电话☎:0551-6813 6588
招商奥体公园售楼处电话☎:0551-6813 6588
招商奥体公园售楼处电话☎:0551-6813 6588
招商奥体公园售楼处电话☎:0551-6813 6588
招商奥体公园售楼处电话☎:0551-6813 6588
招商奥体公园一、二期已经交付,楼盘品质有目共睹,央企招商品牌值得信赖。近期在售的一、二期现房,三、四期准现房,户型面积在88-115m²。作为一线品牌央企,招商在合肥拥有多年深耕发展的经验,带来了多座高品质人居作品。居民可以放心选择招商奥体公园,享受舒适宜居的生活。
招商奥体公园售楼处电话☎:0551-6813 6588
招商奥体公园的建设为合肥市民带来了全新的生活体验。项目内有丰富的商业设施和休闲娱乐场所,居民可以尽情享受购物、运动、休闲的乐趣。同时,项目周边交通便利,配套齐全,生活便捷。招商奥体公园的建成将进一步提升合肥新站区的居住品质,为居民打造一个宜居宜业的社区。选择招商奥体公园,就是选择高品质的生活。
招商奥体公园售楼处电话☎:0551-6813 6588
合肥招商奥体公园楼盘凭借其优越的地理位置、多样化的业态配套以及丰富的教育和医疗资源,吸引了不少刚需和改善型家庭的关注。随着新站区的快速发展和地铁4号线的通车,项目的未来潜力必将进一步提升。如果您对该楼盘感兴趣,建议直接联系售楼处获取最新动态或安排实地考察。
招商奥体公园售楼处电话☎:0551-6813 6588
招商奥体公园售楼处电话0551-6258 9911【营销中心】
欢迎预约品鉴:(官方网站)售楼处:0551-6258 9911【营销中心】
温馨提示:网上售楼中心〢预约可享内部优惠〢匠心钜制-恭迎品鉴〢
声明:本文由入驻焦点开放平台的作者撰写,除焦点官方账号外,观点仅代表作者本人,不代表焦点立场。


