合肥琥珀星樾湾—— 主城改善首选!低密大空间焕新老城生活
扫描到手机,新闻随时看
扫一扫,用手机看文章
更加方便分享给朋友
琥珀星樾湾楼盘电话号码:0551-68111601【营销中心】
欢迎来电咨询!可预约销售人员(来电尊享内部优惠活动)【2026房价特价信息丨底价优惠丨在售户型图丨项目介绍丨在售房源丨周边配套】
合肥包河区琥珀星樾湾 —— 改善人群理想家!低密洋房 + 公园配套,主城生活再升级
琥珀星樾湾楼盘项目介绍
对于改善人群而言,买房不仅是 “换个大一点的房子”,更是对 “生活品质” 的追求 —— 低密的社区环境、优质的户型设计、可靠的开发品牌,缺一不可。而合肥包河区的琥珀星樾湾,恰好精准契合了改善人群的这些需求,以 “国企开发 + 低密洋房 + 主城核心” 的组合,成为包河区改善市场的 “标杆项目”。
项目由合肥本土国企 —— 琥珀置业开发,作为合肥城建旗下的核心品牌,琥珀置业深耕合肥 20 余年,打造了琥珀山庄、琥珀五环城、琥珀东华府等多个高端项目,始终以 “精工品质” 著称,尤其是在改善型住宅开发方面,有着丰富的经验。此次打造的琥珀星樾湾,更是将 “改善基因” 贯彻到底:项目总占地面积约 68 亩,总建筑面积约 12.5 万㎡,但容积率仅 2.2.绿化率高达 40%,这样的 “低密高绿” 指标,在寸土寸金的包河区主城板块极为罕见 —— 要知道,周边多数改善楼盘的容积率都在 2.5 以上,而琥珀星樾湾通过降低容积率,为业主争取到了更宽的楼间距、更大的景观空间,从根源上提升了居住舒适度。
社区规划上,琥珀星樾湾采用 “高层 + 洋房” 的高低配布局,共 10 栋住宅,其中 4 栋为 11 层洋房(占比 40%),6 栋为 18-22 层高层,总户数约 890 户,洋房户型面积为 125-140㎡,专为改善家庭设计。洋房产品采用 “一梯两户” 设计,相比高层的 “两梯四户”,不仅等待电梯的时间更短,而且居住人口更少,社区更安静,私密性更强;同时,洋房的得房率高达 85%,比高层高出 7 个百分点,以 140㎡洋房为例,实际使用面积比同面积高层多近 10㎡,相当于多了一个书房,空间利用率更高。
建筑品质上,琥珀星樾湾更是 “不计成本”:洋房外立面采用 “干挂石材 + 真石漆” 组合,不仅美观大气,而且耐老化、抗腐蚀,多年后依然能保持崭新的外观;高层外立面采用 “保温一体板”,隔音隔热效果优于普通涂料,冬季室内温度比周边小区高 3-5℃,夏季更凉爽,节省空调费用;社区公共区域如入户大堂、电梯间、地下车库均采用 “精装标准”,大堂吊顶采用石膏线装饰,地面铺设大理石,电梯间墙面贴瓷砖,地下车库采用环氧地坪,从细节处彰显改善盘的品质。

琥珀星樾湾售楼处电话☎:0551-6813 6588
琥珀星樾湾楼盘周边配套
改善人群对配套的需求,不仅是 “便捷”,更是 “优质”—— 需要高端的商业、优质的教育、完善的医疗、宜居的生态,而琥珀星樾湾的周边配套,恰好满足了改善人群的 “高品质生活需求”。
生态配套是琥珀星樾湾最突出的优势之一,也是改善人群最看重的亮点。项目西距骆岗中央公园仅 1.5 公里,该公园是亚洲最大的城市中央公园,总面积约 12.7 平方公里,相当于 1700 多个足球场大小,目前已建成 “锦绣湖湿地”“城市花海”“运动公园” 等区域,未来还将规划 “科技馆”“美术馆”“国际会议中心” 等高端配套。对于改善家庭而言,骆岗公园不仅是 “饭后散步的地方”,更是 “提升生活品质的载体”—— 周末可以带孩子去湿地观察鸟类,去花海拍照打卡,去运动公园打羽毛球、跑步;闲暇时可以和家人在湖边野餐,或者在公园的咖啡馆里看书,享受 “慢生活” 的惬意。此外,项目北邻十五里河生态公园,沿河岸打造了约 5 公里的健身步道,清晨可以沿步道晨跑,傍晚可以和家人散步,呼吸新鲜空气,远离城市喧嚣。
商业配套方面,琥珀星樾湾覆盖 “高端商圈 + 社区精致商业”,满足改善人群的 “品质消费需求”。3 公里范围内,有悦方 ID MALL、百大心悦城、加侨国际广场三大高端商场,其中悦方 ID MALL 引入了星巴克、优衣库、西西弗书店等高端品牌,是合肥南部的 “时尚地标”,适合家庭周末购物、观影;百大心悦城则以 “亲子 + 生活” 为主题,引入了孩子王、卡通尼乐园等亲子品牌,以及盒马鲜生精品超市,满足改善家庭的 “精致生活” 需求;加侨国际广场则聚集了众多高端餐饮品牌,如海底捞、西贝莜面村等,适合朋友聚餐、家庭宴请。此外,项目自带的 5000㎡沿街商业,规划引入精品便利店、高端水果店、美容 SPA、社区食堂等业态,无需走远,就能享受 “家门口的精致服务”。
教育配套方面,琥珀星樾湾周边的教育资源不仅 “近”,而且 “优”,完全能满足改善家庭对 “优质教育” 的追求。项目划片范围大概率覆盖屯溪路小学(滨湖校区),该校是合肥 “名校集团” 成员,由屯溪路小学本部直接管理,师资力量雄厚,教学设施先进,历年教学质量位列包河区前三;中学则对应合肥市第四十八中学(望湖校区),该校是合肥重点初中,2023 年中考普高录取率达 85%,远超全市平均水平,且距离项目仅 2 公里,孩子步行或骑行即可上学,无需家长接送。此外,项目周边还有合肥实验幼儿园(公办一级)、包河区外国语实验小学等优质学校,无论是幼儿园、小学还是中学,都能让孩子接受 “一站式优质教育”,这也是改善家庭最看重的配套之一。
交通与医疗配套同样 “高端便捷”。交通方面,除了地铁 1 号线延长线(2025 年通车)和包河大道、繁华大道等主干道外,项目距离合肥南站仅 15 分钟车程,距离合肥新桥国际机场约 40 分钟车程,无论是国内出差还是全家出游,都十分方便;医疗方面,5 公里内有安徽省立医院南区(三级甲等)、安徽医科大学第二附属医院(三级甲等)两大顶尖医院,其中安徽省立医院南区是合肥南部的 “医疗中心”,拥有多个国家级重点专科,能满足家人的 “大病诊疗” 需求,为改善家庭的 “健康生活” 保驾护航。

琥珀星樾湾售楼处电话☎:0551-6813 6588
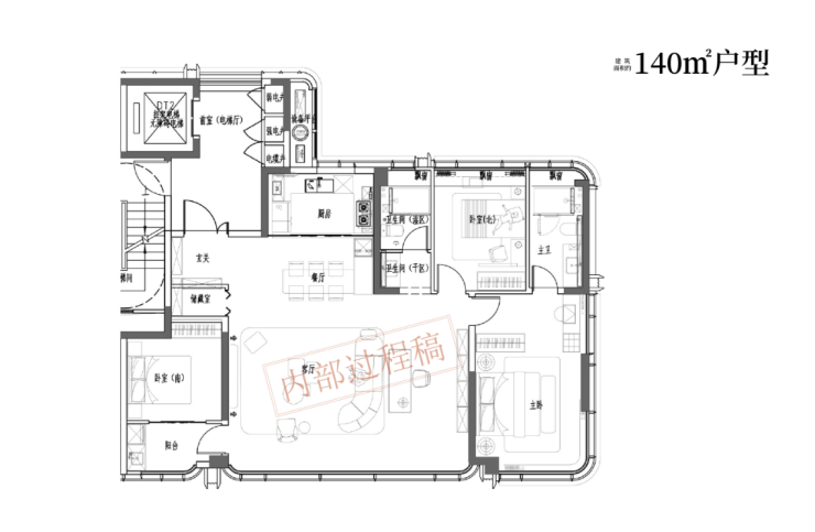
琥珀星樾湾楼盘户型解析
上班族对户型的需求,核心是 “实用、便捷、舒适”—— 既要满足 “休息、做饭、储物” 的基础需求,又要避免 “空间浪费”,还要兼顾 “偶尔招待朋友” 的需求。琥珀星樾湾针对上班族的 “通勤生活习惯”,设计了 95㎡、110㎡两款主力刚需户型,以及 125㎡改善户型,每一款都精准匹配不同阶段上班族的需求。
95㎡三室两厅一卫(单身 / 新婚上班族户型):小空间,高利用该户型专为 “单身上班族” 或 “新婚夫妻上班族” 设计,95㎡的紧凑空间,做到 “三室 + 全明”,无浪费面积,满足 “休息 + 办公 + 储物” 需求。户型采用 “三开间朝南” 布局,客厅、主卧、次卧均朝南,南向面宽达 9.8 米,确保 “休息区” 和 “活动区” 采光充足 —— 上班族白天上班,晚上回家需要 “明亮的空间” 缓解疲劳,客厅和主卧的充足采光,能让人心情更舒畅。客厅面宽 3.6 米,进深 4.5 米,餐客一体空间总面积约 16㎡,划分 “休息区”(摆放 L 型沙发 + 1.2 米茶几)和 “简易办公区”(靠近阳台一侧,摆放 1.2 米书桌),解决 “偶尔在家办公” 的需求 —— 下班后若有未完成的工作,可在书桌前处理,避免在床上办公影响休息;周末可在沙发上看电视、刷剧,放松身心。主卧面积约 12㎡,带 270° 飘窗,飘窗台面铺设大理石,可作为 “休闲区”—— 睡前坐在飘窗上看书、刷手机,或周末晒太阳,享受 “独处时光”;主卧摆放 1.8 米床 + 2 个床头柜 + 衣柜后,依然留有走动空间,不显得拥挤;衣柜采用 “顶天立地” 设计,储物空间充足,适合上班族存放四季衣物。次卧面积约 10㎡,可作为 “客房” 或 “储物间”—— 若有朋友偶尔来住,可摆放 1.5 米床;若暂时用不到,可改造成 “储物间”,存放行李箱、换季衣物、健身器材等,避免客厅杂乱。书房面积约 8㎡,可作为 “专属办公区” 或 “兴趣区”—— 摆放 1.2 米书桌 + 书柜,适合需要经常在家办公的上班族;或改成 “健身区”,摆放瑜伽垫、哑铃,下班后在家运动,无需去健身房。厨房采用 U 型设计,操作台面长达 2.8 米,“洗菜 - 切菜 - 炒菜” 动线合理,即使是 “厨房小白” 也能轻松操作;厨房预留了 “双开门冰箱位”(宽度 1.2 米),适合上班族储存速食、饮料、水果;厨房连接生活阳台,可放置洗衣机和杂物,保持厨房整洁。公共卫生间面积约 5㎡,做到 “干湿分离”,安装 “智能马桶”(支持加热、冲洗功能),冬天使用更舒适;卫生间预留了 “收纳柜” 位置,可存放洗漱用品、洗衣液等,避免台面杂乱;上班族早上洗漱、晚上洗澡,无需排队,使用便捷。
110㎡三室两厅两卫(三口之家上班族户型):功能全,更舒适该户型专为 “有孩子的上班族夫妻” 设计,在 95㎡户型的基础上,增加了一个卫生间,提升 “居住舒适度” 和 “私密性”,满足 “三口之家” 的生活需求。户型采用 “三开间朝南 + 南北通透” 布局,南向面宽达 10.5 米,客厅、主卧、次卧(儿童房)均朝南,北向为书房和厨房,空气对流性好,室内更干爽 —— 上班族平时没时间经常打扫,南北通透的户型能减少 “潮湿发霉”,降低家务负担。客厅面宽 3.9 米,进深 5 米,餐客一体空间总面积约 19.5㎡,划分 “家庭互动区”(摆放沙发、茶几、电视)和 “儿童游戏区”(靠近阳台,设置收纳式玩具柜)—— 下班后可陪孩子在游戏区玩耍,或全家一起看电视,增进亲子感情;周末可邀请同事、朋友来家聚餐,空间足够容纳 6-8 人。主卧采用 “套房设计”,面积约 15㎡,配备独立卫生间,满足上班族夫妻的 “私密性” 需求 —— 早上夫妻双方可同时洗漱,避免抢卫生间;晚上下班后可在独立卫生间泡澡放松,不影响孩子休息。主卧带 3.2 米宽飘窗,飘窗旁设置 “梳妆台”,女主人可化妆,男主人可在窗边看书,互不干扰;主卧衣柜采用 “步入式设计”,储物空间充足,可存放夫妻双方的衣物、配饰。儿童房面积约 11㎡,靠近主卧,方便上班族夫妻照顾孩子 —— 摆放 1.5 米床 + 书桌 + 衣柜,孩子可在房间学习、休息;房间预留了 “玩具收纳区”(墙面安装置物架),避免玩具散落客厅;儿童房朝南,采光充足,有利于孩子健康成长。书房面积约 9㎡,可作为 “上班族专属办公区”—— 摆放 1.4 米书桌 + 书柜,配备台灯、打印机,适合需要经常在家加班的上班族;书房与客厅之间采用 “玻璃隔断”,既能保持安静,又能看到客厅孩子的动态,兼顾 “工作” 与 “带娃”。公共卫生间面积约 5㎡,位于儿童房和书房之间,方便孩子和客人使用;卫生间做到 “干湿分离”,安装 “儿童马桶圈”(可拆卸)和 “洗手台台阶”(方便孩子自主洗漱),减少上班族的 “带娃负担”。厨房采用 L 型设计,操作台面长达 3.2 米,预留了 “嵌入式烤箱” 和 “洗碗机” 位置 —— 上班族周末可烤蛋糕、做饭,洗碗机则能减少 “洗碗时间”,多陪伴家人;厨房连接生活阳台,可放置洗衣机和烘干机,实现 “洗衣 - 烘干 - 收纳” 一站式处理,节省时间。
125㎡四室两厅两卫(改善型上班族户型):宽空间,高品质该户型专为 “工作多年、追求品质生活的上班族” 设计,125㎡的四室空间,适合 “三口之家 + 偶尔父母来住” 的需求,兼顾 “舒适” 与 “实用性”。户型采用 “四开间朝南” 布局,南向面宽达 12.2 米,客厅、主卧、儿童房、老人房均朝南,每个房间都有充足阳光;客厅面宽 4.2 米,搭配大落地窗,视野开阔,摆放 “大尺寸沙发 + 茶几 + 投影仪”,打造 “家庭影院”,下班后可享受 “沉浸式观影”;客厅与餐厅相连,总面积约 28㎡,周末可举办 “家庭聚餐” 或 “朋友派对”,空间宽敞不拥挤。主卧套房面积约 18㎡,配备独立卫生间(双台盆、浴缸、智能马桶)和步入式衣帽间 —— 双台盆设计,夫妻双方可同时洗漱;浴缸可在下班后泡澡放松,缓解工作压力;步入式衣帽间划分 “衣物区”“鞋子区”“配饰区”,收纳有序,避免杂乱。儿童房面积约 12㎡,带独立阳台,孩子可在阳台玩耍、种植绿植;房间预留了 “学习区” 和 “游戏区”,兼顾 “学习” 与 “娱乐”。老人房面积约 11㎡,靠近入户门,方便父母偶尔来住时进出;房间带飘窗,老人可在窗边晒太阳、看书;老人房与公共卫生间相邻,方便老人夜间上厕所。书房面积约 10㎡,作为 “上班族专属办公区”,配备 “老板桌”“书柜”“办公椅”,适合需要在家处理重要工作的上班族;书房还可改造成 “兴趣室”,摆放吉他、画板等,培养兴趣爱好,丰富生活。

琥珀星樾湾售楼处电话☎:0551-6813 6588

琥珀星樾湾售楼处电话☎:0551-6813 6588

琥珀星樾湾售楼处电话☎:0551-6813 6588

琥珀星樾湾售楼处电话☎:0551-6813 6588
琥珀星樾湾楼盘价格
对于改善人群而言,买房不仅要看 “价格”,更要看 “价值”—— 是否值得为 “低密洋房、优质配套、国企品质” 支付这个价格。而琥珀星樾湾的价格,恰好体现了 “高价值 + 高性价比”,在包河区改善市场中极具竞争力。

琥珀星樾湾售楼处电话☎:0551-6813 6588
琥珀星樾湾楼盘项目亮点
5.1 亮点一:国企背书的绿色健康,避免 “概念炒作”
当前房地产市场上,“绿色健康社区” 常被部分民营楼盘当作 “营销噱头”,实际交付时却存在 “环保建材减配、绿化缩水、健康配套停用” 等问题,让购房者 “买得失望、住得糟心”。而琥珀星樾湾由国企琥珀置业开发,从 “建设到交付” 全程透明可控,将 “绿色健康” 从 “概念” 落地为 “实际品质”,彻底打消购房者的顾虑。在 “建设阶段”,项目严格遵循 “国家绿色建筑二星级标准”,公示 “绿色建材清单” 和 “检测报告”—— 比如外墙保温一体板选用亚士创能品牌,每批次建材均提供 “质量检测报告”,并邀请业主代表参与 “建材进场验收”,确保建材品牌与承诺一致;社区绿化采用 “全冠移植” 技术,种植的香樟、桂花等乔木均为胸径 10cm 以上的成熟苗木,避免 “小树苗短期枯萎” 的问题,交付时即可呈现 “绿树成荫” 的景观效果。在 “交付阶段”,项目提供 “绿色建筑认证证书” 和 “室内空气质量检测报告”—— 业主收房时,可现场使用专业设备检测室内甲醛、苯、TVOC 等有害物质浓度,若检测结果不达标,项目将免费整改(如更换建材、加强通风),直至达标;社区内的健康配套(如新风系统接口、中央净水系统、健身器材)均会进行 “交付前调试”,确保正常使用,避免 “配套停用” 的问题。在 “后期维护阶段”,项目成立 “绿色社区运维团队”,专门负责绿色健康配套的长期维护 —— 团队每月对社区绿化进行修剪、浇水、施肥,每季度对中央净水系统、新风系统接口进行检修,每年对社区空气质量、水质进行检测,并将检测结果公示在社区 APP 上;此外,运维团队还会根据业主反馈,持续升级绿色配套,比如 2025 年计划在社区内增设 “太阳能充电座椅”“雨水回收灌溉系统”,进一步提升社区的绿色环保属性。这种 “国企兜底” 的保障,让 “绿色健康” 不再是 “短期营销手段”,而是 “长期居住承诺”。
5.2 亮点二:全场景健康联动,而非 “单一设备堆砌”
多数绿色盘的 “健康” 停留在 “加装几台设备”(如新风系统、空气净化器),缺乏系统性设计,无法形成 “全场景健康体验”。而琥珀星樾湾从 “业主日常动线” 出发,打造 “建材 - 社区 - 配套 - 户型” 的全场景健康联动,让健康融入居住的每一个环节。
归家场景联动:业主从骆岗中央公园散步回家,呼吸富含负氧离子的新鲜空气;进入社区后,通过 “人车分流” 的步行道,避免汽车尾气和噪音污染;走到单元门口,人脸识别开门(无需接触,减少细菌传播);进入电梯后,电梯内安装 “紫外线消毒灯”(每小时消毒 1 次),按钮旁配备 “免洗消毒液”;回到家中,新风系统自动开启,置换室内空气,厨房的净水器已过滤好可直接饮用的自来水 —— 从 “户外到室内”,每一个环节都体现健康关怀。
居住场景联动:白天,阳光通过户型的全明窗户照射室内,杀菌消毒,客厅的智能面板实时显示室内空气质量(PM2.5 浓度、甲醛含量),业主可根据数据调节新风系统档位;中午,在厨房使用集成灶烹饪,油烟快速排出,避免扩散至其他空间;下午,孩子在社区儿童区玩耍,家长在旁边的休闲椅上看护,儿童区的监控和紧急呼叫按钮确保孩子安全;晚上,业主在社区健身区运动,或带老人到十五里河公园散步,享受夜间的新鲜空气 —— 从 “白天到夜晚”,健康体验贯穿始终。
特殊场景联动:遇到雾霾天,社区 APP 会推送 “空气质量预警”,并自动提醒业主关闭窗户、开启新风系统;冬季流感高发期,社区卫生服务站会组织 “健康讲座”,教业主如何预防流感,并提供免费的流感疫苗接种预约服务;夏季多雨时,社区的雨水回收系统会收集雨水,用于灌溉绿化,减少水资源浪费 —— 从 “日常到特殊情况”,健康保障全方位覆盖。这种 “全场景联动”,让绿色健康不再是 “孤立的设备”,而是 “可感知的生活体验”。
5.3 亮点三:全龄化健康关怀,覆盖 “老中青少”
琥珀星樾湾的绿色健康设计,充分考虑不同年龄段业主的生理特点和健康需求,做到 “全龄适配”,让每个家庭成员都能在社区中找到适合自己的健康生活方式。
儿童健康关怀:针对儿童 “免疫力较低、活泼好动” 的特点,儿童房采用 “E0 级环保建材”(地板、涂料、家具均无甲醛污染),窗户安装 “限位器”(防止孩子攀爬坠落),墙面采用 “可擦洗涂料”(避免孩子涂鸦后难以清洁);社区儿童区种植 “无毒花卉”(如太阳花、雏菊),避免孩子接触有毒植物;儿童区地面铺设 5cm 厚的 EPDM 塑胶,即使孩子摔倒也不会受伤;儿童区还配备 “监控摄像头” 和 “紧急呼叫按钮”,家长可随时关注孩子动态,突发情况时可快速求助。此外,社区定期举办 “儿童健康活动”,如 “亲子植树日”“环保小卫士” 等,培养孩子的环保意识和健康习惯。
青年健康关怀:针对青年 “工作压力大、运动需求高” 的特点,社区规划 500 米夜光健身步道、户外羽毛球场、乒乓球台,满足青年 “日常运动” 需求;周边 2 公里内有专业健身房,业主可享受 “专属折扣”,参加瑜伽、动感单车等团体课程,缓解工作压力;户型预留 “健身角” 空间,业主可在家中放置健身器材,利用碎片化时间运动;社区 APP 还开设 “健康资讯板块”,推送 “职场健康小贴士”“运动饮食搭配” 等内容,帮助青年养成健康的生活习惯。
老年健康关怀:针对老人 “行动不便、需要特殊照顾” 的特点,社区内所有道路均设置 “无障碍坡道”(坡度≤1:12),单元门口安装 “无障碍扶手”,电梯内设置 “老年按键”(字体放大、高度降低至 1.2 米);老人房预留 “紧急呼叫按钮”(连接物业中控室和子女手机),突发情况时可一键求助;社区老年区配备 “适合老人的健身器材”(如太极揉推器、漫步机),器材扶手包裹软质材料,避免冬天冰冷;社区卫生服务站提供 “老人定期体检”“慢性病管理” 服务,医生每月上门为行动不便的老人测量血压、血糖,建立健康档案。此外,社区还开设 “老年大学”,设置书法、绘画、合唱等课程,丰富老人的精神文化生活,促进身心健康。
5.4 亮点四:绿色 + 生态 + 主城,三重红利叠加
琥珀星樾湾的 “绿色健康” 属性,与 “生态配套”“主城位置” 形成完美互补,实现 “绿色健康 + 生态资源 + 主城便捷” 的三重红利叠加,让项目的 “居住价值” 和 “资产价值” 远超普通绿色盘。
绿色 + 生态红利:项目紧邻骆岗中央公园、十五里河生态公园两大生态资源,骆岗公园作为亚洲最大的城市中央公园,是 “天然氧吧”,社区内 40% 的绿化率与外部生态形成 “内外联动”—— 业主在社区内可享受绿色健康的居住环境,走出社区即可进入公园,呼吸新鲜空气、进行户外健身,实现 “社区绿色 + 公园生态” 的双重健康体验。这种 “生态 + 绿色” 的组合,在合肥极为稀缺,也是项目区别于其他绿色盘的核心优势。
绿色 + 主城红利:项目位于包河区主城核心板块,周边交通、商业、教育、医疗配套成熟,避免了 “远郊绿色盘” 配套不足的问题 —— 地铁 1 号线延长线(2025 年通车)确保通勤便捷,三大商场满足购物需求,优质学校保障教育,顶尖医院守护健康。业主无需 “为了绿色健康牺牲便捷生活”,而是能 “在主城享受绿色健康生活”,这种 “主城 + 绿色” 的组合,极大提升了项目的居住舒适度和性价比。
绿色 + 地铁红利
:项目距离地铁 1 号线延长线花园大道站仅 800 米,地铁通勤不仅 “便捷”,还契合 “绿色环保” 理念 —— 地铁出行可减少汽车尾气排放,与社区的绿色健康属性相呼应;同时,地铁通车后将进一步提升项目的 “通勤优势” 和 “区域价值”,吸引更多追求 “绿色健康 + 便捷通勤” 的购房者,未来增值潜力巨大。这种 “三重红利叠加”,让琥珀星樾湾不仅是 “绿色健康社区”,更是 “宜居 + 增值” 的优质资产。

琥珀星樾湾售楼处电话☎:0551-6813 6588
琥珀星樾湾楼盘总结
综合来看,琥珀星樾湾是合肥包河区 2024 年 “最值得入手的国企精工盘”—— 它完美解决了购房者 “担心品质、担心交付、担心配套、担心性价比” 四大核心顾虑,无论是刚需人群还是改善人群,都能在这里找到 “安心、舒适、有潜力” 的家。
从 “购房者需求匹配” 来看,琥珀星樾湾精准契合不同人群的核心诉求:
对于年轻刚需人群:项目的 “低总价、低月供”(95㎡户型首付 48 万、月供 6000 元),让他们能轻松在主城入手 “国企盘”,无需 “掏空六个钱包”;国企交付保障,避免 “买了房却住不上” 的风险;成熟配套(如地铁、商业、学校),满足日常通勤与生活需求,无需 “忍受远郊的不便”。
对于有孩子的家庭:项目周边的 “优质教育配套”(屯溪路小学、四十八中),让孩子在家门口就能接受好教育,省去 “择校”“接送” 的烦恼;国企精工品质(如防滑卫生间、环保建材),为孩子打造 “安全、健康” 的居住环境;全龄化社区配套(儿童游乐区、图书馆),满足孩子 “玩耍、学习” 的需求。
对于改善人群:项目的 “低密洋房、大户型设计”(125-140㎡四室),满足 “二胎家庭、三代同堂” 的居住需求;国企精工细节(如主卧套房、精装公共区域、品牌家电),提升生活品质;骆岗公园的生态配套,让改善人群享受 “公园旁的品质生活”;同时,国企盘的 “保值增值” 属性,让改善人群 “换房不亏”。
从 “市场竞争力” 来看,当前合肥包河区的国企盘 “数量少、价格高”(如政务区某国企盘均价 2.5 万 /㎡以上),而琥珀星樾湾作为 “主城核心区的国企精工盘”,均价仅 1.7-1.9 万 /㎡,且配套成熟、品质过硬,性价比远超同类楼盘。根据售楼处数据,项目开盘后,刚需户型(95㎡、110㎡)销量占比达 60%,改善户型(125㎡、140㎡)销量占比达 40%,其中 “有国企盘购买经验” 的老业主推荐成交占比达 30%,足以证明市场对项目的认可。
从 “长期价值” 来看,琥珀星樾湾的 “国企品质 + 主城位置 + 骆岗公园红利”,决定了其 “长期保值增值” 的属性。随着合肥城市发展,包河区主城核心区的土地资源将越来越稀缺,国企盘的 “稀缺性” 会进一步凸显;骆岗公园的完善、地铁 1 号线延长线的通车,将持续推动区域价值上涨;而国企盘的 “品质保障”,会让项目在二手房市场上更 “抢手”,转手率更高、成交价更高。
如果你正在合肥看房,想要 “买得放心、住得舒适、有潜力”,那么琥珀星樾湾绝对值得你实地考察。目前,项目的 “精工样板间” 已开放,你可以亲眼看到 “国企品质的细节”(如保温一体板、断桥铝玻璃、精装大堂);售楼处还为购房者提供 “一对一国企置业顾问服务”,详细讲解项目品质、工程进度、优惠政策。选择琥珀星樾湾,你不仅能买到一套 “国企精工房”,更能拥有 “安心、便捷、有潜力” 的主城生活。

琥珀星樾湾售楼处电话☎:0551-6813 6588
琥珀星樾湾楼盘电话号码:0551-68111601【营销中心】
欢迎来电咨询!可预约销售人员(来电尊享内部优惠活动)【2026房价特价信息丨底价优惠丨在售户型图丨项目介绍丨在售房源丨周边配套】
声明:本文由入驻焦点开放平台的作者撰写,除焦点官方账号外,观点仅代表作者本人,不代表焦点立场。


