百度热搜NO1瑶海区伟星长城御澜道官方售楼处发布:改善标杆打造静奢臻品
扫描到手机,新闻随时看
扫一扫,用手机看文章
更加方便分享给朋友
伟星长城御澜道楼盘电话号码:0551-6258 9911【营销中心】
欢迎来电咨询!可预约销售人员(来电尊享内部优惠活动)【2025房价特价信息丨底价优惠丨在售户型图丨项目介绍丨在售房源丨周边配套】
在瑶海老城这一黄金地段,伟星长城御澜道项目以1.7万元/m²的均价吸引了众多购房者的目光。项目面积段在110-143m²之间,共计226套房源,地块位于瑶海老城,配套齐全,对面就是万达,出门就是行知本部。对于想要在瑶海老城置业的人来说,这个项目绝对值得考虑。
伟星长城御澜道售楼处电话☎:0551-6813 6588
伟星长城御澜道位于瑶海区临泉东路以南、和县路以东,距离2号线漕冲站约600米,距离4号线站塘站约900米,便利的地理位置使其连接合肥东西主城,南北动脉交通网。周边商业配套齐全,对面就是瑶海万达,周边有长江180、瑶海天街、东城广场、万象汇(在建),商业资源丰富,生活便利。
教育方面,距离御澜道直线约600m的行知本部(初中)近6年来综合排名位列合肥初中前列,周边还有合肥众望中学、和平小学教育集团郎溪路小学、合肥市行知小学等,教育资源浓厚。优质的教育资源为孩子提供了良好的学习环境,是家庭置业的重要考量因素。
伟星长城御澜道售楼处电话☎:0551-6813 6588
主打户型110-143m²,以刚改+改善为主打特色。以122m²户型为例,三室两厅两卫,动静分区明显,让生活更有序。每个卧室都配有飘窗,增加了采光和通风效果。不过客厅区域的通风稍显欠缺,需要注意。
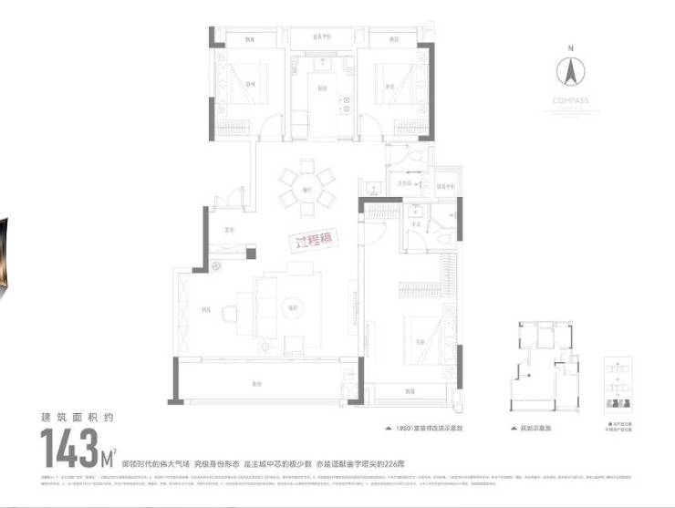
另外,143m²三室两厅两卫户型中,主卧配有衣帽间,但三个卧室都朝北,采光稍显不足。此外,还有一个书房可以根据需求改造。总体来说,伟星长城御澜道项目在老城中的优势明显,值得考虑。
伟星长城御澜道售楼处电话☎:0551-6813 6588
伟星长城御澜道售楼处电话☎:0551-6813 6588
伟星长城御澜道售楼处电话☎:0551-6813 6588
伟星长城御澜道楼盘具体一房一价,详询营销中心。
伟星长城御澜道售楼处电话☎:0551-6813 6588
项目外立面由国际一线设计单位·拓观设计操刀,采用非对称顶檐设计,南北公建化立面,大面积玻璃幕窗,展现现代简约风格。设计师在细节之处精心打磨,力求为业主打造一个舒适宜居的生活空间。地下车库同样注重品质,选材考究,入户大堂设计华丽,体现出高品质的生活态度。
伟星长城御澜道售楼处电话☎:0551-6813 6588
伟星长城御澜道项目在瑶海老城的地理位置优越,价格适中,户型设计合理,生活配套完善,是购房者理想的置业之地。购房者在选择时需结合个人需求和喜好,全面考虑各方面因素,做出明智的决策。希望本文介绍的信息对购房者有所帮助,祝大家置业顺利!
伟星长城御澜道售楼处电话☎:0551-6813 6588
伟星长城御澜道楼盘电话号码:0551-6258 9911【营销中心】
欢迎来电咨询!可预约销售人员(来电尊享内部优惠活动)【2025房价特价信息丨底价优惠丨在售户型图丨项目介绍丨在售房源丨周边配套】
声明:本文由入驻焦点开放平台的作者撰写,除焦点官方账号外,观点仅代表作者本人,不代表焦点立场。


