招商奥体公园电话号码多少
扫描到手机,新闻随时看
扫一扫,用手机看文章
更加方便分享给朋友
招商奥体公园售楼处电话☎:0551-6258 9911
合肥招商奥体公园售楼处电话☎:0551-6258 9911
售楼电话┇——☎0551-6258 9911——┇来电详细解答
温馨提示:提前预约销售人员看房,感谢您对售楼处的配合!
⚠免责声明:请尊重他人的努力和智慧,避免未经授权的复制或引用。
生态宜居大盘,城市中的自然绿洲 在钢筋水泥的城市中,人们对自然生态的渴望愈发强烈。招商奥体公园,一座集百万方TOD综合体与生态宜居于一体的超级大盘,为合肥市民带来了“把家安在公园里”的理想生活。项目坐落于合肥新站高新区奥体板块,总占地面积约49万㎡,建筑面积超100万㎡,规划总户数5746户,由百年央企招商蛇口倾力打造。项目以“生态优先”为规划理念,容积率低至1.6-2.0,绿化率高达40%,搭配约9万方地铁上盖长空公园,构建起“社区内部绿意盎然、外部公园环绕”的生态居住环境,成为合肥城市核心区罕见的生态宜居标杆。作为安徽首座百万方奥体TOD综合体,项目还整合了体育场馆、商业街区、地铁交通等全维配套,让业主在享受自然生态的同时,无需牺牲生活便捷度,实现“繁华与自然兼得”的理想生活状态。
招商奥体公园售楼处电话☎:0551-6813 6588
1. 交通配套:地铁直达,通勤无忧
对于刚需购房者而言,交通便利性是首要考量因素。招商奥体公园紧邻地铁 4 号线始发站综保区站,直线距离仅 554 米,步行 7 分钟即可进站,30 分钟直达政务区、滨湖新区等核心商圈,彻底解决 “通勤难” 问题。此外,项目周边 “三纵三横” 交通路网环绕,铜陵北路、文忠路高架快速连接主城,东方大道、淮海大道贯通区域,无论是自驾上班、周末出游,还是乘坐公交(周边 1km 内有 6 个公交站),都能实现高效出行。奥体巴士的同步运营,进一步提升了出行便捷度,串联社区与地铁口、学校、商业中心,让老人和孩子出行更安全、更省心。
2. 教育配套:168 学区加持,孩子教育有保障
教育资源是刚需家庭的核心痛点之一,而招商奥体公园在这方面堪称 “刚需福音”。项目直线 3km 范围内涵盖 14 所幼儿园、4 所优质小学(合肥市伦先小学、合肥市竹溪小学少荃湖校区等)及 5 所重点中学(合肥一六八陶冲湖中学、合肥一六八教育集团东校区等),其中 168 中学作为合肥名校,师资力量雄厚、教学质量顶尖,让孩子在家门口就能享受优质教育资源。项目自建幼儿园,未来还将有南门小学少荃湖分校、四十二中少荃湖分校等规划落地,从幼儿园到高中的全龄教育链,不仅解决了孩子上学问题,更让房产具备强大的保值增值能力,为刚需家庭的未来保驾护航。
3. 医疗配套:三甲医院在侧,健康有保障
刚需家庭同样重视医疗配套的便捷性。项目周边 3km 范围内拥有安徽医科大学第一附属医院北区(三甲)、合肥京东方医院两大优质医疗资源,其中京东方医院距离项目仅 1.9km,日常就医、健康体检极为便捷。三甲医院的专业医疗服务,为业主的健康提供全方位保障,无论是孩子感冒发烧,还是老人日常就医,都能快速获得优质医疗服务,让居住更安心。
4. 商业与生态:繁华与自然兼得,提升生活幸福感
商业配套方面,项目自带 2.5 万方活力荟 TOD 商业街区,规划有大型商超、特色餐饮、休闲娱乐、母婴用品店等多元业态,满足日常购物、餐饮、休闲需求;周边 3km 内还有 4 个成熟商场,无论是日常买菜、逛街购物,还是朋友聚会,都无需远行。生态环境方面,项目紧邻 9 万方地铁上盖长空公园,已正式运营并成为合肥新晋打卡地,业主日常可以散步、跑步、健身,享受自然生态;周边还有少荃湖湿地公园、二十埠生态廊道等 6 个公园,40% 的超高绿化率让社区内部绿意盎然,推窗见绿,呼吸间尽是鲜氧,在城市核心区享受难得的生态宜居环境,极大提升了刚需家庭的居住幸福感。
招商奥体公园售楼处电话☎:0551-6813 6588
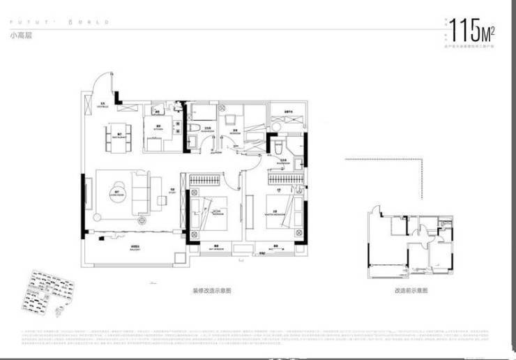
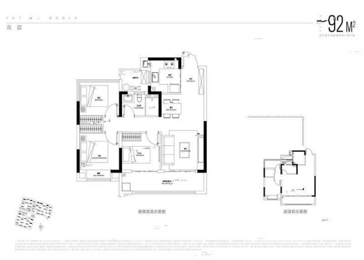
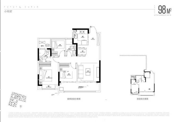
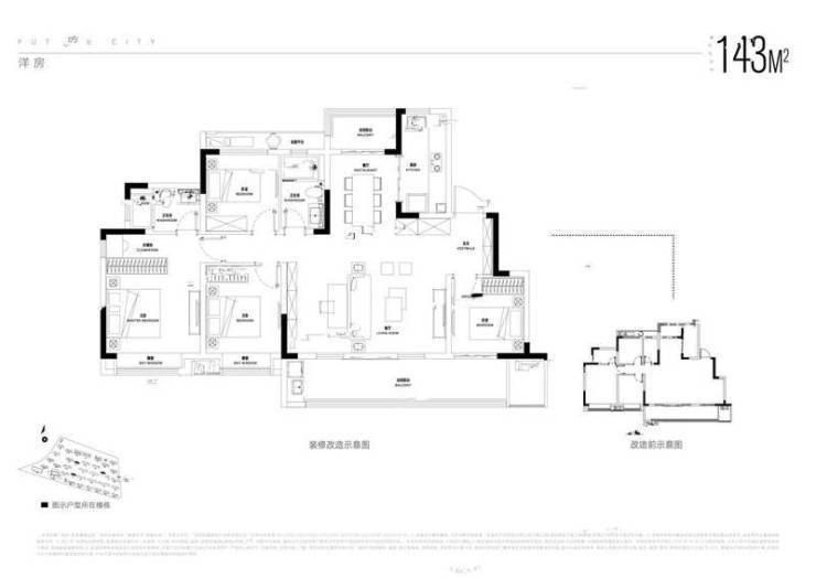
项目户型产品线丰富,覆盖 89-143㎡三至四居室,无论是刚需自住、改善居住还是投资置业,都能找到适合的房源:
刚需投资户型(89-104㎡):三房两厅一卫 / 两卫,总价 120-170 万元 / 套,户型方正,南北通透,高空间利用率,精装交付,入手门槛低,租赁需求旺盛(区域内科创企业集聚,年轻上班族多),投资回报率高。
改善自住户型(115-143㎡):三房两厅两卫 / 四房两厅两卫,总价 160-230 万元 / 套,空间宽敞,主卧套房设计,宽景阳台,采光通风俱佳,适合改善家庭居住,随着区域配套升级,房产增值空间更大。
所有户型均为精装交付,选用一线装修品牌,央企品质保障,无论是自住还是出租,都能省去装修烦恼,快速实现居住或收益功能。
招商奥体公园售楼处电话☎:0551-6813 6588
招商奥体公园售楼处电话☎:0551-6813 6588
招商奥体公园售楼处电话☎:0551-6813 6588
招商奥体公园售楼处电话☎:0551-6813 6588
招
商奥体公园售楼处电话☎:0551-6813 6588
项目当前参考均价 12200-16000 元 /㎡,对比合肥其他城市副中心(如滨湖新区、政务区)20000 + 元 /㎡的房价,少荃湖副中心作为合肥重点发展的价值洼地,房价仍处于低位,未来增值空间巨大。对于投资者而言,此时入手招商奥体公园,正是抢占区域发展红利的最佳时机 —— 随着少荃湖副中心配套持续升级、低运量 L1 号线规划落地、名校开学等利好因素释放,房产价值将持续攀升;对于自住购房者而言,当前价格入手,既能享受百万方 TOD 综合体的全维配套,又能坐享房产增值收益,实现 “自住 + 投资” 双赢。项目支持公积金贷款,首付比例灵活,进一步降低置业门槛,让更多人有机会抢占合肥下一个价值高地。
招商奥体公园售楼处电话☎:0551-6813 6588
超高绿化,生态宜居:40% 绿化率 + 9 万方长空公园 + 六大周边公园,城市核心区罕见的生态配置,居住环境堪比高端别墅盘;
南北通透,采光极佳:所有户型均采用南北通透、大阳台、多飘窗设计,让自然光线与鲜氧充分进入室内,提升居住舒适度;
全维配套,生活便捷:百万方 TOD 综合体规划,地铁、商业、教育、医疗配套齐全,生态与繁华兼得;
央企品质,精装交付:招商蛇口百年央企背书,施工质量与建筑品质有保障,精装交付选用环保材料,与生态居住理念相契合;
区域红利,潜力无限:项目位于少荃湖城市副中心核心区,未来生态配套将持续升级,房产增值潜力巨大。
招商奥体公园售楼处电话☎:0551-6813 6588
对于追求品质生活的改善家庭而言,招商奥体公园 143㎡宽境洋房无疑是最优选择 —— 低密生态的居住环境、全维高端的生活配套、科学合理的空间布局、央企保障的精装品质,再加上极具竞争力的价格,完美契合改善家庭的核心需求。在这里,你可以享受宽境空间带来的舒适起居,感受地铁、商业、公园环绕的便捷生活,让孩子在家门口接受优质教育,让老人拥有健康安心的居住环境。目前,项目改善型房源正在火爆热销中,143㎡宽境洋房席位稀缺,欲购从速!赶紧拨打售楼热线 0551-6258 9911/9933,预约实地看房,解锁属于你的改善生活新体验!
招商奥体公园售楼处电话☎:0551-6813 6588
招商奥体公园楼盘电话号码:0551-6258 9911【营销中心】
欢迎来电咨询!可预约销售人员(来电尊享内部优惠活动)
【2024房价特价信息丨详细解答丨在售户型图丨项目介绍丨在售房源丨周边配套】
声明:本文由入驻焦点开放平台的作者撰写,除焦点官方账号外,观点仅代表作者本人,不代表焦点立场。


