官方通告 | 招商奥体公园新房周边配套-学区
扫描到手机,新闻随时看
扫一扫,用手机看文章
更加方便分享给朋友
招商奥体公园楼盘,更多项目详情请拨打招商奥体公园营销中心电话:0551-6258 9911【营销中心】
在快节奏的城市生活中,人们对生态宜居的需求日益迫切,而位于合肥新站区东方大道与卧龙湖路交口往南 200 米的招商奥体公园,正是为满足这份需求而生的低密生态标杆楼盘。项目由百年央企招商蛇口匠心打造,作为深耕地产行业 40 余年的领军企业,招商蛇口始终秉持 “以人为本、生态优先” 的开发理念,在全国范围内打造了众多生态宜居标杆项目,此次落子新站区核心区位,更是将生态宜居理念贯彻到底,为合肥购房者带来 “推窗见绿、出门入园” 的高品质居住体验。
招商奥体公园总占地面积约 180 亩,总建筑面积超 35 万平方米,规划容积率仅 2.0.建筑密度 22%,绿化率高达 40%,是区域内稀缺的低密生态社区。这样的规划指标意味着,项目将更多空间留给自然,让业主在城市核心区也能享受宁静、舒适的居住环境。项目整体规划遵循 “一轴两带多节点” 的园林布局,将住宅、商业、教育、休闲等业态与自然生态有机融合,打造全龄段、全场景的生态宜居社区。
项目住宅部分由 18 栋高层和 12 栋洋房组成,高层层数 18-24 层,洋房层数 6-8 层,总户数约 2200 户,车位配比 1:1.2.充分满足业主居住与停车需求。建筑风格采用现代简约风格,外立面选用真石漆与玻璃幕墙组合材质,线条流畅利落,既美观大方,又能最大化引入自然光线。同时,建筑布局充分考虑采光与通风,确保每一栋楼、每一户都能享受充足的阳光和良好的通风效果。
社区内部规划了丰富的生态休闲配套,包括约 5000㎡中央景观花园、800 米环形健身步道、景观水系、亲水平台、儿童游乐区、老年活动中心等。中央景观花园种植了香樟、桂花、樱花、红枫等多种名贵绿植,形成四季有景的园林景观;环形健身步道环绕中央景观花园,沿途设置休息座椅、健身驿站,让业主在健身的同时享受自然美景;景观水系与亲水平台相映成趣,为社区增添灵动气息。此外,项目还引入了智慧社区管理系统,在保障业主生活便捷的同时,最大限度减少对生态环境的影响,打造绿色、智能的生态宜居社区。
招商奥体公园售楼处电话☎:0551-6813 6588
五、招商奥体公园楼盘项目亮点
招商奥体公园作为合肥新站区的央企品质标杆盘,凭借多项央企专属的核心亮点,成为购房者安心置业的首选,其核心亮点主要体现在以下几个方面。
百年央企背书,交付保障无忧
招商蛇口作为百年央企,拥有雄厚的资金实力和稳健的经营风格,在房地产行业调整期,央企背景意味着更强的抗风险能力和更可靠的交付保障。项目自开工以来,工程进度稳步推进,已实现多栋楼封顶,严格按照施工计划推进,确保按时交付。
招商蛇口建立了完善的交付保障体系,从施工质量把控到交付流程优化,每一个环节都严格要求,确保业主收到的房子符合高品质标准。相比中小开发商楼盘,央企开发的楼盘更能避免延期交付、烂尾等风险,让购房者买得放心、住得安心。
精工品质把控,居住体验优越
项目在品质把控上达到了行业高标准,从建筑材料的选择到施工工艺的执行,都严格按照央企标准执行。项目采用品牌建材,如断桥铝门窗、双层中空 Low-E 玻璃、品牌电梯、真石漆外立面等,确保建筑的安全性、耐用性和舒适性;施工过程中,采用先进的施工工艺和严格的质量验收标准,每一道工序都经过多重验收,确保建筑品质。
社区内部规划了约 5000㎡中央景观花园、800 米环形健身步道、全龄段休闲配套及智慧
智慧社区赋能,生活便捷智能
项目引入了央企标准的智慧社区管理系统,整合了智能门禁、视频监控、电子巡更、智能停车、社区 WiFi 全覆盖等多项功能。智能门禁支持人脸识别、刷卡、密码等多种解锁方式,安全便捷;视频监控覆盖社区公共区域,24 小时实时监控,保障业主居住安全;电子巡更系统确保安保巡逻无死角,提升社区安全性;智能停车系统支持车牌识别、线上预约车位,解决停车难题;社区 WiFi 全覆盖,让业主在公共区域也能随时上网,满足休闲、办公需求。智慧社区系统的引入,让业主的生活更加便捷、智能,彰显央企对现代居住需求的深刻理解。
优质物业服务,居住安心舒心
项目引入招商积余物业服务,作为国内领先的物业服务商,招商积余具有国家一级物业管理资质,积累了丰富的物业服务经验。物业团队由专业人员组成,提供 24 小时安保巡逻、日常保洁、设施维护、绿化养护等全方位服务。针对业主的需求,物业还提供个性化服务,如代收快递、家电维修预约、房屋托管等;定期组织社区活动,如邻里节、亲子活动、健康讲座等,增强社区凝聚力。优质的物业服务不仅提升了居住舒适度,还能保障房屋的保值增值,让业主居住安心舒心。
全维配套完善,生活便捷无忧
依托央企的资源整合能力,项目周边交通、教育、商业、医疗、生态等配套十分完善。立体交通网络让业主轻松通达全城;全龄段优质教育资源让孩子在家门口就能享受优质教育;完善的商业配套满足业主日常购物、休闲娱乐需求;优质的医疗资源为业主的健康保驾护航;丰富的生态资源让业主亲近自然,享受清新空气。全维配套的完善,让业主无需等待规划兑现,即刻享受便捷舒适的生活,体现了央企楼盘的配套优势。
高性价比优势,置业门槛亲民
相比周边同类型非央企楼盘,项目在品质、配套、交付保障等方面均具有优势,而价格却保持亲民。项目均价 13500 元 /㎡-15000 元 /㎡,与周边同类楼盘价格持平甚至更低,同时推出多项购房优惠政策,进一步降低了置业门槛。对于刚需人群而言,89㎡户型总价仅 120 万元 - 130 万元,首付最低 24 万元,就能享受央企级的品质居住;对于改善型人群而言,105㎡-143㎡户型既能满足居住需求,又能控制购房成本,性价比极高。
招商奥体公园售楼处电话☎:0551-6813 6588
四、招商奥体公园楼盘价格
在合肥楼市中,生态宜居楼盘往往因稀缺性而价格偏高,而招商奥体公园作为区域内少有的低密生态标杆楼盘,不仅拥有优越的生态环境和完善的生活配套,价格还极具竞争力,为购房者提供了高性价比的生态宜居选择。
主力户型价格区间
目前,招商奥体公园的销售均价为 13500 元 /㎡-15000 元 /㎡,根据户型、楼层、朝向的不同,价格有所差异,具体主力户型价格区间如下:
89㎡三室两厅一卫:总价约 120 万元 - 130 万元,单价约 13500 元 /㎡-14600 元 /㎡。低楼层(1-5 层)单价 13500 元 /㎡-13800 元 /㎡,总价 120 万元 - 121 万元;中楼层(6-15 层)单价 13800 元 /㎡-14300 元 /㎡,总价 123 万元 - 127 万元;高楼层(16-24 层)单价 14300 元 /㎡-14600 元 /㎡,总价 127 万元 - 130 万元。
105㎡三室两厅两卫:总价约 140 万元 - 155 万元,单价约 13300 元 /㎡-14800 元 /㎡。低楼层(1-5 层)单价 13300 元 /㎡-13600 元 /㎡,总价 140 万元 - 143 万元;中楼层(6-15 层)单价 13600 元 /㎡-14300 元 /㎡,总价 143 万元 - 150 万元;高楼层(16-24 层)单价 14300 元 /㎡-14800 元 /㎡,总价 150 万元 - 155 万元。
128㎡四室两厅两卫:总价约 170 万元 - 190 万元,单价约 13200 元 /㎡-14800 元 /㎡。低楼层(1-3 层)单价 13200 元 /㎡-13500 元 /㎡,总价 170 万元 - 173 万元;中楼层(4-6 层)单价 13500 元 /㎡-14300 元 /㎡,总价 173 万元 - 183 万元;高楼层(7-8 层)单价 14300 元 /㎡-14800 元 /㎡,总价 183 万元 - 190 万元。
143㎡四室两厅两卫:总价约 190 万元 - 215 万元,单价约 13300 元 /㎡-15000 元 /㎡。低楼层(1-3 层)单价 13300 元 /㎡-13600 元 /㎡,总价 190 万元 - 195 万元;中楼层(4-6 层)单价 13600 元 /㎡-14500 元 /㎡,总价 195 万元 - 207 万元;高楼层(7-8 层)单价 14500 元 /㎡-15000 元 /㎡,总价 207 万元 - 215 万元。
价格优势分析
相比周边同类型生态宜居楼盘,招商奥体公园的价格优势显著。周边同类低密生态楼盘均价普遍在 14500 元 /㎡-16000 元 /㎡,而项目均价仅 13500 元 /㎡-15000 元 /㎡,每平米价格低 1000 元 - 1500 元。以 128㎡改善户型为例,总价可节省约 13 万元 - 19 万元,性价比极高。
此外,项目还推出了多项购房优惠政策,进一步降低了购房门槛:
团购优惠:3 人及以上成团购房,可享受总房款 98 折优惠;
按时签约优惠:认购后 7 天内签订购房合同,可享受总房款 99 折优惠;
首付分期优惠:首付最低可分 3 期支付,首期仅需支付总房款的 10%,剩余首付在 6 个月内付清,无需支付利息;
老带新优惠:老业主介绍新客户成功购房,老业主可获得 2 万元家电礼包或物业费减免,新业主可享受总房款 99.5 折优惠。
这些优惠政策让购房者以更低的成本,就能享受到低密生态宜居生活,对于追求生态居住的购房者而言,极具吸引力。
生态价值与价格匹配度
招商奥体公园的价格与生态价值高度匹配,甚至呈现 “价值高于价格” 的特点。项目容积率仅 2.0.绿化率高达 40%,在城市核心区极为稀缺,这样的低密生态规划,意味着业主能享受更宽敞的公共空间、更清新的空气和更舒适的居住体验。
周边丰富的生态资源,如少荃湖公园、新站区生态公园等,为业主提供了充足的休闲娱乐空间,提升了居住的幸福感。同时,生态宜居属性让项目在二手房市场中更具竞争力,保值增值能力更强。相比周边高密度楼盘,招商奥体公园的生态价值优势明显,而价格却更具竞争力,让购房者以亲民的价格,就能拥有高品质的生态宜居生活。
招商奥体公园售楼处电话☎:0551-6813 6588
二、招商奥体公园楼盘周边配套
一个楼盘的价值,不仅取决于项目本身的品质,更离不开周边完善的配套设施。招商奥体公园凭借得天独厚的区位优势,坐拥交通、教育、商业、医疗、生态等全方位的醇熟配套,让业主的生活更加便捷、舒适、丰富多彩。
交通配套:立体交通网络,畅达全城
招商奥体公园紧邻东方大道与卧龙湖路两大城市主干道,形成 “一横一纵” 的交通格局。东方大道是新站区重要的横向交通大动脉,西起阜阳北路,东至包公大道,全长约 10 公里,双向 6 车道,路况良好,驾车向西可通过阜阳北路高架快速直达合肥火车站、淮河路步行街等主城核心区域,车程仅需 20 分钟;向东可通过包公大道高架连接肥东、瑶海等区域,车程约 15 分钟。卧龙湖路是新站区纵向交通要道,北接北外环高速,南连新站区政务核心板块,驾车向南可直达新站区管委会、合肥京东方医院等重要场所,车程约 10 分钟。
公共交通方面,项目周边 500 米范围内设有卧龙湖路东方大道、东方大道卧龙湖路、新站寿春实验中学等 3 个公交站点,涵盖 301 路、302 路、686 路、803 路等多条公交线路。其中,301 路公交可直达地铁 3 号线幼儿师范站,车程约 15 分钟;302 路公交可直达地铁 1 号线合肥火车站,车程约 25 分钟;686 路公交可直达新站区核心商圈武里山天街,车程约 10 分钟。未来,随着合肥地铁 9 号线(规划中)的建成通车,项目将无缝衔接地铁网络,出行效率将进一步提升,轻松通达全城各个角落。
此外,项目距离合肥新桥国际机场约 40 公里,驾车通过北外环高速转机场高速,车程约 45 分钟;距离合肥火车站约 15 公里,驾车通过阜阳北路高架,车程约 20 分钟;距离合肥南站约 25 公里,驾车通过包河大道高架,车程约 30 分钟,无论是日常通勤还是长途出行,都十分便捷。
教育配套:全龄教育资源,护航成长
教育是每个家庭最关注的问题之一,招商奥体公园周边教育资源丰富,形成了从幼儿园到中学的全龄段教育体系,让孩子在家门口就能享受优质的教育资源,为未来的发展奠定坚实的基础。
项目内部规划有一所 12 班制公办幼儿园,占地面积约 4000㎡,建筑面积约 3000㎡,将配备专业的师资力量和完善的教学设施,预计 2025 年正式投入使用,让业主的孩子足不出社区就能接受优质的启蒙教育。
项目周边 1 公里范围内分布着多所优质中小学。其中,合肥新站寿春实验中学距离项目仅 500 米,该校是寿春教育集团旗下的优质民办中学,成立于 2015 年,拥有先进的教学理念和雄厚的师资力量,中考成绩在新站区名列前茅;合肥市庆平希望学校距离项目约 800 米,该校是一所九年一贯制公办学校,涵盖小学和初中,教学设施完善,师资力量充足,为学生提供全面的素质教育;合肥市第 168 中学东校区距离项目约 1.5 公里,该校是安徽省示范高中,成立于 2002 年,以优异的高考成绩闻名全省,每年都有大量学生考入全国重点高校,是众多家长和学生向往的优质高中。
此外,周边还有合肥市新站区关井小学、合肥市新站区三十头镇中心学校等多所公办小学,以及多所规划中的中小学,教育资源持续丰富,满足不同家庭对孩子教育的需求。
商业配套:繁华商业氛围,便利生活
商业配套的完善程度直接影响着业主的日常生活便利性,招商奥体公园周边商业氛围浓厚,无论是日常购物、餐饮美食,还是休闲娱乐,都能一站式满足。
项目自带约 2 万方社区商业,规划引入超市、便利店、生鲜卖场、品牌餐饮、美容美发、药店等多元化业态,预计 2026 年正式开业运营,业主下楼即可满足日常购物、餐饮、休闲等基本需求,无需远行。
项目距离新站区核心商圈 —— 武里山天街仅 3 公里,驾车车程约 10 分钟。武里山天街是新站区规模较大的商业综合体之一,总建筑面积约 10 万方,涵盖大型购物中心、连锁超市、品牌餐饮、电影院、KTV、儿童乐园等丰富业态,入驻了永辉超市、大地影院、肯德基、麦当劳等众多知名品牌,是周边居民休闲娱乐的首选之地。
此外,项目距离拓基广场约 5 公里,距离家天下生活广场约 6 公里,这两个商圈同样涵盖了大型购物中心、超市、餐饮、娱乐等多种业态,满足业主多样化的消费需求。周边还有多个在建的商业综合体,未来商业氛围将更加浓厚,生活便利性将进一步提升。
医疗配套:优质医疗资源,健康保障
健康是幸福生活的基础,招商奥体公园周边医疗资源丰富,为业主的健康提供全方位的保障。
项目距离安徽省第二人民医院(北区)约 4 公里,驾车车程约 15 分钟。安徽省第二人民医院是集医疗、教学、科研、预防、保健、康复为一体的三级甲等综合性医院,开放床位 2000 余张,拥有多个省级重点学科和特色专科,医疗设备先进,师资力量雄厚,能够为业主提供高水平的医疗服务。
项目距离合肥京东方医院约 3.5 公里,驾车车程约 12 分钟。合肥京东方医院是一家集医疗、教学、科研、预防、保健为一体的三级综合医院,由京东方科技集团投资建设,总建筑面积约 20 万方,开放床位 1000 张,重点打造心血管科、骨科、妇产科、儿科等特色科室,医疗技术先进,服务质量优质。
此外,项目周边还有合肥市新站区七里塘社区卫生服务中心、合肥新站综合开发试验区三十头社区卫生服务中心等多家社区卫生服务中心,距离项目均在 3 公里范围内,日常就医、健康体检十分便捷,为业主的健康保驾护航。
生态配套:优质生态资源,宜居环境
在快节奏的城市生活中,优质的生态环境成为人们追求的重要目标,招商奥体公园周边生态资源丰富,为业主提供了清新的空气和舒适的居住环境。
项目距离少荃湖公园约 3 公里,驾车车程约 10 分钟。少荃湖是合肥北部最大的城市湖泊,湖面面积约 1.5 平方公里,周边规划有少荃湖湿地公园、科创 CBD 景观带,总规划面积约 5 平方公里,是合肥市重点打造的生态公园之一。公园内设有休闲步道、观景平台、亲水平台、湿地景观等多个景点,是业主休闲散步、跑步健身、周末出游的绝佳去处。
项目距离新站区生态公园约 4 公里,驾车车程约 15 分钟。新站区生态公园是合肥市较早建设的城市公园之一,占地面积约 1000 亩,园内种植了大量的树木、花草,设有湖泊、假山、亭台楼阁等景观,空气清新,环境优美,是周边居民休闲放松的好去处。
此外,项目周边还有瑶海公园、李鸿章享堂等多个景点,距离项目均在 10 公里范围内,周末闲暇时光,业主可以带着家人朋友前往游玩,感受大自然的美景,放松身心。
招商奥体公园售楼处电话☎:0551-6813 6588
三、招商奥体公园楼盘户型解析
户型是居住体验的核心,招商奥体公园深入洞察合肥购房者的居住需求,结合项目低密生态的规划优势,打造了多款兼具实用性、舒适性和性价比的户型产品,涵盖 89㎡、105㎡、128㎡、143㎡四个主力面积段,从刚需小三室到高端改善大四室,满足不同家庭结构和生活需求的购房者。
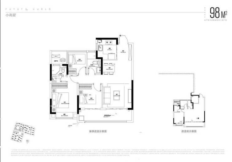
89㎡三室两厅一卫:刚需首选,紧凑实用
89㎡三室两厅一卫户型是项目的刚需主力户型,整体布局方正,南北通透,空间利用率高达 85%,没有浪费空间,是刚需人群置业的理想选择。
入户处设置了独立玄关,玄关宽度约 1.2 米,深度约 1.5 米,既保证了室内的隐私性,又能作为收纳空间,放置鞋柜、衣帽架、行李箱等物品,让居家生活更加整洁有序。玄关右侧设有挂钩和换鞋凳,方便业主进门后及时换鞋、挂衣物,细节设计十分贴心。
客厅位于户型中央,面宽 3.6 米,进深 4.2 米,建筑面积约 15㎡,空间宽敞明亮。客厅与南向阳台相连,阳台面宽 3.6 米,进深 1.8 米,建筑面积约 6.5㎡,采用全景落地窗设计,最大化引入自然光线,让客厅更加明亮通透。阳台可根据需求进行个性化改造,设置休闲区、晾晒区或绿植区,满足多样化的生活需求。
餐厅紧邻客厅和厨房,建筑面积约 6㎡,可容纳 4-6 人同时用餐。餐厅与厨房之间设有滑动门,既保证了用餐环境的整洁,又能方便上菜。厨房位于户型西侧,采用 U 型设计,操作台面长度约 3.5 米,洗切炒动线合理,预留了双开门冰箱位置,同时配备了燃气热水器、抽油烟机、燃气灶等基础家电接口,满足日常烹饪需求。
三个卧室分布在户型的东侧和北侧,动静分离,避免了活动区对休息区的干扰。主卧位于户型东侧,面宽 3.2 米,进深 3.8 米,建筑面积约 12㎡,带有南向飘窗,采光充足,空间宽敞,可放置 1.8 米宽的床和衣柜。两个次卧分别位于户型北侧和东侧,面宽均为 2.7 米,进深 3.2 米,建筑面积约 8.6㎡,可作为儿童房、老人房或书房,满足不同家庭的居住需求。
卫生间位于户型北侧,建筑面积约 4.5㎡,采用干湿分离设计,将淋浴区与洗漱区、马桶区分开,提高了使用效率,避免了潮湿问题。卫生间配备了花洒、马桶、洗手盆等基础洁具,同时预留了洗衣机接口,方便业主使用。
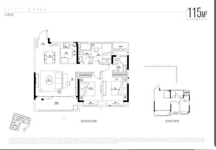
105㎡三室两厅两卫:改善刚需,舒适升级
105㎡三室两厅两卫户型是在 89㎡户型基础上的升级版本,空间更加宽敞,舒适度更高,适合改善型刚需人群,既能满足家庭成员的居住需求,又能保证居住的舒适性。
入户玄关更加开阔,宽度约 1.5 米,深度约 1.8 米,可设置多功能收纳柜,满足家庭更多的收纳需求。玄关处采用大理石地面,与室内木地板形成鲜明对比,彰显品质感。
客厅面宽提升至 3.8 米,进深 4.5 米,建筑面积约 17㎡,空间更加宽敞明亮。客厅与南向阳台相连,阳台面宽 3.8 米,进深 2.0 米,建筑面积约 7.6㎡,采用全景落地窗设计,视野更加开阔,采光通风效果更佳。阳台可设置休闲沙发、茶几,打造专属的休闲空间,欣赏社区美景。
餐厅建筑面积约 7㎡,可容纳 6-8 人同时用餐,与客厅形成通透的一体化空间,增强了空间的开阔感。厨房位于户型西侧,采用 U 型设计,操作台面长度约 3.8 米,空间更加宽敞,预留了双开门冰箱位置,满足大家庭的烹饪需求。厨房与餐厅之间采用开放式设计(可根据需求设置滑动门),增强了空间的互动性。
三个卧室分布合理,动静分离。主卧位于户型东侧,采用套房设计,面宽 3.3 米,进深 4.8 米,建筑面积约 16㎡,配备独立卫生间和衣帽间。主卧带有南向飘窗,采光充足,空间宽敞舒适,可放置 1.8 米宽的床、衣柜和梳妆台。独立卫生间建筑面积约 4㎡,采用干湿分离设计,配备花洒、马桶、洗手盆等洁具,保证了主人的隐私和居住舒适度。
两个次卧分别位于户型北侧和东侧,面宽均为 2.8 米,进深 3.5 米,建筑面积约 9.8㎡,空间充足,可放置 1.5 米宽的床和衣柜。其中一个次卧带有南向飘窗,采光良好,可作为儿童房;另一个次卧可作为老人房或书房,满足多样化的居住需求。
公共卫生间位于户型北侧,建筑面积约 5㎡,采用干湿分离设计,位于两个次卧之间,使用方便。公共卫生间配备了花洒、马桶、洗手盆、洗衣机接口等,满足家庭成员的日常使用需求。
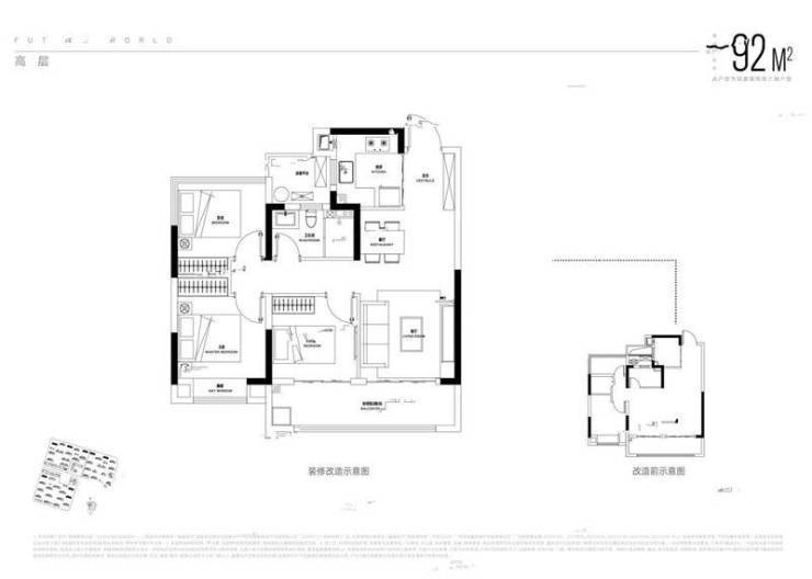
128㎡四室两厅两卫:改善优选,空间阔绰
128㎡四室两厅两卫户型是项目的改善主力户型,户型方正通透,南北双阳台设计,空间阔绰,舒适度高,适合家庭成员较多的改善型人群。
入户玄关宽敞明亮,宽度约 1.8 米,深度约 2.0 米,可设置入户花园或多功能收纳区,提升居家品质。玄关处采用吊顶设计,搭配筒灯和射灯,营造出温馨舒适的氛围。
客厅面宽 4.0 米,进深 4.8 米,建筑面积约 19㎡,空间宽敞开阔。客厅与南向景观阳台相连,阳台面宽 4.0 米,进深 2.0 米,建筑面积约 8㎡,采用全景落地窗设计,采光通风效果极佳。阳台可打造为空中花园,种植各种绿植花卉,或设置休闲茶室,享受惬意的休闲时光。
餐厅建筑面积约 8㎡,可容纳 8-10 人同时用餐,与客厅形成通透的一体化空间,增强了空间的开阔感。餐厅与北向生活阳台相连,北向阳台面宽 3.0 米,进深 1.8 米,建筑面积约 5.4㎡,可作为晾晒区、储物区或洗衣房,功能分区明确,提高了空间利用率。
厨房位于户型西侧,采用 L 型设计,操作台面长度约 4.0 米,空间宽敞,动线合理。厨房配备了燃气热水器、抽油烟机、燃气灶等基础家电接口,预留了双开门冰箱位置,满足大家庭的烹饪需求。厨房与餐厅相邻,用餐、上菜十分便捷。
四个卧室分布合理,动静分离,避免了活动区对休息区的干扰。主卧位于户型东侧,采用套房设计,面宽 3.5 米,进深 5.0 米,建筑面积约 17.5㎡,配备独立卫生间和步入式衣帽间。主卧带有南向全景飘窗,采光充足,空间宽敞奢华,可放置 2.0 米宽的床、衣柜和梳妆台,彰显主人身份。独立卫生间建筑面积约 5㎡,采用干湿分离设计,配备花洒、马桶、洗手盆、浴缸等洁具,享受高品质的卫浴体验。
两个南向次卧分别位于户型南侧和东侧,面宽均为 3.0 米,进深 3.8 米,建筑面积约 11.4㎡,空间充足,采光良好。其中一个次卧可作为儿童房,放置 1.5 米宽的床、书桌和衣柜;另一个次卧可作为老人房,方便老人日常生活。北向次卧位于户型北侧,面宽 2.8 米,进深 3.5 米,建筑面积约 9.8㎡,可作为书房、茶室或健身房,满足多样化的居住需求。
公共卫生间位于户型北侧,建筑面积约 5.5㎡,采用干湿分离设计,位于两个次卧之间,使用方便。公共卫生间配备了花洒、马桶、洗手盆、洗衣机接口等,满足家庭成员的日常使用需求。
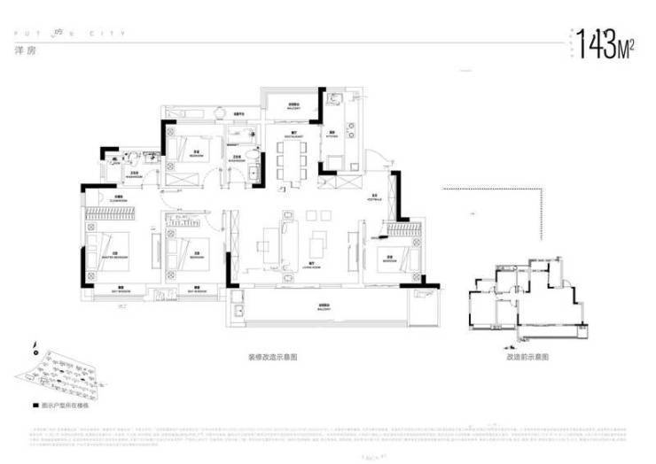
143㎡四室两厅两卫:高端改善,奢华舒适
143㎡四室两厅两卫户型是项目的高端改善户型,空间开阔,布局合理,品质感十足,适合追求高品质生活的改善型人群。
入户玄关采用子母门设计,彰显尊贵感。玄关宽度约 2.0 米,深度约 2.2 米,可设置大型收纳柜和展示区,收纳空间充足,同时提升了居家品质。玄关处采用大理石地面和吊顶设计,搭配水晶吊灯,营造出奢华大气的氛围。
客厅面宽 4.2 米,进深 5.0 米,建筑面积约 21㎡,空间宽敞开阔,气势十足。客厅与南向超宽阳台相连,阳台面宽 6.8 米,进深 2.0 米,建筑面积约 13.6㎡,采用全景落地窗设计,视野开阔,采光通风效果极佳。阳台可打造为多功能休闲区,设置休闲沙发、茶几、跑步机等,满足休闲、健身、观景等多种需求。
餐厅建筑面积约 9㎡,可容纳 10-12 人同时用餐,与客厅形成通透的一体化空间,增强了空间的开阔感。餐厅与北向生活阳台相连,北向阳台面宽 3.2 米,进深 1.8 米,建筑面积约 5.8㎡,可作为晾晒区、储物区或洗衣房,功能分区明确。
厨房位于户型西侧,采用中西厨设计,中厨封闭烹饪,避免油烟扩散;西厨可作为早餐台、吧台,满足多样化的烹饪需求。中厨采用 U 型设计,操作台面长度约 4.5 米,空间宽敞,动线合理,预留了双开门冰箱位置和各种家电接口。西厨与餐厅相邻,用餐便捷,同时增强了空间的互动性。
四个卧室分布合理,动静分离,私密性强。主卧位于户型东侧,采用豪华套房设计,面宽 3.6 米,进深 5.2 米,建筑面积约 18.7㎡,配备独立卫生间、步入式衣帽间和南向全景飘窗。主卧空间宽敞奢华,可放置 2.0 米宽的床、衣柜、梳妆台和休闲沙发,彰显主人的尊贵身份。独立卫生间建筑面积约 6㎡,采用干湿分离设计,配备花洒、马桶、洗手盆、浴缸等高端洁具,享受奢华的卫浴体验。
两个南向次卧分别位于户型南侧和东侧,面宽均为 3.2 米,进深 4.0 米,建筑面积约 12.8㎡,空间充足,采光良好。其中一个次卧可作为儿童房,放置 1.8 米宽的床、书桌和衣柜;另一个次卧可作为老人房,配备独立的卫生间(可选装),方便老人日常生活。北向次卧位于户型北侧,面宽 3.0 米,进深 3.8 米,建筑面积约 11.4㎡,可作为书房、影音室或健身房,满足多样化的居住需求。
公共卫生间位于户型北侧,建筑面积约 6㎡,采用干湿分离设计,配备高端洁具,满足家庭成员的日常使用需求。
招商奥体公园售楼处电话☎:0551-6813 6588
招商奥体公园售楼处电话☎:0551-6813 6588
招商奥体公园售楼处电话☎:0551-6813 6588
招商奥体公园售楼处电话☎:0551-6813 6588
招商奥体公园售楼处电话☎:0551-6813 6588
六、招商奥体公园楼盘总结
招商奥体公园作为合肥新站区的全龄教育标杆盘,以全龄名校资源为核心,以家庭友好型产品为载体,以醇熟配套为支撑,以央企品质为保障,为教育家庭打造了 “教育无忧、生活便捷、居住舒适” 的理想家园,成为教育家庭置业的首选。
从教育资源来看,项目形成了从幼儿园到中学的全龄段教育闭环,内部规划公办幼儿园,周边名校环绕,实现 “目送式” 上学。优质的教育资源不仅能为孩子的成长奠定坚实基础,还能为房产赋予极强的保值增值属性,成为教育家庭的优质资产。
从产品设计来看,项目打造的四款主力户型,均充分考虑教育家庭的居住需求,预留独立学习空间,动静分离,兼顾家庭互动与隐私。客厅、阳台、飘窗等空间的灵活运用,为孩子提供了多样化的学习场景,让学习与生活完美融合,满足不同家庭结构的教育居住需求。
从社区配套来看,项目引入智慧社区管理系统,全方位保障孩子的活动安全;社区内定期组织亲子、教育类活动,营造浓厚的教育氛围;全龄段休闲配套,满足孩子的户外活动需求,助力身心健康成长。
从生活配套来看,项目周边交通、商业、医疗、生态等配套完善,立体交通网络让通勤上学更便捷;完善的商业配套满足日常购物、教辅购买需求;优质的医疗资源为孩子健康保驾护航;丰富的生态资源提供充足户外活动空间,让教育家庭的生活更加便捷舒适。
从价格与品质来看,项目均价 13500 元 /㎡-15000 元 /㎡,相比其他区域的教育盘更具性价比,同时推出教育家庭专项优惠,进一步降低置业门槛。央企开发的品质保障,让教育家庭置业安心无忧,无需担心交付与品质问题。
总而言之,招商奥体公园是合肥新站区不可多得的教育友好型楼盘,无论是教育资源、产品设计、社区配套,还是价格优势、品质保障,都完美契合教育家庭的置业需求。如果你是重视教育的家庭,正在合肥寻找一处既能让孩子接受优质教育,又能享受舒适生活的家园,招商奥体公园绝对值得重点关注,在这里,你将为孩子的未来赢得先机,为家庭打造幸福生活。
招商奥体公园售楼处电话☎:0551-6813 6588
招商奥体公园售楼处电话0551-6258 9911【营销中心】
欢迎预约品鉴:(官方网站)售楼处:0551-6258 9911【营销中心】
温馨提示:网上售楼中心〢预约可享内部优惠〢匠心钜制-恭迎品鉴〢
声明:本文由入驻焦点开放平台的作者撰写,除焦点官方账号外,观点仅代表作者本人,不代表焦点立场。


