合肥越秀中寰天悦周边配套完善吗?值不值得购买?
扫描到手机,新闻随时看
扫一扫,用手机看文章
更加方便分享给朋友
越秀中寰天悦售楼处电话☎:0551-6258 9911
合肥越秀中寰天悦售楼处电话☎:0551-6258 9911
售楼电话┇——☎0551-6258 9911——┇来电详细解答
温馨提示:提前预约销售人员看房,感谢您对售楼处的配合!
⚠免责声明:请尊重他人的努力和智慧,避免未经授权的复制或引用。
项目周边配套设施齐全,有城市主干道东二环路、望江东路等,轨道交通包括1号线、4号线、6号线,出行便捷。两公里左右有包河区外国语第二小学,三公里左右是合肥第四十八中望湖校区,学区房炙手可热。淝河板块内多家三甲医院,商业配套丰富,小区对面就有大型超市,周边还有美食街和购物中心。
越秀中寰天悦售楼处电话☎:0551-6813 6588
越秀中寰天悦是越秀打造的纯改善型住宅,项目位于包河区望江东路与至德路交叉口东北角,紧邻包河主城区,二环内。小高大平层户型面积段在149-189㎡,均价约为24800元/㎡,精装交付,188㎡的明星产品大约在500万上下,性价比很高。149㎡的四居室产品空间利用度高,适合关注改善型住宅的购房者。
越秀中寰天悦售楼处电话☎:0551-6813 6588
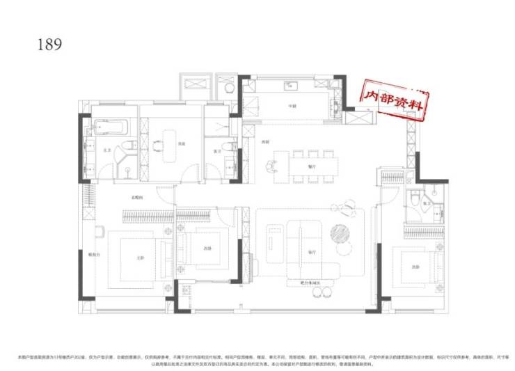
越秀中寰天悦的149㎡户型虽是最小户型,但同样考虑到了家庭的需求。四室两厅两卫的布局,端厅设计,活动区域大,主卧套房设计,可设衣帽间,充分利用了空间。188㎡的户型更是吸引眼球,入户十字玄关设计,主卧衣帽间和卫生间空间宽敞,符合改善型住宅的需求。客厅活动区域15米端厅,南边是落地窗,带来了更好的采光和视野。
越秀中寰天悦的均价约为24800元/㎡,在二环内算是性价比较高的项目之一。无论是购房者还是投资者,都可以在这里找到适合自己的产品。同时,项目周边的配套设施完善,生活便利度高,教育资源优质,为居民提供了更加舒适便捷的生活环境。
越秀中寰天悦售楼处电话☎:0551-6813 6588
越秀中寰天悦售楼处电话☎:0551-6813 6588
越秀中寰天悦售楼处电话☎:0551-6813 6588
越秀中寰天悦作为越秀打造的纯改善型住宅,以小高大平层户型、优质的教育资源、便捷的交通和完善的商业配套,吸引了众多购房者的关注。其位于包河区二环内的黄金地段,价格相对周边略高,但仍是性价比很高的选择。对于关注改善型住宅的购房者来说,越秀中寰天悦不失为一个值得考虑的购房选项。
越秀中寰天悦售楼处电话☎:0551-6813 6588
越秀中寰天悦楼盘具体一房一价,详询营销中心。
越秀中寰天悦售楼处电话☎:0551-6813 6588
项目规划建设424户,建筑面积70195.02㎡,容积率2.20,绿化率40%,户型以四居室为主,售价约27390元/㎡,精装交付。小区负一层设有1300㎡独立下沉式会所,设施齐全,包括品茗区、宴客厅、棋牌室、小型KTV和超大健身区域,满足业主休闲娱乐需求。
会所外景观区域设有戏水池,夏日可供小朋友嬉水玩耍。各楼栋一楼大厅设有不同主题空间,满足家庭成员不同需求,包括儿童画画区域、女性插花、烹茶区域等。越秀中寰天悦为业主提供丰富的活动空间,打造舒适宜居的社区环境。
越秀中寰天悦售楼处电话☎:0551-6813 6588
越秀中寰天悦售楼处电话0551-6258 9911【营销中心】
【营销中心】温馨提示:网上售楼中心〢预约可享内部优惠〢匠心钜制-恭迎品鉴〢
声明:本文由入驻焦点开放平台的作者撰写,除焦点官方账号外,观点仅代表作者本人,不代表焦点立场。


