绿城溪山禾苑最新发布-封关巨献-户型-价格 -地址-交房时间
扫描到手机,新闻随时看
扫一扫,用手机看文章
更加方便分享给朋友
绿城溪山禾苑楼盘电话号码:0551-68111601【营销中心】
欢迎来电咨询!可预约销售人员(来电尊享内部优惠活动)【2024房价特价信息丨底价优惠丨在售户型图丨项目介绍丨在售房源丨周边配套】
肥西主城位于合肥向西南发展的主轴之上,地处政务、经开、滨湖、高新四区交会的核芯区域,是与合肥西南区域联系最紧密的片区之一,亦是肥西未来发展的重点区域。历经多年发展,肥西主城周边早已形成完备业态模式,精深商业、教育、医疗、休闲等高配资源,汇集如此高质量资源,是其他板块无法比拟的存在。绿城溪山禾苑扼守主城芯,前拥肥西主城多年发展而成的齐全配套,后享诗意生态之境,以品质人居,定义理想生活。项目周边生态资源萦绕,拥揽潭冲河中央公园、古埂公园、丽景湖公园等总计占地千亩的绿意生态,赋予城市生活别样的灵感与悠闲。繁华所至,诗意萦绕。居于绿绿城溪山禾苑,于城芯之上,揽一城悠闲,享一方便捷,理想生活触手可及。城市核芯之中,一处繁华与静谧共享之地,更能凸显其珍贵。绿城溪山禾苑将地段、繁华与静谧全方位融合,以前瞻的眼光落位肥西主城,占据城市风口地段,于自然之境尽揽一城繁华生活,质造理想人居。
绿城溪山禾苑售楼处电话☎:0551-6813 6588
肥西主城位于合肥向西南发展的主轴上,地处政务、经开、滨湖、高新四区交会的核心区域,是与合肥西南区域联系最紧密的片区之一,也是肥西未来发展的重点区域。这里历经多年发展,周边已形成完备的业态模式,拥有精致商业、教育、医疗、休闲等高配资源。
近年来,肥西主城的交通发展也日益完善,地铁3号线南延线即将运行,多维交通联动构建起全新的肥西主城格局。凭借其悠久的发展历史和交通带来的经济辐射,肥西主城正展现其风采。
绿城溪山禾苑售楼处电话☎:0551-6813 6588
绿城溪山禾苑楼盘具体一房一价,详询营销中心。
绿城溪山禾苑售楼处电话☎:0551-6813 6588
纵览住宅发展的格局,每一座优秀人居,无一不是雄踞核心地段。先天禀赋的核心区域,会随着时间的流逝和土地的开发饱和更显稀贵,亦能催生出无限可能。随着肥西的发展规划,人口红利及政府政策扶持,许多板块有了自己的区域活力;然而无论城市如何发展,真正的城芯只有一个——肥西主城板块。于绿城溪山禾苑而言,落笔肥西主城,亦是对城市核心区位的审视。
绿城溪山禾苑售楼处电话☎:0551-6813 6588
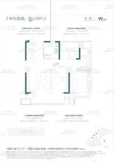
绿城溪山禾苑充分考虑居者需求,每个户型设计出创变的灵动空间,南向多开间格局,满足各种功能需求,预留多处收纳空间。运用LDKB一体化设计、奢阔横厅、三段式卫生间,选用质感建材,构筑时尚舒适之境。精工细作融入每个细节,理想生活自有答案。
绿城溪山禾苑立足主城正芯,塑造鲜活的城市美学封面,不妥协品质,建面约95-125㎡品质住宅,如约而至。选择绿城溪山禾苑,享受品质生活,尽显城市美学封面。
绿城溪山禾苑售楼处电话☎:0551-6813 6588
绿城溪山禾苑售楼处电话☎:0551-6813 6588
绿城溪山禾苑位于肥西主城板块,总规划14栋住宅,包括洋房、小高层和高层,户型建筑面积95-125㎡。地处滨湖、高新、经开、政务四大高能级区域交汇,区域实力雄厚,城市配套齐全。
绿城溪山禾苑售楼处电话☎:0551-6813 6588
绿城溪山禾苑
楼盘电话号码:0551-68111601【营销中心】
欢迎来电咨询!可预约销售人员(来电尊享内部优惠活动)【2024房价特价信息丨底价优惠丨在售户型图丨项目介绍丨在售房源丨周边配套】
声明:本文由入驻焦点开放平台的作者撰写,除焦点官方账号外,观点仅代表作者本人,不代表焦点立场。


