招商奥体公园-合肥招商奥体公园楼盘详情-合肥搜狐网
扫描到手机,新闻随时看
扫一扫,用手机看文章
更加方便分享给朋友
招商奥体公园售楼处电话0551-6258 9911【营销中心】
欢迎预约品鉴:(官方网站)售楼处:0551-6258 9911【营销中心】
温馨提示:网上售楼中心〢预约可享内部优惠〢匠心钜制-恭迎品鉴〢
四、招商奥体公园楼盘价格
在合肥楼市中,生态宜居楼盘往往因稀缺性而价格偏高,而招商奥体公园作为区域内少有的低密生态标杆楼盘,不仅拥有优越的生态环境和完善的生活配套,价格还极具竞争力,为购房者提供了高性价比的生态宜居选择。
主力户型价格区间
目前,招商奥体公园的销售均价为 13500 元 /㎡-15000 元 /㎡,根据户型、楼层、朝向的不同,价格有所差异,具体主力户型价格区间如下:
89㎡三室两厅一卫:总价约 120 万元 - 130 万元,单价约 13500 元 /㎡-14600 元 /㎡。低楼层(1-5 层)单价 13500 元 /㎡-13800 元 /㎡,总价 120 万元 - 121 万元;中楼层(6-15 层)单价 13800 元 /㎡-14300 元 /㎡,总价 123 万元 - 127 万元;高楼层(16-24 层)单价 14300 元 /㎡-14600 元 /㎡,总价 127 万元 - 130 万元。
105㎡三室两厅两卫:总价约 140 万元 - 155 万元,单价约 13300 元 /㎡-14800 元 /㎡。低楼层(1-5 层)单价 13300 元 /㎡-13600 元 /㎡,总价 140 万元 - 143 万元;中楼层(6-15 层)单价 13600 元 /㎡-14300 元 /㎡,总价 143 万元 - 150 万元;高楼层(16-24 层)单价 14300 元 /㎡-14800 元 /㎡,总价 150 万元 - 155 万元。
128㎡四室两厅两卫:总价约 170 万元 - 190 万元,单价约 13200 元 /㎡-14800 元 /㎡。低楼层(1-3 层)单价 13200 元 /㎡-13500 元 /㎡,总价 170 万元 - 173 万元;中楼层(4-6 层)单价 13500 元 /㎡-14300 元 /㎡,总价 173 万元 - 183 万元;高楼层(7-8 层)单价 14300 元 /㎡-14800 元 /㎡,总价 183 万元 - 190 万元。
143㎡四室两厅两卫:总价约 190 万元 - 215 万元,单价约 13300 元 /㎡-15000 元 /㎡。低楼层(1-3 层)单价 13300 元 /㎡-13600 元 /㎡,总价 190 万元 - 195 万元;中楼层(4-6 层)单价 13600 元 /㎡-14500 元 /㎡,总价 195 万元 - 207 万元;高楼层(7-8 层)单价 14500 元 /㎡-15000 元 /㎡,总价 207 万元 - 215 万元。
价格优势分析
相比周边同类型生态宜居楼盘,招商奥体公园的价格优势显著。周边同类低密生态楼盘均价普遍在 14500 元 /㎡-16000 元 /㎡,而项目均价仅 13500 元 /㎡-15000 元 /㎡,每平米价格低 1000 元 - 1500 元。以 128㎡改善户型为例,总价可节省约 13 万元 - 19 万元,性价比极高。
此外,项目还推出了多项购房优惠政策,进一步降低了购房门槛:
团购优惠:3 人及以上成团购房,可享受总房款 98 折优惠;
按时签约优惠:认购后 7 天内签订购房合同,可享受总房款 99 折优惠;
首付分期优惠:首付最低可分 3 期支付,首期仅需支付总房款的 10%,剩余首付在 6 个月内付清,无需支付利息;
老带新优惠:老业主介绍新客户成功购房,老业主可获得 2 万元家电礼包或物业费减免,新业主可享受总房款 99.5 折优惠。
这些优惠政策让购房者以更低的成本,就能享受到低密生态宜居生活,对于追求生态居住的购房者而言,极具吸引力。
生态价值与价格匹配度
招商奥体公园的价格与生态价值高度匹配,甚至呈现 “价值高于价格” 的特点。项目容积率仅 2.0.绿化率高达 40%,在城市核心区极为稀缺,这样的低密生态规划,意味着业主能享受更宽敞的公共空间、更清新的空气和更舒适的居住体验。
周边丰富的生态资源,如少荃湖公园、新站区生态公园等,为业主提供了充足的休闲娱乐空间,提升了居住的幸福感。同时,生态宜居属性让项目在二手房市场中更具竞争力,保值增值能力更强。相比周边高密度楼盘,招商奥体公园的生态价值优势明显,而价格却更具竞争力,让购房者以亲民的价格,就能拥有高品质的生态宜居生活。
招商奥体公园售楼处电话☎:0551-6813 6588
五、招商奥体公园楼盘项目亮点
招商奥体公园作为合肥新站区的交通枢纽标杆盘,凭借多项贴合通勤家庭需求的核心亮点,成为通勤家庭和投资客的置业首选,其核心亮点主要体现在以下几个方面。
四维立体交通,畅达全城无忧
项目拥有 “主干道 + 高架 + 地铁 + 公交” 的四维立体交通网络,紧邻东方大道与卧龙湖路两大城市主干道,无缝衔接阜阳北路高架、包公大道高架,自驾出行 20 分钟可达主城核心;距离地铁 3 号线仅 1.5 公里,规划中的地铁 9 号线在项目周边设站,公共交通出行便捷;多条公交线路环绕,满足短途出行需求。四维立体交通网络让业主彻底摆脱通勤困扰,实现 “快速上高架、步行达地铁、全城任我行”。
双地铁加持,升值潜力巨大
项目拥有 “现有地铁 3 号线 + 规划地铁 9 号线” 的双重地铁优势,是区域内少有的双地铁盘。地铁 3 号线已通车,为业主提供了便捷的公共交通选择;规划中的地铁 9 号线将进一步提升项目的交通能级,预计通车后将带动房价上涨 10%-15%。双地铁加持不仅提升了出行效率,更让项目的保值增值能力大幅增强,成为投资置业的优质选择。
主干道环绕,自驾出行高效
项目紧邻东方大道与卧龙湖路两大城市主干道,双向 6 车道,路况良好,无拥堵困扰。东方大道西接阜阳北路高架,东连包公大道高架,卧龙湖路北接北外环高速,南连新站政务核心区,形成了覆盖全城的自驾交通网络。主干道环绕让业主自驾出行高效便捷,无论是日常通勤、购物、就医,还是长途出行,都能快速抵达目的地。
交通与生活融合,便捷体验升级
项目将交通便捷性与生活实用性完美融合,社区内部规划了便捷的入户收纳空间,满足通勤装备收纳需求;户型设计注重采光通风和休闲空间打造,让业主通勤回家后能快速放松身心;周边完善的教育、商业、医疗、生态配套,借助便捷的交通,让业主的生活更加便捷舒适,实现 “交通与生活的双重便捷”。
央企品质保障,置业安心无忧
招商蛇口作为百年央企,拥有丰富的开发经验和雄厚的实力,为项目的顺利交付和品质保障提供了坚实基础。项目采用品牌建材,施工工艺严格把控,确保建筑品质;招商积余物业服务团队,提供全方位、高品质的物业服务,让业主居住安心。央企开发的稳定性和品质保障,让通勤家庭无需担心项目交付问题,能够专注于工作与生活,置业更放心。
高性价比优势,通勤家庭首选
相比周边同类型交通盘,招商奥体公园在品质、配套、交通等方面均具有优势,而价格却更具竞争力。项目均价 13500 元 /㎡-15000 元 /㎡,低于周边同类型楼盘,同时推出通勤家庭专项优惠,进一步降低了置业门槛。对于通勤家庭而言,低首付、低月供让置业梦想轻松实现,同时便捷的交通能节省大量通勤时间,提升生活幸福感,是通勤家庭置业的首选。
招商奥体公园售楼处电话☎:0551-6813 6588
三、招商奥体公园楼盘户型解析
户型是居住体验的核心,招商奥体公园深入调研合肥购房者的居住需求,打造了多款兼具实用性与舒适性的户型产品,从刚需小三室到改善大四室,每一款户型都经过精心设计,最大化提升空间利用率与居住舒适度。
首先来看 89㎡三室两厅一卫户型,这款户型是刚需人群的首选,整体布局方正,南北通透,没有浪费空间。入户处设置了独立玄关,既保证了室内隐私,又能作为收纳空间,放置鞋柜、衣帽架等,让居家生活更加整洁有序。客厅与南向阳台相连,阳台面宽达 3.6 米,进深 1.8 米,不仅提供了充足的采光和通风,还能作为休闲区、晾晒区或绿植区,满足多样化需求。
厨房采用 U 型设计,操作台面宽敞,洗切炒动线合理,预留了冰箱位置,同时靠近餐厅,用餐、上菜十分便捷。三个卧室分布合理,主卧面宽 3.2 米,配备南向飘窗,采光充足,空间宽敞;两个次卧面宽均达到 2.7 米,可作为儿童房、老人房或书房,满足不同家庭结构的需求。卫生间采用干湿分离设计,提高了使用效率,避免了潮湿问题,让居家生活更加舒适。
接下来是 105㎡三室两厅两卫户型,这款户型在 89㎡户型的基础上进行了升级,空间更加宽敞,舒适度更高。入户玄关更加开阔,可设置多功能收纳柜,满足家庭更多收纳需求。客厅面宽达到 3.8 米,与南向观景阳台相连,阳台进深增加至 2.0 米,视野更加开阔,采光通风效果更佳。
主卧采用套房设计,配备独立卫生间和衣帽间,保证了主人的隐私和居住舒适度,主卧南向飘窗不仅增加了采光,还能作为休闲阅读的小空间。两个次卧空间充足,均可放置 1.5 米宽的床和衣柜,其中一个次卧带有南向飘窗,采光良好。公共卫生间同样采用干湿分离设计,位于两个次卧之间,使用方便。厨房 U 型布局,操作空间充足,预留了双开门冰箱位置,满足大家庭的烹饪需求。
128㎡四室两厅两卫户型则是改善型人群的理想选择,户型方正通透,南北双阳台设计,通风采光效果极佳。入户玄关宽敞明亮,可设置入户花园或多功能收纳区,提升居家品质。客厅面宽 4.0 米,与南向景观阳台相连,阳台面宽 4.0 米,进深 2.0 米,可作为休闲娱乐区,摆放沙发、茶几,欣赏社区美景。
四个卧室分布合理,动静分离,避免了休息区与活动区的相互干扰。主卧套房设计,面宽 3.5 米,进深 4.8 米,配备独立卫生间、衣帽间和南向飘窗,空间宽敞舒适,彰显主人身份。两个南向次卧空间充足,采光良好,可作为儿童房或老人房;北向次卧可作为书房、茶室或健身房,满足多样化居住需求。
厨房采用 L 型设计,操作台面宽敞,动线合理,与餐厅相邻,用餐便捷。南北双阳台设计,南向阳台负责休闲观景,北向阳台作为生活阳台,用于晾晒、储物,功能分区明确,提高了空间利用率。
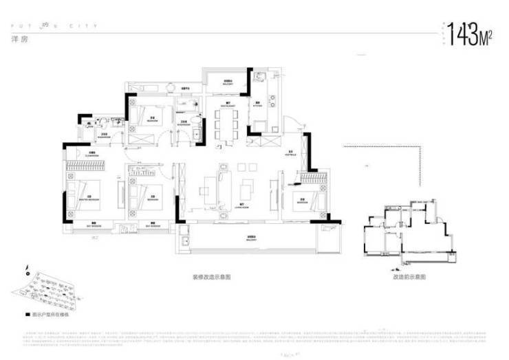
143㎡四室两厅两卫户型是项目的高端改善户型,空间开阔,布局合理,舒适度极高。入户玄关采用子母门设计,彰显尊贵感,玄关处可设置大型收纳柜和展示区,提升居家品质。客厅面宽 4.2 米,与南向超宽阳台相连,阳台面宽 6.8 米,进深 2.0 米,可打造为空中花园、休闲茶室或儿童游乐区,满足家庭多样化需求。
主卧套房设计,面宽 3.6 米,进深 5.0 米,配备独立卫生间、步入式衣帽间和南向全景飘窗,空间宽敞奢华,居住舒适度极高。三个次卧空间充足,其中两个南向次卧面宽均达到 3.0 米,采光良好,可作为儿童房或老人房;北向次卧可作为书房、影音室或健身房,满足不同家庭的居住需求。
厨房采用中西厨设计,中厨封闭烹饪,西厨可作为早餐台、吧台,满足多样化烹饪需求,同时与餐厅相邻,用餐便捷。南北通透的户型设计,让室内空气流通顺畅,每个房间都能享受充足的光线,打造全方位舒适的居住体验。
招商奥体公园售楼处电话☎:0551-6813 6588
招商奥体公园售楼处电话☎:0551-6813 6588
招商奥体公园售楼处电话☎:0551-6813 6588
招商奥体公园售楼处电话☎:0551-6813 6588
招商奥体公园售楼处电话☎:0551-6813 6588
六、招商奥体公园楼盘总结
招商奥体公园作为合肥新站区的运动健康标杆盘,以奥体 IP 为核心,以全龄运动配套为支撑,以运动融合型产品为载体,以醇熟配套为保障,为运动家庭打造了 “运动无忧、生活便捷、居住舒适” 的理想家园,成为运动爱好者和重视健康生活家庭的置业首选。
从运动资源来看,项目紧邻规划中的合肥新站奥体中心,内部规划全龄段运动配套,形成 “社区内 + 社区外” 的双重运动空间。专业的运动设施、多样化的运动场景,让业主在家门口就能享受高品质运动体验,满足不同年龄段、不同运动类型的需求。
从产品设计来看,项目打造的四款主力户型,均充分考虑运动家庭的居住需求,预留独立运动空间,布局方正通透,动静分离。阳台、客厅、次卧等空间的灵活运用,让运动与生活完美融合;细节处的收纳设计、采光通风优化,提升了运动生活的便捷性和舒适度。
从社区氛围来看,项目的业主多为运动爱好者和重视健康生活的家庭,邻里之间形成了良好的运动交流氛围。社区内定期组织运动主题活动,让业主在运动中相互激励、共同进步,打造了优质的运动圈层。
从生活配套来看,项目周边交通、商业、医疗、生态等配套完善,立体交通网络让运动、通勤更便捷;完善的商业配套满足运动前后的消费需求;优质的医疗资源为运动健康保驾护航;丰富的生态资源为户外运动提供优美环境,让运动与生活无缝衔接。
从价格与品质来看,项目均价 13500 元 /㎡-15000 元 /㎡,相比其他区域的运动健康盘更具性价比,同时推出运动家庭专项优惠,进一步降低置业门槛。央企开发的品质保障,让运动家庭置业安心无忧,无需担心交付与品质问题。
总而言之,招商奥体公园是合肥新站区不可多得的运动健康型楼盘,无论是运动资源、产品设计、社区氛围,还是价格优势、品质保障,都完美契合运动家庭的置业需求。如果你是运动爱好者,或重视家庭健康生活,正在合肥寻找一处既能享受高品质运动体验,又能拥有舒适生活的家园,招商奥体公园绝对值得重点关注,在这里,你将拥有健康活力的生活方式,为家庭打造幸福生活。
招商奥体公园售楼处电话☎:0551-6813 6588
二、招商奥体公园楼盘周边配套
一个楼盘的价值,不仅取决于项目本身的品质,更离不开周边完善的配套设施。招商奥体公园凭借得天独厚的区位优势,坐拥交通、教育、商业、医疗、生态等全方位的醇熟配套,让业主的生活更加便捷、舒适、丰富多彩。
交通配套:立体交通网络,畅达全城
招商奥体公园紧邻东方大道与卧龙湖路两大城市主干道,形成 “一横一纵” 的交通格局。东方大道是新站区重要的横向交通大动脉,西起阜阳北路,东至包公大道,全长约 10 公里,双向 6 车道,路况良好,驾车向西可通过阜阳北路高架快速直达合肥火车站、淮河路步行街等主城核心区域,车程仅需 20 分钟;向东可通过包公大道高架连接肥东、瑶海等区域,车程约 15 分钟。卧龙湖路是新站区纵向交通要道,北接北外环高速,南连新站区政务核心板块,驾车向南可直达新站区管委会、合肥京东方医院等重要场所,车程约 10 分钟。
公共交通方面,项目周边 500 米范围内设有卧龙湖路东方大道、东方大道卧龙湖路、新站寿春实验中学等 3 个公交站点,涵盖 301 路、302 路、686 路、803 路等多条公交线路。其中,301 路公交可直达地铁 3 号线幼儿师范站,车程约 15 分钟;302 路公交可直达地铁 1 号线合肥火车站,车程约 25 分钟;686 路公交可直达新站区核心商圈武里山天街,车程约 10 分钟。未来,随着合肥地铁 9 号线(规划中)的建成通车,项目将无缝衔接地铁网络,出行效率将进一步提升,轻松通达全城各个角落。
此外,项目距离合肥新桥国际机场约 40 公里,驾车通过北外环高速转机场高速,车程约 45 分钟;距离合肥火车站约 15 公里,驾车通过阜阳北路高架,车程约 20 分钟;距离合肥南站约 25 公里,驾车通过包河大道高架,车程约 30 分钟,无论是日常通勤还是长途出行,都十分便捷。
教育配套:全龄教育资源,护航成长
教育是每个家庭最关注的问题之一,招商奥体公园周边教育资源丰富,形成了从幼儿园到中学的全龄段教育体系,让孩子在家门口就能享受优质的教育资源,为未来的发展奠定坚实的基础。
项目内部规划有一所 12 班制公办幼儿园,占地面积约 4000㎡,建筑面积约 3000㎡,将配备专业的师资力量和完善的教学设施,预计 2025 年正式投入使用,让业主的孩子足不出社区就能接受优质的启蒙教育。
项目周边 1 公里范围内分布着多所优质中小学。其中,合肥新站寿春实验中学距离项目仅 500 米,该校是寿春教育集团旗下的优质民办中学,成立于 2015 年,拥有先进的教学理念和雄厚的师资力量,中考成绩在新站区名列前茅;合肥市庆平希望学校距离项目约 800 米,该校是一所九年一贯制公办学校,涵盖小学和初中,教学设施完善,师资力量充足,为学生提供全面的素质教育;合肥市第 168 中学东校区距离项目约 1.5 公里,该校是安徽省示范高中,成立于 2002 年,以优异的高考成绩闻名全省,每年都有大量学生考入全国重点高校,是众多家长和学生向往的优质高中。
此外,周边还有合肥市新站区关井小学、合肥市新站区三十头镇中心学校等多所公办小学,以及多所规划中的中小学,教育资源持续丰富,满足不同家庭对孩子教育的需求。
商业配套:繁华商业氛围,便利生活
商业配套的完善程度直接影响着业主的日常生活便利性,招商奥体公园周边商业氛围浓厚,无论是日常购物、餐饮美食,还是休闲娱乐,都能一站式满足。
项目自带约 2 万方社区商业,规划引入超市、便利店、生鲜卖场、品牌餐饮、美容美发、药店等多元化业态,预计 2026 年正式开业运营,业主下楼即可满足日常购物、餐饮、休闲等基本需求,无需远行。
项目距离新站区核心商圈 —— 武里山天街仅 3 公里,驾车车程约 10 分钟。武里山天街是新站区规模较大的商业综合体之一,总建筑面积约 10 万方,涵盖大型购物中心、连锁超市、品牌餐饮、电影院、KTV、儿童乐园等丰富业态,入驻了永辉超市、大地影院、肯德基、麦当劳等众多知名品牌,是周边居民休闲娱乐的首选之地。
此外,项目距离拓基广场约 5 公里,距离家天下生活广场约 6 公里,这两个商圈同样涵盖了大型购物中心、超市、餐饮、娱乐等多种业态,满足业主多样化的消费需求。周边还有多个在建的商业综合体,未来商业氛围将更加浓厚,生活便利性将进一步提升。
医疗配套:优质医疗资源,健康保障
健康是幸福生活的基础,招商奥体公园周边医疗资源丰富,为业主的健康提供全方位的保障。
项目距离安徽省第二人民医院(北区)约 4 公里,驾车车程约 15 分钟。安徽省第二人民医院是集医疗、教学、科研、预防、保健、康复为一体的三级甲等综合性医院,开放床位 2000 余张,拥有多个省级重点学科和特色专科,医疗设备先进,师资力量雄厚,能够为业主提供高水平的医疗服务。
项目距离合肥京东方医院约 3.5 公里,驾车车程约 12 分钟。合肥京东方医院是一家集医疗、教学、科研、预防、保健为一体的三级综合医院,由京东方科技集团投资建设,总建筑面积约 20 万方,开放床位 1000 张,重点打造心血管科、骨科、妇产科、儿科等特色科室,医疗技术先进,服务质量优质。
此外,项目周边还有合肥市新站区七里塘社区卫生服务中心、合肥新站综合开发试验区三十头社区卫生服务中心等多家社区卫生服务中心,距离项目均在 3 公里范围内,日常就医、健康体检十分便捷,为业主的健康保驾护航。
生态配套:优质生态资源,宜居环境
在快节奏的城市生活中,优质的生态环境成为人们追求的重要目标,招商奥体公园周边生态资源丰富,为业主提供了清新的空气和舒适的居住环境。
项目距离少荃湖公园约 3 公里,驾车车程约 10 分钟。少荃湖是合肥北部最大的城市湖泊,湖面面积约 1.5 平方公里,周边规划有少荃湖湿地公园、科创 CBD 景观带,总规划面积约 5 平方公里,是合肥市重点打造的生态公园之一。公园内设有休闲步道、观景平台、亲水平台、湿地景观等多个景点,是业主休闲散步、跑步健身、周末出游的绝佳去处。
项目距离新站区生态公园约 4 公里,驾车车程约 15 分钟。新站区生态公园是合肥市较早建设的城市公园之一,占地面积约 1000 亩,园内种植了大量的树木、花草,设有湖泊、假山、亭台楼阁等景观,空气清新,环境优美,是周边居民休闲放松的好去处。
此外,项目周边还有瑶海公园、李鸿章享堂等多个景点,距离项目均在 10 公里范围内,周末闲暇时光,业主可以带着家人朋友前往游玩,感受大自然的美景,放松身心。
招商奥体公园售楼处电话☎:0551-6813 6588
在合肥 “东拓北进” 的城市发展战略下,新站高新技术产业开发区已然成为城市发展的新引擎,而位于东方大道与卧龙湖路交口往南 200 米的招商奥体公园,正是这片价值高地中最受瞩目的楼盘之一。项目由招商蛇口匠心打造,作为招商局集团旗下的核心企业,招商蛇口深耕地产行业 40 余年,业务遍布全国 111 个城市及地区,开发了超 600 个精品项目,凭借稳健的经营风格、卓越的产品品质和优质的服务,赢得了市场和业主的广泛认可,连续多年位列中国房地产百强企业前列。
招商奥体公园总投资超 50 亿元,总占地面积约 180 亩,总建筑面积约 35.6 万平方米,其中住宅建筑面积约 25 万平方米,社区商业约 2 万平方米,幼儿园约 0.6 万平方米,其余为公共配套及地下车库。项目规划容积率仅 2.0.建筑密度 22%,绿化率高达 40%,是区域内稀缺的低密生态社区,旨在为业主打造 “推窗见绿、出门入园” 的宜居环境。
项目整体规划遵循 “以人为本、生态优先、动静分离” 的设计理念,将住宅、商业、教育、休闲等功能业态有机融合。住宅部分由 18 栋高层和 12 栋洋房组成,高层产品层数为 18-24 层,洋房产品层数为 6-8 层,总户数约 2200 户,车位配比 1:1.2.充分满足业主的停车需求。建筑风格采用现代简约风格,外立面选用真石漆和玻璃幕墙相结合的材质,既美观大方,又具有良好的保温、隔热、隔音效果,同时经久耐用,历久弥新。
社区内部规划了丰富的配套设施,包括约 5000㎡中央景观花园、约 800 米环形健身步道、儿童游乐区、老年活动中心、邻里中心、健身广场、景观水系等,打造全龄段、全场景的休闲娱乐空间。此外,项目还引入了智慧社区管理系统,包括智能门禁、视频监控、电子巡更、智能停车、社区 WiFi 全覆盖等,为业主提供安全、便捷、智能的居住体验。
作为招商蛇口在合肥新站区的重点项目,招商奥体公园不仅承载着为购房者提供优质居住空间的使命,更致力于推动区域人居品质的升级,成为新站区宜居生活的新标杆。
招商奥体公园售楼处电话☎:0551-6813 6588
招商奥体公园
招商奥体公园营销中心电话:0551-6258 9911【已认证】
招商奥体公园售楼处电话:0551-6258 9911【已认证】
招商奥体公园展示中心电话:0551-6258 9911【已认证】
声明:本文由入驻焦点开放平台的作者撰写,除焦点官方账号外,观点仅代表作者本人,不代表焦点立场。


