越秀中寰天悦楼盘户型图赏析
扫描到手机,新闻随时看
扫一扫,用手机看文章
更加方便分享给朋友
越秀中寰天悦楼盘电话号码:0551-6258 9911【营销中心】
欢迎来电咨询!可预约销售人员(来电尊享内部优惠活动)
【2024房价特价信息丨底价优惠丨在售户型图丨项目介绍丨在售房源丨周边配套】
项目负一层设有约1300㎡的独立下沉式会所,内设有多种活动区域,包括品茗区、宴客区、棋牌室、小型KTV等娱乐场所。会所还拥有超大健身区域,为居民提供私密的健身环境,满足不同人群的锻炼需求。会所外的景观区域则提供了休闲放松的空间,包括戏水池等设施,让居民在夏日炎炎时也能享受户外乐趣。
除了大会所外,各楼栋的一楼大厅也被打造成了主题空间,覆盖了儿童、女性、长者、运动、社交等功能,满足了家庭成员不同的需求。儿童主题区域包括画画区、积木区等,为小朋友提供学习和玩乐的场所;而女性主题区域则有插花、烹茶区域,为女主人们提供休闲放松的空间。整个项目不仅提供了高品质的住宅产品,还为居民提供了丰富多彩的社区活动空间,促进了居民之间的社交和互动。
越秀中寰天悦售楼处电话☎:0551-6813 6588
越秀中寰天悦作为越秀打造的纯改善型住宅,以小高大平层户型、优质的教育资源、便捷的交通和完善的商业配套,吸引了众多购房者的关注。其位于包河区二环内的黄金地段,价格相对周边略高,但仍是性价比很高的选择。对于关注改善型住宅的购房者来说,越秀中寰天悦不失为一个值得考虑的购房选项。
越秀中寰天悦售楼处电话☎:0551-6813 6588
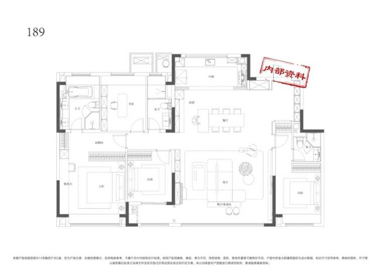
小高大平层的设计是越秀中寰天悦的特色之一,149㎡的户型虽然是最小户型,但也做了四室布局,空间利用度很高。主卧套房设计,可设衣帽间,满足购房者对私密性和舒适度的需求。而188㎡的户型更是项目的亮点,入户十字玄关设计,卧房布局在前面,主次卧都是套房设计,主卧衣帽间和卫生间空间很大,符合改善型住宅的基调。15米端厅,南边是落地窗,客厅活动区域设计合理,让居住者享受舒适的生活。
越秀中寰天悦售楼处电话☎:0551-6813 6588
越秀中寰天悦售楼处电话☎:0551-6813 6588
越秀中寰天悦售楼处电话☎:0551-6813 6588
越秀中寰天悦项目有优惠政策,想要具体了解的,可以电话咨询,或者到营销中心现场咨询。
越秀中寰天悦售楼处电话☎:0551-6813 6588
项目位于包河区望江东路与至德路交叉口东北角,紧邻包河主城区,二环内,享有淝河板块醇熟配套,周边交通路网完善。项目周边主要交通路包括东二环路、望江东路等,且有多条地铁线路经过,出行便捷。教育资源方面,项目周边有包括包河区外国语第二小学、合肥第四十八中望湖校区等优质学府,学区房备受追捧。医疗资源方面,项目周边有多家三甲医院,如市三院和市二院,为居民提供便利的医疗服务。此外,项目毗邻骆岗公园,享有中央公园科创CBD资源,周边还有多个公园和商业街,生活便利。
在商业配套方面,越秀中寰天悦的周边设施齐全。小区对面就有大型超市,满足居民的日常购物需求。同时,周边还有众多美食街和商业中心,如罍街、宁国路龙虾美食街、包河万象汇等,为居民提供了丰富的娱乐和消费选择。稍远一些还有包河万达和淮河路步行街,生活便捷而丰富。总的来说,越秀中寰天悦作为一处位于二环内的纯改善型住宅,不仅拥有优越的地理位置和完善的周边配套,更是一个性价比极高的购房选择。如果你正在寻找一处宜居的城市住宅,不妨多关注越秀中寰天悦,或许会有意想不到的惊喜等待着你。
越秀中寰天悦售楼处电话☎:0551-6813 6588
越秀中寰天悦项目位于包河区望江东路与至德路交叉口东北角,紧邻包河主城区,处于二环内,享有淝河板块醇熟的配套资源。项目周边交通便利,有城市主干道东二环路和望江东路,同时还有多条轨道交通线路在建或已经通车,包括1号线、4号线和6号线,出行十分方便。周边学校资源丰富,有包河区外国语第二小学和合肥第四十八中望湖校区,教育水平高,学区房备受瞩目。此外,项目周边还有多家三甲医院和公园,生活配套设施完善,让居民享受便利的生活。
越秀中寰天悦售楼处电话☎:0551-6813 6588
合肥(越秀中寰天悦)☎☎:0551-6258 9911【官方认证】
声明:本文由入驻焦点开放平台的作者撰写,除焦点官方账号外,观点仅代表作者本人,不代表焦点立场。


