跑道阳台、四开间朝南……栢悦湾约135㎡王炸户型圈粉合肥!
扫描到手机,新闻随时看
扫一扫,用手机看文章
更加方便分享给朋友
户型可以说是一个房子的灵魂所在,好的户型规划不仅仅令居住舒适,让生活达到“方便、舒适、体面”的境界,更能够提高空间、建筑面积的的利用率。

栢悦湾效果图
栢悦湾全新约135㎡户型隆重登场,把“爆品思维”发挥到了优质:全景大面宽、270°采光视界、南向多开间……以超乎寻常的空间,呈现安徽置地的用心。
超1:1面宽进深比 突破极限的宽屏比例
“你买的并不是房子,而是你未来的生活方式”。
对于不缺房子的肥西改善家庭而言,真正的改善,从来就不是单纯的让房子变大。改善的本质是通过空间的变化、功能的转化,让每一位家庭成员生活的更好,并且能够成全大户人家的尊崇性。

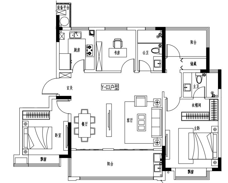
栢悦湾135㎡户型图
冬夏漫长,长时间受寒冷、梅雨影响的合肥,每个人都有一个浓厚的“朝南情结”。凭借独有的地形条件和自身的匠心坚持,栢悦湾约135㎡创造性做到了南向约13米面宽的宽屏户型,实现了面宽比进深略大的舒适格局。
而这种“横”着长的房子,往往拥有更好的采光和通风。你能看到的是:阳光在家中肆意游荡,细心照拂每处角落。
约6.4米瞰景大横厅 近36㎡无界空间尺度
优质的宽屏户型,已足够动人,超大的餐客通厅,则充分满足了改善阶层注重家庭团聚,喜爱亲友聚会的生活习性。近6.4米餐客大横厅,一体化设计通透宽敞,空间尺度超过想象。
足够大的空间,让孩子心仪的利波特系列-霍格茨沃城堡积木,可以尽情搭建;挚爱的悍马电动四轮越野车,也能尽情奔驰。而约135㎡产品客餐大横厅的点睛之笔,还在于创造性的无界设计。超奢阔的尺度,打破空间的限制,做到了与厨房以及书房的无界联动,为家人营造出更多的互动交流场景。

栢悦湾样板房实景
比如,厨房、书房和餐客厅的布局设计,让厨房和客餐厅的视觉界限随之消失。在这里,你可以享受做饭时阳光撒入、风景相伴的情景,一回头又能看到家人在餐桌旁等待的目光。此外,客餐大横厅还与书房在视线上实现连通,大人在客厅休息、聊天的时候,还可以随时看顾书房里孩子的学习状态。在这里,卸下居住的围墙,发现生活的真意。
6.4米跑道式大阳台 空中版景观庭院
135㎡户型改善,还在于另一个独特标签——跑道式大阳台。栢悦湾135㎡户型每一户都拥有一个6.4米大面宽的,跑道式双联大阳台,经大落地窗连通餐客大横厅,园景由此伸展入室,繁花绿树,满目光华。
超奢阔的尺度,简直就是一个空中版的院子,也相当家里的“第二个客厅”,宠物乐园、阳光健身房、空中小花园,也能随心布置,给生活更多的可能,它,可以是你招待朋友的风景茶室,可以是太太心爱的空中花园,也可以是孩子肆意玩乐的小天地……

栢悦湾样板房实景图
时光晴好的日子,你可以搬上一方茶几、两张藤椅,泡一壶好茶或咖啡,坐在洒满阳光的阳台上,一边听着悠悠流淌的轻音乐,一边欣赏城心公园与社区园林交映的无边美景。
主卧套房+观景次卧 超乎想象的华宅生活
安徽置地在产品上精益求精,不断提升空间尺度感,一直以来都令业内惊叹。栢悦湾约135㎡户型客餐大横厅足够霸气,却也没有挤压独自享受的卧房空间,这是栢悦湾对改善的特别要求。
朝南主卧套房,衣帽间收纳系统,安放女主人所有买买买的爱好,令这份舒适变得更加从容;独立卫生间保障您使用的洁净度与舒适感,舒心浪漫的沐浴体验;270°超大瞰景飘窗,为房间引入更多的阳光与清风,“眯缝着眼捧一本书晒太阳”的满足感,随时可享。

栢悦湾样板房实景
北向阳台+储藏间可改造为精致儿童房,全屋270°采光,舒阔格局,装得下成长的好奇,追风的乐趣,童梦世界,流淌爱的风景,灵动设计,缔造成长的纯净空间。四房设计还可为主人留下独立书房,也可根据自身喜好,用作卧室、健身房、瑜伽室、游戏室、钢琴房等多功能空间,满足改善客群的多种生活需求,为生活增添无限可能。

栢悦湾样板房实景
当然,栢悦湾约135㎡户型对于改善的颠覆,不仅体现在户型上,更体现在优质配套配套上,户式中央空调、内开内倾窗、空气源热水器一步配置到位,就足以让肥西一众楼盘惊羡!
得城市以土地,还城市以珍藏!栢悦湾「135㎡户型」新品一经推出便备受改善精英追捧,现正火爆定存中,性价比极高,静待争藏。

声明:本文由入驻焦点开放平台的作者撰写,除焦点官方账号外,观点仅代表作者本人,不代表焦点立场。


