招商奥体公园值得买吗?合肥新楼盘深度解析-合肥楼市搜狐网
扫描到手机,新闻随时看
扫一扫,用手机看文章
更加方便分享给朋友
招商奥体公园售楼处电话0551-6258 9911【营销中心】
欢迎预约品鉴:(官方网站)售楼处:0551-6258 9911【营销中心】
温馨提示:网上售楼中心〢预约可享内部优惠〢匠心钜制-恭迎品鉴〢
三、招商奥体公园楼盘户型解析
招商奥体公园深入洞察运动健康家庭的居住需求,打造了多款兼具运动属性、实用性和舒适性的户型产品,涵盖 89㎡、105㎡、128㎡、143㎡四个主力面积段,从刚需小三室到高端改善大四室,满足不同运动家庭的居住需求,让运动与生活完美融合。
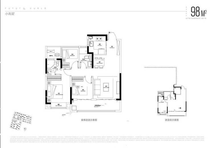
89㎡三室两厅一卫:刚需运动户,紧凑实用
89㎡三室两厅一卫户型是刚需运动家庭的首选,整体布局方正,南北通透,空间利用率高达 85%,同时预留了灵活的运动空间,让小户型也能享受运动健康生活。
入户处设置独立玄关,宽度 1.2 米,深度 1.5 米,可作为运动装备收纳区,放置运动鞋、运动包、瑜伽垫等物品,让居家环境整洁有序。玄关右侧设有挂钩和换鞋凳,方便业主运动回家后及时换鞋、挂衣物,细节设计贴心。
客厅位于户型中央,面宽 3.6 米,进深 4.2 米,空间宽敞明亮。客厅与南向阳台相连,阳台面宽 3.6 米,进深 1.8 米,采用全景落地窗设计,采光通风极佳。阳台可打造为小型运动区,放置瑜伽垫、跑步机等小型运动器材,业主可在阳光中进行晨练、瑜伽等运动,享受健康生活。
餐厅紧邻客厅和厨房,面积约 6㎡,可容纳 4-6 人同时用餐。餐厅与厨房之间设有滑动门,既保证了用餐环境的整洁,又能方便上菜,让业主运动后能及时补充能量。
厨房位于户型西侧,采用 U 型设计,操作台面长 3.5 米,洗切炒动线合理,预留双开门冰箱位置。厨房靠近餐厅,用餐、上菜便捷,适合家庭日常烹饪,为运动提供充足的营养支持。
三个卧室分布在户型东侧和北侧,动静分离,避免了运动区对休息区的干扰。主卧位于户型东侧,面宽 3.2 米,进深 3.8 米,带有南向飘窗,采光充足,空间宽敞,可放置 1.8 米宽的床和衣柜。两个次卧面宽均为 2.7 米,空间充足,其中一个次卧可作为运动休闲区,放置哑铃、弹力带等小型健身器材,或作为瑜伽、冥想空间;另一个次卧可作为儿童房或书房,满足家庭多样化需求。
卫生间位于户型北侧,面积约 4.5㎡,采用干湿分离设计,提高使用效率,避免潮湿问题。卫生间预留了洗衣机接口,方便清洗运动衣物,保持卫生整洁。
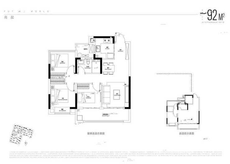
105㎡三室两厅两卫:改善运动户,舒适升级
105㎡三室两厅两卫户型是改善型运动家庭的优选,在 89㎡户型基础上升级,空间更加宽敞,舒适度更高,同时强化了运动属性,为业主提供更优越的运动与生活空间。
入户玄关更加开阔,宽度 1.5 米,深度 1.8 米,可设置多功能收纳柜,专门划分运动装备收纳区,放置跑步机、动感单车等大型运动器材,或收纳篮球、羽毛球拍等球类装备,让居家环境整洁有序。
客厅面宽提升至 3.8 米,进深 4.5 米,空间更加宽敞明亮。客厅与南向阳台相连,阳台面宽 3.8 米,进深 2.0 米,采用全景落地窗设计,视野更加开阔,采光通风效果更佳。阳台可打造为专属运动区,放置跑步机、椭圆机等运动器材,业主可在运动的同时欣赏社区景观,享受自然与运动的融合。
餐厅面积约 7㎡,可容纳 6-8 人同时用餐,与客厅形成通透的一体化空间,增强了空间的开阔感。餐厅窗户朝向社区景观,用餐时也能欣赏到自然美景,提升用餐体验,让运动后的能量补充更加愉悦。
厨房位于户型西侧,采用 U 型设计,操作台面长 3.8 米,空间更加宽敞,预留双开门冰箱位置,满足大家庭的烹饪需求。厨房与餐厅之间采用开放式设计(可设置滑动门),增强了空间的互动性,业主在烹饪时可与家人互动交流,分享运动心得。
三个卧室分布合理,动静分离。主卧采用套房设计,面宽 3.3 米,进深 4.8 米,带有南向飘窗,采光充足,空间宽敞。主卧配备独立卫生间和衣帽间,保障了业主的隐私和舒适度,让业主在运动后能享受舒适的卫浴体验。两个次卧面宽均为 2.8 米,空间充足,采光良好,其中一个次卧可作为运动康复区或瑜伽室,放置瑜伽垫、按摩椅等,满足运动后的放松需求;另一个次卧可作为儿童房或老人房,满足家庭多样化需求。
公共卫生间位于两个次卧之间,面积约 5㎡,采用干湿分离设计,使用方便,配备淋浴和盆浴双重设施,方便运动后清洁放松。
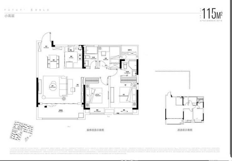
128㎡四室两厅两卫:改善运动户,阔绰舒适
128㎡四室两厅两卫户型是多孩运动家庭或运动爱好者的理想选择,户型方正通透,南北双阳台设计,空间阔绰,既能满足家庭成员的居住需求,又能提供充足的运动空间,让运动成为家庭生活的重要组成部分。
入户玄关宽敞明亮,宽度 1.8 米,深度 2.0 米,可设置入户花园或大型运动收纳柜,收纳各类运动装备,包括自行车、滑板、球类器材等,让居家环境整洁有序。玄关处摆放绿植,营造自然清新的氛围,让运动回家后能瞬间放松身心。
客厅面宽 4.0 米,进深 4.8 米,空间宽敞开阔。客厅与南向景观阳台相连,阳台面宽 4.0 米,进深 2.0 米,采用全景落地窗设计,采光通风极佳。阳台可打造为家庭运动区,放置乒乓球桌、羽毛球架等小型球类运动设施,或设置跑步机、划船机等健身器材,全家一起运动,增进感情。
北向生活阳台与餐厅相连,面宽 3.0 米,进深 1.8 米,可作为运动辅助区,放置运动饮料、能量食品储备柜,或作为运动衣物晾晒区,功能分区明确,提高空间利用率。
厨房位于户型西侧,采用 L 型设计,操作台面长 4.0 米,空间宽敞,动线合理。厨房与餐厅相邻,用餐、上菜便捷,厨房预留了榨汁机、烤箱等家电位置,方便制作运动营养餐,为运动提供充足能量支持。
四个卧室分布合理,动静分离,避免了运动区对休息区的干扰。主卧采用套房设计,面宽 3.5 米,进深 5.0 米,带有南向全景飘窗,采光充足,空间宽敞奢华。主卧配备独立卫生间和步入式衣帽间,独立卫生间面积约 5㎡,采用干湿分离设计,配备浴缸和花洒,让业主在运动后能享受舒适的泡澡体验,缓解疲劳。
两个南向次卧面宽均为 3.0 米,采光良好,可作为孩子的卧室和运动休闲区,每个房间都能放置小型运动器材,让孩子在房间内就能进行简单运动;北向次卧可作为专业健身室,放置哑铃架、卧推架等专业健身器材,满足运动爱好者的专业需求。
公共卫生间位于户型北侧,面积约 5.5㎡,采用干湿分离设计,配备高端洁具,满足家庭成员的日常使用需求,尤其适合运动后多人同时清洁。
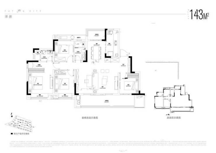
143㎡四室两厅两卫:高端运动户,奢华尊享
143㎡四室两厅两卫户型是高端运动家庭或运动达人的终极之选,空间开阔,布局奢华,品质感十足,同时为运动提供了全方位的空间支持,让运动与奢华生活完美融合。
入户采用子母门设计,玄关宽度 2.0 米,深度 2.2 米,大理石地面搭配吊顶设计,彰显尊贵感。玄关处设置大型运动收纳柜和展示区,收纳各类高端运动装备,展示运动奖杯、奖牌,打造专属的运动荣誉空间。
客厅面宽 4.2 米,进深 5.0 米,空间宽敞开阔,气势十足。客厅与南向 6.8 米宽超宽阳台相连,阳台进深 2.0 米,采用全景落地窗设计,视野开阔,采光通风极佳。阳台可打造为多功能运动休闲区,一侧设置专业健身器材区,放置跑步机、椭圆机、哑铃架等;另一侧设置休闲区,摆放休闲沙发、茶几,运动后可在此休息放松,欣赏社区景观。
餐厅面积约 9㎡,可容纳 10-12 人同时用餐,与客厅形成通透的一体化空间,增强了空间的开阔感。餐厅与北向生活阳台相连,北向阳台可作为运动营养补给区,放置冰箱、储物柜,储存运动饮料、蛋白粉、新鲜果蔬等,方便及时补充能量。
厨房采用中西厨设计,中厨封闭烹饪,避免油烟扩散;西厨可作为运动营养餐制作区,设置早餐台、榨汁机、烤箱等,满足多样化的营养烹饪需求。中厨操作台面长 4.5 米,空间宽敞,动线合理,预留双开门冰箱位置和各类家电接口,为运动营养餐制作提供充足空间。
四个卧室分布合理,动静分离,私密性强。主卧豪华套房设计,面宽 3.6 米,进深 5.2 米,带有南向全景飘窗,采光充足,空间宽敞奢华。主卧配备独立卫生间、步入式衣帽间和小型休闲区,独立卫生间面积约 6㎡,采用干湿分离设计,配备高端卫浴设施和桑拿房,让业主在运动后能享受专业的放松体验,缓解肌肉疲劳。
两个南向次卧面宽均为 3.2 米,空间充足,采光良好,可作为孩子的卧室和运动学习区,每个房间都能满足休息、学习和简单运动的需求;北向次卧可作为专业运动工作室,放置运动康复设备、瑜伽器材等,或作为运动视频剪辑、直播空间,满足运动达人的多样化需求。
公共卫生间位于户型北侧,面积约 6㎡,采用干湿分离设计,配备高端洁具和烘干设备,方便运动后快速清洁、烘干衣物,提升生活便利性。
招商奥体公园售楼处电话☎:0551-6813 6588
招商奥体公园售楼处电话☎:0551-6813 6588
招商奥体公园售楼处电话☎:0551-6813 6588
招商奥体公园售楼处电话☎:0551-6813 6588
招商奥体公园售楼处电话☎:0551-6813 6588
五、招商奥体公园楼盘项目亮点
招商奥体公园之所以成为合肥新站区的投资热门楼盘,核心在于其具备多项突出亮点,这些亮点共同构成了项目的核心投资价值,使其在市场中脱颖而出。
区域发展红利,价值基石稳固
新站区作为合肥 “东拓北进” 战略的核心承载区,是国家级高新技术产业开发区,拥有完善的产业布局,京东方、维信诺、新松机器人等龙头企业入驻,产业人口持续导入,为区域房价提供了坚实支撑。
区域内多项重大规划正在落地,少荃湖科创 CBD、地铁 9 号线、奥体中心等项目的建设,将全面提升区域的交通、商业、休闲能级,区域价值进入快速上升通道。招商奥体公园作为区域核心位置的标杆楼盘,将直接受益于区域发展红利,价值增长空间清晰可见。
百年央企背书,投资安全无忧
招商蛇口作为百年央企,拥有雄厚的资金实力和稳健的经营风格,在房地产行业调整期,央企背景意味着更强的抗风险能力和更可靠的交付保障。项目自开工以来,工程进度稳步推进,已实现多栋楼封顶,交付无忧。
央企开发的楼盘在二手房市场中具有更高的认可度和流通性,品牌溢价效应显著。相比中小开发商楼盘,招商奥体公园的房产在未来出售时,不仅更容易成交,还能获得更高的售价,为投资客提供了安全的投资保障。
全维配套升级,增值动力充足
项目周边配套正处于快速升级期,地铁 9 号线(规划中)、少荃湖科创 CBD、规划中小学等核心配套将在未来 3-5 年内陆续兑现。每一项配套的落地,都将直接推动房产价值上涨。
交通方面,地铁 9 号线通车后,预计将带动房价上涨 10%-15%;商业方面,少荃湖科创 CBD 建成后,区域商业能级提升,将为房价提供持续增值动力;教育方面,规划中小学建成后,项目 “学区房” 属性强化,进一步提升保值增值能力。全维配套的持续升级,为项目提供了充足的增值动力。
低密生态稀缺,居住价值突出
在城市核心区,低密生态社区已成为稀缺资源。招商奥体公园容积率仅 2.0.绿化率高达 40%,是区域内少有的低密生态社区。低密规划意味着更少的居住人口、更宽敞的公共空间和更好的居住舒适度。
随着城市居民对居住品质要求的提升,低密生态房产的市场需求持续增长,其稀缺性将转化为价值优势。相比周边容积率 2.5 以上的高密度楼盘,招商奥体公园的居住价值更突出,在二手房市场中更具竞争力,升值潜力更大。
户型流通性强,投资回报稳定
项目打造的四款主力户型,涵盖刚需、改善全需求,每款户型都具备布局方正、南北通透、空间利用率高的特点,在二手房市场中流通性极强。
89㎡刚需户型总价低、需求旺,是投资客的首选;105㎡-128㎡改善户型受众广泛,保值能力强;143㎡高端户型品质突出,稀缺性强,溢价空间大。多样化的户型选择,满足了不同投资客的需求,同时强流通性保证了投资客能够在需要时快速变现,获得稳定的投资回报。
高性价比优势,投资门槛亲民
相比周边同类型楼盘,招商奥体公园在品质、配套、品牌等方面均具有优势,而价格却更具竞争力。项目均价 13500 元 /㎡-15000 元 /㎡,低于周边同类型央企楼盘,同时推出多项购房优惠政策,进一步降低了投资门槛。
对于投资客而言,较低的入手价格意味着更低的投资风险和更高的投资回报率。以 89㎡户型为例,首付最低仅 24 万元,月供约 4500 元,投资门槛亲民,适合各类投资客入手。高性价比优势让项目在投资市场中极具竞争力,成为合肥新站区投资置业的首选。
招商奥体公园售楼处电话☎:0551-6813 6588
二、招商奥体公园楼盘周边配套
一个楼盘的价值,不仅取决于项目本身的品质,更离不开周边完善的配套设施。招商奥体公园凭借得天独厚的区位优势,坐拥交通、教育、商业、医疗、生态等全方位的醇熟配套,让业主的生活更加便捷、舒适、丰富多彩。
交通配套:立体交通网络,畅达全城
招商奥体公园紧邻东方大道与卧龙湖路两大城市主干道,形成 “一横一纵” 的交通格局。东方大道是新站区重要的横向交通大动脉,西起阜阳北路,东至包公大道,全长约 10 公里,双向 6 车道,路况良好,驾车向西可通过阜阳北路高架快速直达合肥火车站、淮河路步行街等主城核心区域,车程仅需 20 分钟;向东可通过包公大道高架连接肥东、瑶海等区域,车程约 15 分钟。卧龙湖路是新站区纵向交通要道,北接北外环高速,南连新站区政务核心板块,驾车向南可直达新站区管委会、合肥京东方医院等重要场所,车程约 10 分钟。
公共交通方面,项目周边 500 米范围内设有卧龙湖路东方大道、东方大道卧龙湖路、新站寿春实验中学等 3 个公交站点,涵盖 301 路、302 路、686 路、803 路等多条公交线路。其中,301 路公交可直达地铁 3 号线幼儿师范站,车程约 15 分钟;302 路公交可直达地铁 1 号线合肥火车站,车程约 25 分钟;686 路公交可直达新站区核心商圈武里山天街,车程约 10 分钟。未来,随着合肥地铁 9 号线(规划中)的建成通车,项目将无缝衔接地铁网络,出行效率将进一步提升,轻松通达全城各个角落。
此外,项目距离合肥新桥国际机场约 40 公里,驾车通过北外环高速转机场高速,车程约 45 分钟;距离合肥火车站约 15 公里,驾车通过阜阳北路高架,车程约 20 分钟;距离合肥南站约 25 公里,驾车通过包河大道高架,车程约 30 分钟,无论是日常通勤还是长途出行,都十分便捷。
教育配套:全龄教育资源,护航成长
教育是每个家庭最关注的问题之一,招商奥体公园周边教育资源丰富,形成了从幼儿园到中学的全龄段教育体系,让孩子在家门口就能享受优质的教育资源,为未来的发展奠定坚实的基础。
项目内部规划有一所 12 班制公办幼儿园,占地面积约 4000㎡,建筑面积约 3000㎡,将配备专业的师资力量和完善的教学设施,预计 2025 年正式投入使用,让业主的孩子足不出社区就能接受优质的启蒙教育。
项目周边 1 公里范围内分布着多所优质中小学。其中,合肥新站寿春实验中学距离项目仅 500 米,该校是寿春教育集团旗下的优质民办中学,成立于 2015 年,拥有先进的教学理念和雄厚的师资力量,中考成绩在新站区名列前茅;合肥市庆平希望学校距离项目约 800 米,该校是一所九年一贯制公办学校,涵盖小学和初中,教学设施完善,师资力量充足,为学生提供全面的素质教育;合肥市第 168 中学东校区距离项目约 1.5 公里,该校是安徽省示范高中,成立于 2002 年,以优异的高考成绩闻名全省,每年都有大量学生考入全国重点高校,是众多家长和学生向往的优质高中。
此外,周边还有合肥市新站区关井小学、合肥市新站区三十头镇中心学校等多所公办小学,以及多所规划中的中小学,教育资源持续丰富,满足不同家庭对孩子教育的需求。
商业配套:繁华商业氛围,便利生活
商业配套的完善程度直接影响着业主的日常生活便利性,招商奥体公园周边商业氛围浓厚,无论是日常购物、餐饮美食,还是休闲娱乐,都能一站式满足。
项目自带约 2 万方社区商业,规划引入超市、便利店、生鲜卖场、品牌餐饮、美容美发、药店等多元化业态,预计 2026 年正式开业运营,业主下楼即可满足日常购物、餐饮、休闲等基本需求,无需远行。
项目距离新站区核心商圈 —— 武里山天街仅 3 公里,驾车车程约 10 分钟。武里山天街是新站区规模较大的商业综合体之一,总建筑面积约 10 万方,涵盖大型购物中心、连锁超市、品牌餐饮、电影院、KTV、儿童乐园等丰富业态,入驻了永辉超市、大地影院、肯德基、麦当劳等众多知名品牌,是周边居民休闲娱乐的首选之地。
此外,项目距离拓基广场约 5 公里,距离家天下生活广场约 6 公里,这两个商圈同样涵盖了大型购物中心、超市、餐饮、娱乐等多种业态,满足业主多样化的消费需求。周边还有多个在建的商业综合体,未来商业氛围将更加浓厚,生活便利性将进一步提升。
医疗配套:优质医疗资源,健康保障
健康是幸福生活的基础,招商奥体公园周边医疗资源丰富,为业主的健康提供全方位的保障。
项目距离安徽省第二人民医院(北区)约 4 公里,驾车车程约 15 分钟。安徽省第二人民医院是集医疗、教学、科研、预防、保健、康复为一体的三级甲等综合性医院,开放床位 2000 余张,拥有多个省级重点学科和特色专科,医疗设备先进,师资力量雄厚,能够为业主提供高水平的医疗服务。
项目距离合肥京东方医院约 3.5 公里,驾车车程约 12 分钟。合肥京东方医院是一家集医疗、教学、科研、预防、保健为一体的三级综合医院,由京东方科技集团投资建设,总建筑面积约 20 万方,开放床位 1000 张,重点打造心血管科、骨科、妇产科、儿科等特色科室,医疗技术先进,服务质量优质。
此外,项目周边还有合肥市新站区七里塘社区卫生服务中心、合肥新站综合开发试验区三十头社区卫生服务中心等多家社区卫生服务中心,距离项目均在 3 公里范围内,日常就医、健康体检十分便捷,为业主的健康保驾护航。
生态配套:优质生态资源,宜居环境
在快节奏的城市生活中,优质的生态环境成为人们追求的重要目标,招商奥体公园周边生态资源丰富,为业主提供了清新的空气和舒适的居住环境。
项目距离少荃湖公园约 3 公里,驾车车程约 10 分钟。少荃湖是合肥北部最大的城市湖泊,湖面面积约 1.5 平方公里,周边规划有少荃湖湿地公园、科创 CBD 景观带,总规划面积约 5 平方公里,是合肥市重点打造的生态公园之一。公园内设有休闲步道、观景平台、亲水平台、湿地景观等多个景点,是业主休闲散步、跑步健身、周末出游的绝佳去处。
项目距离新站区生态公园约 4 公里,驾车车程约 15 分钟。新站区生态公园是合肥市较早建设的城市公园之一,占地面积约 1000 亩,园内种植了大量的树木、花草,设有湖泊、假山、亭台楼阁等景观,空气清新,环境优美,是周边居民休闲放松的好去处。
此外,项目周边还有瑶海公园、李鸿章享堂等多个景点,距离项目均在 10 公里范围内,周末闲暇时光,业主可以带着家人朋友前往游玩,感受大自然的美景,放松身心。
招商奥体公园售楼处电话☎:0551-6813 6588
四、招商奥体公园楼盘价格
在合肥房价持续上涨的背景下,新站区凭借优越的区位优势和较高的性价比,成为众多购房者的首选区域,而招商奥体公园作为新站区的标杆楼盘,其价格更是极具竞争力,为购房者提供了高性价比的置业选择。
目前,招商奥体公园的销售均价为 13500 元 /㎡-15000 元 /㎡,根据户型、楼层、朝向的不同,价格有所差异。其中,89㎡刚需小三室的总价约 120 万元 - 130 万元,首付比例最低可至 20%,首付仅需 24 万元 - 26 万元,月供约 4500 元 - 5000 元,对于刚需人群而言,压力较小,轻松实现置业梦想。
105㎡三室两厅两卫户型的总价约 140 万元 - 155 万元,首付最低 28 万元 - 31 万元,月供约 5300 元 - 5900 元,适合改善型刚需人群,在保证居住舒适度的同时,不会带来过大的经济压力。
128㎡四室两厅两卫户型的总价约 170 万元 - 190 万元,首付最低 34 万元 - 38 万元,月供约 6400 元 - 7200 元,适合家庭成员较多的改善型人群,宽敞的空间的满足家庭长期居住需求。
143㎡高端改善户型的总价约 190 万元 - 215 万元,首付最低 38 万元 - 43 万元,月供约 7200 元 - 8100 元,针对追求高品质生活的改善型人群,提供奢华舒适的居住体验。
相比周边同类型楼盘,招商奥体公园的价格具有明显优势。周边同类楼盘的销售均价普遍在 14500 元 /㎡-16000 元 /㎡,而招商奥体公园凭借央企开发实力和完善的配套规划,价格更低,性价比更高。此外,项目还推出了多项购房优惠政策,如团购优惠、按时签约优惠、首付分期优惠等,进一步降低了购房门槛。
对于购房者而言,招商奥体公园不仅价格亲民,更具有较高的升值潜力。随着新站区的不断发展,交通、教育、商业等配套持续升级,区域价值不断提升,而招商奥体公园作为区域内的标杆楼盘,未来升值空间巨大。无论是自住还是投资,都是极具性价比的选择。
招商奥体公园售楼处电话☎:0551-6813 6588
在合肥 “东拓北进” 的城市发展战略下,新站高新技术产业开发区已然成为城市发展的新引擎,而位于东方大道与卧龙湖路交口往南 200 米的招商奥体公园,正是这片价值高地中最受瞩目的楼盘之一。项目由招商蛇口匠心打造,作为招商局集团旗下的核心企业,招商蛇口深耕地产行业 40 余年,业务遍布全国 111 个城市及地区,开发了超 600 个精品项目,凭借稳健的经营风格、卓越的产品品质和优质的服务,赢得了市场和业主的广泛认可,连续多年位列中国房地产百强企业前列。
招商奥体公园总投资超 50 亿元,总占地面积约 180 亩,总建筑面积约 35.6 万平方米,其中住宅建筑面积约 25 万平方米,社区商业约 2 万平方米,幼儿园约 0.6 万平方米,其余为公共配套及地下车库。项目规划容积率仅 2.0.建筑密度 22%,绿化率高达 40%,是区域内稀缺的低密生态社区,旨在为业主打造 “推窗见绿、出门入园” 的宜居环境。
项目整体规划遵循 “以人为本、生态优先、动静分离” 的设计理念,将住宅、商业、教育、休闲等功能业态有机融合。住宅部分由 18 栋高层和 12 栋洋房组成,高层产品层数为 18-24 层,洋房产品层数为 6-8 层,总户数约 2200 户,车位配比 1:1.2.充分满足业主的停车需求。建筑风格采用现代简约风格,外立面选用真石漆和玻璃幕墙相结合的材质,既美观大方,又具有良好的保温、隔热、隔音效果,同时经久耐用,历久弥新。
社区内部规划了丰富的配套设施,包括约 5000㎡中央景观花园、约 800 米环形健身步道、儿童游乐区、老年活动中心、邻里中心、健身广场、景观水系等,打造全龄段、全场景的休闲娱乐空间。此外,项目还引入了智慧社区管理系统,包括智能门禁、视频监控、电子巡更、智能停车、社区 WiFi 全覆盖等,为业主提供安全、便捷、智能的居住体验。
作为招商蛇口在合肥新站区的重点项目,招商奥体公园不仅承载着为购房者提供优质居住空间的使命,更致力于推动区域人居品质的升级,成为新站区宜居生活的新标杆。
招商奥体公园售楼处电话☎:0551-6813 6588
六、招商奥体公园楼盘总结
招商奥体公园作为合肥新站区的交通枢纽标杆盘,以四维立体交通为核心,以央企品质为保障,以完善配套为支撑,以优质户型为载体,为通勤家庭打造了 “畅达全城、便捷舒适、安心无忧” 的理想家园,成为通勤家庭和投资客的置业首选。
从交通优势来看,项目拥有 “主干道 + 高架 + 地铁 + 公交” 的四维立体交通网络,双高架让自驾出行高效便捷,双地铁(现有 + 规划)让公共交通升级,多条公交线路满足短途出行需求。便捷的交通网络让业主彻底摆脱通勤困扰,20 分钟可达主城核心,40 分钟畅达全城,节省了大量通勤时间,提升了生活幸福感。
从周边配套来看,项目周边教育、商业、医疗、生态等配套完善,借助便捷的交通,业主的生活更加便捷舒适。全龄段优质教育资源让孩子上学无忧;完善的商业配套满足日常购物、休闲娱乐需求;优质的医疗资源为健康保驾护航;丰富的生态资源让休闲出游更轻松。交通与配套的完美结合,让业主实现 “便捷出行 + 品质生活” 的双重满足。
从户型产品来看,项目打造的四款主力户型,均充分考虑通勤家庭的居住需求,布局方正通透,空间利用率高,细节处贴合通勤需求。入户收纳空间、休闲区域规划、便捷的卫浴设计等,让业主通勤回家后能快速放松身心,享受舒适生活。多样化的户型选择,满足了不同通勤家庭的居住需求,无论是刚需还是改善,都能找到理想的户型。
从价格与品质来看,项目均价 13500 元 /㎡-1500 元 /㎡,相比其他区域的交通枢纽盘更具性价比,同时推出通勤家庭专项优惠,进一步降低了置业门槛。央企开发的品质保障,让项目在建筑材料、施工工艺、物业服务等方面都达到了高标准,确保业主居住安心。交通枢纽盘的保值增值属性,让项目未来升值潜力巨大,无论是自住还是投资,都能为家庭资产提供坚实保障。
从项目亮点来看,四维立体交通、双地铁加持、主干道环绕、交通与生活融合、央企品质保障、高性价比等核心亮点,让项目在合肥楼市中脱颖而出。对于通勤家庭而言,便捷的交通能节省大量时间,提升生活幸福感;对于投资客而言,交通枢纽盘的保值增值属性能带来可观的回报。
总而言之,招商奥体公园是合肥新站区不可多得的交通枢纽优质楼盘,无论是交通优势、周边配套、户型设计,还是价格优势、品质保障,都完美契合通勤家庭的置业需求。如果你是通勤家庭,或正在寻找高性价比的交通枢纽盘,招商奥体公园绝对值得重点关注,在这里,你将享受 “畅达全城” 的便捷生活,实现品质置业的梦想。
招商奥体公园售楼处电话☎:0551-6813 6588
招商奥体公园楼盘电话号码:0551-6258 9911【营销中心】
欢迎来电咨询!可预约销售人员(来电尊享内部优惠活动)
【2024房价特价信息丨详细解答丨在售户型图丨项目介绍丨在售房源丨周边配套】
声明:本文由入驻焦点开放平台的作者撰写,除焦点官方账号外,观点仅代表作者本人,不代表焦点立场。


