官网新房聚焦@招商奥体公园官方售楼处发布:招商奥体公园官方诚邀您!
扫描到手机,新闻随时看
扫一扫,用手机看文章
更加方便分享给朋友
合肥(招商奥体公园)☎☎:0551-6258 9911【官方认证】
2021年,招商选择在合肥新站区少荃湖板块布局,打造了合肥首个百万方奥体TOD体育综合体。项目位于东方大道与卧龙湖路交叉口,包括多个业态,如少荃体育中心、长空公园、花园里商街、奥体上城等,为居民提供了丰富多彩的生活方式。
招商奥体公园售楼处电话☎:0551-6813 6588
招商奥体公园项目位于新站少荃湖板块,具体地址为卧龙湖路与东方大道交叉路口西南侧。项目周边有多条城市主干道穿行而过,如东方大道、文忠路、淮海大道、包公大道等,构建了立体TOD交通网络。项目紧邻地铁4号线始发站东方大道站,地铁3号线和规划中的9号线也穿行于项目周边区域,出行便捷。项目内规划有约3万方活力荟商业街区,满足居民日常购物、餐饮、娱乐等多元化需求。此外,附近还有多所学校和医院,以及多个公园供居民休闲娱乐。
招商奥体公园售楼处电话☎:0551-6813 6588
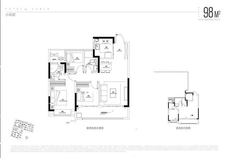
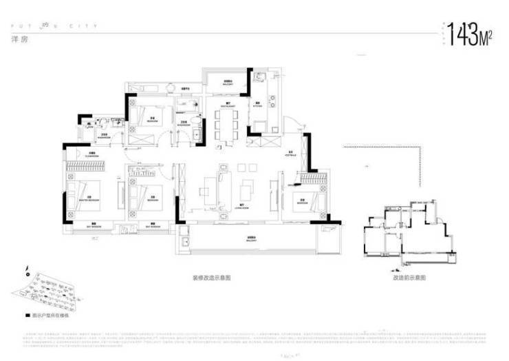
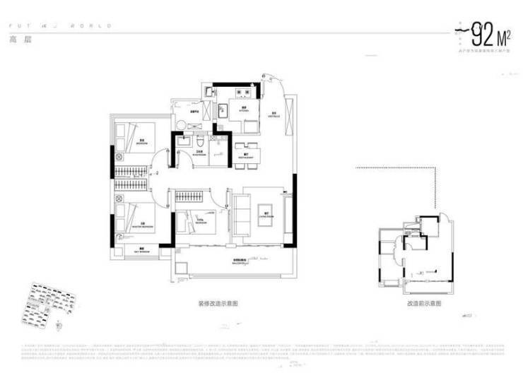
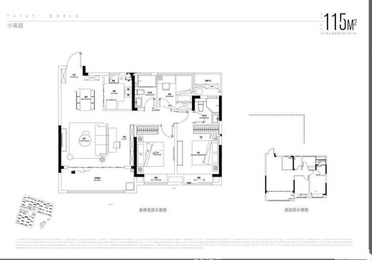
项目由招商蛇口开发,包含低密度多层、小高层、高层及花园洋房等多种住宅类型,容积率为1.8,绿化率高于40%,建面主要在89-119㎡之间,均价为1.7万/㎡。这个项目主打刚需小户型,主力户型面积介于89-119㎡之间,满足不同购房者的需求。此外,还有部分四室户型可供选择,面积达到143㎡。
招商奥体公园售楼处电话☎:0551-6813 6588
招商奥体公园售楼处电话☎:0551-6813 6588
招商奥体公园售楼处电话☎:0551-6813 6588
招商奥体公园售楼处电话☎:0551-6813 6588
招商奥体公园售楼处电话☎:0551-6813 6588
项目的优势在于其综合性和便利的交通配套。周边交通便捷,地铁四号线贯穿,使居民出行更加方便快捷。同时,项目内部设施完善,包括商业配套和公园景观,为居民提供了丰富的生活体验。此外,招商奥体公园的售价也相对亲民,部分户型均价在1.35万/㎡至2万/㎡之间,吸引了众多购房者的关注和青睐。
招商奥体公园售楼处电话☎:0551-6813 6588
在招商奥体公园的规划中,注重打造城市生长共同体,将体育、商业、社区等元素有机融合,为业主提供全方位的生活体验。项目的交通便利和丰富的生活配套设施,使其成为新站区的热门楼盘之一。随着项目的陆续交付,招商奥体公园将为当地居民带来更加便利和舒适的生活环境。
招商奥体公园售楼处电话☎:0551-6813 6588
招商奥体公园是合肥首座45万方奥体TOD综合体,集“体育中心、长空公园、TOD商业、智慧社区”四大业态于一体,为居民提供全方位的生活体验。项目采用5S智慧管理服务体系,保障社区的安全性和便利性。此外,项目设有5大主体架空层泛会所,覆盖各个年龄段的需求,提供丰富的休闲娱乐设施。招商奥体公园以其便捷交通、价格优势、多样户型选择和综合体验,吸引了众多购房者的关注和青睐,成为合肥新站区的一匹刚需“黑马”。
招商奥体公园售楼处电话☎:0551-6813 6588
招商奥体公园
招商奥体公园营销中心电话:0551-6258 9911【已认证】
招商奥体公园售楼处电话:0551-6258 9911【已认证】
招商奥体公园展示中心电话:0551-6258 9911【已认证】
声明:本文由入驻焦点开放平台的作者撰写,除焦点官方账号外,观点仅代表作者本人,不代表焦点立场。


