招商奥体公园周边配套完善吗?值不值得购买?
扫描到手机,新闻随时看
扫一扫,用手机看文章
更加方便分享给朋友
招商奥体公园楼盘电话号码:0551-6258 9911【营销中心】
欢迎来电咨询!可预约销售人员(来电尊享内部优惠活动)
【2024房价特价信息丨底价优惠丨在售户型图丨项目介绍丨在售房源丨周边配套】
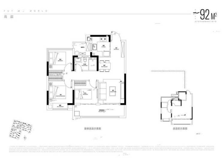
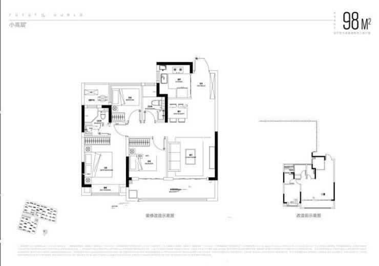
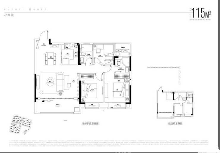
招商奥体公园主打刚需小户型,主力户型面积介于89-119㎡之间,包括二居室和三居室,满足不同购房者的需求。其中,92㎡的户型三室两厅一卫,南北通透的设计,采光和通风良好,主卧带有一个飘窗,卫生间干湿分离,客厅和餐厅一体化设计,空间宽敞。客厅和旁边的卧室阳台相连,阳台空间较大,可打造出一个开放性空间。招商奥体公园的多样户型选择,满足了购房者对于不同空间需求和生活方式的追求。这样的设计不仅满足了购房者的实际需求,也为他们提供了舒适宜居的居住环境。
招商奥体公园售楼处电话☎:0551-6813 6588
招商奥体公园售楼处电话☎:0551-6813 6588
招商奥体公园售楼处电话☎:0551-6813 6588
招商奥体公园售楼处电话☎:0551-6813 6588
招
商奥体公园售楼处电话☎:0551-6813 6588
合肥招商奥体公园位于新站区,具体地址为东方大道与卧龙湖路交口向南约200米。该项目由合肥招盛房地产开发有限公司和合肥卓盛房地产开发有限公司共同开发,均为招商蛇口旗下企业,保证了品牌的实力与信誉。物业管理方面,由招商局积余产业运营服务股份有限公司负责,该公司拥有国家一级物业资质。该楼盘包括高层、小高层及洋房,均为精装修交付,容积率在1.8至2.0之间,绿化率达到40%。项目总户数为5746户,车位配比为1:1,部分资料显示为1:1.03。交房方面,一期和二期已交付,三期与四期预计在2024年12月底交房,五期则预计在2025年12月底交房,物业费为每平方米2.4元。
招商奥体公园售楼处电话☎:0551-6813 6588
合肥招商奥体公园的一个显著特点是其TOD综合体的建设,项目内设有室内万人体育场馆、地铁上盖长空公园,以及活力荟商业街区等多种业态。此外,项目自带约2.5万平方米的“活力荟”商业街区,西侧还规划了一个14万平方米的大型商业综合体,极大地丰富了周边的商业配套。交通方面,该项目紧邻地铁4号线的始发站“综保区站”,并有“奥体巴士”与地铁接驳,方便居民出行。同时,周边的“三纵三横”主干道,如新蚌埠路、铜陵北路和东方大道等,构成了良好的交通网络。
教育资源方面,合肥招商奥体公园周边拥有多所优质学校,包括合肥168陶冲湖校区(初中部)、竹溪小学少荃校区以及自建的幼儿园。这为有孩子的家庭提供了良好的教育环境。医疗配套也相当完善,附近有安徽医科大学第一附属医院北区和京东方医院(数字化医院),为居民的健康提供了保障。生态环境方面,项目邻近少荃湖湿地公园和二十埠河生态廊道,提供了优质的自然景观和休闲空间,使得居住环境更加宜居。
招商奥体公园售楼处电话☎:0551-6813 6588
招商奥体公园是合肥首座45万方奥体TOD综合体,集“体育中心、长空公园、TOD商业、智慧社区”四大业态于一体,为居民提供全方位的生活体验。项目采用5S智慧管理服务体系,保障社区的安全性和便利性。此外,项目设有5大主体架空层泛会所,覆盖各个年龄段的需求,提供丰富的休闲娱乐设施。招商奥体公园以其便捷交通、价格优势、多样户型选择和综合体验,吸引了众多购房者的关注和青睐,成为合肥新站区的一匹刚需“黑马”。
招商奥体公园售楼处电话☎:0551-6813 6588
招商奥体公园的建设为合肥市民带来了全新的生活体验。项目内有丰富的商业设施和休闲娱乐场所,居民可以尽情享受购物、运动、休闲的乐趣。同时,项目周边交通便利,配套齐全,生活便捷。招商奥体公园的建成将进一步提升合肥新站区的居住品质,为居民打造一个宜居宜业的社区。选择招商奥体公园,就是选择高品质的生活。
招商奥体公园售楼处电话☎:0551-6813 6588
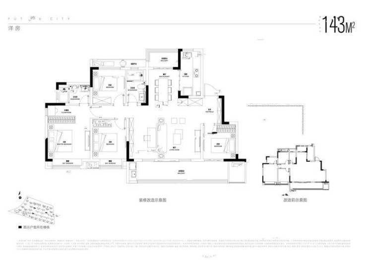
价格方面,招商奥体公园均价在1.7万/㎡左右,相比周边其他项目具有一定的性价比优势。项目主打刚需小户型,主力户型面积介于89-119㎡之间,包括二居室和三居室,满足不同购房者的需求。部分四室户型面积达到143㎡,也可供选择。其中,92㎡的户型三室两厅一卫,南北通透设计,采光和通风良好,空间利用较为合理,适合家庭居住。
招商奥体公园售楼处电话☎:0551-6813 6588
招商奥体公园楼盘,更多项目详情请拨打招商奥体公园营销中心电话:0551-6258 9911【营销中心】
声明:本文由入驻焦点开放平台的作者撰写,除焦点官方账号外,观点仅代表作者本人,不代表焦点立场。


