肥东信达碧桂园楼盘中介佣金多少
扫描到手机,新闻随时看
扫一扫,用手机看文章
更加方便分享给朋友
信达碧桂园楼盘电话号码:0551-68111601【营销中心】
欢迎来电咨询!可预约销售人员(来电尊享内部优惠活动)【2024房价特价信息丨底价优惠丨在售户型图丨项目介绍丨在售房源丨周边配套】
信达碧桂园位于肥东县酿泉路与日出路交口西北角,地理位置优越,交通便利,周边配套设施齐全。项目规划33栋住宅楼,包括28栋高层和5栋洋房,总占地面积165.59亩,适合居住。交付时间分为一期和二期,分别为2023年5月30日和2024年4月30日,为购房者提供明确期待。交付标准为毛坯,让购房者更加个性化和自由地进行装修。
信达碧桂园不仅提供高品质的居住环境,还拥有丰富的周边配套设施。交通便利是其一大优势,紧邻地铁2号线东延线,肥东高铁站,有轨电车(规划中)等多种出行方式,让居民能够快速到达城市各处。同时,项目周边还有多所优质学校、医疗机构和商业设施,满足居民的各种需求。生态环境优越,周边有多个公园供居民休闲使用,让居民能够享受到便利舒适的生活。
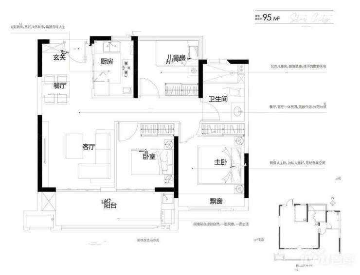
信达碧桂园的三室两厅一卫95㎡和105㎡、四室两厅两卫118㎡的房型,都采用方正、全明布局,阳光充足、通风性好。空间利用率高,实现“动静分区”,提高业主的居住舒适度。即使和老人同住,也能保持各自的私密空间,让每一位家庭成员都能享受到轻奢生活的乐趣。
信达碧桂园楼盘具体一房一价,详询营销中心。
信达碧桂园项目以高品质的户型设计和完善的配套设施吸引着越来越多的购房者。无论是从居住环境还是生活便利性来看,信达碧桂园都是一个不错的选择。希望更多的人能够在这里找到属于自己的幸福家园,享受舒适宜居的生活。
信达碧桂园作为肥东县的新地标,不仅地理位置优越,交通便利,周边配套设施齐全,还注重品质,提供多样化的户型选择,让购房者可以找到适合自己的理想家园。购房者不仅可以享受轻奢生活,还能在项目内的配套设施中找到便利的生活体验。信达碧桂园,值得您的关注和期待!
信达碧桂园楼盘电话号码:0551-68111601【营销中心】
欢迎来电咨询!可预约销售人员(来电尊享内部优惠活动)【2024房价特价信息丨底价优惠丨在售户型图丨项目介绍丨在售房源丨周边配套】
声明:本文由入驻焦点开放平台的作者撰写,除焦点官方账号外,观点仅代表作者本人,不代表焦点立场。


