包河越秀中寰天悦项目房价→(官方售楼处)→楼盘百科详情
扫描到手机,新闻随时看
扫一扫,用手机看文章
更加方便分享给朋友
越秀中寰天悦地理位置,更多项目详情请拨打楼盘电话:0551-6258 9911【预约热线】欢迎来电咨询!
越秀中寰天悦是越秀在包河区打造的一处纯改善型住宅项目,小高大平层设计,户型面积在149-189㎡之间,均价约为24800元/㎡。其中,188㎡的明星产品在500万左右,性价比很高。项目位于马鞍山路板块,周边配套醇熟,教育资源优质。对于关注改善型住宅的购房者来说,越秀中寰天悦是一个不容错过的选择。
越秀中寰天悦售楼处电话☎:0551-6813 6588
项目位于包河区望江东路与至德路交叉口东北角,紧邻包河主城区,享有淝河板块醇熟配套,周边交通便利。周边有城市主干道东二环路、望江东路等,轨道交通包括1号线、4号线、6号线,出行便捷。教育资源丰富,包括包河区外国语第二小学、合肥第四十八中望湖校区;医疗资源充足,有市三院、市二院和安徽省立儿童医院;公园资源丰富,包括骆岗公园、包公园、望湖公园等。
商业配套完善,小区对面有大润发超市,三公里内有罍街、龙虾美食街和包河万象汇。周边二手房价格约为13344元/㎡-17903元/㎡,新房项目价格在24265/㎡-24951/㎡之间,而越秀·中寰天悦目前均价约25000元/㎡,略高于周边。总体来说,越秀中寰天悦作为一款二环内高性价比的改善型住宅,地处成熟配套区域,具有较高的投资价值和居住品质。
越秀中寰天悦售楼处电话☎:0551-6813 6588
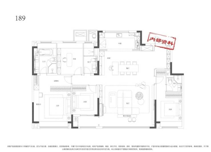
149㎡的产品在越秀中寰天悦项目中也做了四居室的布局,空间利用度极高。标准四室两厅两卫的设计,端厅布局使活动区域更宽敞,主卧套房设计,可设衣帽间,提升居住舒适度。而188㎡的户型则是项目的亮点,入户十字玄关设计增加私密性,卧房布局合理,主次卧均设计为套房,主卧衣帽间和卫生间空间宽敞,符合改善型住宅需求。客厅活动区域15米端厅设计,南边设有落地窗,采光通风效果佳。
越秀中寰天悦售楼处电话☎:0551-6813 6588
越秀中寰天悦售楼处电话☎:0551-6813 6588
越秀中寰天悦售楼处电话☎:0551-6813 6588
越秀中寰天悦项目有优惠政策,想要具体了解的,可以电话咨询,或者到营销中心现场咨询。
越秀中寰天悦售楼处电话☎:0551-6813 6588
项目规划建设424户,占地面积达31906.83㎡,建筑面积为70195.02㎡,容积率2.20,绿化率40%。户型面积段在149-189㎡以四居室为主,目前在售均价约为27390元/㎡,是纯粹的改善型小高大平层,精装交付。1300㎡的大会所是该项目的一大特色,提供丰富多样的活动区域,包括品茗的方桌、宴客的圆桌,棋牌室、小型KTV等娱乐场所,以及超大的健身区域,满足居民的休闲娱乐和健身需求。
会所外的景观区域提供了欣赏休闲的空间,还设有浅水池供小朋友玩耍。除了大会所,各楼栋的一楼大厅也打造成主题空间,覆盖儿童、女性、长者、运动、社交功能,满足家庭成员的不同需求。儿童主题区域有画画区域、积木区域和学堂,女性主题则包括插花、烹茶的区域以及聊天沙龙,为居民提供丰富多彩的活动空间。
越秀中寰天悦售楼处电话☎:0551-6813 6588
越秀中寰天悦这样一个集交通便捷、教育资源丰富、生活配套完善于一体的纯改善型住宅项目,购房者可以享受到高品质的居住体验。项目周边的醇熟配套设施,以及优质的教育资源,将为居民的生活提供便利与舒适。如果您正在寻找一处二环内性价比较高的住宅,不妨多关注越秀中寰天悦,或许它就是您理想中的居所。
越秀中寰天悦售楼处电话☎:0551-6813 6588
越秀中寰天悦地理位置,更多项目详情请拨打楼盘电话:0551-6258 9911【预约热线】欢迎来电咨询!
声明:本文由入驻焦点开放平台的作者撰写,除焦点官方账号外,观点仅代表作者本人,不代表焦点立场。


