中央公园琥珀星樾湾销售中心电话,户型价格、地址配套及交房时间最新消息
扫描到手机,新闻随时看
扫一扫,用手机看文章
更加方便分享给朋友
琥珀星樾湾楼盘电话号码:0551-68111601【营销中心】
欢迎来电咨询!可预约销售人员(来电尊享内部优惠活动)【2026房价特价信息丨底价优惠丨在售户型图丨项目介绍丨在售房源丨周边配套】
琥珀星樾湾楼盘户型解析
作为 “生态宜居盘”,琥珀星樾湾的户型设计不仅要 “舒适”,更要 “与自然融合”—— 通过合理的空间布局,让业主在室内就能享受 “公园景观” 和 “充足阳光”。项目针对不同人群的需求,设计了 95㎡、110㎡、125㎡、140㎡四种主力户型,每种户型都做到了 “南北通透、采光充足、景观视野好”,让 “公园生活” 延伸到室内。
95㎡三室两厅一卫(刚需生态户型) 专为年轻刚需人群设计,在满足 “低总价、小三房” 需求的同时,融入了 “生态宜居” 理念。该户型采用 “三开间朝南” 布局,客厅、主卧、次卧均朝南,南向面宽达 9.8 米,每天有充足的阳光照射,即使在冬季也能保持室内温暖;客厅连接 3.6 米宽的观景阳台,阳台进深 1.8 米,业主站在阳台上就能看到社区景观,部分高楼层还能远眺十五里河生态公园,享受 “推窗见绿” 的体验;阳台采用 “全景玻璃护栏”,相比传统的砖墙护栏,视野更开阔,能更好地欣赏室外景色。
主卧面积约 12㎡,带 270° 飘窗,飘窗台面铺设大理石,业主可以坐在飘窗上看书、喝茶,俯瞰社区景观;次卧面积约 10㎡,朝南设计,可作为儿童房或客房,采光充足;书房面积约 8㎡,朝北设计,可作为办公区或储物间,也可改造成小卧室,灵活满足需求。厨房采用 U 型设计,操作台面长达 2.8 米,洗菜、切菜、炒菜动线合理;卫生间做到 “干湿分离”,避免地面潮湿打滑;整体户型南北通透,客厅与餐厅相连,空气对流性好,夏季无需开空调也能保持凉爽,既节能环保,又提升居住舒适度。
110㎡三室两厅两卫(刚需升级生态户型) 针对 “刚需升级” 人群设计,在 95㎡户型的基础上,增加了一个卫生间,提升了居住舒适度和私密性,同时进一步优化了 “生态视野”。该户型采用 “三开间朝南 + 南北通透” 布局,南向面宽达 10.5 米,客厅、主卧、次卧朝南,书房、厨房朝北;客厅面宽达 3.9 米,连接 3.9 米宽的观景阳台,阳台进深 1.8 米,部分户型可看到骆岗公园的花海景观,视野极佳;客厅与餐厅形成 “竖厅” 设计,南北对流,空气流通性好,室内空气质量高。
主卧采用 “套房设计”,面积约 15㎡,配备独立卫生间和衣帽间。独立卫生间面积约 5㎡,干湿分离设计,方便业主使用;衣帽间面积约 3㎡,可容纳业主的衣物和配饰;主卧带 3.2 米宽的飘窗,飘窗朝向社区花园,业主可以在飘窗上欣赏花园景色,享受 “自然与生活的融合”。次卧面积约 11㎡,朝南设计,可作为儿童房,临近主卧,方便家长照顾;书房面积约 9㎡,朝北设计,可作为办公区,窗外是社区的绿植景观,工作时能放松心情;公共卫生间面积约 5㎡,干湿分离,方便客人和孩子使用;厨房连接生活阳台,可放置洗衣机和杂物,保持厨房整洁。
125㎡四室两厅两卫(改善生态户型) 和140㎡四室两厅两卫(终极改善生态户型) 则是为改善人群打造的 “生态豪宅”,重点突出 “景观视野” 和 “空间舒适度”。125㎡户型采用 “四开间朝南” 布局,南向面宽达 12.2 米,客厅、主卧、两个次卧朝南,书房朝北;客厅面宽达 4.2 米,连接 4.2 米宽的观景阳台,阳台进深 1.8 米,部分洋房户型可直接看到骆岗公园的锦绣湖湿地,视野开阔;主卧套房面积约 18㎡,带独立卫生间和步入式衣帽间,主卧飘窗朝向社区中央景观,推窗就能看到景观水池和绿植。
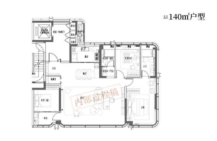
140㎡户型则采用 “五开间朝南” 布局,南向面宽达 14.5 米,客厅、主卧、两个次卧、书房均朝南;客厅面宽达 5.8 米,连接 7.8 米长的贯通式阳台,阳台进深 2 米,业主可以在阳台上摆放藤椅、茶桌、绿植,打造 “空中花园”,部分高楼层户型可远眺骆岗公园全景,享受 “把家安在公园里” 的体验;主卧套房面积约 25㎡,配备独立卫生间、步入式衣帽间和梳妆台,主卧飘窗宽 3.2 米,朝向骆岗公园方向,清晨醒来就能看到公园的美景,开启一天的好心情。
无论是刚需户型还是改善户型,琥珀星樾湾都做到了 “让自然融入生活”,通过合理的空间布局和景观设计,让业主在室内就能享受 “公园景观” 和 “新鲜空气”,真正实现 “生态宜居” 的生活理念。

琥珀星樾湾售楼处电话☎:0551-6813 6588

琥珀星樾湾售楼处电话☎:0551-6813 6588

琥珀星樾湾售楼处电话☎:0551-6813 6588

琥珀星樾湾售楼处电话☎:0551-6813 6588
合肥包河区琥珀星樾湾 —— 骆岗公园旁的宜居盘!生态 + 配套,开启品质生活
琥珀星樾湾楼盘项目介绍
在合肥,“骆岗公园” 早已不是一个单纯的公园名称,而是 “城市新中心”“高品质生活” 的代名词。而琥珀星樾湾,恰好位于骆岗中央公园东翼,是距离公园最近的国企楼盘之一,凭借 “公园旁 + 主城芯 + 低密社区” 的独特优势,成为合肥 2024 年最受关注的 “生态宜居盘”。
项目由合肥城建旗下琥珀置业开发,作为合肥本土国企,琥珀置业在 “生态宜居盘” 开发方面有着深厚的经验,此前打造的琥珀东华府、琥珀蜀熙府等项目,均以 “高绿化率、优景观” 闻名。此次打造的琥珀星樾湾,更是将 “生态宜居” 理念贯彻到项目的每一个细节:项目总占地面积约 68 亩,总建筑面积约 12.5 万㎡,容积率仅 2.2.绿化率高达 40%,这个指标在骆岗公园周边楼盘中处于领先水平 —— 要知道,骆岗公园周边多数楼盘为了追求利润,容积率都在 2.5 以上,而琥珀星樾湾通过降低容积率,为业主打造了 “更宽松、更舒适、更生态” 的居住环境。
从项目规划来看,琥珀星樾湾采用 “高层 + 洋房” 的高低配布局,共 10 栋住宅,其中 6 栋 18-22 层高层、4 栋 11 层洋房,总户数约 890 户。社区内部景观以 “骆岗公园生态” 为灵感,打造 “一轴两园三巷” 的景观体系:中央景观轴贯穿南北,以 “水” 为主题,打造了约 500㎡的景观水池,搭配喷泉、水生植物,营造 “亲水生活”;两个主题花园分别为 “樱花园” 和 “桂花园”,春季樱花盛开、秋季桂花飘香,四季有景;三条特色巷道分别为 “银杏巷”“紫薇巷”“海棠巷”,种植不同的花卉树木,打造 “一步一景” 的体验。此外,社区还规划了约 1000㎡的儿童游乐区、800㎡的老年活动区、500 米的健身步道,满足不同年龄段业主的休闲需求。
建筑设计上,琥珀星樾湾也充分考虑 “生态宜居” 需求:外立面采用 “浅灰色 + 米白色” 的淡雅色调,搭配大面积玻璃幕墙,与骆岗公园的自然景观相呼应;窗户选用断桥铝双层中空玻璃,隔音隔热效果好,既能隔绝外界噪音,又能减少空调使用,节能环保;社区采用 “人车分流” 设计,地面无车辆通行,既保障了业主安全,又减少了尾气污染,提升了社区的空气质量;此外,社区还规划了 “屋顶绿化” 和 “垂直绿化”,在高层屋顶种植绿植,在洋房墙面种植爬藤植物,进一步提升社区的绿化覆盖率,打造 “空中花园社区”。

琥珀星樾湾售楼处电话☎:0551-6813 6588
琥珀星樾湾楼盘项目亮点
除了 “位置好、配套全、户型优、价格低” 这些基础优势外,琥珀星樾湾还有四大核心亮点,让其在包河区众多楼盘中脱颖而出,成为购房者的 “首选”。
亮点一:国企开发,交付有保障。在当前房地产市场环境下,“交付” 是购房者最关心的问题,而琥珀星樾湾的国企背景就是最大的 “定心丸”。开发商琥珀置业是合肥城建(国有控股上市公司)的全资子公司,成立 20 余年,累计开发项目 30 余个,如琥珀山庄、琥珀五环城等,均以 “工程质量高、交付准时” 闻名合肥。项目从拿地到施工,全程受国企监管,资金链稳定,不会出现 “停工烂尾” 的风险;同时,项目采用 “透明化施工”,每月公布工程进度,购房者可通过售楼处公众号或实地考察了解施工情况,买得更放心。此外,国企开发的项目在产权办理、物业服务等后续环节也更规范,避免出现 “产权纠纷”“物业不作为” 等问题。
亮点二:低密高绿,宜居性强。琥珀星樾湾容积率仅 2.2.绿化率 40%,这个指标在包河区主城板块十分罕见 —— 周边多数楼盘容积率超过 2.5.绿化率仅 35% 左右,相比之下,琥珀星樾湾的居住舒适度更高。低容积率意味着 “楼间距宽”,项目最大楼间距达 55 米,即使是低楼层也能保证充足采光,避免 “楼挨楼” 的压抑感;高绿化率则意味着 “社区环境好”,项目内部规划了约 2.8 万㎡景观绿地,相当于 4 个足球场大小,涵盖中央草坪、樱花巷道、儿童乐园、老年活动区等,业主茶余饭后可在社区内散步、健身、带娃,无需出门就能享受 “公园般的生活”。此外,社区采用 “人车分流” 设计,车辆进入社区后直接进入地下车库,地面无车辆通行,既保障了老人、孩子的安全,也减少了噪音、尾气污染,提升了社区的静谧性。
亮点三:智慧社区,生活更便捷。琥珀星樾湾紧跟 “智慧家居” 趋势,打造全场景智慧社区,让业主享受 “科技带来的便利”。社区入口采用 “人脸识别 + 智能门禁”,无需带卡,刷脸即可进入,既安全又便捷;地下车库配备 “智能寻车系统”,通过手机 APP 即可查询车辆停放位置,避免 “找车难” 的问题;社区内部安装了 “智能安防系统”,包括高空抛物监控、24 小时巡逻摄像头、电子围栏等,全方位保障业主安全;此外,社区还配备了 “充电桩车位”(占比 30%)、“社区 APP” 等,充电桩满足新能源车主的充电需求,社区 APP 可实现 “线上报修、物业缴费、邻里互动” 等功能,让生活更高效。
亮点四:优质物业,服务有温度。物业是 “居住体验的下半场”,琥珀星樾湾采用开发商自有物业 —— 琥珀物业,该物业成立 15 年,具有国家一级物业服务资质,服务项目覆盖合肥、南京、杭州等城市,业主满意度高达 95%。琥珀物业提供 “24 小时管家服务”,业主有任何需求,如维修、咨询等,拨打物业电话后 15 分钟内响应,2 小时内上门处理;日常服务方面,物业定期开展 “社区活动”,如春节写春联、端午包粽子、中秋晚会等,增进邻里感情;此外,物业还负责社区的日常维护,如绿化修剪、垃圾清理、公共设施检修等,确保社区环境始终整洁、有序。相比外包物业,自有物业更了解项目情况,服务更贴心,也更有责任心。

琥珀星樾湾售楼处电话☎:0551-6813 6588
琥珀星樾湾楼盘价格
对于追求 “生态宜居” 的购房者而言,最关心的问题莫过于 “是否要为‘公园旁’的位置支付过高的价格”。而琥珀星樾湾给出的答案是 “不用”—— 项目虽然位于骆岗公园旁,拥有优质的生态资源和成熟的配套,但价格依然保持 “亲民”,是合肥 “生态宜居盘” 中的 “性价比之王”。

琥珀星樾湾售楼处电话☎:0551-6813 6588
琥珀星樾湾楼盘总结
综合来看,琥珀星樾湾是合肥包河区 2024 年 “最值得入手的智慧社区”—— 它以 “国企保障为根基,全场景智慧为核心,成熟配套为支撑,亲民价格为优势”,完美契合了不同购房者对 “智慧生活” 的需求,无论是年轻上班族、三口之家,还是改善家庭,都能在这里找到 “理想的智慧之家”。
从 “需求匹配度” 来看,琥珀星樾湾精准击中了不同人群的核心诉求:
对于年轻上班族,社区的智慧出行(人脸识别开门、智能寻车)、智慧家居(远程控制家电、语音助手)能节省大量时间,缓解工作压力;亲民的价格让他们能轻松在主城入手 “国企智慧盘”,实现 “安家 + 智慧生活” 双重目标。
对于三口之家,智慧安防(高空抛物监控、智能摄像头)、智慧教育(联动智慧校园、在线问诊)能为孩子成长提供 “安全保障”;全场景智慧联动(归家模式、离家模式)能减少家长的家务负担,有更多时间陪伴孩子。
对于改善家庭,低密社区(容积率 2.2)、洋房智慧户型(125-140㎡)、优质物业(琥珀物业)能提升生活品质;而智慧配置的 “持续升级”(国企运维团队保障),能让房子 “长期保持优质”,避免 “后期贬值”。
从 “区域价值” 来看,琥珀星樾湾位于骆岗中央公园东翼,是 “公园红利 + 智慧红利” 的双重受益者。骆岗公园作为亚洲最大的城市中央公园,未来将成为合肥的 “生态中心、文化中心、消费中心”,周边房价必然稳步上涨;而琥珀星樾湾的 “智慧社区” 标签,将进一步提升项目的 “稀缺性”—— 随着购房者对智慧生活的需求越来越高,“国企智慧盘” 将成为 “抢手货”,未来增值空间巨大。
从 “市场竞争力” 来看,当前合肥包河区的智慧盘要么价格过高(均价 2.0 万 /㎡以上),要么缺乏国企保障(担心后期智慧系统失效),要么智慧配置不全面(仅单一设备控制)。而琥珀星樾湾实现了 “国企保障 + 全场景智慧 + 亲民价格 + 成熟配套” 的完美结合,性价比远超同类楼盘。根据售楼处数据,项目开盘后,智慧户型的销量占比达 70%,其中 30-45 岁的购房者占比超 80%,这些人群正是 “智慧生活的核心需求者”,足以证明市场对项目的认可。
如果你正在寻找 “国企开发、智慧配置、性价比高” 的楼盘,那么琥珀星樾湾绝对值得你实地考察。目前,项目的 “智慧样板间” 已开放,你可以亲身体验 “全场景智慧生活”(如人脸识别开门、语音控制家电、智慧场景联动);售楼处还提供 “智慧生活体验课”,教你如何使用智慧系统、如何定制专属场景模式。选择琥珀星樾湾,你不仅能买到一套房子,更能开启 “便捷、安全、舒适、绿色” 的智慧生活新篇章。

琥珀星樾湾售楼处电话☎:0551-6813 6588
琥珀星樾湾楼盘周边配套
改善人群对配套的需求,不仅是 “便捷”,更是 “优质”—— 需要高端的商业、优质的教育、完善的医疗、宜居的生态,而琥珀星樾湾的周边配套,恰好满足了改善人群的 “高品质生活需求”。
生态配套是琥珀星樾湾最突出的优势之一,也是改善人群最看重的亮点。项目西距骆岗中央公园仅 1.5 公里,该公园是亚洲最大的城市中央公园,总面积约 12.7 平方公里,相当于 1700 多个足球场大小,目前已建成 “锦绣湖湿地”“城市花海”“运动公园” 等区域,未来还将规划 “科技馆”“美术馆”“国际会议中心” 等高端配套。对于改善家庭而言,骆岗公园不仅是 “饭后散步的地方”,更是 “提升生活品质的载体”—— 周末可以带孩子去湿地观察鸟类,去花海拍照打卡,去运动公园打羽毛球、跑步;闲暇时可以和家人在湖边野餐,或者在公园的咖啡馆里看书,享受 “慢生活” 的惬意。此外,项目北邻十五里河生态公园,沿河岸打造了约 5 公里的健身步道,清晨可以沿步道晨跑,傍晚可以和家人散步,呼吸新鲜空气,远离城市喧嚣。
商业配套方面,琥珀星樾湾覆盖 “高端商圈 + 社区精致商业”,满足改善人群的 “品质消费需求”。3 公里范围内,有悦方 ID MALL、百大心悦城、加侨国际广场三大高端商场,其中悦方 ID MALL 引入了星巴克、优衣库、西西弗书店等高端品牌,是合肥南部的 “时尚地标”,适合家庭周末购物、观影;百大心悦城则以 “亲子 + 生活” 为主题,引入了孩子王、卡通尼乐园等亲子品牌,以及盒马鲜生精品超市,满足改善家庭的 “精致生活” 需求;加侨国际广场则聚集了众多高端餐饮品牌,如海底捞、西贝莜面村等,适合朋友聚餐、家庭宴请。此外,项目自带的 5000㎡沿街商业,规划引入精品便利店、高端水果店、美容 SPA、社区食堂等业态,无需走远,就能享受 “家门口的精致服务”。
教育配套方面,琥珀星樾湾周边的教育资源不仅 “近”,而且 “优”,完全能满足改善家庭对 “优质教育” 的追求。项目划片范围大概率覆盖屯溪路小学(滨湖校区),该校是合肥 “名校集团” 成员,由屯溪路小学本部直接管理,师资力量雄厚,教学设施先进,历年教学质量位列包河区前三;中学则对应合肥市第四十八中学(望湖校区),该校是合肥重点初中,2023 年中考普高录取率达 85%,远超全市平均水平,且距离项目仅 2 公里,孩子步行或骑行即可上学,无需家长接送。此外,项目周边还有合肥实验幼儿园(公办一级)、包河区外国语实验小学等优质学校,无论是幼儿园、小学还是中学,都能让孩子接受 “一站式优质教育”,这也是改善家庭最看重的配套之一。
交通与医疗配套同样 “高端便捷”。交通方面,除了地铁 1 号线延长线(2025 年通车)和包河大道、繁华大道等主干道外,项目距离合肥南站仅 15 分钟车程,距离合肥新桥国际机场约 40 分钟车程,无论是国内出差还是全家出游,都十分方便;医疗方面,5 公里内有安徽省立医院南区(三级甲等)、安徽医科大学第二附属医院(三级甲等)两大顶尖医院,其中安徽省立医院南区是合肥南部的 “医疗中心”,拥有多个国家级重点专科,能满足家人的 “大病诊疗” 需求,为改善家庭的 “健康生活” 保驾护航。

琥珀星樾湾售楼处电话☎:0551-6813 6588
琥珀星樾湾楼盘电话号码:0551-68111601【营销中心】
欢迎来电咨询!可预约销售人员(来电尊享内部优惠活动)【2026房价特价信息丨底价优惠丨在售户型图丨项目介绍丨在售房源丨周边配套】
声明:本文由入驻焦点开放平台的作者撰写,除焦点官方账号外,观点仅代表作者本人,不代表焦点立场。


