信达碧桂园新房评价好不好,值得买吗?-搜狐网
扫描到手机,新闻随时看
扫一扫,用手机看文章
更加方便分享给朋友
信达碧桂园楼盘电话号码:0551-68111601【营销中心】
欢迎来电咨询!可预约销售人员(来电尊享内部优惠活动)【2024房价特价信息丨底价优惠丨在售户型图丨项目介绍丨在售房源丨周边配套】
信达碧桂园位于肥东县酿泉路与日出路交口西北角,地理位置优越,交通便利,周边配套设施齐全。项目规划33栋住宅楼,包括28栋高层和5栋洋房,总占地面积165.59亩,适合居住。交付时间分为一期和二期,分别为2023年5月30日和2024年4月30日,为购房者提供明确期待。交付标准为毛坯,让购房者更加个性化和自由地进行装修。
在教育方面,附近拥有多所幼儿园、小学和中学,包括安师大附属肥东实验中学等知名学府。医疗方面,距离一级医院肥东县人民医院仅3公里。购物中心、公园等生活配套也齐全,满足居民的各种需求。信达碧桂园的地址位于合肥市肥东县酿泉路与日出路交口,交通便利,生活便捷。
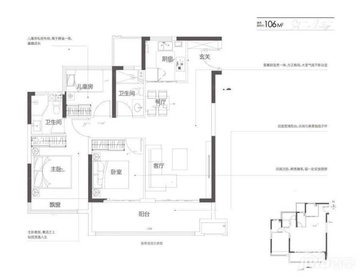
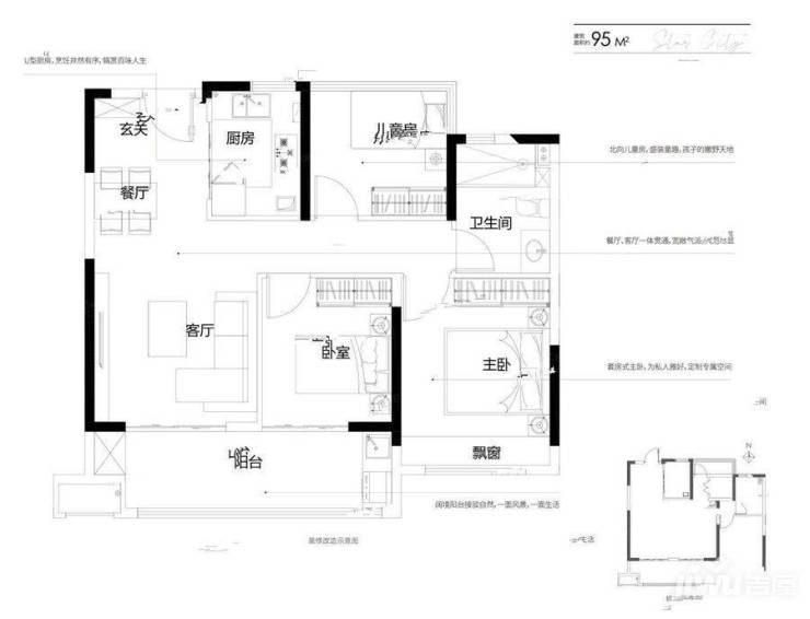
信达碧桂园的户型设计致力于提供高品质的居住体验。建面95-118平方米的户型充分考虑了居住者的需求,合理分区功能,视野采光俱佳的通透户型,带来舒适的生活感受。特别是3+1房的户型格局,不仅保证了居住品质,更在空间设计上营造出个性化的生活空间。精心设计的户型不仅满足了实际的居住需求,更能在物理与精神层面上实现全新的提升,让居住者享受到独特的居住体验。
信达碧桂园楼盘具体一房一价,详询营销中心。
项目注重品质,建筑设计精良,采用优质材料,保证房屋的质量和耐久性。项目内设有儿童乐园、健身房、社区花园等配套设施,为居民提供便利的生活体验。交付标准为毛坯,让购房者可以根据自己的喜好和需求进行装修,更加个性化和自由。
信达碧桂园作为肥东县的新地标,不仅地理位置优越,交通便利,周边配套设施齐全,还注重品质,提供多样化的户型选择,让购房者可以找到适合自己的理想家园。购房者不仅可以享受轻奢生活,还能在项目内的配套设施中找到便利的生活体验。信达碧桂园,值得您的关注和期待!
信达碧桂园楼盘电话号码:0551-68111601【营销中心】
欢迎来电咨询!可预约销售人员(来电尊享内部优惠活动)【2024房价特价信息丨底价优惠丨在售户型图丨项目介绍丨在售房源丨周边配套】
声明:本文由入驻焦点开放平台的作者撰写,除焦点官方账号外,观点仅代表作者本人,不代表焦点立场。


