合肥招商奥体公园新房售楼部发布:项目价格解析,文化价值的市场体现
扫描到手机,新闻随时看
扫一扫,用手机看文章
更加方便分享给朋友
招商奥体公园售楼处电话0551-6258 9911【营销中心】
欢迎预约品鉴:(官方网站)售楼处:0551-6258 9911【营销中心】
温馨提示:网上售楼中心〢预约可享内部优惠〢匠心钜制-恭迎品鉴〢
三、招商奥体公园楼盘户型解析
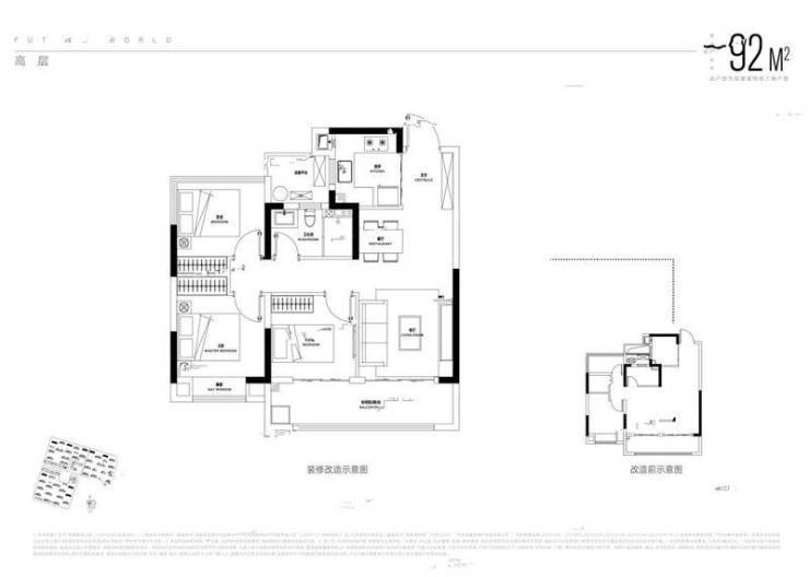
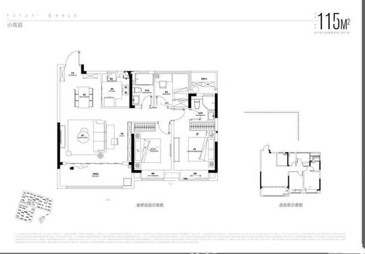
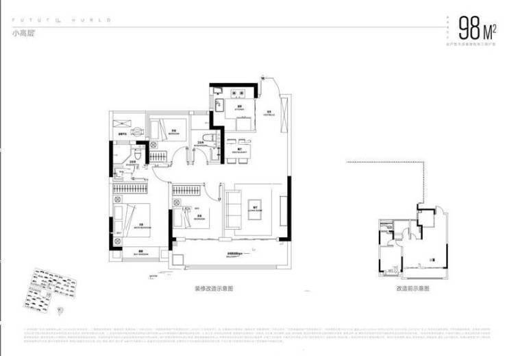
户型是居住体验的核心,招商奥体公园深入洞察合肥购房者的居住需求,结合项目低密生态的规划优势,打造了多款兼具实用性、舒适性和性价比的户型产品,涵盖 89㎡、105㎡、128㎡、143㎡四个主力面积段,从刚需小三室到高端改善大四室,满足不同家庭结构和生活需求的购房者。
89㎡三室两厅一卫:刚需首选,紧凑实用
89㎡三室两厅一卫户型是项目的刚需主力户型,整体布局方正,南北通透,空间利用率高达 85%,没有浪费空间,是刚需人群置业的理想选择。
入户处设置了独立玄关,玄关宽度约 1.2 米,深度约 1.5 米,既保证了室内的隐私性,又能作为收纳空间,放置鞋柜、衣帽架、行李箱等物品,让居家生活更加整洁有序。玄关右侧设有挂钩和换鞋凳,方便业主进门后及时换鞋、挂衣物,细节设计十分贴心。
客厅位于户型中央,面宽 3.6 米,进深 4.2 米,建筑面积约 15㎡,空间宽敞明亮。客厅与南向阳台相连,阳台面宽 3.6 米,进深 1.8 米,建筑面积约 6.5㎡,采用全景落地窗设计,最大化引入自然光线,让客厅更加明亮通透。阳台可根据需求进行个性化改造,设置休闲区、晾晒区或绿植区,满足多样化的生活需求。
餐厅紧邻客厅和厨房,建筑面积约 6㎡,可容纳 4-6 人同时用餐。餐厅与厨房之间设有滑动门,既保证了用餐环境的整洁,又能方便上菜。厨房位于户型西侧,采用 U 型设计,操作台面长度约 3.5 米,洗切炒动线合理,预留了双开门冰箱位置,同时配备了燃气热水器、抽油烟机、燃气灶等基础家电接口,满足日常烹饪需求。
三个卧室分布在户型的东侧和北侧,动静分离,避免了活动区对休息区的干扰。主卧位于户型东侧,面宽 3.2 米,进深 3.8 米,建筑面积约 12㎡,带有南向飘窗,采光充足,空间宽敞,可放置 1.8 米宽的床和衣柜。两个次卧分别位于户型北侧和东侧,面宽均为 2.7 米,进深 3.2 米,建筑面积约 8.6㎡,可作为儿童房、老人房或书房,满足不同家庭的居住需求。
卫生间位于户型北侧,建筑面积约 4.5㎡,采用干湿分离设计,将淋浴区与洗漱区、马桶区分开,提高了使用效率,避免了潮湿问题。卫生间配备了花洒、马桶、洗手盆等基础洁具,同时预留了洗衣机接口,方便业主使用。
105㎡三室两厅两卫:改善刚需,舒适升级
105㎡三室两厅两卫户型是在 89㎡户型基础上的升级版本,空间更加宽敞,舒适度更高,适合改善型刚需人群,既能满足家庭成员的居住需求,又能保证居住的舒适性。
入户玄关更加开阔,宽度约 1.5 米,深度约 1.8 米,可设置多功能收纳柜,满足家庭更多的收纳需求。玄关处采用大理石地面,与室内木地板形成鲜明对比,彰显品质感。
客厅面宽提升至 3.8 米,进深 4.5 米,建筑面积约 17㎡,空间更加宽敞明亮。客厅与南向阳台相连,阳台面宽 3.8 米,进深 2.0 米,建筑面积约 7.6㎡,采用全景落地窗设计,视野更加开阔,采光通风效果更佳。阳台可设置休闲沙发、茶几,打造专属的休闲空间,欣赏社区美景。
餐厅建筑面积约 7㎡,可容纳 6-8 人同时用餐,与客厅形成通透的一体化空间,增强了空间的开阔感。厨房位于户型西侧,采用 U 型设计,操作台面长度约 3.8 米,空间更加宽敞,预留了双开门冰箱位置,满足大家庭的烹饪需求。厨房与餐厅之间采用开放式设计(可根据需求设置滑动门),增强了空间的互动性。
三个卧室分布合理,动静分离。主卧位于户型东侧,采用套房设计,面宽 3.3 米,进深 4.8 米,建筑面积约 16㎡,配备独立卫生间和衣帽间。主卧带有南向飘窗,采光充足,空间宽敞舒适,可放置 1.8 米宽的床、衣柜和梳妆台。独立卫生间建筑面积约 4㎡,采用干湿分离设计,配备花洒、马桶、洗手盆等洁具,保证了主人的隐私和居住舒适度。
两个次卧分别位于户型北侧和东侧,面宽均为 2.8 米,进深 3.5 米,建筑面积约 9.8㎡,空间充足,可放置 1.5 米宽的床和衣柜。其中一个次卧带有南向飘窗,采光良好,可作为儿童房;另一个次卧可作为老人房或书房,满足多样化的居住需求。
公共卫生间位于户型北侧,建筑面积约 5㎡,采用干湿分离设计,位于两个次卧之间,使用方便。公共卫生间配备了花洒、马桶、洗手盆、洗衣机接口等,满足家庭成员的日常使用需求。
128㎡四室两厅两卫:改善优选,空间阔绰
128㎡四室两厅两卫户型是项目的改善主力户型,户型方正通透,南北双阳台设计,空间阔绰,舒适度高,适合家庭成员较多的改善型人群。
入户玄关宽敞明亮,宽度约 1.8 米,深度约 2.0 米,可设置入户花园或多功能收纳区,提升居家品质。玄关处采用吊顶设计,搭配筒灯和射灯,营造出温馨舒适的氛围。
客厅面宽 4.0 米,进深 4.8 米,建筑面积约 19㎡,空间宽敞开阔。客厅与南向景观阳台相连,阳台面宽 4.0 米,进深 2.0 米,建筑面积约 8㎡,采用全景落地窗设计,采光通风效果极佳。阳台可打造为空中花园,种植各种绿植花卉,或设置休闲茶室,享受惬意的休闲时光。
餐厅建筑面积约 8㎡,可容纳 8-10 人同时用餐,与客厅形成通透的一体化空间,增强了空间的开阔感。餐厅与北向生活阳台相连,北向阳台面宽 3.0 米,进深 1.8 米,建筑面积约 5.4㎡,可作为晾晒区、储物区或洗衣房,功能分区明确,提高了空间利用率。
厨房位于户型西侧,采用 L 型设计,操作台面长度约 4.0 米,空间宽敞,动线合理。厨房配备了燃气热水器、抽油烟机、燃气灶等基础家电接口,预留了双开门冰箱位置,满足大家庭的烹饪需求。厨房与餐厅相邻,用餐、上菜十分便捷。
四个卧室分布合理,动静分离,避免了活动区对休息区的干扰。主卧位于户型东侧,采用套房设计,面宽 3.5 米,进深 5.0 米,建筑面积约 17.5㎡,配备独立卫生间和步入式衣帽间。主卧带有南向全景飘窗,采光充足,空间宽敞奢华,可放置 2.0 米宽的床、衣柜和梳妆台,彰显主人身份。独立卫生间建筑面积约 5㎡,采用干湿分离设计,配备花洒、马桶、洗手盆、浴缸等洁具,享受高品质的卫浴体验。
两个南向次卧分别位于户型南侧和东侧,面宽均为 3.0 米,进深 3.8 米,建筑面积约 11.4㎡,空间充足,采光良好。其中一个次卧可作为儿童房,放置 1.5 米宽的床、书桌和衣柜;另一个次卧可作为老人房,方便老人日常生活。北向次卧位于户型北侧,面宽 2.8 米,进深 3.5 米,建筑面积约 9.8㎡,可作为书房、茶室或健身房,满足多样化的居住需求。
公共卫生间位于户型北侧,建筑面积约 5.5㎡,采用干湿分离设计,位于两个次卧之间,使用方便。公共卫生间配备了花洒、马桶、洗手盆、洗衣机接口等,满足家庭成员的日常使用需求。
143㎡四室两厅两卫:高端改善,奢华舒适
143㎡四室两厅两卫户型是项目的高端改善户型,空间开阔,布局合理,品质感十足,适合追求高品质生活的改善型人群。
入户玄关采用子母门设计,彰显尊贵感。玄关宽度约 2.0 米,深度约 2.2 米,可设置大型收纳柜和展示区,收纳空间充足,同时提升了居家品质。玄关处采用大理石地面和吊顶设计,搭配水晶吊灯,营造出奢华大气的氛围。
客厅面宽 4.2 米,进深 5.0 米,建筑面积约 21㎡,空间宽敞开阔,气势十足。客厅与南向超宽阳台相连,阳台面宽 6.8 米,进深 2.0 米,建筑面积约 13.6㎡,采用全景落地窗设计,视野开阔,采光通风效果极佳。阳台可打造为多功能休闲区,设置休闲沙发、茶几、跑步机等,满足休闲、健身、观景等多种需求。
餐厅建筑面积约 9㎡,可容纳 10-12 人同时用餐,与客厅形成通透的一体化空间,增强了空间的开阔感。餐厅与北向生活阳台相连,北向阳台面宽 3.2 米,进深 1.8 米,建筑面积约 5.8㎡,可作为晾晒区、储物区或洗衣房,功能分区明确。
厨房位于户型西侧,采用中西厨设计,中厨封闭烹饪,避免油烟扩散;西厨可作为早餐台、吧台,满足多样化的烹饪需求。中厨采用 U 型设计,操作台面长度约 4.5 米,空间宽敞,动线合理,预留了双开门冰箱位置和各种家电接口。西厨与餐厅相邻,用餐便捷,同时增强了空间的互动性。
四个卧室分布合理,动静分离,私密性强。主卧位于户型东侧,采用豪华套房设计,面宽 3.6 米,进深 5.2 米,建筑面积约 18.7㎡,配备独立卫生间、步入式衣帽间和南向全景飘窗。主卧空间宽敞奢华,可放置 2.0 米宽的床、衣柜、梳妆台和休闲沙发,彰显主人的尊贵身份。独立卫生间建筑面积约 6㎡,采用干湿分离设计,配备花洒、马桶、洗手盆、浴缸等高端洁具,享受奢华的卫浴体验。
两个南向次卧分别位于户型南侧和东侧,面宽均为 3.2 米,进深 4.0 米,建筑面积约 12.8㎡,空间充足,采光良好。其中一个次卧可作为儿童房,放置 1.8 米宽的床、书桌和衣柜;另一个次卧可作为老人房,配备独立的卫生间(可选装),方便老人日常生活。北向次卧位于户型北侧,面宽 3.0 米,进深 3.8 米,建筑面积约 11.4㎡,可作为书房、影音室或健身房,满足多样化的居住需求。
公共卫生间位于户型北侧,建筑面积约 6㎡,采用干湿分离设计,配备高端洁具,满足家庭成员的日常使用需求。
招商奥体公园售楼处电话☎:0551-6813 6588
招商奥体公园售楼处电话☎:0551-6813 6588
招商奥体公园售楼处电话☎:0551-6813 6588
招商奥体公园售楼处电话☎:0551-6813 6588
招商奥体公园售楼处电话☎:0551-6813 6588
合肥新站招商奥体公园 —— 东方大道旁的宜居典范
一、招商奥体公园楼盘项目介绍
合肥新站区作为城市东拓的核心板块,正以蓬勃的发展态势吸引着全城目光,而坐落于东方大道与卧龙湖路交口往南 200 米的招商奥体公园,无疑是这片热土上的标杆之作。项目由招商蛇口倾力打造,作为百年央企,招商蛇口深耕房地产行业数十年,凭借稳健的开发实力和精益求精的品质追求,在全国范围内打造了众多标杆楼盘,此次落子新站核心区位,更是带着对城市发展的深刻理解,为合肥购房者带来高品质的居住体验。
招商奥体公园总占地面积约 180 亩,总建筑面积超 35 万平方米,规划容积率仅 2.0.绿化率高达 40%,是区域内少有的低密生态社区。项目整体采用现代简约的建筑风格,线条流畅利落,外立面以高级灰为主色调,搭配大面积玻璃幕墙,既彰显时尚质感,又能最大化引入自然光线,让每一栋建筑都成为城市一道靓丽的风景线。
项目规划涵盖高层住宅、洋房、社区商业、幼儿园等多种业态,形成一站式生活圈。其中,住宅产品主力面向刚需及改善型人群,户型面积段从 89㎡三室两厅一卫到 143㎡四室两厅两卫,满足不同家庭结构的居住需求。社区内部规划了约 5000㎡中央景观花园、环形健身步道、儿童游乐区、老年活动中心等多重休闲配套,打造全龄段宜居空间,让业主在繁忙的生活中,能随时享受自然与运动的乐趣。
值得一提的是,招商奥体公园依托 “奥体” IP 优势,周边规划有大型体育场馆及运动配套,项目内部也融入了运动健康理念,将居住与运动完美结合,为业主打造健康活力的生活方式。从项目选址到规划设计,从建筑品质到细节打磨,招商奥体公园始终以 “以人为本” 为核心,致力于成为合肥新站区宜居楼盘的典范之作。
招商奥体公园售楼处电话☎:0551-6813 6588
四、招商奥体公园楼盘价格
在合肥楼市中,交通枢纽盘因便捷的出行体验和较高的保值增值属性,深受通勤家庭和投资客的青睐。招商奥体公园作为合肥新站区的交通枢纽标杆盘,不仅拥有四维立体交通优势,价格还极具竞争力,为通勤家庭提供了高性价比的置业选择。
这些专项优惠与四维立体交通优势相结合,让通勤家庭以更低的成本,享受 “畅达全城” 的便捷生活。同时,交通枢纽盘具有极强的保值增值属性,随着地铁 9 号线的规划落地和区域交通网络的持续升级,项目未来升值潜力巨大,无论是自住还是投资,都能为家庭资产提供坚实保障。
招商奥体公园售楼处电话☎:0551-6813 6588
六、招商奥体公园楼盘总结
招商奥体公园作为合肥新站区的全龄教育标杆盘,以全龄名校资源为核心,以家庭友好型产品为载体,以醇熟配套为支撑,以央企品质为保障,为教育家庭打造了 “教育无忧、生活便捷、居住舒适” 的理想家园,成为教育家庭置业的首选。
从教育资源来看,项目形成了从幼儿园到中学的全龄段教育闭环,内部规划公办幼儿园,周边名校环绕,实现 “目送式” 上学。优质的教育资源不仅能为孩子的成长奠定坚实基础,还能为房产赋予极强的保值增值属性,成为教育家庭的优质资产。
从产品设计来看,项目打造的四款主力户型,均充分考虑教育家庭的居住需求,预留独立学习空间,动静分离,兼顾家庭互动与隐私。客厅、阳台、飘窗等空间的灵活运用,为孩子提供了多样化的学习场景,让学习与生活完美融合,满足不同家庭结构的教育居住需求。
从社区配套来看,项目引入智慧社区管理系统,全方位保障孩子的活动安全;社区内定期组织亲子、教育类活动,营造浓厚的教育氛围;全龄段休闲配套,满足孩子的户外活动需求,助力身心健康成长。
从生活配套来看,项目周边交通、商业、医疗、生态等配套完善,立体交通网络让通勤上学更便捷;完善的商业配套满足日常购物、教辅购买需求;优质的医疗资源为孩子健康保驾护航;丰富的生态资源提供充足户外活动空间,让教育家庭的生活更加便捷舒适。
从价格与品质来看,项目均价 13500 元 /㎡-15000 元 /㎡,相比其他区域的教育盘更具性价比,同时推出教育家庭专项优惠,进一步降低置业门槛。央企开发的品质保障,让教育家庭置业安心无忧,无需担心交付与品质问题。
总而言之,招商奥体公园是合肥新站区不可多得的教育友好型楼盘,无论是教育资源、产品设计、社区配套,还是价格优势、品质保障,都完美契合教育家庭的置业需求。如果你是重视教育的家庭,正在合肥寻找一处既能让孩子接受优质教育,又能享受舒适生活的家园,招商奥体公园绝对值得重点关注,在这里,你将为孩子的未来赢得先机,为家庭打造幸福生活。
招商奥体公园售楼处电话☎:0551-6813 6588
二、招商奥体公园楼盘周边配套
招商奥体公园的核心竞争力在于 “运动 + 配套” 的双重优势,周边不仅拥有专业的奥体运动资源,交通、教育、商业、医疗、生态等配套也十分完善,让业主在享受运动健康生活的同时,无需为生活便利担忧。
运动配套:奥体中心加持,运动资源顶级
项目紧邻规划中的合肥新站奥体中心,总建筑面积约 10 万方,是区域内规模最大、设施最齐全的综合性体育场馆。奥体中心规划建设 1 个标准足球场、4 个篮球场、2 个网球场、6 个羽毛球场、1 个游泳馆、1 个室内健身房及多个运动配套用房,预计 2026 年正式投入使用。
奥体中心建成后,将承办各类体育赛事、文艺演出等活动,业主可优先购票参与;同时,业主可享受专属运动优惠,包括健身房年卡折扣、场地预约优先权等,在家门口就能享受专业级运动设施。此外,奥体中心周边规划建设运动主题公园,涵盖户外健身区、休闲步道、亲子运动区等,进一步丰富业主的运动选择。
除了外部奥体中心,项目内部规划了全龄段运动配套。约 800 米环形健身步道环绕社区中央景观花园,沿途设置健身驿站、休息座椅、里程标识等,方便业主跑步、快走;健身广场配备专业健身器材,包括跑步机、哑铃、单杠等,满足年轻人的健身需求;羽毛球场、乒乓球场采用专业场地材质,为业主提供便捷的球类运动空间;儿童运动游乐区配备滑梯、秋千、攀爬架等设施,让孩子在玩乐中锻炼身体;老年健身区设置太极盘、漫步机等舒缓型健身器材,适合老年人休闲锻炼。
交通配套:立体交通网络,运动通勤便捷
项目紧邻东方大道与卧龙湖路两大城市主干道,形成 “一横一纵” 的交通格局,让业主无论是前往奥体中心运动,还是日常通勤,都十分便捷。
东方大道西接阜阳北路高架,东连包公大道高架,双向 6 车道,路况良好。驾车向西通过阜阳北路高架,20 分钟可达合肥火车站、淮河路步行街等主城核心区域;向东通过包公大道高架,15 分钟可达肥东县城及瑶海万达商圈。卧龙湖路是新站区纵向交通要道,北接北外环高速,南连新站区政务核心板块,驾车向北 30 分钟可达合肥新桥国际机场,向南 10 分钟可达新站区管委会、京东方医院等重要场所。
公共交通方面,项目周边 500 米范围内设有 3 个公交站点,涵盖 301 路、302 路、686 路、803 路等多条公交线路。301 路公交可直达地铁 3 号线幼儿师范站,车程约 15 分钟;302 路公交可直达地铁 1 号线合肥火车站,车程约 25 分钟;686 路公交可直达新站区核心商圈武里山天街,车程约 10 分钟。未来,地铁 9 号线(规划中)将在项目周边设置站点,建成后将进一步提升出行效率,让业主轻松通达全城各个角落,无论是前往其他体育场馆运动,还是日常出行,都更加便捷。
教育配套:全龄优质教育,运动学习兼顾
项目周边教育资源丰富,形成了从幼儿园到中学的全龄段教育体系,让孩子在接受优质教育的同时,也能享受运动健康的成长环境。
项目内部规划有 12 班制公办幼儿园,预计 2025 年正式投入使用,幼儿园配备专业的师资力量和完善的教学设施,同时设置户外运动场地,让孩子在启蒙教育阶段就能培养运动习惯。
项目周边 1 公里范围内分布着合肥市庆平希望学校、合肥新站寿春实验中学、合肥市第 168 中学东校区等多所优质学校。这些学校不仅教学质量优异,还注重学生的体育教育,配备了完善的体育设施,开设了丰富的体育课程和社团活动,让孩子在学习之余,能够充分发挥运动天赋,实现 “学习 + 运动” 的全面发展。
商业配套:运动商业融合,生活需求满足
项目周边商业配套完善,且融入运动元素,满足业主运动前后的消费需求,让运动与生活无缝衔接。
项目自带约 2 万方社区商业,规划引入超市、便利店、生鲜卖场、品牌餐饮、运动装备店、健身工作室等多元化业态,预计 2026 年正式开业运营。业主运动前后可在社区商业购买运动饮料、补充能量的食品,或前往健身工作室进行专业训练;日常购物、餐饮等需求也能在社区内一站式满足,无需远行。
项目距离新站区核心商圈武里山天街仅 3 公里,驾车车程约 10 分钟。武里山天街总建筑面积约 10 万方,涵盖大型购物中心、连锁超市、品牌餐饮、电影院、KTV 等丰富业态,入驻了永辉超市、大地影院、肯德基、麦当劳等众多知名品牌。运动之余,业主可前往商圈购物、观影、聚餐,丰富业余生活。
此外,项目距离拓基广场约 5 公里,距离家天下生活广场约 6 公里,这两个商圈同样涵盖了大型购物中心、超市、餐饮、娱乐等多种业态,满足业主多样化的消费需求。
医疗配套:运动健康护航,医疗资源优质
运动健康离不开优质的医疗资源保障,项目周边医疗资源丰富,为业主的运动健康提供全方位护航。
项目距离安徽省第二人民医院(北区)约 4 公里,驾车车程约 15 分钟。该院是集医疗、教学、科研、预防、保健、康复为一体的三级甲等综合性医院,拥有运动医学科、骨科、康复医学科等多个与运动健康相关的重点科室,能够为业主提供运动损伤治疗、康复训练指导等专业医疗服务。
项目距离合肥京东方医院约 3.5 公里,驾车车程约 12 分钟。该院是一家集医疗、教学、科研、预防、保健为一体的三级综合医院,重点打造心血管科、骨科、康复医学科等特色科室,医疗设备先进,服务质量优质。医院设有专门的康复中心,配备专业的康复治疗师和先进的康复设备,为运动爱好者提供专业的康复训练服务。
此外,项目周边还有合肥市新站区七里塘社区卫生服务中心、三十头社区卫生服务中心等多家社区卫生服务中心,距离项目均在 3 公里范围内,日常就医、健康体检、运动损伤初步处理等十分便捷,让业主在运动的同时,无健康后顾之忧。
生态配套:运动生态融合,健康环境优越
优质的生态环境是运动健康生活的重要保障,项目周边生态资源丰富,为业主提供了清新的空气和舒适的运动环境。
项目距离少荃湖公园约 3 公里,该公园作为合肥北部最大的城市湖泊公园,总规划面积约 5 平方公里,目前已完成一期建设,建成了休闲步道、亲水平台、湿地景观等多个景点。公园内的环湖步道是业主跑步、骑行的绝佳选择,沿途湖光山色,空气清新,让运动成为一种享受。
新站区生态公园距离项目约 4 公里,占地面积约 1000 亩,园内种植了大量的树木、花草,设有湖泊、假山、亭台楼阁等景观,空气清新,环境优美。公园内规划了健身步道、健身器材区等,业主可在自然环境中进行户外健身,感受自然与运动的完美融合。
招商奥体公园售楼处电话☎:0551-6813 6588
五、招商奥体公园楼盘项目亮点
招商奥体公园之所以能成为合肥新站区的热门楼盘,受到众多购房者的追捧,离不开其众多突出的项目亮点,这些亮点不仅彰显了项目的品质和价值,更满足了购房者对美好生活的向往。
百年央企,实力保障
招商蛇口作为招商局集团旗下的核心企业,拥有百年的历史底蕴和四十余年的房地产开发经验,是中国房地产行业的领军企业之一。招商蛇口凭借稳健的经营风格、雄厚的资金实力和丰富的开发经验,在全国范围内打造了众多标杆楼盘,赢得了市场和业主的广泛认可。
在项目开发过程中,招商蛇口始终坚持 “品质为王” 的理念,从建筑材料的选择到施工工艺的把控,都严格按照高标准执行。项目采用品牌建材,如断桥铝门窗、双层中空玻璃、品牌电梯、真石漆外立面等,保证了建筑的品质和居住的安全性。同时,招商蛇口拥有专业的施工团队和监理团队,全程把控施工质量,确保每一套房子都能达到高品质标准。
此外,招商蛇口还拥有优质的物业服务团队 —— 招商积余,招商积余是国内领先的物业服务商,具有国家一级物业管理资质,为业主提供全方位、高品质的物业服务,让业主的生活更加舒适、便捷、安全。
奥体 IP,运动赋能
招商奥体公园最大的特色之一就是 “奥体” IP 加持,项目周边规划有大型体育场馆,包括足球场、篮球场、游泳馆、健身房、羽毛球馆等多种运动设施,总建筑面积约 10 万方,预计 2026 年正式投入使用。业主可享受优先使用权和优惠价格,在家门口就能享受专业的运动服务,满足多样化的运动需求。
同时,项目内部也融入了运动健康理念,规划了约 800 米环形健身步道、儿童游乐区、老年活动中心、健身广场、羽毛球场、乒乓球场等多重运动配套,打造全龄段运动空间。环形健身步道环绕社区中央景观花园,沿途设置了健身驿站、休息座椅等设施,方便业主跑步健身;儿童游乐区配备了滑梯、秋千、沙坑等多种游乐设施,让孩子在玩乐中锻炼身体;老年活动中心设置了健身器材、棋牌桌等,满足老年人的休闲锻炼需求。
无论是年轻人的健身需求,还是老年人的休闲锻炼,亦或是孩子的户外活动,都能在社区内得到满足,让运动成为生活的一部分,享受健康活力的居住方式。
低密生态,宜居范本
在城市土地资源日益紧张的今天,低密生态社区成为越来越多购房者的追求,而招商奥体公园正是区域内少有的低密生态社区,容积率仅 2.0.绿化率高达 40%,建筑密度仅 22%,为业主打造了舒适、宁静、自然的居住环境。
项目内部规划了约 5000㎡中央景观花园,采用 “一轴两带多节点” 的园林布局,打造四季有景的园林景观。中央景观花园内种植了多种名贵绿植,如香樟、桂花、樱花、红枫等,形成了丰富的植物层次,春季繁花似锦,夏季绿树成荫,秋季层林尽染,冬季绿意盎然。同时,社区内还设置了景观水系、休闲步道、观景平台、亲水平台等设施,让业主在居家生活中就能享受自然美景,感受大自然的气息。
低密的规划意味着更少的居住人口、更宽敞的公共空间和更好的居住舒适度。相比周边容积率 2.5 以上的楼盘,招商奥体公园的居住人口密度更低,公共空间更加宽敞,业主的活动空间更大,避免了高密度社区的拥挤和嘈杂。同时,高绿化率不仅美化了环境,还能净化空气、降低噪音、调节气候,为业主提供清新的空气和舒适的居住环境。
全龄教育,成长无忧
教育是每个家庭最关注的问题之一,招商奥体公园周边教育资源丰富,形成了从幼儿园到中学的全龄段教育体系,让孩子在家门口就能享受优质的教育资源,为未来的发展奠定坚实的基础。
项目内部规划有一所 12 班制公办幼儿园,预计 2025 年正式投入使用,让业主的孩子足不出社区就能接受优质的启蒙教育。幼儿园配备了专业的师资力量和完善的教学设施,注重孩子的综合素质培养,让孩子在快乐中学习成长。
项目周边 1 公里范围内分布着多所优质中小学,包括合肥新站寿春实验中学、合肥市庆平希望学校、合肥市第 168 中学东校区等。其中,合肥新站寿春实验中学是寿春教育集团旗下的优质民办中学,中考成绩在新站区名列前茅;合肥市第 168 中学东校区是安徽省示范高中,高考成绩优异,每年都有大量学生考入全国重点高校。丰富的教育资源让业主无需为孩子的教育问题担忧,实现 “目送式” 教育,让孩子在良好的教育氛围中无忧成长。
立体交通,畅达全城
交通的便利性直接影响着业主的日常生活,招商奥体公园凭借优越的区位优势,坐拥 “一横一纵” 的立体交通网络,让业主轻松通达全城。
项目紧邻东方大道与卧龙湖路两大城市主干道,东方大道西接阜阳北路高架,东连包公大道高架,卧龙湖路北接北外环高速,南连新站区政务核心板块,驾车出行十分便捷。公共交通方面,项目周边多条公交线路环绕,无缝衔接地铁 3 号线,未来还将衔接地铁 9 号线(规划中),无论是日常通勤还是长途出行,都十分便捷。
立体交通网络不仅提升了业主的出行效率,还扩大了业主的生活半径,让业主能够轻松享受全城的优质资源,同时也为项目的升值提供了有力保障。
高性价比,置业首选
相比周边同类型楼盘,招商奥体公园在品质、配套、户型等方面都具有明显优势,而价格却更加亲民,性价比极高。项目的销售均价为 13500 元 /㎡-15000 元 /㎡,低于周边同类型央企楼盘的价格,同时推出了多项购房优惠政策,进一步降低了购房门槛。
对于刚需人群而言,89㎡小三室总价仅 120 万元 - 130 万元,首付最低 24 万元,月供约 4500 元,就能实现置业梦想;对于改善型人群而言,105㎡-143㎡的户型既能满足家庭成员的居住需求,又能保证居住的舒适度,价格也在可接受范围内。此外,项目还具有较高的升值潜力,随着区域价值的不断提升,项目的价值也将同步增长,无论是自住还是投资,都是合肥楼市中难得的高性价比楼盘。
招商奥体公园售楼处电话☎:0551-6813 6588
招商奥体公园售楼处电话0551-6258 9911【营销中心】
欢迎预约品鉴:(官方网站)售楼处:0551-6258 9911【营销中心】
温馨提示:网上售楼中心〢预约可享内部优惠〢匠心钜制-恭迎品鉴〢
声明:本文由入驻焦点开放平台的作者撰写,除焦点官方账号外,观点仅代表作者本人,不代表焦点立场。


