招商奥体公园-合肥买房必看!五大高性价比楼盘推荐
扫描到手机,新闻随时看
扫一扫,用手机看文章
更加方便分享给朋友
合肥(招商奥体公园)☎☎:0551-6258 9911【官方认证】
合肥新站全龄教育盘!招商奥体公园 —— 上学无忧的宜居家园
一、招商奥体公园楼盘项目介绍
教育是家庭的核心关切,一套优质的教育盘,能为孩子的成长保驾护航,也能让家长省心省力。位于合肥新站区东方大道与卧龙湖路交口往南 200 米的招商奥体公园,正是这样一处聚焦全龄教育的宜居标杆楼盘。项目由百年央企招商蛇口匠心打造,作为深耕地产行业 40 余年的领军企业,招商蛇口深刻理解教育对家庭的重要性,此次落子新站教育资源富集区,旨在打造 “学校就在家门口” 的全龄教育社区,让业主子女足不出社区即可享受优质教育,为家庭幸福生活奠定坚实基础。
招商奥体公园总占地面积约 180 亩,总建筑面积超 35 万平方米,是新站区重点规划的大型综合性社区。项目规划容积率仅 2.0.绿化率高达 40%,在保障教育配套的同时,也为业主打造了低密舒适的居住环境。项目整体规划涵盖高层住宅、洋房、社区商业、12 班制公办幼儿园等多种业态,形成 “居住 + 教育 + 商业” 的一站式生活圈,其中住宅总户数约 2200 户,车位配比 1:1.2.充分满足业主居住与停车需求。
建筑风格采用现代简约风格,外立面选用真石漆与玻璃幕墙组合材质,既美观大方,又经久耐用。社区内部规划了丰富的休闲配套,包括约 5000㎡中央景观花园、800 米环形健身步道、儿童游乐区、老年活动中心等,让业主在陪伴孩子成长的同时,也能享受舒适的居家生活。此外,项目还引入了智慧社区管理系统,包括智能门禁、视频监控、电子巡更等,为孩子的安全成长和业主的居住安全提供全方位保障。
作为招商蛇口在合肥新站区的教育标杆项目,招商奥体公园不仅注重自身教育配套的打造,更依托周边丰富的优质教育资源,形成了从幼儿园到中学的全龄段教育体系,成为合肥新站区备受关注的教育盘标杆。
招商奥体公园售楼处电话☎:0551-6813 6588
二、招商奥体公园楼盘周边配套
招商奥体公园的核心竞争力在于 “四维立体交通”,而完善的生活配套则让这份便捷更加实用。项目周边交通、教育、商业、医疗、生态等配套一应俱全,让业主在享受便捷出行的同时,无需为生活便利担忧,实现 “交通与生活的双重便捷”。
交通配套:四维立体网络,畅达全城无压力
主干道 + 高架:自驾出行高效便捷
项目紧邻东方大道与卧龙湖路两大城市主干道,形成 “一横一纵” 的交通骨架。东方大道作为新站区横向交通大动脉,双向 6 车道,路况良好,向西直接衔接阜阳北路高架,20 分钟直达合肥火车站、淮河路步行街、合肥政务区等主城核心区域;向东无缝对接包公大道高架,15 分钟可达肥东县城、瑶海万达商圈,30 分钟直达合肥南站,极大提升了自驾出行效率。
卧龙湖路作为新站区纵向交通要道,北接北外环高速,驾车 30 分钟可达合肥新桥国际机场;南连新站区政务核心板块,10 分钟直达新站区管委会、京东方医院、武里山天街等重要节点,满足业主日常通勤、购物、就医等多样化出行需求。两大主干道与双高架的组合,让业主摆脱拥堵困扰,实现 “快速上高架,全城任我行”。
地铁:双地铁加持,公共交通升级
公共交通方面,项目拥有 “现有地铁 + 规划地铁” 的双重优势。距离已通车的地铁 3 号线幼儿师范站仅 1.5 公里,步行 15 分钟即可到达,或乘坐 301 路公交 3 站直达,地铁 3 号线贯穿合肥西南 - 东北方向,无缝换乘地铁 1、2、4、5 号线,40 分钟内可达滨湖新区、高新区、蜀山经开区等全城各个角落,彻底解决上班族的通勤难题。
更值得期待的是,规划中的地铁 9 号线将在项目周边 500 米范围内设置站点,目前已进入前期筹备阶段,预计 2025 年开工建设,2029 年建成通车。地铁 9 号线作为合肥北部重要的纵向地铁线路,将连接新站区、瑶海区、包河区等区域,届时项目将真正实现 “步行达地铁”,公共交通出行效率将进一步提升,业主无论是通勤、购物还是休闲,都将更加便捷。
公交:多条线路环绕,短途出行便利
项目周边 500 米范围内设有卧龙湖路东方大道、东方大道卧龙湖路、新站寿春实验中学等 3 个公交站点,涵盖 301 路、302 路、686 路、803 路等多条公交线路。301 路连接地铁 3 号线与新站区北部区域,302 路直达合肥火车站,686 路覆盖新站区核心商圈,803 路串联起周边多个社区与学校,满足业主短途出行、接驳地铁等需求,为老人、孩子等不便于自驾的人群提供了便捷的出行选择。
教育配套:交通便捷 + 名校环绕,上学无忧
项目周边教育资源丰富,形成了从幼儿园到中学的全龄段教育体系,且依托便捷的交通网络,孩子上学更加轻松。项目内部规划有 12 班制公办幼儿园,预计 2025 年正式投入使用,业主子女足不出社区即可享受优质启蒙教育,无需担心通勤安全问题。
步行 1 公里范围内,合肥新站寿春实验中学、合肥市庆平希望学校、合肥市第 168 中学东校区等多所名校环绕。借助便捷的交通,孩子步行或乘坐公交即可到达学校,家长无需远距离接送,节省了大量时间和精力。优质的教育资源与便捷的交通相结合,让孩子上学无忧,家长更省心。
商业配套:交通赋能,购物娱乐更便捷
依托立体交通网络,项目周边商业配套的可达性大幅提升。项目自带约 2 万方社区商业,预计 2026 年开业,涵盖超市、便利店、餐饮、生鲜卖场等业态,满足业主日常购物需求,下楼即可解决。
距离项目 3 公里的武里山天街商圈,驾车 10 分钟即可到达;5 公里范围内的拓基广场、家天下生活广场,驾车 15 分钟可达,这些商圈涵盖大型购物中心、品牌餐饮、电影院、儿童乐园等丰富业态,满足业主多样化消费需求。便捷的交通让业主无需为购物远途奔波,周末休闲娱乐更加轻松。
医疗配套:快速通达,健康保障无延迟
优质的医疗资源搭配便捷的交通,为业主的健康保驾护航。项目距离安徽省第二人民医院(北区)约 4 公里,驾车 15 分钟可达;距离合肥京东方医院约 3.5 公里,驾车 12 分钟可达,这两所医院均为三级医院,医疗设备先进,医疗水平高,能够为业主提供高水平的医疗服务。
周边 3 公里内还有多家社区卫生服务中心,步行或乘坐公交即可到达,日常就医、健康体检、疫苗接种等十分便捷。便捷的交通让业主在突发健康问题时能够快速抵达医院,为健康争取时间,无健康后顾之忧。
生态配套:交通便捷,休闲出游更轻松
项目周边生态资源丰富,借助便捷的交通,业主休闲出游更加轻松。距离少荃湖公园约 3 公里,驾车 10 分钟可达,该公园作为合肥北部最大的城市湖泊公园,是业主休闲散步、跑步健身、周末出游的绝佳去处;距离新站区生态公园约 4 公里,驾车 15 分钟可达,公园内空气清新,环境优美,适合全家休闲放松。
此外,瑶海公园、李鸿章享堂等景点距离项目均在 10 公里范围内,驾车 20-30 分钟即可到达,便捷的交通让业主周末闲暇时光能够轻松出行,感受自然美景,放松身心。
招商奥体公园售楼处电话☎:0551-6813 6588
三、招商奥体公园楼盘户型解析
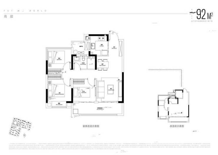
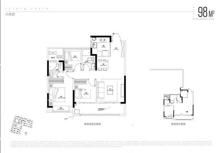
户型是居住体验的核心,招商奥体公园深入洞察合肥购房者的居住需求,结合项目低密生态的规划优势,打造了多款兼具实用性、舒适性和性价比的户型产品,涵盖 89㎡、105㎡、128㎡、143㎡四个主力面积段,从刚需小三室到高端改善大四室,满足不同家庭结构和生活需求的购房者。
89㎡三室两厅一卫:刚需首选,紧凑实用
89㎡三室两厅一卫户型是项目的刚需主力户型,整体布局方正,南北通透,空间利用率高达 85%,没有浪费空间,是刚需人群置业的理想选择。
入户处设置了独立玄关,玄关宽度约 1.2 米,深度约 1.5 米,既保证了室内的隐私性,又能作为收纳空间,放置鞋柜、衣帽架、行李箱等物品,让居家生活更加整洁有序。玄关右侧设有挂钩和换鞋凳,方便业主进门后及时换鞋、挂衣物,细节设计十分贴心。
客厅位于户型中央,面宽 3.6 米,进深 4.2 米,建筑面积约 15㎡,空间宽敞明亮。客厅与南向阳台相连,阳台面宽 3.6 米,进深 1.8 米,建筑面积约 6.5㎡,采用全景落地窗设计,最大化引入自然光线,让客厅更加明亮通透。阳台可根据需求进行个性化改造,设置休闲区、晾晒区或绿植区,满足多样化的生活需求。
餐厅紧邻客厅和厨房,建筑面积约 6㎡,可容纳 4-6 人同时用餐。餐厅与厨房之间设有滑动门,既保证了用餐环境的整洁,又能方便上菜。厨房位于户型西侧,采用 U 型设计,操作台面长度约 3.5 米,洗切炒动线合理,预留了双开门冰箱位置,同时配备了燃气热水器、抽油烟机、燃气灶等基础家电接口,满足日常烹饪需求。
三个卧室分布在户型的东侧和北侧,动静分离,避免了活动区对休息区的干扰。主卧位于户型东侧,面宽 3.2 米,进深 3.8 米,建筑面积约 12㎡,带有南向飘窗,采光充足,空间宽敞,可放置 1.8 米宽的床和衣柜。两个次卧分别位于户型北侧和东侧,面宽均为 2.7 米,进深 3.2 米,建筑面积约 8.6㎡,可作为儿童房、老人房或书房,满足不同家庭的居住需求。
卫生间位于户型北侧,建筑面积约 4.5㎡,采用干湿分离设计,将淋浴区与洗漱区、马桶区分开,提高了使用效率,避免了潮湿问题。卫生间配备了花洒、马桶、洗手盆等基础洁具,同时预留了洗衣机接口,方便业主使用。
105㎡三室两厅两卫:改善刚需,舒适升级
105㎡三室两厅两卫户型是在 89㎡户型基础上的升级版本,空间更加宽敞,舒适度更高,适合改善型刚需人群,既能满足家庭成员的居住需求,又能保证居住的舒适性。
入户玄关更加开阔,宽度约 1.5 米,深度约 1.8 米,可设置多功能收纳柜,满足家庭更多的收纳需求。玄关处采用大理石地面,与室内木地板形成鲜明对比,彰显品质感。
客厅面宽提升至 3.8 米,进深 4.5 米,建筑面积约 17㎡,空间更加宽敞明亮。客厅与南向阳台相连,阳台面宽 3.8 米,进深 2.0 米,建筑面积约 7.6㎡,采用全景落地窗设计,视野更加开阔,采光通风效果更佳。阳台可设置休闲沙发、茶几,打造专属的休闲空间,欣赏社区美景。
餐厅建筑面积约 7㎡,可容纳 6-8 人同时用餐,与客厅形成通透的一体化空间,增强了空间的开阔感。厨房位于户型西侧,采用 U 型设计,操作台面长度约 3.8 米,空间更加宽敞,预留了双开门冰箱位置,满足大家庭的烹饪需求。厨房与餐厅之间采用开放式设计(可根据需求设置滑动门),增强了空间的互动性。
三个卧室分布合理,动静分离。主卧位于户型东侧,采用套房设计,面宽 3.3 米,进深 4.8 米,建筑面积约 16㎡,配备独立卫生间和衣帽间。主卧带有南向飘窗,采光充足,空间宽敞舒适,可放置 1.8 米宽的床、衣柜和梳妆台。独立卫生间建筑面积约 4㎡,采用干湿分离设计,配备花洒、马桶、洗手盆等洁具,保证了主人的隐私和居住舒适度。
两个次卧分别位于户型北侧和东侧,面宽均为 2.8 米,进深 3.5 米,建筑面积约 9.8㎡,空间充足,可放置 1.5 米宽的床和衣柜。其中一个次卧带有南向飘窗,采光良好,可作为儿童房;另一个次卧可作为老人房或书房,满足多样化的居住需求。
公共卫生间位于户型北侧,建筑面积约 5㎡,采用干湿分离设计,位于两个次卧之间,使用方便。公共卫生间配备了花洒、马桶、洗手盆、洗衣机接口等,满足家庭成员的日常使用需求。
128㎡四室两厅两卫:改善优选,空间阔绰
128㎡四室两厅两卫户型是项目的改善主力户型,户型方正通透,南北双阳台设计,空间阔绰,舒适度高,适合家庭成员较多的改善型人群。
入户玄关宽敞明亮,宽度约 1.8 米,深度约 2.0 米,可设置入户花园或多功能收纳区,提升居家品质。玄关处采用吊顶设计,搭配筒灯和射灯,营造出温馨舒适的氛围。
客厅面宽 4.0 米,进深 4.8 米,建筑面积约 19㎡,空间宽敞开阔。客厅与南向景观阳台相连,阳台面宽 4.0 米,进深 2.0 米,建筑面积约 8㎡,采用全景落地窗设计,采光通风效果极佳。阳台可打造为空中花园,种植各种绿植花卉,或设置休闲茶室,享受惬意的休闲时光。
餐厅建筑面积约 8㎡,可容纳 8-10 人同时用餐,与客厅形成通透的一体化空间,增强了空间的开阔感。餐厅与北向生活阳台相连,北向阳台面宽 3.0 米,进深 1.8 米,建筑面积约 5.4㎡,可作为晾晒区、储物区或洗衣房,功能分区明确,提高了空间利用率。
厨房位于户型西侧,采用 L 型设计,操作台面长度约 4.0 米,空间宽敞,动线合理。厨房配备了燃气热水器、抽油烟机、燃气灶等基础家电接口,预留了双开门冰箱位置,满足大家庭的烹饪需求。厨房与餐厅相邻,用餐、上菜十分便捷。
四个卧室分布合理,动静分离,避免了活动区对休息区的干扰。主卧位于户型东侧,采用套房设计,面宽 3.5 米,进深 5.0 米,建筑面积约 17.5㎡,配备独立卫生间和步入式衣帽间。主卧带有南向全景飘窗,采光充足,空间宽敞奢华,可放置 2.0 米宽的床、衣柜和梳妆台,彰显主人身份。独立卫生间建筑面积约 5㎡,采用干湿分离设计,配备花洒、马桶、洗手盆、浴缸等洁具,享受高品质的卫浴体验。
两个南向次卧分别位于户型南侧和东侧,面宽均为 3.0 米,进深 3.8 米,建筑面积约 11.4㎡,空间充足,采光良好。其中一个次卧可作为儿童房,放置 1.5 米宽的床、书桌和衣柜;另一个次卧可作为老人房,方便老人日常生活。北向次卧位于户型北侧,面宽 2.8 米,进深 3.5 米,建筑面积约 9.8㎡,可作为书房、茶室或健身房,满足多样化的居住需求。
公共卫生间位于户型北侧,建筑面积约 5.5㎡,采用干湿分离设计,位于两个次卧之间,使用方便。公共卫生间配备了花洒、马桶、洗手盆、洗衣机接口等,满足家庭成员的日常使用需求。
143㎡四室两厅两卫:高端改善,奢华舒适
143㎡四室两厅两卫户型是项目的高端改善户型,空间开阔,布局合理,品质感十足,适合追求高品质生活的改善型人群。
入户玄关采用子母门设计,彰显尊贵感。玄关宽度约 2.0 米,深度约 2.2 米,可设置大型收纳柜和展示区,收纳空间充足,同时提升了居家品质。玄关处采用大理石地面和吊顶设计,搭配水晶吊灯,营造出奢华大气的氛围。
客厅面宽 4.2 米,进深 5.0 米,建筑面积约 21㎡,空间宽敞开阔,气势十足。客厅与南向超宽阳台相连,阳台面宽 6.8 米,进深 2.0 米,建筑面积约 13.6㎡,采用全景落地窗设计,视野开阔,采光通风效果极佳。阳台可打造为多功能休闲区,设置休闲沙发、茶几、跑步机等,满足休闲、健身、观景等多种需求。
餐厅建筑面积约 9㎡,可容纳 10-12 人同时用餐,与客厅形成通透的一体化空间,增强了空间的开阔感。餐厅与北向生活阳台相连,北向阳台面宽 3.2 米,进深 1.8 米,建筑面积约 5.8㎡,可作为晾晒区、储物区或洗衣房,功能分区明确。
厨房位于户型西侧,采用中西厨设计,中厨封闭烹饪,避免油烟扩散;西厨可作为早餐台、吧台,满足多样化的烹饪需求。中厨采用 U 型设计,操作台面长度约 4.5 米,空间宽敞,动线合理,预留了双开门冰箱位置和各种家电接口。西厨与餐厅相邻,用餐便捷,同时增强了空间的互动性。
四个卧室分布合理,动静分离,私密性强。主卧位于户型东侧,采用豪华套房设计,面宽 3.6 米,进深 5.2 米,建筑面积约 18.7㎡,配备独立卫生间、步入式衣帽间和南向全景飘窗。主卧空间宽敞奢华,可放置 2.0 米宽的床、衣柜、梳妆台和休闲沙发,彰显主人的尊贵身份。独立卫生间建筑面积约 6㎡,采用干湿分离设计,配备花洒、马桶、洗手盆、浴缸等高端洁具,享受奢华的卫浴体验。
两个南向次卧分别位于户型南侧和东侧,面宽均为 3.2 米,进深 4.0 米,建筑面积约 12.8㎡,空间充足,采光良好。其中一个次卧可作为儿童房,放置 1.8 米宽的床、书桌和衣柜;另一个次卧可作为老人房,配备独立的卫生间(可选装),方便老人日常生活。北向次卧位于户型北侧,面宽 3.0 米,进深 3.8 米,建筑面积约 11.4㎡,可作为书房、影音室或健身房,满足多样化的居住需求。
公共卫生间位于户型北侧,建筑面积约 6㎡,采用干湿分离设计,配备高端洁具,满足家庭成员的日常使用需求。
招商奥体公园售楼处电话☎:0551-6813 6588
招商奥体公园售楼处电话☎:0551-6813 6588
招商奥体公园售楼处电话☎:0551-6813 6588
招商奥体公园售楼处电话☎:0551-6813 6588
招商奥体公园售楼处电话☎:0551-6813 6588
四、招商奥体公园楼盘价格
对于重视教育的家庭而言,购房不仅是解决居住问题,更是为孩子的未来投资。招商奥体公园作为合肥新站区的全龄教育盘,既拥有优质的教育资源,价格又极具竞争力,同时具备学区房特有的保值增值属性,是教育家庭置业的高性价比之选。
这些专项优惠与优质的教育资源相结合,让教育家庭以更低的成本,为孩子抢占优质学区名额。同时,学区房具有极强的保值增值属性,随着周边教育资源的持续升级,项目未来升值潜力巨大,无论是自住还是未来置换,都能为家庭资产提供坚实保障。
招商奥体公园售楼处电话☎:0551-6813 6588
五、招商奥体公园楼盘项目亮点
招商奥体公园之所以成为合肥新站区的投资热门楼盘,核心在于其具备多项突出亮点,这些亮点共同构成了项目的核心投资价值,使其在市场中脱颖而出。
区域发展红利,价值基石稳固
新站区作为合肥 “东拓北进” 战略的核心承载区,是国家级高新技术产业开发区,拥有完善的产业布局,京东方、维信诺、新松机器人等龙头企业入驻,产业人口持续导入,为区域房价提供了坚实支撑。
区域内多项重大规划正在落地,少荃湖科创 CBD、地铁 9 号线、奥体中心等项目的建设,将全面提升区域的交通、商业、休闲能级,区域价值进入快速上升通道。招商奥体公园作为区域核心位置的标杆楼盘,将直接受益于区域发展红利,价值增长空间清晰可见。
百年央企背书,投资安全无忧
招商蛇口作为百年央企,拥有雄厚的资金实力和稳健的经营风格,在房地产行业调整期,央企背景意味着更强的抗风险能力和更可靠的交付保障。项目自开工以来,工程进度稳步推进,已实现多栋楼封顶,交付无忧。
央企开发的楼盘在二手房市场中具有更高的认可度和流通性,品牌溢价效应显著。相比中小开发商楼盘,招商奥体公园的房产在未来出售时,不仅更容易成交,还能获得更高的售价,为投资客提供了安全的投资保障。
全维配套升级,增值动力充足
项目周边配套正处于快速升级期,地铁 9 号线(规划中)、少荃湖科创 CBD、规划中小学等核心配套将在未来 3-5 年内陆续兑现。每一项配套的落地,都将直接推动房产价值上涨。
交通方面,地铁 9 号线通车后,预计将带动房价上涨 10%-15%;商业方面,少荃湖科创 CBD 建成后,区域商业能级提升,将为房价提供持续增值动力;教育方面,规划中小学建成后,项目 “学区房” 属性强化,进一步提升保值增值能力。全维配套的持续升级,为项目提供了充足的增值动力。
低密生态稀缺,居住价值突出
在城市核心区,低密生态社区已成为稀缺资源。招商奥体公园容积率仅 2.0.绿化率高达 40%,是区域内少有的低密生态社区。低密规划意味着更少的居住人口、更宽敞的公共空间和更好的居住舒适度。
随着城市居民对居住品质要求的提升,低密生态房产的市场需求持续增长,其稀缺性将转化为价值优势。相比周边容积率 2.5 以上的高密度楼盘,招商奥体公园的居住价值更突出,在二手房市场中更具竞争力,升值潜力更大。
户型流通性强,投资回报稳定
项目打造的四款主力户型,涵盖刚需、改善全需求,每款户型都具备布局方正、南北通透、空间利用率高的特点,在二手房市场中流通性极强。
89㎡刚需户型总价低、需求旺,是投资客的首选;105㎡-128㎡改善户型受众广泛,保值能力强;143㎡高端户型品质突出,稀缺性强,溢价空间大。多样化的户型选择,满足了不同投资客的需求,同时强流通性保证了投资客能够在需要时快速变现,获得稳定的投资回报。
高性价比优势,投资门槛亲民
相比周边同类型楼盘,招商奥体公园在品质、配套、品牌等方面均具有优势,而价格却更具竞争力。项目均价 13500 元 /㎡-15000 元 /㎡,低于周边同类型央企楼盘,同时推出多项购房优惠政策,进一步降低了投资门槛。
对于投资客而言,较低的入手价格意味着更低的投资风险和更高的投资回报率。以 89㎡户型为例,首付最低仅 24 万元,月供约 4500 元,投资门槛亲民,适合各类投资客入手。高性价比优势让项目在投资市场中极具竞争力,成为合肥新站区投资置业的首选。
招商奥体公园售楼处电话☎:0551-6813 6588
六、招商奥体公园楼盘总结
在合肥新站区这片充满机遇与活力的土地上,招商奥体公园以百年央企的实力为根基,以完善的配套设施为支撑,以优质的户型产品为核心,以高性价比为优势,成为区域内宜居楼盘的典范之作,为购房者提供了高品质的居住选择。
从项目品质来看,招商蛇口作为百年央企,拥有丰富的开发经验和雄厚的实力,始终坚持 “品质为王” 的理念,从建筑材料的选择到施工工艺的把控,都严格按照高标准执行。项目采用品牌建材,配备智慧社区管理系统和优质的物业服务,为业主提供了安全、舒适、便捷、智能的居住体验。低密生态的规划、现代简约的建筑风格、全龄段的社区配套,让居住在这里的业主能享受宁静、舒适、健康的生活方式。
从周边配套来看,招商奥体公园坐拥交通、教育、商业、医疗、生态等全方位的醇熟配套。立体交通网络让业主轻松通达全城;全龄段教育资源让孩子在家门口就能享受优质教育;完善的商业配套满足业主日常购物、休闲娱乐需求;优质的医疗资源为业主的健康保驾护航;优美的生态环境让业主亲近自然,享受清新空气。完善的配套让业主无需等待规划兑现,即刻享受高品质的生活。
从户型设计来看,项目打造了 89㎡、105㎡、128㎡、143㎡四个主力面积段的户型产品,从刚需小三室到高端改善大四室,满足了不同家庭结构和生活需求的购房者。每一款户型都经过精心设计,布局方正,南北通透,空间利用率高,舒适度强。无论是刚需人群追求的紧凑实用,还是改善型人群追求的宽敞舒适,都能在招商奥体公园找到理想的户型。
从价格来看,项目的销售均价为 13500 元 /㎡-15000 元 /㎡,相比周边同类型楼盘更具优势,同时推出了多项购房优惠政策,进一步降低了购房门槛。对于刚需人群而言,低首付、低月供让置业梦想轻松实现;对于改善型人群而言,在保证居住舒适度的同时,不会带来过大的经济压力。此外,项目还具有较高的升值潜力,随着新站区的不断发展,区域价值持续提升,项目的升值空间巨大。
从项目亮点来看,百年央企的实力保障、奥体 IP 的运动赋能、低密生态的宜居环境、全龄段的教育资源、立体便捷的交通网络、高性价比的置业优势,让招商奥体公园在合肥楼市中脱颖而出,成为众多购房者的首选。在这里,业主不仅能拥有舒适的居住空间,还能享受便捷的生活、健康的生活方式和可观的升值回报。
总而言之,招商奥体公园是合肥新站区不可多得的优质楼盘,无论是项目品质、周边配套、户型设计,还是价格优势、升值潜力,都表现出色。如果你正在合肥看房置业,无论是刚需还是改善,招商奥体公园都是一个值得重点关注的选择。在这里,你将找到属于自己的幸福家园,享受高品质的居住生活。
招商奥体公园售楼处电话☎:0551-6813 6588
合肥(招商奥体公园)☎☎:0551-6258 9911【官方认证】
声明:本文由入驻焦点开放平台的作者撰写,除焦点官方账号外,观点仅代表作者本人,不代表焦点立场。


