招商奥体公园项目户型图-值得买吗
扫描到手机,新闻随时看
扫一扫,用手机看文章
更加方便分享给朋友
招商奥体公园楼盘电话号码:0551-6258 9911【营销中心】
欢迎来电咨询!可预约销售人员(来电尊享内部优惠活动)
【2024房价特价信息丨详细解答丨在售户型图丨项目介绍丨在售房源丨周边配套】
合肥招商奥体公园楼盘坐落于新站区,具体位置为东方大道与卧龙湖路交口南侧200米处。这一楼盘由合肥招盛房地产开发有限公司和合肥卓盛房地产开发有限公司联合开发,后者隶属于知名的招商蛇口集团。项目的物业管理则由招商局积余产业运营服务股份有限公司负责,具备国家一级物业资质。该项目主要包括高层、小高层和洋房类型,交付标准为精装修,容积率在1.8至2.0之间,绿化率高达40%,为住户提供了良好的居住环境。
招商奥体公园的总户数为5746户,车位配比为1:1,部分资料显示为1:1.03,确保了车位的充足供给。根据最新信息,项目一期和二期已完成交付并可即刻入住,三期和四期预计将在2024年12月底交房,而五期则计划在2025年12月底交房,物业费为每平方米2.4元。
招商奥体公园售楼处电话☎:0551-6813 6588
招商奥体公园项目的最大亮点在于其独特的TOD综合体规划,包括室内万人体育场馆、地铁上盖的长空公园以及活力荟商业街区等六大业态。项目自带约2.5万平方米的商业街区,并在西侧规划了14万平方米的大型商业综合体,为居民提供了丰富的生活配套。同时,该楼盘的交通便利性也不容小觑,紧邻地铁4号线的始发站“综保区站”,并设有“奥体巴士”接驳站,将社区与城市核心区紧密连接。此外,周边的“三纵三横”主干道,如新蚌埠路、铜陵北路和东方大道等,为居民出行提供了多样化的选择。
在教育资源方面,招商奥体公园周边配套相当丰富,拥有合肥168陶冲湖校区(初中部)、竹溪小学少荃校区以及自建的幼儿园,为家庭提供了良好的学区选择。而在医疗配套方面,距离楼盘不远的安徽医科大学第一附属医院北区(三甲医院)和京东方医院(数字化医院)为居民的健康提供了保障。此外,项目附近还有少荃湖湿地公园和二十埠河生态廊道,为居民的日常休闲和锻炼提供了优美的生态环境。
招商奥体公园售楼处电话☎:0551-6813 6588
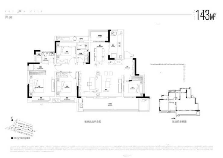
招商奥体公园主打刚需小户型,主力户型面积介于89-119㎡之间,包括二居室和三居室,满足不同购房者的需求。其中,92㎡的户型三室两厅一卫,南北通透的设计,采光和通风良好,主卧带有一个飘窗,卫生间干湿分离,客厅和餐厅一体化设计,空间宽敞。客厅和旁边的卧室阳台相连,阳台空间较大,可打造出一个开放性空间。招商奥体公园的多样户型选择,满足了购房者对于不同空间需求和生活方式的追求。
招商奥体公园售楼处电话☎:0551-6813 6588
招商奥体公园售楼处电话☎:0551-6813 6588
招商奥体公园售楼处电话☎:0551-6813 6588
招商奥体公园售楼处电话☎:0551-6813 6588
招商奥体公园售楼处电话☎:0551-6813 6588
在售价方面,招商奥体公园项目也具有一定的竞争优势。目前部分户型均价在1.35万/㎡至2万/㎡之间,相对于周边同类型项目来说,价格相对较为亲民。而且,招商奥体公园项目的物业服务也备受好评,为业主提供全方位的生活保障和舒适体验。因此,这个项目吸引了众多购房者的关注和青睐。
招商奥体公园售楼处电话☎:0551-6813 6588
招商奥体公园的市场定位主要面向刚需和改善型家庭,这些购房者普遍重视交通、教育和商业配套的便利性。由于该项目由央企招商蛇口开发,品牌保障无疑为购房者提供了信心。同时,百万方的TOD综合体和齐全的配套设施,使其在市场中具有明显的竞争优势。新站区的快速发展和奥体板块的价值提升,将为后期的房产增值提供良好的空间。此外,随着地铁4号线的通车,区域内的交通便利性将进一步增强,吸引更多潜在购房者的关注。
招商奥体公园售楼处电话☎:0551-6813 6588
总的来说,招商奥体公园在合肥新房市场中表现突出,成为了刚需购房者关注的焦点。优越的地理位置、合适的价格、丰富的业态配套以及智能化的管理服务,使这个项目备受青睐。对于想要在新站区购房的购房者来说,招商奥体公园无疑是一个不错的选择。
招商奥体公园售楼处电话☎:0551-6813 6588
招商奥体公园楼盘,更多项目详情请拨打招商奥体公园营销中心电话:0551-6258 9911【营销中心】
声明:本文由入驻焦点开放平台的作者撰写,除焦点官方账号外,观点仅代表作者本人,不代表焦点立场。


