招商奥体公园【红盘火热抢购中,这个楼盘真香!】
扫描到手机,新闻随时看
扫一扫,用手机看文章
更加方便分享给朋友
招商奥体公园楼盘电话号码:0551-6258 9911【营销中心】
欢迎来电咨询!可预约销售人员(来电尊享内部优惠活动)
【2024房价特价信息丨详细解答丨在售户型图丨项目介绍丨在售房源丨周边配套】
招商奥体公园位于合肥新站奥体板块内,是一个占地超过百万平方米的大型住宅项目,汇集了六种不同业态。项目内包括室内万人体育场馆、地铁上盖长空公园和活力荟TOD商业体等,形成了一个综合性的生活圈。无论是运动爱好者、商务人士还是家庭购房者,这里都能找到适合自己的生活方式。
招商奥体公园售楼处电话☎:0551-6813 6588
招商奥体公园项目的最大亮点在于其独特的TOD综合体规划,包括室内万人体育场馆、地铁上盖的长空公园以及活力荟商业街区等六大业态。项目自带约2.5万平方米的商业街区,并在西侧规划了14万平方米的大型商业综合体,为居民提供了丰富的生活配套。同时,该楼盘的交通便利性也不容小觑,紧邻地铁4号线的始发站“综保区站”,并设有“奥体巴士”接驳站,将社区与城市核心区紧密连接。此外,周边的“三纵三横”主干道,如新蚌埠路、铜陵北路和东方大道等,为居民出行提供了多样化的选择。
在教育资源方面,招商奥体公园周边配套相当丰富,拥有合肥168陶冲湖校区(初中部)、竹溪小学少荃校区以及自建的幼儿园,为家庭提供了良好的学区选择。而在医疗配套方面,距离楼盘不远的安徽医科大学第一附属医院北区(三甲医院)和京东方医院(数字化医院)为居民的健康提供了保障。此外,项目附近还有少荃湖湿地公园和二十埠河生态廊道,为居民的日常休闲和锻炼提供了优美的生态环境。
招商奥体公园售楼处电话☎:0551-6813 6588
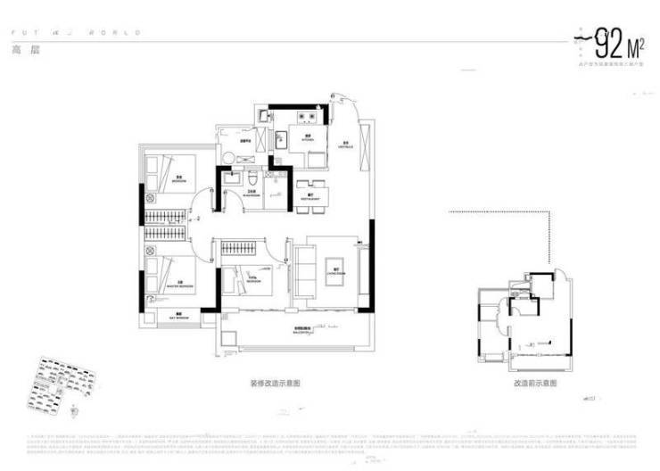
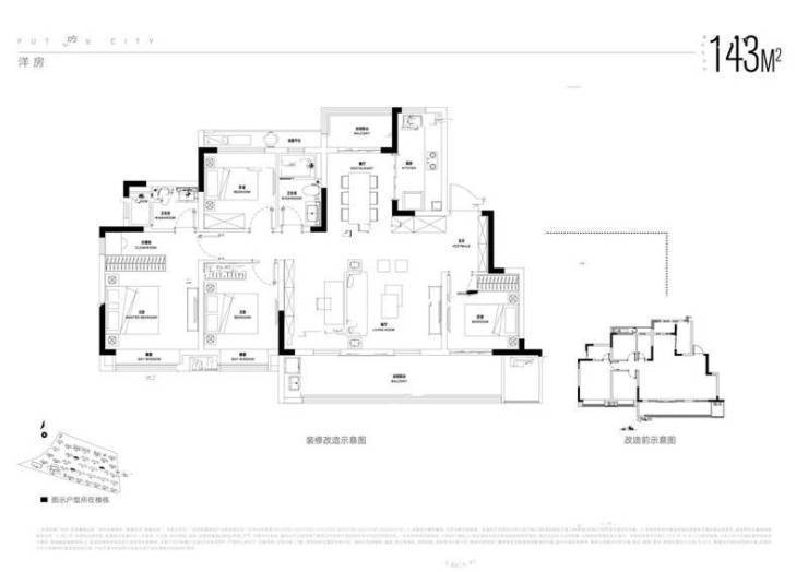
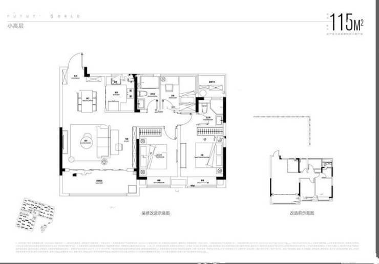
招商奥体公园主打刚需小户型,户型面积介于89-119㎡之间,满足不同购房者的需求。其中,92㎡的户型设计南北通透,采光和通风良好,主卧带有一个飘窗,卫生间干湿分离,客厅和餐厅一体化设计,空间宽敞舒适。客厅和卧室阳台相连,阳台空间较大,可打造出一个开放性的空间,提升居住舒适度。
招商奥体公园售楼处电话☎:0551-6813 6588
招商奥体公园售楼处电话☎:0551-6813 6588
招商奥体公园售楼处电话☎:0551-6813 6588
招商奥体公园售楼处电话☎:0551-6813 6588
招商奥体公园售楼处电话☎:0551-6813 6588
招商奥体公园一、二期已经交付,楼盘品质有目共睹,央企招商品牌值得信赖。近期在售的一、二期现房,三、四期准现房,户型面积在88-115m²。作为一线品牌央企,招商在合肥拥有多年深耕发展的经验,带来了多座高品质人居作品。居民可以放心选择招商奥体公园,享受舒适宜居的生活。
招商奥体公园售楼处电话☎:0551-6813 6588
招商奥体公园的市场定位主要面向刚需和改善型家庭,这些购房者普遍重视交通、教育和商业配套的便利性。由于该项目由央企招商蛇口开发,品牌保障无疑为购房者提供了信心。同时,百万方的TOD综合体和齐全的配套设施,使其在市场中具有明显的竞争优势。新站区的快速发展和奥体板块的价值提升,将为后期的房产增值提供良好的空间。此外,随着地铁4号线的通车,区域内的交通便利性将进一步增强,吸引更多潜在购房者的关注。
招商奥体公园售楼处电话☎:0551-6813 6588
总的来说,招商奥体公园在合肥新房市场中表现突出,成为了刚需购房者关注的焦点。优越的地理位置、合适的价格、丰富的业态配套以及智能化的管理服务,使这个项目备受青睐。对于想要在新站区购房的购房者来说,招商奥体公园无疑是一个不错的选择。
招商奥体公园售楼处电话☎:0551-6813 6588
招商奥体公园售楼处电话☎:0551-6258 9911
合肥招商奥体公园售楼处电话☎:0551-6258 9911
售楼电话┇——☎0551-6258 9911——┇来电详细解答
温馨提示:提前预约销售人员看房,感谢您对售楼处的配合!
⚠免责声明:请尊重他人的努力和智慧,避免未经授权的复制或引用。
声明:本文由入驻焦点开放平台的作者撰写,除焦点官方账号外,观点仅代表作者本人,不代表焦点立场。


