肥东信达碧桂园项目属于什么档次
扫描到手机,新闻随时看
扫一扫,用手机看文章
更加方便分享给朋友
信达碧桂园楼盘电话号码:0551-68111601【营销中心】
欢迎来电咨询!可预约销售人员(来电尊享内部优惠活动)【2024房价特价信息丨底价优惠丨在售户型图丨项目介绍丨在售房源丨周边配套】
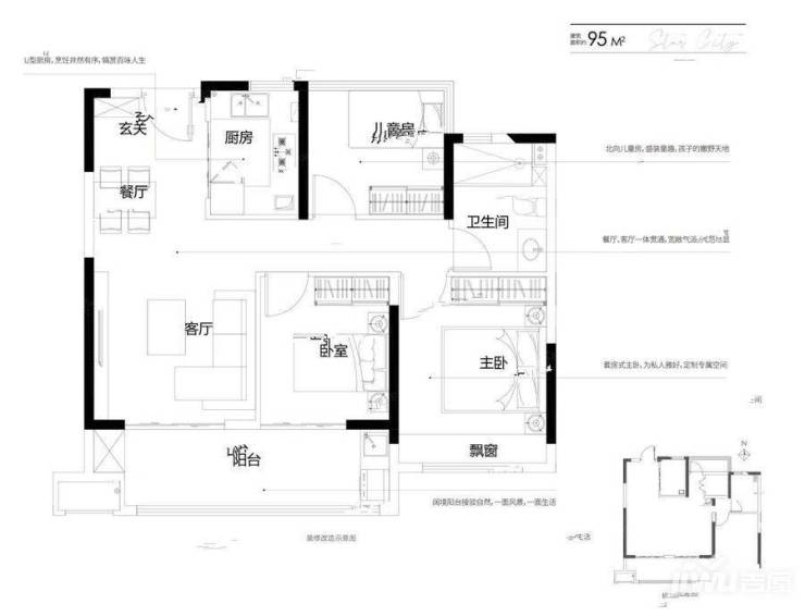
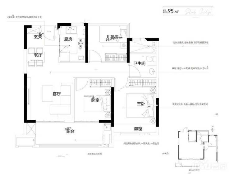
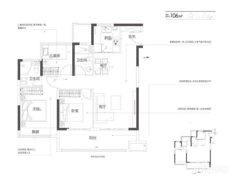
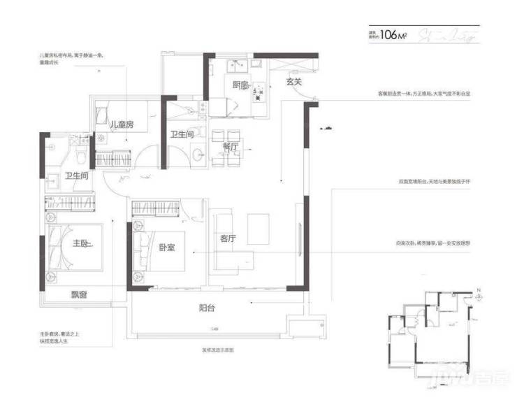
信达碧桂园项目地处肥东和睦湖板块,由信达地产和碧桂园集团联手打造,是一处高品质的住宅项目。项目位于酿泉路与日出路交口,距离在建地铁2号线东延线约1.5公里,交通便利。整个项目分为两期开发,主打高层产品,中间还分布着5栋洋房,户型方正纯粹,让居住者享受舒适的生活体验。信达碧桂园的建面约为95-118平方米,合理的空间功能分区和优越的面宽进深比例,让每一位居民都能拥有舒适的居住空间。
信达碧桂园项目地铁2号线延长线在侧,方便业主的日常出行;拥有惠宜品购物中心的商业配套,满足基本日常生活需求;同时,项目周边还有东城实验*、安师大附属*等丰富的教育资源,为业主提供便利的一站式教育体系,营造浓厚的书香氛围。
信达碧桂园的户型设计包括三室两厅一卫的95㎡,两卫的105㎡和四室两厅两卫的118㎡房型,让购房者尽享轻奢生活。所有户型都采用方正、全明布局,阳光四季充足、通风性好,空间利用率高,提高了业主的居住舒适度。无论是单身青年还是三口之家,都能在这里找到适合自己的理想家园。
信达碧桂园楼盘具体一房一价,详询营销中心。
信达碧桂园项目以高品质的户型设计和完善的配套设施吸引着越来越多的购房者。无论是从居住环境还是生活便利性来看,信达碧桂园都是一个不错的选择。希望更多的人能够在这里找到属于自己的幸福家园,享受舒适宜居的生活。
信达碧桂园项目以其高端生活体验、舒适轻奢生活和便利配套设施而备受关注。无论是家庭购房还是投资置业,信达碧桂园都是理想的选择。关注项目动态,预购从速,尽享高品质生活!
信达碧桂园楼盘电话号码:0551-68111601【营销中心】
欢迎来电咨询!可预约销售人员(来电尊享内部优惠活动)【2024房价特价信息丨底价优惠丨在售户型图丨项目介绍丨在售房源丨周边配套】
声明:本文由入驻焦点开放平台的作者撰写,除焦点官方账号外,观点仅代表作者本人,不代表焦点立场。


