招商奥体公园项目户型图-价格
扫描到手机,新闻随时看
扫一扫,用手机看文章
更加方便分享给朋友
招商奥体公园地理位置,更多项目详情请拨打楼盘电话:0551-6258 9911【预约热线】欢迎来电咨询!
招商奥体公园是合肥新站奥体板块内的一个大型住宅项目,总面积超过百万平方米,集六种不同业态于一体。这里包括了室内万人体育场馆、9万平方米的地铁上盖长空公园,以及2.5万平方米的活力荟TOD商业体等,形成了一个综合性的生活圈。项目内规划有高层、小高层和洋房等多种住宅类型,以满足不同购房者的需求。所有住宅均为精装交付,且绿化率较高,项目紧邻地铁4号线,多条主要道路交汇,兼顾了舒适居住与出行便捷
招商奥体公园售楼处电话☎:0551-6813 6588
交通上项目紧邻地铁4号线始发站综保区站地铁口,奥体巴士同步4号线,串联城市与社区,交通便捷,通达全城。同时,三纵三横的干道交汇也为项目的出行提供了更多选择,让业主出行更加便利。
项目自带约2.5万方的活力荟商业街区,西侧还规划有14万方的大型商业综合体,北侧5万方的星级酒店已封顶,南侧则有8万方的弘盛商业广场,共同构成了项目强大的商业支撑。这样丰富的商业配套为业主提供了便利的购物、餐饮和娱乐选择。
项目一期二期配套有合肥市168陶冲湖校区和合肥市伦先小学,以及自建的幼儿园;三期四期五期则配套有合肥168陶冲湖校区、竹溪小学少荃校区和自建幼儿园,为业主提供了优质的教育资源。周边还有安徽医科大学第一附属医院北区和京东方医院等医疗资源,保障了业主的健康需求。
项目周边的少荃湖湿地公园、二十埠河生态廊道等自然景观,为业主提供了休闲娱乐的好去处。居住在招商奥体公园,业主可以享受到便利的生活配套和优质的生活环境,真正实现居住、教育、医疗和休闲娱乐的全方位满足。
招商奥体公园售楼处电话☎:0551-6813 6588
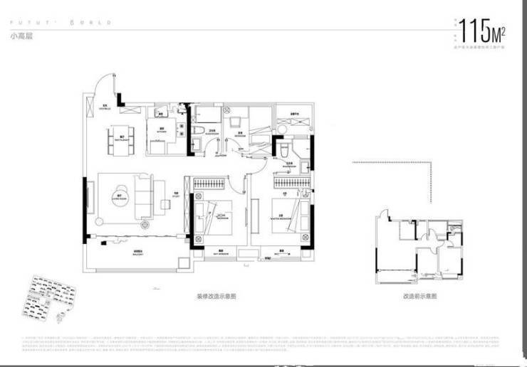
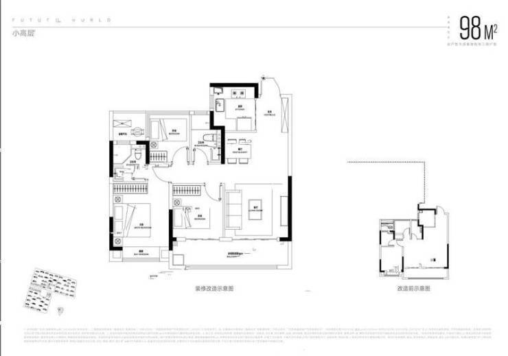
招商奥体公园主打刚需小户型,户型面积介于89-119㎡之间,满足不同购房者的需求。其中,92㎡的户型设计南北通透,采光和通风良好,主卧带有一个飘窗,卫生间干湿分离,客厅和餐厅一体化设计,空间宽敞舒适。客厅和卧室阳台相连,阳台空间较大,可打造出一个开放性的空间,提升居住舒适度。
招商奥体公园售楼处电话☎:0551-6813 6588
招商奥体公园售楼处电话☎:0551-6813 6588
招商奥体公园售楼处电话☎:0551-6813 6588
招商奥体公园售楼处电话☎:0551-6813 6588
招商奥体公园售楼处电话☎:0551-6813 6588
招商奥体公园一、二期已经交付,楼盘品质有目共睹,央企招商品牌值得信赖。近期在售的一、二期现房,三、四期准现房,户型面积在88-115m²。作为一线品牌央企,招商在合肥拥有多年深耕发展的经验,带来了多座高品质人居作品。居民可以放心选择招商奥体公园,享受舒适宜居的生活。
招商奥体公园售楼处电话☎:0551-6813 6588
招商奥体公园作为合肥新站区的首个百万方TOD体育综合体,为居民提供了丰富多彩的生活方式和一站式生活体验。其品质住宅和央企信赖的背书,让购房者能够放心选择,享受高品质的人居环境。选择招商奥体公园,就是选择了一个舒适便利、优质生活的家园。
招商奥体公园售楼处电话☎:0551-6813 6588
总的来说,招商奥体公园在合肥新房市场中表现突出,成为了刚需购房者关注的焦点。优越的地理位置、合适的价格、丰富的业态配套以及智能化的管理服务,使这个项目备受青睐。对于想要在新站区购房的购房者来说,招商奥体公园无疑是一个不错的选择。
招商奥体公园售楼处电话☎:0551-6813 6588
招商奥体公园楼盘电话号码:0551-6258 9911【营销中心】
欢迎来电咨询!可预约销售人员(来电尊享内部优惠活动)
【2024房价特价信息丨详细解答丨在售户型图丨项目介绍丨在售房源丨周边配套】
声明:本文由入驻焦点开放平台的作者撰写,除焦点官方账号外,观点仅代表作者本人,不代表焦点立场。


