官网年度聚焦 @TOD合肥伟星长城御澜道官方售楼处发布:引领购房热潮!
扫描到手机,新闻随时看
扫一扫,用手机看文章
更加方便分享给朋友
伟星长城御澜道楼盘电话号码:0551-6258 9911【营销中心】
欢迎来电咨询!可预约销售人员(来电尊享内部优惠活动)【2025房价特价信息丨底价优惠丨在售户型图丨项目介绍丨在售房源丨周边配套】
伟星长城御澜道项目目前均价1.7万元/m²,面积段在110-143m²,位于瑶海老城,配套齐全,对面就是万达,出门就是行知本部。想要在瑶海老城置业的,可以考虑本项目。
伟星长城御澜道售楼处电话☎:0551-6813 6588
教育资源丰富,行知本部(初中)直线距离600m,近六年综合排名合肥前列。周边还有众望中学、和平小学教育集团郎溪路小学、行知小学等,培养孩子未来的优质教育环境。选择伟星长城御澜道,不仅是对自己生活质量的提升,更是对孩子未来成长的投资。
伟星长城御澜道售楼处电话☎:0551-6813 6588
主打户型110-143m²,以刚改+改善为主打特色。以122m²户型为例,三室两厅两卫,动静分区明显,让生活更有序。每个卧室都配有飘窗,增加了采光和通风效果。不过客厅区域的通风稍显欠缺,需要注意。
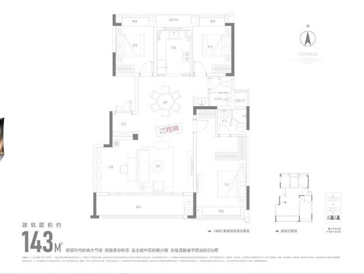
另外,143m²三室两厅两卫户型中,主卧配有衣帽间,但三个卧室都朝北,采光稍显不足。此外,还有一个书房可以根据需求改造。总体来说,伟星长城御澜道项目在老城中的优势明显,值得考虑。
伟星长城御澜道售楼处电话☎:0551-6813 6588
伟星长城御澜道售楼处电话☎:0551-6813 6588
伟星长城御澜道售楼处电话☎:0551-6813 6588
伟星长城御澜道楼盘具体一房一价,详询营销中心。
伟星长城御澜道售楼处电话☎:0551-6813 6588
外观设计独具匠心,携手国际一线设计单位·拓观设计,采用非对称顶檐设计、南北公建化立面和大面积玻璃幕墙,展现现代时尚风格。项目规划2栋24层高层和1栋11层小高层,总计226套,南北无遮挡,视野开阔。
地下车库选材精良,入户大堂设计华丽,从效果图中可以看出项目注重品质和细节。由于地块较小,仅三栋楼栋,整体布局合理,空间利用率高,居住舒适。
伟星长城御澜道售楼处电话☎:0551-6813 6588
项目户型110-143m²,主打的是刚改+改善。例如122m²户型,三室两厅两卫,动静分区明显,厨房、客厅、餐厅在西边,卫生间和卧室在东边,每个卧室都配有飘窗。但客厅区域的厨房侧向通风,南北通风、采光效果稍差。143m²户型则为三室两厅两卫,含一个书房,主卧带衣帽间,但三个卧室朝北,采光稍欠。
伟星长城御澜道售楼处电话☎:0551-6813 6588
伟星长城御澜道楼盘电话号码:0551-6258 9911【营销中心】
欢迎来电咨询!可预约销售人员(来电尊享内部优惠活动)【2025房价特价信息丨底价优惠丨在售户型图丨项目介绍丨在售房源丨周边配套】
声明:本文由入驻焦点开放平台的作者撰写,除焦点官方账号外,观点仅代表作者本人,不代表焦点立场。


