2024合肥新站区招商奥体公园_合肥招商奥体公园户型图_地址
扫描到手机,新闻随时看
扫一扫,用手机看文章
更加方便分享给朋友
招商奥体公园楼盘详情,详询:0551-68111210
招商奥体公园项目位于新站少荃湖板块,具体地址为卧龙湖路与东方大道交叉路口西南侧。这个项目是央企招商精心打造的一座大型综合社区,集住宅、体育场馆、公园和商业于一体,规划建面约45万方,包含约109栋住宅楼,预计容纳5746户,容积率1.8,绿化率高达40%。
项目周边有多条城市主干道穿行而过,如东方大道、文忠路、淮海大道、包公大道等,构建了立体TOD交通网络。项目紧邻地铁4号线始发站东方大道站,地铁3号线和规划中的9号线也穿行于项目周边区域,出行便捷。项目内规划有约3万方活力荟商业街区,满足居民日常购物、餐饮、娱乐等多元化需求,此外还紧邻鸿盛商业广场、百大商业广场等大型商业综合体。作为奥体TOD综合体项目,招商奥体公园还规划有体育主题商业配套,将运动、休闲、购物融为一体,为居民提供独特的消费体验。
教育资源方面,附近有竹溪小学、康桥国际学校、168分校陶冲湖东校区;项目周边医疗配套完善,有安徽医科大学第四附属医院、京东方数字医院等三甲医院;还有奥体公园、少荃湖湿地公园、陶冲湖公园等为居民提供了休闲娱乐的好去处。价格方面,招商奥体公园颇具性价比,目前均价在1.7万/㎡左右。对比周边二手房和其他新房项目,招商奥体公园在价格上具有竞争力,吸引了众多购房者的关注。
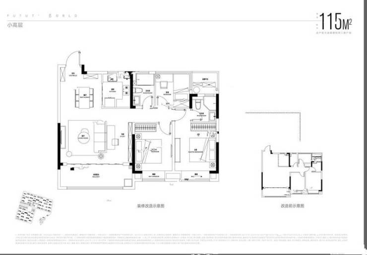
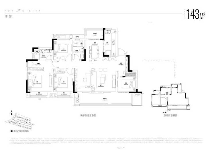
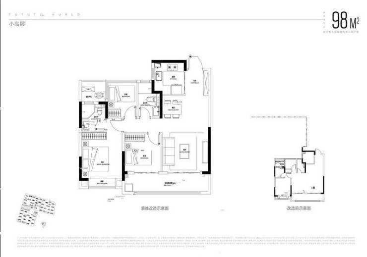
招商奥体公园主打刚需小户型,主力户型面积介于89-119㎡之间,包括二居室和三居室,满足不同购房者的需求。其中,92㎡的户型三室两厅一卫,南北通透的设计,采光和通风良好,主卧带有一个飘窗,卫生间干湿分离,客厅和餐厅一体化设计,空间宽敞。客厅和旁边的卧室阳台相连,阳台空间较大,可打造出一个开放性空间。招商奥体公园的多样户型选择,满足了购房者对于不同空间需求和生活方式的追求。
在合肥新房市场竞争激烈的背景下,招商奥体公园项目凭借其独特的定位和优势,成为了一匹刚需“黑马”,取得了不错的成绩。其综合性的规划和便利的交通配套,为购房者提供了舒适便利的居住环境,成为了新站区的一颗“明珠”。
总的来说,招商奥体公园项目在合肥新房市场上的表现可圈可点。其独特的综合性规划,便捷的交通配套以及相对亲民的售价,使其成为了购房者们眼中的“香饽饽”。未来,随着项目的不断完善和周边配套的逐步完善,相信招商奥体公园会继续吸引更多购房者的关注和青睐,成为合肥新站区的璀璨明珠。
招商奥体公园楼盘详情,详询:0551-68111210
声明:本文由入驻焦点开放平台的作者撰写,除焦点官方账号外,观点仅代表作者本人,不代表焦点立场。


