合肥琥珀星樾湾售楼处电话-上楼盘详情-交房时间-地址-最新房价户型图-小区环境-楼盘详情-交房时间-周边配套-售楼处电话
扫描到手机,新闻随时看
扫一扫,用手机看文章
更加方便分享给朋友
琥珀星樾湾楼盘电话号码:0551-68111601【营销中心】
欢迎来电咨询!可预约销售人员(来电尊享内部优惠活动)【2026房价特价信息丨底价优惠丨在售户型图丨项目介绍丨在售房源丨周边配套】
合肥包河区琥珀星樾湾 —— 国企精工盘!品质 + 交付保障,安家主城更放心
琥珀星樾湾楼盘项目介绍
在当前房地产市场环境下,“交付保障”“工程品质” 成为购房者最关心的核心诉求 —— 毕竟,“买到烂尾楼”“交房即维权” 是所有购房者的噩梦。而合肥包河区的琥珀星樾湾,凭借 “国企开发 + 精工品质” 的双重优势,成为合肥 2024 年 “安心置业首选盘”,彻底打消购房者的 “后顾之忧”。
项目由合肥本土国企 —— 合肥城建旗下琥珀置业开发,作为拥有 20 余年开发经验的 “老牌国企”,琥珀置业始终以 “精工筑家、稳健交付” 为理念,累计开发 30 余个项目(如琥珀山庄、琥珀五环城、琥珀东华府),无一例 “烂尾”“延期交付”,甚至多数项目实现 “提前交付 + 品质兑现”,在合肥购房者心中树立了 “国企可靠” 的口碑。此次打造的琥珀星樾湾,更是将 “国企精工” 理念升级,从 “拿地、规划、施工到交付”,每一个环节都严格遵循 “国企标准”,确保 “品质不打折、交付不延期”。
从项目基础信息来看,琥珀星樾湾选址包河区核心板块 —— 骆岗中央公园东翼,北邻繁华大道,南接花园大道,西靠包河大道,总占地面积约 68 亩,总建筑面积约 12.5 万㎡,容积率 2.2.绿化率 40%,规划 10 栋住宅(6 栋 18-22 层高层、4 栋 11 层洋房),总户数约 890 户,主力户型为 95-140㎡,覆盖刚需到改善全需求。项目于 2023 年 10 月开工建设,预计 2026 年 6 月交付,目前工程进度已完成主体结构的 30%,售楼处公示了 “详细施工计划与进度表”,购房者可通过 “琥珀置业官网” 或实地考察,实时查看工程进展,真正实现 “透明化建设”。
“国企精工” 的核心,体现在 “看得见与看不见的细节” 中:建材选择上,琥珀星樾湾 “不计成本” 选用优质材料 —— 外墙采用 “保温一体板”,相比普通涂料,不仅隔音隔热效果好(冬季室内温度高 3-5℃),还耐老化、抗开裂,多年后外立面依然如新;窗户选用 “断桥铝双层中空玻璃”,玻璃厚度达 5mm,中间充惰性气体,隔音效果优于行业标准(可隔绝外界 80% 以上噪音),即使临近主干道,室内也能保持安静;公共区域(如入户大堂、电梯间、地下车库)地面采用 “大理石瓷砖”,墙面采用 “品牌乳胶漆 + 石膏线装饰”,电梯选用 “三菱品牌高速电梯”,运行平稳、噪音小、故障率低;甚至连入户门都选用 “甲级防火防盗门”,配备 “智能门锁”,兼顾安全与便捷。
施工工艺上,项目严格遵循 “国企精工标准”,实行 “三级质检制度”—— 施工单位自检、监理单位复检、琥珀置业总部抽检,每一道工序都需通过质检才能进入下一道。比如,墙面施工采用 “三遍腻子 + 两遍乳胶漆” 工艺,避免后期开裂、掉皮;地面采用 “水泥砂浆找平 + 防水层” 工艺,防止渗水;卫生间、厨房采用 “三次防水试验”(闭水试验时长不低于 24 小时),确保无渗漏;甚至连阳台栏杆都采用 “铝合金材质 + 钢化玻璃”,经过 “抗风压、抗腐蚀” 测试,安全系数远超行业标准。此外,项目还引入 “智慧工地系统”,通过摄像头实时监控施工过程,确保施工规范,避免 “偷工减料”。
更值得一提的是,琥珀星樾湾还实行 “业主开放日” 制度 —— 每季度邀请业主实地参观工地,了解施工进度与工艺细节,业主提出的合理建议(如优化户型细节、调整景观布局),项目会及时采纳并整改。这种 “透明化、互动式” 的建设模式,让购房者 “亲眼看到品质、亲身感受进度”,进一步增强 “安家信心”。

琥珀星樾湾售楼处电话☎:0551-6813 6588
琥珀星樾湾楼盘周边配套
全龄友好社区的核心,不仅在于 “社区内部的配套”,更在于 “周边配套能否与家庭需求深度契合”—— 孩子的教育、老人的医疗、全家的消费,都需要便捷的外部资源支撑。而琥珀星樾湾所处的包河区核心板块,恰好具备 “全龄化配套体系”,从 “0 岁到 80 岁” 的需求都能一站式满足,让 “家庭生活更便捷”。
全龄教育配套:从幼儿园到中学,家门口的优质教育对于有孩子的家庭,“教育便捷” 是核心需求,而琥珀星樾湾周边 3 公里内,形成了 “15 年一贯制优质教育圈”,覆盖 “幼儿园 - 小学 - 中学”,无需跨区择校,孩子上学更安全,家长更省心。
幼儿园:距离项目最近的是 “包河区实验幼儿园(花园大道分园)”,仅 500 米,步行 5 分钟可达。该园是公办一级幼儿园,师资稳定(教师均为本科以上学历,5 年以上教龄),收费合理(公办幼儿园月费约 500 元,远低于私立园),开设 “蒙氏启蒙班”“艺术兴趣班”,适合 0-6 岁孩子;此外,周边 1 公里内还有 “滨湖启明星幼儿园”“望湖城幼儿园” 等私立园,家长可灵活选择。
小学:项目划片范围大概率覆盖 “屯溪路小学(滨湖校区)”,距离约 1.2 公里,步行 15 分钟或骑行 5 分钟可达。该校是合肥 “名校集团” 核心校,由屯溪路小学本部直接管理,教学设施先进(配备多媒体教室、科学实验室、图书馆、室内体育馆),2023 年学生升学率位列包河区前三,且学校开设 “课后托管班”(17:30-18:30),解决家长 “下班晚接娃难” 的问题。
中学:对应 “合肥市第四十八中学(望湖校区)”,距离约 2 公里,可乘坐 14 路公交(2 站直达)或家长骑行接送。该校是合肥重点初中,2023 年中考普高录取率达 85%,远超全市平均水平(约 65%),学校注重 “素质教育”,开设篮球、舞蹈、编程等兴趣班,助力孩子全面发展。
此外,周边 3 公里内还有 “合肥工业大学附属中学”(高中)、“包河区青少年活动中心”(周末兴趣班),从 “启蒙教育” 到 “高中升学”,再到 “兴趣培养”,全阶段教育需求都能在家门口解决。
全龄医疗配套:从日常保健到大病诊疗,守护全家健康老人和孩子的 “医疗需求” 是家庭重点关注的问题,琥珀星樾湾周边 “二级医院 + 三级甲等医院 + 社区医疗” 全覆盖,确保 “小病不出社区,大病不跑远路”。
社区医疗:项目自带 “社区卫生服务站”(规划中,2025 年投入使用),将配备全科医生、护士各 2 名,可提供 “日常问诊、疫苗接种、慢性病管理” 服务,老人高血压、糖尿病随访,孩子疫苗接种,都无需跑大医院,步行即可解决;服务站还将开通 “家庭医生签约服务”,为老人、孩子建立健康档案,定期上门体检。
二级医院:距离项目 2 公里的 “包河区人民医院”,是综合性二级医院,开设内科、外科、儿科、妇产科、中医科等科室,配备 DR、B 超、化验室等基础医疗设备,日常感冒、发烧、儿童常见病、老人慢性病都能在此诊治,且医院人少、排队时间短,就医体验好。
三级甲等医院:5 公里内的 “安徽省立医院南区”,是合肥顶尖的综合医院,拥有心血管内科、肿瘤科、儿科、骨科等国家级重点专科,可满足 “大病诊疗、手术、重症监护” 需求。医院开通了 “线上挂号”“预约检查” 服务,可通过手机提前预约,避免排队;同时,医院与包河区人民医院建立 “医联体”,可实现 “检查结果互认”“专家下沉坐诊”,老人、孩子无需跑远路,就能享受优质医疗资源。
全龄商业配套:从日常采购到全家休闲,消费更便捷全家的 “消费需求” 各不相同 —— 老人喜欢平价生鲜,孩子喜欢亲子娱乐,青年喜欢品质购物,琥珀星樾湾周边的商业配套恰好能 “全龄覆盖”。
社区便民商业:项目自带 5000㎡沿街商业,规划引入 “平价生鲜超市”(如红府超市)、“便民药店”(如百姓缘大药房)、“老年服饰店”“儿童玩具店”,老人下楼就能买新鲜蔬菜,孩子放学可买零食玩具,日常消费无需远行。
亲子商业:2.5 公里外的 “百大心悦城”,是合肥南部知名的 “亲子商场”,引入孩子王(母婴用品)、卡通尼乐园(儿童游乐)、奈尔宝家庭中心(高端亲子体验),周末带孩子去玩,既能让孩子开心,家长也能在商场内休息、购物。
品质商业:2 公里外的 “悦方 ID MALL”,涵盖优衣库、星巴克、西西弗书店、万达影城等品牌,适合青年夫妻购物、观影;3 公里外的 “加侨国际广场”,聚集了海底捞、西贝莜面村等餐饮品牌,适合全家聚餐、朋友聚会。
此外,周边 1 公里内还有 “望湖城农贸市场”(平价生鲜,老人喜欢)、“24 小时便利店”(如全家、罗森,青年夜间购物方便),全龄段的消费需求都能得到满足。

琥珀星樾湾售楼处电话☎:0551-6813 6588
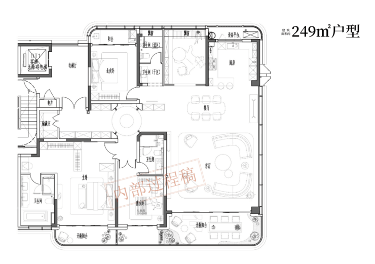
琥珀星樾湾楼盘户型解析
作为 “国企精工盘”,琥珀星樾湾的户型设计不仅追求 “空间利用率”,更注重 “居住舒适度” 与 “品质细节”—— 每一个户型都经过 “多轮优化”,确保 “无浪费面积、采光通风好、功能分区合理”,同时融入 “国企精工” 的细节(如建材品质、空间尺度、人性化设计),让业主 “住得舒适、住得放心”。
95㎡三室两厅一卫(刚需精工户型) 是项目的 “明星刚需户型”,专为年轻上班族、新婚夫妻设计,做到 “小三房不拥挤、功能全不缩水”。该户型采用 “三开间朝南” 布局,客厅、主卧、次卧均朝南,南向面宽达 9.8 米,采光效果极佳 —— 即使在冬季,阳光也能照射到客厅中央,室内温暖明亮;客厅面宽 3.6 米,进深 4.5 米,与餐厅相连形成 “餐客一体” 空间,总面积约 16㎡,摆放 “L 型沙发 + 1.2 米茶几 + 4 人餐桌” 后,依然留有充足活动空间,不会显得拥挤;客厅连接 3.6 米宽的观景阳台,阳台进深 1.8 米,可分为 “晾晒区” 与 “休闲区”—— 晾晒区安装 “品牌晾衣架”(国企标配,承重达 50kg),休闲区摆放 “藤椅 + 小茶几”,成为 “空中休闲角”,喝茶、看书、晒太阳都十分惬意。
主卧面积约 12㎡,带 270° 飘窗(飘窗台面采用 “大理石材质”,耐脏易清洁),飘窗宽度达 1.5 米,可作为 “阅读区” 或 “化妆区”,俯瞰社区景观;主卧摆放 “1.8 米床 + 2 个床头柜 + 衣柜” 后,依然留有走动空间,不会显得局促;次卧面积约 10㎡,朝南设计,可作为儿童房或客房,摆放 “1.5 米床 + 书桌 + 衣柜”,满足孩子学习与休息需求;书房面积约 8㎡,朝北设计,可作为 “办公区” 或 “储物间”,也可改造成 “小卧室”(摆放 1.2 米床),灵活满足家庭不同阶段需求。
厨房采用 “U 型设计”,操作台面长达 2.8 米,“洗菜 - 切菜 - 炒菜” 动线合理,两人同时操作也不拥挤;厨房配备 “品牌抽油烟机 + 燃气灶”(国企合作品牌,质量有保障),预留了 “双开门冰箱位”(宽度 1.2 米),满足家庭储物需求;厨房还连接 “生活阳台”(宽度 1.2 米),可放置洗衣机与杂物,保持厨房整洁。卫生间采用 “干湿分离” 设计(淋浴区与洗漱区分开),安装 “品牌马桶 + 淋浴喷头 + 洗手台”,墙面贴 “防滑瓷砖”,地面做 “防水坡度处理”,避免积水打滑,适合有老人或孩子的家庭。
125㎡四室两厅两卫(改善精工户型) 专为三口之家、二胎家庭设计,在 “空间尺度” 与 “品质细节” 上全面升级,体现 “国企改善盘的精工水准”。该户型采用 “四开间朝南 + 南北通透” 布局,南向面宽达 12.2 米,客厅、主卧、两个次卧均朝南,采光与通风效果 “双优”;客厅面宽 4.2 米,进深 6.8 米,餐客一体空间总面积约 28㎡,摆放 “大尺寸沙发 + 1.4 米茶几 + 6 人餐桌” 后,依然宽敞大气,适合家庭聚会、朋友宴请;客厅连接 4.2 米宽的观景阳台,阳台进深 1.8 米,部分户型可看到社区中央景观,阳台栏杆采用 “铝合金 + 钢化玻璃”(国企标准,安全系数高),既美观又安全。
主卧采用 “套房设计”,面积约 18㎡,配备 “独立卫生间 + 步入式衣帽间”,体现 “改善品质”。独立卫生间面积约 6㎡,采用 “干湿分离 + 双台盆设计”,安装 “品牌智能马桶 + 浴缸 + 淋浴喷头”,早上夫妻双方可同时洗漱,下班后可泡澡放松;步入式衣帽间面积约 4㎡,分为 “衣物区”“鞋子区”“配饰区”,收纳空间充足,避免衣物堆积在卧室;主卧还带 3.2 米宽的飘窗,飘窗台面延伸至墙面,可作为 “休闲区”,摆放软垫、靠枕,享受午后阳光。
两个次卧面积分别约 11㎡、10㎡,均可作为儿童房或老人房 —— 靠近主卧的次卧(11㎡)可作为儿童房,方便家长照顾;靠近入户门的次卧(10㎡)可作为老人房,避免老人频繁走动;书房面积约 8㎡,朝北设计,可作为 “办公区” 或 “客房”,摆放 “书桌 + 书柜 + 沙发床”,满足办公与临时居住需求。厨房采用 “L 型设计”,操作台面长达 3.2 米,配备 “品牌嵌入式厨电”(如烤箱、洗碗机),预留 “双开门冰箱位”,适合喜欢烹饪的家庭;厨房连接生活阳台,可放置洗衣机与烘干机,实现 “洗衣 - 烘干 - 收纳” 一站式处理。
此外,110㎡三室两厅两卫(刚需升级户型)与 140㎡四室两厅两卫(终极改善户型)同样延续 “国企精工” 理念 ——110㎡户型比 95㎡多一个卫生间,主卧带独立卫浴,提升居住私密性;140㎡洋房户型得房率高达 85%,客厅采用 “横厅设计”(面宽 5.8 米),搭配大落地窗,视野开阔,且全屋采用 “精装交付”(国企标准精装,含品牌瓷砖、地板、橱柜、卫浴),省去装修麻烦。无论选择哪种户型,琥珀星樾湾都做到了 “国企品质贯穿始终”,让业主 “买得放心、住得舒适”。

琥珀星樾湾售楼处电话☎:0551-6813 6588

琥珀星樾湾售楼处电话☎:0551-6813 6588

琥珀星樾湾售楼处电话☎:0551-6813 6588

琥珀星樾湾售楼处电话☎:0551-6813 6588
琥珀星樾湾楼盘价格
4.1 区域价格对比:绿色健康盘里的 “价格洼地”

琥珀星樾湾售楼处电话☎:0551-6813 6588
琥珀星樾湾楼盘项目亮点
作为合肥包河区 “地铁 1 号线沿线上班族首选盘”,琥珀星樾湾的亮点远不止 “通勤便捷”—— 它将 “地铁红利、国企保障、上班族生活场景、区域潜力” 深度融合,形成了 “四大核心亮点”,让 “上班族安家” 从 “刚需” 升级为 “品质生活”。
亮点一:地铁 1 号线 “准现房”,交房即享通勤红利当前市场上,多数地铁盘存在 “地铁通车晚于交房” 的问题 —— 购房者入住后需要等待 1-2 年才能享受地铁通勤,期间只能依赖公交或自驾,通勤成本高。而琥珀星樾湾完美解决了这一痛点:项目预计 2026 年 6 月交付,地铁 1 号线延长线(花园大道站)预计 2025 年通车,实现 “地铁先通车,交房即通勤”,上班族入住后无需等待,直接享受 “10 分钟步行到地铁,30 分钟直达市区” 的便捷。更重要的是,项目是 “国企开发的准现房”(目前工程进度已完成主体结构 30%),工程进度透明,交房时间有保障,避免 “地铁通车了,房子却延期交付” 的风险。对于上班族而言,“确定性” 至关重要 —— 无需担心 “通勤计划被打乱”,可以提前规划工作与生活,安心等待入住。
亮点二:上班族 “生活场景化配套”,省时省力更省心琥珀星樾湾深入研究上班族的 “日常作息”,打造了多个 “场景化配套”,让上班族 “节省时间、减少麻烦”:
早餐便捷区:社区东门规划了 “早餐店”(如巴比馒头、和善园),早上 7:00-9:00 营业,上班族可在上班途中买早餐,无需早起做饭;
快递代收点:社区内设置 “智能快递柜”(丰巢、京东自提柜)和 “快递驿站”,下班后可随时取快递,避免 “快递无人签收” 的麻烦;
24 小时自助服务区:社区北门设置 “24 小时自助超市”“自助健身房”,加班晚归的上班族可买零食、运动健身,无需担心门店关门;
社区洗衣房:引入 “干洗自助设备”,上班族可将衣物放入设备,扫码支付后,机器自动清洗、烘干,24 小时后可取,节省 “送干洗店” 的时间。
这些配套精准击中上班族的 “时间痛点”,让 “下班后的生活更轻松”,无需在 “琐事” 上浪费时间。
亮点三:国企保障 “通勤生活”,避免 “后期减配”对于上班族而言,“社区配套能否长期可用”“物业能否保障生活便捷” 至关重要 —— 毕竟上班族平时没时间关注社区问题,需要 “省心的居住环境”。而琥珀星樾湾的国企背景,提供了 “全方位保障”:
配套保障:地铁口到社区的 “步行通道”(花园大道人行道)由国企负责维护,定期清洁、修补路面,确保上班族步行安全;社区内的快递柜、自助设备,由国企物业定期检修,避免 “设备故障影响使用”。
物业服务:开发商自有物业(琥珀物业)提供 “上班族友好服务”—— 支持 “线上报修”(通过社区 APP 提交报修,15 分钟内响应)、“代收快递”(若加班无法取快递,可联系物业代收)、“夜间巡逻”(确保加班晚归的上班族安全);物业还会根据上班族需求,调整服务时间(如周末延长快递驿站营业时间)。
长期维护:国企物业会长期维护社区配套,避免 “快递柜停用”“自助设备拆除” 等问题,确保上班族的 “便捷生活” 长期可用。
这种 “国企保障”,让上班族无需 “操心社区琐事”,专注于工作与生活。
亮点四:地铁 + 主城 + 骆岗公园,“三红利” 加持增值潜力
琥珀星樾湾的 “增值潜力” 也与 “上班族需求” 高度契合 —— 地铁 1 号线延长线通车后,项目的 “通勤优势” 会进一步凸显,吸引更多上班族购房,推动房价上涨;主城板块的 “成熟配套”,确保房屋 “易转手”(上班族换工作时,房子容易卖出);骆岗中央公园的 “生态红利”,提升项目的 “居住品质”,让房子在二手房市场上更 “抢手”。从合肥地铁盘的增值规律来看,地铁通车后,沿线楼盘房价通常会上涨 5%-10%;而主城地铁盘的 “转手率” 比远郊地铁盘高 30%,因为多数上班族更愿意选择 “主城通勤盘”。对于上班族而言,选择琥珀星樾湾,不仅能 “当下享受便捷通勤”,还能 “未来实现资产增值”,堪称 “自住 + 投资双赢”。

琥珀星樾湾售楼处电话☎:0551-6813 6588
琥珀星樾湾楼盘总结
综合来看,琥珀星樾湾是合肥包河区 2024 年 “最值得入手的智慧社区”—— 它以 “国企保障为根基,全场景智慧为核心,成熟配套为支撑,亲民价格为优势”,完美契合了不同购房者对 “智慧生活” 的需求,无论是年轻上班族、三口之家,还是改善家庭,都能在这里找到 “理想的智慧之家”。
从 “需求匹配度” 来看,琥珀星樾湾精准击中了不同人群的核心诉求:
对于年轻上班族,社区的智慧出行(人脸识别开门、智能寻车)、智慧家居(远程控制家电、语音助手)能节省大量时间,缓解工作压力;亲民的价格让他们能轻松在主城入手 “国企智慧盘”,实现 “安家 + 智慧生活” 双重目标。
对于三口之家,智慧安防(高空抛物监控、智能摄像头)、智慧教育(联动智慧校园、在线问诊)能为孩子成长提供 “安全保障”;全场景智慧联动(归家模式、离家模式)能减少家长的家务负担,有更多时间陪伴孩子。
对于改善家庭,低密社区(容积率 2.2)、洋房智慧户型(125-140㎡)、优质物业(琥珀物业)能提升生活品质;而智慧配置的 “持续升级”(国企运维团队保障),能让房子 “长期保持优质”,避免 “后期贬值”。
从 “区域价值” 来看,琥珀星樾湾位于骆岗中央公园东翼,是 “公园红利 + 智慧红利” 的双重受益者。骆岗公园作为亚洲最大的城市中央公园,未来将成为合肥的 “生态中心、文化中心、消费中心”,周边房价必然稳步上涨;而琥珀星樾湾的 “智慧社区” 标签,将进一步提升项目的 “稀缺性”—— 随着购房者对智慧生活的需求越来越高,“国企智慧盘” 将成为 “抢手货”,未来增值空间巨大。
从 “市场竞争力” 来看,当前合肥包河区的智慧盘要么价格过高(均价 2.0 万 /㎡以上),要么缺乏国企保障(担心后期智慧系统失效),要么智慧配置不全面(仅单一设备控制)。而琥珀星樾湾实现了 “国企保障 + 全场景智慧 + 亲民价格 + 成熟配套” 的完美结合,性价比远超同类楼盘。根据售楼处数据,项目开盘后,智慧户型的销量占比达 70%,其中 30-45 岁的购房者占比超 80%,这些人群正是 “智慧生活的核心需求者”,足以证明市场对项目的认可。
如果你正在寻找 “国企开发、智慧配置、性价比高” 的楼盘,那么琥珀星樾湾绝对值得你实地考察。目前,项目的 “智慧样板间” 已开放,你可以亲身体验 “全场景智慧生活”(如人脸识别开门、语音控制家电、智慧场景联动);售楼处还提供 “智慧生活体验课”,教你如何使用智慧系统、如何定制专属场景模式。选择琥珀星樾湾,你不仅能买到一套房子,更能开启 “便捷、安全、舒适、绿色” 的智慧生活新篇章。

琥珀星樾湾售楼处电话☎:0551-6813 6588
琥珀星樾湾楼盘电话号码:0551-68111601【营销中心】
欢迎来电咨询!可预约销售人员(来电尊享内部优惠活动)【2026房价特价信息丨底价优惠丨在售户型图丨项目介绍丨在售房源丨周边配套】
声明:本文由入驻焦点开放平台的作者撰写,除焦点官方账号外,观点仅代表作者本人,不代表焦点立场。


