庐阳区弘泰熙湖澜悦地理位置怎么样?
扫描到手机,新闻随时看
扫一扫,用手机看文章
更加方便分享给朋友
庐阳区弘泰熙湖澜悦地理位置优越,楼盘均价2.2万左右每平,具体一房一价。
弘泰熙湖澜悦,为庐阳区刚开盘不久的项目,地处庐阳四里河北,紧邻四里河繁华商圈,同时又临近董铺湖,大房郢水库,坐拥丰富的水系自然资源,真正的繁华与宁静同时兼备,地处城市核芯位置,整体居住环境不错,宜人宜居。
营销咨询电话:0551-68136588
弘泰熙湖澜悦项目具体位于董铺路以南、合淮路以西,周边生活配套齐全完善,例如八公山路、四里河路均可连接城市一环、二环,还有地铁S1号线四里河站(在建中)加持,去往主城区更加便捷快速,交通配套齐全完善。
商业方面,项目紧邻四里河商圈,万科广场、文一百年街、华润万象汇、北辰旭辉中心、宜家等众多成熟商圈环绕,繁华缤纷的商业资源,坐享一站式吃喝玩乐购,满足更加多元化的生活需求。
教育资源上,项目旁边有规划的12班幼儿园,九年一贯制中小学,附近还有安庆路第三小学教育集团大杨分校,四十二中湖畔分校,教育资源齐全完善,孩子上学无忧。自然环境方面,除了董铺湖、大房郢水库,附近还有庐州公园,国际城湿地公园等,多园环绕,组成的生态静谧宜居大境,感受真正的高品质改善生活。
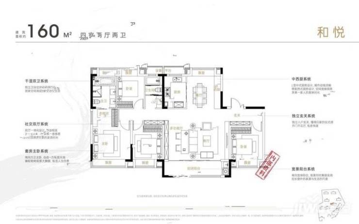
开发商弘泰集团,是本土品牌企业,历经16年的发展历史,布局安徽,熙湖澜悦是弘泰在合肥打造的第二座高端“澜”系产品,项目规划户型面积段131-160平,是一个定位纯粹的改善社区,整个小区容积率低至1.8,绿化率42%,人车人流,社区景观园林规划丰富,结合现代简约的手法,匠心打造了“一环两轴游九境”的景观体系,建筑采用Super Flat光幕立面,大面积LOW-E玻璃搭配"优雅灰、香槟金"的色彩体系,让楼盘建筑充满了质感与美感。
户型面积上,131平起步的户型产品,带来舒适的居住体验,户型布局设计上同样是匠心独运,例如将客厅、餐厅、厨房纵贯相连,交互式宽厅,保障各功能区域独立又共享,另外还有主卧套房设计,配备独立卫生间,衣帽间,观景飘窗,满足多元化生活需求,体现业主尊贵身份,阔绰的空间尺度,离高品质人居更近一步。
营销咨询电话:0551-68136588
目前,弘泰熙湖澜悦项目已经开盘在售,高层户型建筑面积131-133平方米,均价21000元/平方米,在售小高层,户型建筑面积141平方米,均价23000元/平方米,具体一房一价,详情请致电营销中心。
声明:本文由入驻焦点开放平台的作者撰写,除焦点官方账号外,观点仅代表作者本人,不代表焦点立场。


