合肥新华星耀学府楼盘电话号码
扫描到手机,新闻随时看
扫一扫,用手机看文章
更加方便分享给朋友
新华星耀学府楼盘电话号码:0551-68136588
选购房产一直是一项重要的决定,因此购房者都会提前了解楼盘的各项信息。今天,我们将详细介绍位于合肥蜀山的新华星耀学府,包括规划怎么样、周边配套、优缺点以及最新的房价楼盘分析,希望能帮助购房者更好地了解这个楼盘,选择到适合自己的房子。
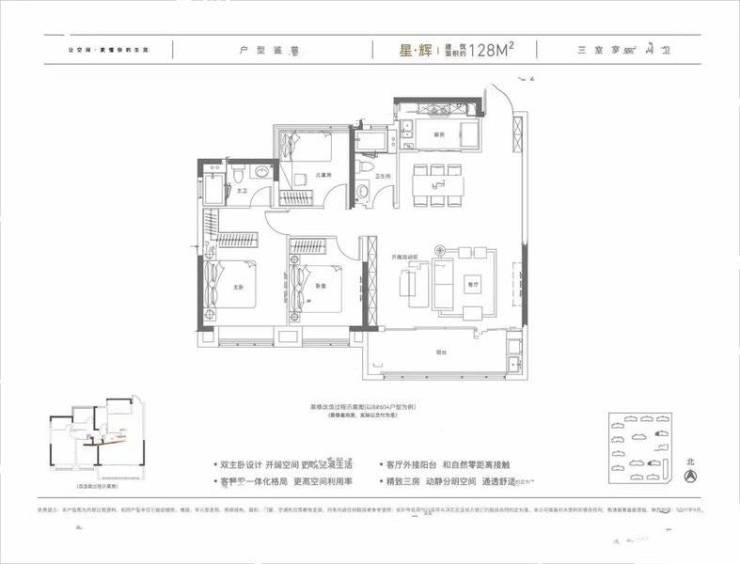
新华星耀学府由安徽新华学府置业有限公司承建开发,位于蜀山三乘寺路与佛岭寨路交口,开盘时间为2023年9月3日。该项目为住宅物业,提供精装修,产权年限为普通住宅70年。物业管理由安徽天一物业管理有限公司负责,物业费为住宅2.5元/月/㎡。如果您对新华星耀学府感兴趣,可拨打售楼处电话0551-68136588。
6月23日,蜀山区SS202208号地块进入投报高品质住宅方案,共有5家房企参与竞标,其中新华竞得该地块,成交单价为990万/亩,总价69182万元,楼面价7425元/㎡,溢价率为14.4%。新华星耀学府的房价均价为17000元/㎡,与蜀山新房均价18039元/平米、二手房均价18087元/平米相比,仍具有一定的竞争力。
新华星耀学府作为合肥市的热门楼盘,其地理位置优越,周边配套设施齐全,交通便利。然而,也存在一些缺点,如物业费较高、溢价率略高等。购房者在选择时应权衡利弊,根据个人需求做出决策。
总的来说,新华星耀学府作为合肥的知名楼盘,具有良好的发展前景和投资潜力。购房者在选择时应综合考虑房价、周边配套、优缺点等因素,确保选购到符合自身需求的理想房产。愿各位购房者能在购房过程中顺利找到满意的房子,实现自己的置业梦想。
新华星耀学府楼盘电话号码:0551-68136588
声明:本文由入驻焦点开放平台的作者撰写,除焦点官方账号外,观点仅代表作者本人,不代表焦点立场。


