招商奥体公园-售楼中心电话-楼盘详情-楼盘最新动态
扫描到手机,新闻随时看
扫一扫,用手机看文章
更加方便分享给朋友
合肥(招商奥体公园)☎☎:0551-6258 9911【官方认证】
三、招商奥体公园楼盘户型解析
针对有教育需求的家庭,招商奥体公园深入洞察其居住需求,打造了多款适合家庭居住、兼顾学习与生活的户型产品,涵盖 89㎡、105㎡、128㎡、143㎡四个主力面积段,从刚需小三室到高端改善大四室,满足不同家庭结构的教育居住需求。
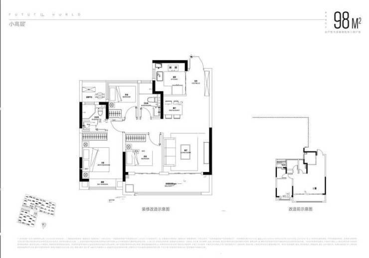
89㎡三室两厅一卫:刚需教育户,紧凑实用
89㎡三室两厅一卫户型是刚需教育家庭的首选,整体布局方正,南北通透,空间利用率高达 85%,无浪费面积,既能满足家庭居住需求,又能为孩子提供独立的学习空间。
入户处设置独立玄关,宽度 1.2 米,深度 1.5 米,既保障了室内隐私,又能作为收纳空间,放置鞋柜、衣帽架、孩子的书包柜等。玄关右侧设有换鞋凳和挂钩,方便孩子放学回家后及时换鞋、挂书包,细节设计贴心。
客厅位于户型中央,面宽 3.6 米,进深 4.2 米,空间宽敞明亮。客厅与南向阳台相连,阳台面宽 3.6 米,进深 1.8 米,采用全景落地窗设计,采光通风极佳。阳台可设置为孩子的休闲活动区,摆放小型游乐设施或绘本架,让孩子在阳光下玩耍、阅读。
餐厅紧邻客厅和厨房,面积约 6㎡,可容纳 4-6 人同时用餐。餐厅与厨房之间设有滑动门,既保证了用餐环境的整洁,又能方便上菜,让家长在烹饪时也能关注到孩子的动态。
厨房位于户型西侧,采用 U 型设计,操作台面长 3.5 米,洗切炒动线合理,预留双开门冰箱位置。厨房靠近餐厅,用餐、上菜便捷,适合家庭日常烹饪。
三个卧室分布在户型东侧和北侧,动静分离,避免了活动区对学习休息区的干扰。主卧位于户型东侧,面宽 3.2 米,进深 3.8 米,带有南向飘窗,采光充足,空间宽敞,可作为家长卧室。两个次卧面宽均为 2.7 米,空间充足,其中一个次卧可作为孩子的独立书房,摆放书桌、书架,为孩子打造安静的学习环境;另一个次卧可作为老人房,方便老人帮忙照顾孩子。
卫生间位于户型北侧,面积约 4.5㎡,采用干湿分离设计,提高使用效率,避免潮湿问题,满足家庭日常使用需求。
05㎡三室两厅两卫:改善教育户,舒适升级(续)
的学习与休息空间;另一个次卧可作为老人房或备用书房,满足家庭多样化需求。公共卫生间位于两个次卧之间,面积约 5㎡,采用干湿分离设计,使用方便,避免了家人使用时的冲突,尤其适合孩子早上洗漱上学、家长通勤的早高峰场景。
128㎡四室两厅两卫:改善教育户,空间阔绰
128㎡四室两厅两卫户型是多孩教育家庭的理想选择,户型方正通透,南北双阳台设计,空间阔绰,既能满足家庭成员的居住需求,又能为每个孩子提供独立的学习空间,兼顾家庭互动与隐私。
入户玄关宽敞明亮,宽度 1.8 米,深度 2.0 米,可设置入户花园或大型收纳柜,专门划分出孩子的书包、绘本、运动器材收纳区,让居家环境整洁有序。玄关处摆放孩子的荣誉墙,展示奖状、作品,增强孩子的自信心。
客厅面宽 4.0 米,进深 4.8 米,空间宽敞开阔,与南向景观阳台相连,阳台面宽 4.0 米,进深 2.0 米,采光通风极佳。客厅可打造为家庭互动区,摆放投影仪、书架,周末全家一起观影、阅读,营造浓厚的家庭学习氛围。
北向生活阳台与餐厅相连,面宽 3.0 米,进深 1.8 米,可作为孩子的手工创作区或小型运动区,放置跑步机、瑜伽垫,让孩子在学习之余锻炼身体,实现 “学习 + 运动” 两不误。
厨房采用 L 型设计,操作台面长 4.0 米,空间宽敞,动线合理,与餐厅相邻,用餐便捷。厨房预留了辅食机、烤箱等家电位置,方便家长为孩子制作营养餐食,满足孩子成长过程中的饮食需求。
四个卧室分布合理,动静分离,确保学习与休息互不干扰。主卧套房设计,面宽 3.5 米,进深 5.0 米,配备独立卫生间和步入式衣帽间,空间宽敞奢华,让家长拥有专属私密空间。两个南向次卧面宽 3.0 米,采光良好,可分别作为两个孩子的卧室,每个卧室都能摆放书桌、书架,打造独立学习区;北向次卧可作为家庭书房,放置多人书桌和大型书架,全家一起学习,营造良好的学习氛围。
公共卫生间位于户型北侧,面积约 5.5㎡,采用干湿分离设计,配备孩子专用的洗漱台和马桶,方便孩子使用,提升生活便利性。
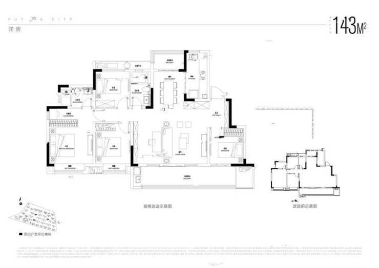
143㎡四室两厅两卫:高端教育户,品质尊享
143㎡四室两厅两卫户型是高端教育家庭的终极之选,空间开阔,布局奢华,品质感十足,为孩子提供优质的成长环境,同时满足家长对高品质生活的追求。
入户采用子母门设计,玄关宽度 2.0 米,深度 2.2 米,大理石地面搭配吊顶设计,彰显尊贵感。玄关处设置大型收纳柜和孩子的展示区,收纳孩子的各类物品,展示孩子的作品、奖杯,打造专属的成长纪念空间。
客厅面宽 4.2 米,进深 5.0 米,与南向 6.8 米宽超宽阳台相连,阳台进深 2.0 米,采用全景落地窗设计,视野开阔,采光通风极佳。阳台可打造为多功能学习休闲区,一侧设置书桌和书架,让孩子在自然光线中高效学习;另一侧摆放休闲沙发和绿植,学习之余放松身心。
餐厅面积约 9㎡,可容纳 10-12 人同时用餐,与客厅形成通透的一体化空间,增强了空间的开阔感。餐厅与北向生活阳台相连,北向阳台可作为孩子的兴趣培养区,放置钢琴、绘画工具等,发展孩子的兴趣爱好。
厨房采用中西厨设计,中厨封闭烹饪,西厨可作为早餐台或孩子的简易烘焙区,培养孩子的动手能力。中厨操作台面长 4.5 米,空间宽敞,预留双开门冰箱位置和各类家电接口,满足家庭多样化烹饪需求。
四个卧室分布合理,动静分离,私密性强。主卧豪华套房设计,面宽 3.6 米,进深 5.2 米,配备独立卫生间、步入式衣帽间和南向全景飘窗,空间宽敞奢华,让家长在照顾孩子之余,能享受高品质的私密生活。两个南向次卧面宽 3.2 米,空间充足,采光良好,可作为孩子的卧室和书房,每个房间都能满足学习、休息、储物的多重需求;北向次卧可作为家庭影音室或健身区,丰富家庭业余生活,实现 “学习 + 休闲” 平衡。
公共卫生间位于户型北侧,面积约 6㎡,采用干湿分离设计,配备高端洁具和孩子专用洗漱设施,满足家庭成员的日常使用需求。
招商奥体公园售楼处电话☎:0551-6813 6588
招商奥体公园售楼处电话☎:0551-6813 6588
招商奥体公园售楼处电话☎:0551-6813 6588
招商奥体公园售楼处电话☎:0551-6813 6588
招
商奥体公园售楼处电话☎:0551-6813 6588
二、招商奥体公园楼盘周边配套
招商奥体公园的核心竞争力在于 “运动 + 配套” 的双重优势,周边不仅拥有专业的奥体运动资源,交通、教育、商业、医疗、生态等配套也十分完善,让业主在享受运动健康生活的同时,无需为生活便利担忧。
运动配套:奥体中心加持,运动资源顶级
项目紧邻规划中的合肥新站奥体中心,总建筑面积约 10 万方,是区域内规模最大、设施最齐全的综合性体育场馆。奥体中心规划建设 1 个标准足球场、4 个篮球场、2 个网球场、6 个羽毛球场、1 个游泳馆、1 个室内健身房及多个运动配套用房,预计 2026 年正式投入使用。
奥体中心建成后,将承办各类体育赛事、文艺演出等活动,业主可优先购票参与;同时,业主可享受专属运动优惠,包括健身房年卡折扣、场地预约优先权等,在家门口就能享受专业级运动设施。此外,奥体中心周边规划建设运动主题公园,涵盖户外健身区、休闲步道、亲子运动区等,进一步丰富业主的运动选择。
除了外部奥体中心,项目内部规划了全龄段运动配套。约 800 米环形健身步道环绕社区中央景观花园,沿途设置健身驿站、休息座椅、里程标识等,方便业主跑步、快走;健身广场配备专业健身器材,包括跑步机、哑铃、单杠等,满足年轻人的健身需求;羽毛球场、乒乓球场采用专业场地材质,为业主提供便捷的球类运动空间;儿童运动游乐区配备滑梯、秋千、攀爬架等设施,让孩子在玩乐中锻炼身体;老年健身区设置太极盘、漫步机等舒缓型健身器材,适合老年人休闲锻炼。
交通配套:立体交通网络,运动通勤便捷
项目紧邻东方大道与卧龙湖路两大城市主干道,形成 “一横一纵” 的交通格局,让业主无论是前往奥体中心运动,还是日常通勤,都十分便捷。
东方大道西接阜阳北路高架,东连包公大道高架,双向 6 车道,路况良好。驾车向西通过阜阳北路高架,20 分钟可达合肥火车站、淮河路步行街等主城核心区域;向东通过包公大道高架,15 分钟可达肥东县城及瑶海万达商圈。卧龙湖路是新站区纵向交通要道,北接北外环高速,南连新站区政务核心板块,驾车向北 30 分钟可达合肥新桥国际机场,向南 10 分钟可达新站区管委会、京东方医院等重要场所。
公共交通方面,项目周边 500 米范围内设有 3 个公交站点,涵盖 301 路、302 路、686 路、803 路等多条公交线路。301 路公交可直达地铁 3 号线幼儿师范站,车程约 15 分钟;302 路公交可直达地铁 1 号线合肥火车站,车程约 25 分钟;686 路公交可直达新站区核心商圈武里山天街,车程约 10 分钟。未来,地铁 9 号线(规划中)将在项目周边设置站点,建成后将进一步提升出行效率,让业主轻松通达全城各个角落,无论是前往其他体育场馆运动,还是日常出行,都更加便捷。
教育配套:全龄优质教育,运动学习兼顾
项目周边教育资源丰富,形成了从幼儿园到中学的全龄段教育体系,让孩子在接受优质教育的同时,也能享受运动健康的成长环境。
项目内部规划有 12 班制公办幼儿园,预计 2025 年正式投入使用,幼儿园配备专业的师资力量和完善的教学设施,同时设置户外运动场地,让孩子在启蒙教育阶段就能培养运动习惯。
项目周边 1 公里范围内分布着合肥市庆平希望学校、合肥新站寿春实验中学、合肥市第 168 中学东校区等多所优质学校。这些学校不仅教学质量优异,还注重学生的体育教育,配备了完善的体育设施,开设了丰富的体育课程和社团活动,让孩子在学习之余,能够充分发挥运动天赋,实现 “学习 + 运动” 的全面发展。
商业配套:运动商业融合,生活需求满足
项目周边商业配套完善,且融入运动元素,满足业主运动前后的消费需求,让运动与生活无缝衔接。
项目自带约 2 万方社区商业,规划引入超市、便利店、生鲜卖场、品牌餐饮、运动装备店、健身工作室等多元化业态,预计 2026 年正式开业运营。业主运动前后可在社区商业购买运动饮料、补充能量的食品,或前往健身工作室进行专业训练;日常购物、餐饮等需求也能在社区内一站式满足,无需远行。
项目距离新站区核心商圈武里山天街仅 3 公里,驾车车程约 10 分钟。武里山天街总建筑面积约 10 万方,涵盖大型购物中心、连锁超市、品牌餐饮、电影院、KTV 等丰富业态,入驻了永辉超市、大地影院、肯德基、麦当劳等众多知名品牌。运动之余,业主可前往商圈购物、观影、聚餐,丰富业余生活。
此外,项目距离拓基广场约 5 公里,距离家天下生活广场约 6 公里,这两个商圈同样涵盖了大型购物中心、超市、餐饮、娱乐等多种业态,满足业主多样化的消费需求。
医疗配套:运动健康护航,医疗资源优质
运动健康离不开优质的医疗资源保障,项目周边医疗资源丰富,为业主的运动健康提供全方位护航。
项目距离安徽省第二人民医院(北区)约 4 公里,驾车车程约 15 分钟。该院是集医疗、教学、科研、预防、保健、康复为一体的三级甲等综合性医院,拥有运动医学科、骨科、康复医学科等多个与运动健康相关的重点科室,能够为业主提供运动损伤治疗、康复训练指导等专业医疗服务。
项目距离合肥京东方医院约 3.5 公里,驾车车程约 12 分钟。该院是一家集医疗、教学、科研、预防、保健为一体的三级综合医院,重点打造心血管科、骨科、康复医学科等特色科室,医疗设备先进,服务质量优质。医院设有专门的康复中心,配备专业的康复治疗师和先进的康复设备,为运动爱好者提供专业的康复训练服务。
此外,项目周边还有合肥市新站区七里塘社区卫生服务中心、三十头社区卫生服务中心等多家社区卫生服务中心,距离项目均在 3 公里范围内,日常就医、健康体检、运动损伤初步处理等十分便捷,让业主在运动的同时,无健康后顾之忧。
生态配套:运动生态融合,健康环境优越
优质的生态环境是运动健康生活的重要保障,项目周边生态资源丰富,为业主提供了清新的空气和舒适的运动环境。
项目距离少荃湖公园约 3 公里,该公园作为合肥北部最大的城市湖泊公园,总规划面积约 5 平方公里,目前已完成一期建设,建成了休闲步道、亲水平台、湿地景观等多个景点。公园内的环湖步道是业主跑步、骑行的绝佳选择,沿途湖光山色,空气清新,让运动成为一种享受。
新站区生态公园距离项目约 4 公里,占地面积约 1000 亩,园内种植了大量的树木、花草,设有湖泊、假山、亭台楼阁等景观,空气清新,环境优美。公园内规划了健身步道、健身器材区等,业主可在自然环境中进行户外健身,感受自然与运动的完美融合。
招商奥体公园售楼处电话☎:0551-6813 6588
五、招商奥体公园楼盘项目亮点
招商奥体公园之所以成为合肥新站区的投资热门楼盘,核心在于其具备多项突出亮点,这些亮点共同构成了项目的核心投资价值,使其在市场中脱颖而出。
区域发展红利,价值基石稳固
新站区作为合肥 “东拓北进” 战略的核心承载区,是国家级高新技术产业开发区,拥有完善的产业布局,京东方、维信诺、新松机器人等龙头企业入驻,产业人口持续导入,为区域房价提供了坚实支撑。
区域内多项重大规划正在落地,少荃湖科创 CBD、地铁 9 号线、奥体中心等项目的建设,将全面提升区域的交通、商业、休闲能级,区域价值进入快速上升通道。招商奥体公园作为区域核心位置的标杆楼盘,将直接受益于区域发展红利,价值增长空间清晰可见。
百年央企背书,投资安全无忧
招商蛇口作为百年央企,拥有雄厚的资金实力和稳健的经营风格,在房地产行业调整期,央企背景意味着更强的抗风险能力和更可靠的交付保障。项目自开工以来,工程进度稳步推进,已实现多栋楼封顶,交付无忧。
央企开发的楼盘在二手房市场中具有更高的认可度和流通性,品牌溢价效应显著。相比中小开发商楼盘,招商奥体公园的房产在未来出售时,不仅更容易成交,还能获得更高的售价,为投资客提供了安全的投资保障。
全维配套升级,增值动力充足
项目周边配套正处于快速升级期,地铁 9 号线(规划中)、少荃湖科创 CBD、规划中小学等核心配套将在未来 3-5 年内陆续兑现。每一项配套的落地,都将直接推动房产价值上涨。
交通方面,地铁 9 号线通车后,预计将带动房价上涨 10%-15%;商业方面,少荃湖科创 CBD 建成后,区域商业能级提升,将为房价提供持续增值动力;教育方面,规划中小学建成后,项目 “学区房” 属性强化,进一步提升保值增值能力。全维配套的持续升级,为项目提供了充足的增值动力。
低密生态稀缺,居住价值突出
在城市核心区,低密生态社区已成为稀缺资源。招商奥体公园容积率仅 2.0.绿化率高达 40%,是区域内少有的低密生态社区。低密规划意味着更少的居住人口、更宽敞的公共空间和更好的居住舒适度。
随着城市居民对居住品质要求的提升,低密生态房产的市场需求持续增长,其稀缺性将转化为价值优势。相比周边容积率 2.5 以上的高密度楼盘,招商奥体公园的居住价值更突出,在二手房市场中更具竞争力,升值潜力更大。
户型流通性强,投资回报稳定
项目打造的四款主力户型,涵盖刚需、改善全需求,每款户型都具备布局方正、南北通透、空间利用率高的特点,在二手房市场中流通性极强。
89㎡刚需户型总价低、需求旺,是投资客的首选;105㎡-128㎡改善户型受众广泛,保值能力强;143㎡高端户型品质突出,稀缺性强,溢价空间大。多样化的户型选择,满足了不同投资客的需求,同时强流通性保证了投资客能够在需要时快速变现,获得稳定的投资回报。
高性价比优势,投资门槛亲民
相比周边同类型楼盘,招商奥体公园在品质、配套、品牌等方面均具有优势,而价格却更具竞争力。项目均价 13500 元 /㎡-15000 元 /㎡,低于周边同类型央企楼盘,同时推出多项购房优惠政策,进一步降低了投资门槛。
对于投资客而言,较低的入手价格意味着更低的投资风险和更高的投资回报率。以 89㎡户型为例,首付最低仅 24 万元,月供约 4500 元,投资门槛亲民,适合各类投资客入手。高性价比优势让项目在投资市场中极具竞争力,成为合肥新站区投资置业的首选。
招商奥体公园售楼处电话☎:0551-6813 6588
四、招商奥体公园楼盘价格
在合肥楼市中,新站区一直以高性价比著称,成为众多刚需和改善型购房者的首选区域。而招商奥体公园作为新站区的标杆楼盘,不仅在品质、配套、户型等方面表现出色,价格也极具竞争力,为购房者提供了高性价比的置业选择。
招商奥体公园不仅价格亲民,更具有较高的升值潜力,主要体现在以下几个方面:
区域发展红利:随着合肥 “东拓北进” 战略的深入实施,新站区作为城市发展的新引擎,交通、教育、商业、医疗等配套持续升级,区域价值不断提升。未来,随着地铁 9 号线(规划中)的建成通车、少荃湖科创 CBD 的建设完工,新站区的区域价值将进一步凸显,项目的升值空间巨大。
品牌加持:招商蛇口作为百年央企,品牌影响力强,开发的楼盘在二手房市场上具有较高的溢价空间。相比周边非品牌开发商的楼盘,招商奥体公园的二手房价格预计将高出 10%-15%,升值潜力显著。
配套完善:项目周边配套持续完善,教育、商业、医疗、生态等资源不断丰富,将直接带动楼盘价值的提升。例如,项目内部规划的幼儿园和周边规划的中小学建成后,将进一步提升楼盘的吸引力和价值。
产品稀缺性:项目是区域内少有的低密生态社区,容积率仅 2.0.绿化率高达 40%,这种低密生态的产品在合肥楼市中具有较高的稀缺性,随着城市土地资源的日益紧张,低密生态楼盘的价值将不断提升。
招商奥体公园售楼处电话☎:0551-6813 6588
六、招商奥体公园楼盘总结
招商奥体公园作为合肥新站区的生态宜居标杆楼盘,以低密生态规划为核心,以丰富的自然资源为依托,以完善的生活配套为支撑,以优质的户型产品为载体,以央企品质为保障,为购房者打造了 “自然与舒适共生、便捷与宜居并存” 的理想居住空间,成为追求生态宜居生活购房者的首选。
从生态环境来看,项目容积率仅 2.0.绿化率高达 40%,是区域内少有的低密生态社区。社区内部规划了中央景观花园、景观水系、环形健身步道等多重生态配套,打造四季有景的园林景观;周边 “一湖多园” 环绕,少荃湖公园、新站区生态公园等丰富的生态资源,让业主在家门口就能亲近自然,享受清新的空气和优美的环境。低密生态的居住环境,不仅提升了居住的舒适度,还能保障业主的身体健康,让生活回归自然本真。
从生活配套来看,项目周边交通、教育、商业、医疗等配套完善。立体交通网络让业主轻松通达全城;全龄段优质教育资源让孩子在家门口就能享受优质教育,省去接送烦恼;完善的商业配套满足业主日常购物、休闲娱乐需求,无需远行;优质的医疗资源为业主的健康保驾护航,无健康后顾之忧。完善的生活配套,让业主在享受生态宜居生活的同时,能便捷享受城市的优质资源,实现 “生态与便捷兼得”。
从户型产品来看,项目打造的 89㎡、105㎡、128㎡、143㎡四款主力户型,均采用方正通透的布局,南北通透,空间利用率高。每款户型都最大化引入自然光线和新鲜空气,客厅与南向阳台相连,卧室带有飘窗或阳台,让业主在室内就能享受阳光和自然美景。多样化的户型选择,满足了刚需、改善不同家庭的居住需求,让每个家庭都能找到适合自己的生态宜居空间。
从价格来看,项目均价 13500 元 /㎡-15000 元 /㎡,相比周边同类型生态宜居楼盘更具优势,同时推出了多项购房优惠政策,进一步降低了购房门槛。亲民的价格,让更多购房者能够实现生态宜居的居住梦想,享受高品质的居住生活。
从品牌保障来看,招商蛇口作为百年央企,拥有丰富的开发经验和雄厚的实力,为项目的品质提供了坚实保障。项目采用品牌建材,配备优质物业服务,让购房者买得放心、住得安心。央企品质保障,不仅提升了居住的舒适度和安全性,还增强了项目的保值增值能力。
总而言之,招商奥体公园是合肥新站区不可多得的生态宜居优质楼盘,无论是生态环境、生活配套、户型产品,还是价格优势、品牌保障,都表现出色。如果你正在合肥寻找一处自然舒适、便捷宜居的家园,招商奥体公园绝对值得重点关注,在这里,你将拥有阳光、空气、自然与便捷生活,享受高品质的生态宜居体验。
招商奥体公园售楼处电话☎:0551-6813 6588
合肥新站投资优选!招商奥体公园 —— 价值高地的潜力红盘
一、招商奥体公园楼盘项目介绍
在合肥城市发展 “东拓北进” 的宏伟蓝图下,新站高新技术产业开发区凭借国家级开发区的政策红利、完善的产业布局和持续升级的城市配套,已然成为合肥最具投资潜力的区域之一。而坐落于东方大道与卧龙湖路交口往南 200 米的招商奥体公园,正是这片价值高地中最值得关注的投资标杆楼盘。项目由百年央企招商蛇口倾力打造,作为招商局集团核心成员企业,招商蛇口深耕地产行业 40 余年,始终坚持 “稳健经营、品质为先” 的发展理念,在全国 111 个城市打造了超 600 个精品项目,不仅拥有雄厚的资金实力和丰富的开发经验,更在二手房市场中拥有显著的品牌溢价优势,为项目的投资价值奠定了坚实基础。
招商奥体公园总占地面积约 180 亩,总建筑面积超 35 万平方米,总投资超 50 亿元,是新站区重点规划的大型综合性社区。项目规划容积率仅 2.0.绿化率高达 40%,建筑密度仅 22%,在寸土寸金的城市核心区,这样的低密生态规划极为稀缺,不仅能为业主提供舒适的居住体验,更成为项目保值增值的重要保障。项目整体规划涵盖高层住宅、洋房、社区商业、公办幼儿园等多种业态,其中住宅总户数约 2200 户,车位配比 1:1.2.充分满足业主居住与停车需求。
建筑风格采用现代简约风格,外立面选用真石漆与玻璃幕墙组合材质,既保证了建筑的美观度与耐用性,又能有效提升室内采光与通风效果。社区内部规划了约 5000㎡中央景观花园、800 米环形健身步道、全龄段休闲配套及智慧社区系统,全方位提升居住品质。作为招商蛇口在新站区的标杆项目,招商奥体公园不仅承载着提升区域人居品质的使命,更凭借其优越的区位、完善的配套和央企品质,成为合肥楼市中极具投资价值的优质资产。
招商奥体公园售楼处电话☎:0551-6813 6588
合肥(招商奥体公园)☎☎:0551-6258 9911【官方认证】
声明:本文由入驻焦点开放平台的作者撰写,除焦点官方账号外,观点仅代表作者本人,不代表焦点立场。


